Menu
快讀
  • 旅遊
  • 生活
    • 美食
    • 寵物
    • 養生
    • 親子
  • 娛樂
    • 動漫
  • 時尚
  • 社會
  • 探索
  • 故事
  • 科技
  • 軍事
  • 国际
快讀

房價漲了!揭秘在新加坡升值快的房子,都有這些特點!

2021 年 3 月 12 日 天地人生5

640?wx_fmt=gif
一開年,大家在新加坡討論最熱鬧的事兒就是買房。
去年新加坡經濟不好萎縮5.4%,房價居然漲了2.2%(私人公寓);
今年新加坡預計經濟增長4-6%,那還不知道房價會漲多少呢!
640?wx_fmt=png
原本猶猶豫豫的人,一聽說政府可能馬上要出降溫措施,不是加稅就是降貸款額度!
突然意識到豈不是以後在新加坡買房更難?
于是,一些剛需買家都開始趕著看房了。
新加坡過去十年這些房子曾升值最快
新加坡一年新開盤的公寓項目多達幾十個,到底哪些值得買?
640?wx_fmt=jpeg
大部分人買公寓,除了看中更優越的條件之外,其實看中的就是公寓優于組屋的升值潛力。
最近幾年公寓的升值幅度大約是組屋的2倍。但不同的公寓,升值的幅度又是不同的。
就像買股票,大家肯定都想買到潛力股 —— 那些升值潛力大的房子。
我們先看看,過去這些新加坡升值最快的公寓都有什麽共同的特點👇
1北園公寓North Park residenceNorth Point City商場樓上
這個綜合項目公寓,位于北部最大商場North Point City樓上。

2015年4月開盤,樓下就是義順地鐵站,本身定位是大衆化公寓。
640?wx_fmt=jpeg
當年買到的都賺到了!
假如以價格152.6萬新幣買入1184英尺4臥室公寓,屋主持有該房産4年後賣出。
北園公寓的升值,讓屋主賺了約40萬新幣利潤。
大概每年賺取利潤10萬,相當于4年期間裏有一份額外收入每個月8300元新幣。
640?wx_fmt=jpeg
這不是假設,而是機遇真實數字,從下圖交易數據可以看出,北園公寓的投資者賺取利潤介于31.3萬-43.2萬新幣之間。
有些年回報率甚至高達9.4%,整體年回報率介于5.3-9.4%,有個單位甚至兩年多賺取34.5萬新幣利潤。
640?wx_fmt=jpeg(點擊看大圖)
2The CentrisJurong Point商場樓上
這個位于Jurong Point購物中心樓上公寓,于2009年建成。
640?wx_fmt=jpeg
當時三房成交價在140萬上下。
640?wx_fmt=jpeg
從下表可以看出,The Centris在2006年開盤售價400-500/平方英尺,2009年建成後漲價到750/平方英尺,到2013年約1150-1200/平方英尺。 
尺價成功翻倍了~

640?wx_fmt=jpeg
大家有沒有發現共同點?
他們都是建在地鐵之上的稀缺綜合項目。
“綜合項目”是包括商場、住宅、地鐵站、巴士總站的“四合一”。
商場是由發展商統一管理,新加坡很多商場是由凱德置地Capital Land和城市發展有限公司CDL持有。
640?wx_fmt=jpeg
由于優越的地段,方便的生活,綜合項目的住宅部分(公寓),有著普通公寓不能比的升值潛力。

綜合項目在市場私人住宅只有1.3%比例,數量稀缺,所以我們稱呼爲限量版的綜合項目。
猜猜新加坡目前有幾個綜合項目,只有10個!
640?wx_fmt=jpeg
所以地鐵站的四合一綜合性項目在新加坡向來深受歡迎,小戶型或者大戶型轉手都很容易。
今天就要推薦新加坡第9個綜合項目盛港嘉園Sengkang Grand Residences

盛港嘉園

640?wx_fmt=jpeg
項目要點

  • 數量稀缺的商住綜合項目,全島只有10個

  • 綜合項目,生活購物、餐飲、娛樂,應有盡有

  • 全部采用品牌廚衛電器,講究精致

  • 和地鐵無縫對接,生活便利,衣食住行都解決

  • 綜合項目更加容易出租,自住和投資者選擇

  • 附近1-2公裏內有南僑小學、聖嬰小學,部分單位在名校南橋小學1公裏內

 盛港區新地標-新綜合項目

項目樓下就是紫線萬國地鐵站,無縫對接。
占地面積多達約37255平方米,有9棟總共680個住宅單位,戶型包括1臥室+書房到4臥室戶型。
集三層購物商場、萬國地鐵站、巴士轉換站、民衆俱樂部、熟食小販中心、社區廣場、1000平方米的托兒所、大型超市一起,一站式解決衣食住行問題。
640?wx_fmt=jpeg
發展商CDL提供視頻:
Play
Play
小區共有41項公寓配套設施,包括2個會所、5個休閑區、1個遊泳池、兒童玩耍泳池、林蔭漫步、吊床草坪、泡泡休閑泳池、健康水療池、瑜伽草坪、圓形休息區、社交涼亭、泳池邊燒烤亭等。
參考下面平面圖:
640?wx_fmt=jpeg
限量版的綜合項目
Sengkang Grand Residences是新加坡第10個綜合項目,類似在盛港地鐵站的Compass Height, 文禮地鐵站的The Centris,勿落地鐵站的Bedok Residence,義順地鐵站的North Park Residence,濱海灣的Marina One Residence等。
綜合項目在市場私人住宅只有1.3%比例,數量稀缺,所以我們稱呼爲限量版的綜合項目。
640?wx_fmt=jpeg
綜合項目有什麽好處呢?
讓我跟大家一一道來,如果您是買來投資的話,地鐵上面的綜合項目的房子很受租客歡迎,所以很容易租出去,而且不錯的租金,自然投資者喜歡買綜合項目。
不需要叫外賣服務,和Grab Food、Food Panda(新加坡版美團)說拜拜,因爲樓下的商場24小時開放的,超市、食閣、餐館、零售店面應有盡有,足不出戶就可以全面滿足您生活上需求,讓您享受生活的一切便利。
640?wx_fmt=jpeg
不需要買車,節省買車和養車的費用,政府一直在不斷的擴建新的地鐵線,如湯申-東海岸線、泛島線等,以後新加坡很多地方5分鍾步行距離內有地鐵站。
地鐵上的綜合項目還有一個優勢是容易出租,零空置率,對于希望投資的朋友來說是極好的選擇。
640?wx_fmt=jpeg
采用品牌電器
每個單位都經過精致的內部設計與裝潢,采用品牌廚房電器、衛浴等,絕對讓您滿意。
煤氣竈、電磁爐、油煙機、冰箱、洗衣機采用法國著名電器品牌德地氏De Dietrich,廚房水龍頭、洗菜盆采用弗蘭卡Franke,衛生間淋浴、水龍頭使用德國的漢斯格雅Hansgrohe, 洗臉盆、馬桶采用德國的杜拉維特Duravit。
640?wx_fmt=jpeg
品牌發展商強強聯合打造
項目由城市發展有限公司CDL和凱德置地CapitalLand聯合開發,新加坡最大的兩家房地産開發商,凱德置地對商場開發、運營和管理方面很有經驗。
城市發展有限公司CDL在市場上有良好的住宅開發記錄,是新加坡豪宅項目開發領導者,如銀峰、風華南岸府、鉑瑞雅居(還有待售),良好的市場口碑,兩家公司強強聯合,打造出高品質的房子,讓您住得放心。
640?wx_fmt=jpeg
640?wx_fmt=jpeg
商場的建好後如下圖這樣子,看看設計效果圖
640?wx_fmt=jpeg
640?wx_fmt=jpeg
公寓漂亮設計圖欣賞
5個不同主題的會所,提供多樣化的休閑設施,讓您盡情享樂。
640?wx_fmt=jpeg640?wx_fmt=jpeg640?wx_fmt=jpeg640?wx_fmt=jpeg640?wx_fmt=jpeg
現在可以線上看樣板房哦,複制下面網址用浏覽器打開,有什麽可以電話或微信問我👇
1臥室 44平方米https://showsuite.com/sengkang-grand-residences-47/11-08/360?media=clipboard&share_code=bf1e7f2b-9a79-455b-8907-ba7075419d72
2臥室 71平方米https://showsuite.com/sengkang-grand-residences-47/05-04/360?media=clipboard&share_code=a1e13566-2fb6-469b-9f87-914cba931584
3臥室 94平方米https://showsuite.com/sengkang-grand-residences-47/05-07/360?media=clipboard&share_code=92f55997-6619-4c81-8135-7791cd6a45e8
戶型圖介紹
▼2臥室,63平方米,每個房間可以放雙人床,價格111.9萬新幣起
640?wx_fmt=jpeg
▼2臥室+書房優質型,主臥帶一個書房(辦公區),71平方米,價格124.5萬起640?wx_fmt=jpeg
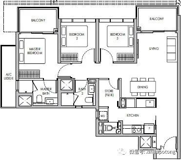
▼3臥室普通型,87平方米,封閉式廚房,每個臥室都可放雙人床,主臥客廳雙陽台,價格150.5萬新幣起
640?wx_fmt=jpeg
▼3臥室優質型,94平方米,帶保姆房,大客廳,主臥客廳雙陽台,價格169.2萬新幣起
640?wx_fmt=jpeg
▼4臥室豪華型,123平方米,大客廳配大陽台,封閉式廚房,價格211.2萬新幣起640?wx_fmt=jpeg

如果有興趣,掃描以下二維碼聯系看房👇

作者個人簡曆:

吳彪:2002年拿新加坡政府獎學金來新加坡深造,已經定居新加坡18年,熟悉中國和新加坡的國情,現任職于新加坡股票交易所上市公司,新加坡最大的地産公司之一ERA地産公司擔任高級營銷總監,從事房屋經紀行業10年多,已經完成數百宗房地産交易,成交的房屋價值高達新幣上億元,服務過數百位中高檔客戶,廣受客戶們好評。包括企業家、企業高管、中小型公司老板、房地産發展商、新移民、教授、醫生等等。

熟悉私人公寓,商業地産,組屋的交易流程,協助顧客辦理好貸款,律師辦理房産相關手續等,公司全島各地100多個項目,提供新加坡任何公寓樓盤和商業地産買賣投資服務,買私宅無任何經紀費用。

買賣房産是專業的事情,專業的事情找專業的經紀做。

真誠待人,熟悉房地産市場,通曉中英文雙語,善于溝通。

ERAPlush會員(經過公司嚴格挑選,服務高淨值客戶)

640?wx_fmt=jpeg

感謝各位客戶朋友的支持,本人在公司多次獲得頂級銷售獎,提供誠意十足,細心周到的爲客戶服務,所以收到客戶們的廣泛好評,服務好任何客戶是我的最重要原則,歡迎買家或賣家聯系我。

微信號:Jackwuhome 電話:65-91525858

公衆號:新加坡通(新加坡房産資訊、政策解讀等等)

網站: www.Jackwuhome.com

640?wx_fmt=jpeg

【相關閱讀】

  • 震驚!新加坡首例房子産權到期,必須無償歸還政府!

  • 新加坡這個世界第一,不得不服!

  • 最新!新加坡小學排名來了,查查你家附近學校排第幾?

  • 壕!中國買家來新加坡“批發”豪宅,撒6000萬新

  • 最近!新加坡實錘經濟回暖,趁疫情結束前,本地人趕緊做了這件事!

640?wx_fmt=jpeg640?wx_fmt=gif

相關文章:

  • 新加坡房産類別:組屋、私人公寓、有地房産全解析
  • 非新加坡公民如何在新加坡購房
  • 中國人在新加坡能買哪些房産?哪種值得買?
  • 外國人可以在新加坡買什麽類型的房産?最詳細介紹在這裏!
  • 從國內跳槽至新加坡工作的經驗分享
  • 外國人在新加坡買房的秘籍及操作|新加坡移民政策放寬 ,外國人可以投資新加坡哪些房産
時尚

發佈留言 取消回覆

發佈留言必須填寫的電子郵件地址不會公開。 必填欄位標示為 *

©2026 快讀 | 服務協議 | DMCA | 聯繫我們