如果有這麽一個機會,讓你選擇新加坡的一個地標向外國友人介紹新加坡,你會選擇什麽?
我想,相比于全球第一的樟宜機場,可能這個“頂樓長得像船一樣的無邊泳池”更能引起外國友人的共鳴!
因爲濱海灣金沙酒店的無邊泳池才是新加坡聞名于世的第一地標!
它地處的濱海灣,不僅是新加坡的金融中心,也是整個亞洲的金融中心。不僅吸引了衆多世界各地旅者前來打卡,就連無數新加坡本地人也渴望常居于此。
住在這裏,是身份的象征,是生活品質的保證,是全島99.9%人的夢想!
所以,濱海灣周邊的房地産成了全島赤手可熱的購買對象,無論是自住還是投資,都是最佳選擇。
那,既然如此火爆,還有優質好房嗎?當然有。今天小編就給大家推薦一個性價比極高的公寓。
濱海盛景豪苑
濱海盛景豪苑(Marina One Residences)是繼雙景嶺(DUO Residences)之後, 新加坡和馬來西亞兩國合作的又一個曆史性項目。
01
項目介紹
濱海盛景豪苑坐落于新加坡濱海灣(Marina Bay)剛完成擴建的中央商務區中心地段,是一個綜合性開發項目,由豪華住宅(1/2/3/4臥室公寓和頂樓公寓),高檔辦公室和零售店組成。
該項目所在的地區剛剛建成,有一定的名氣,是人們工作、生活和娛樂的理想場所。
濱海盛景豪苑不僅能提供極近舒適的住宅和交通方面的便利,還能提供可觀的資本增值收益。
根據新加坡市區重建局(URA)和新加坡總理李顯龍發表的聲明,新加坡政府計劃將濱海灣發展爲一流的商務,金融和旅遊中心。
“在未來的許多年裏,濱海灣將成爲我們新商務區中心地段的地標性項目。這個項目不僅會讓我們引以爲豪,而且還會繼續發展,走向繁榮……”——李顯龍總理。
02
項目要點
位于新加坡金融區的中心地段,CBD, 濱海灣,金沙近在咫尺。
是本地唯一一個近三個地鐵站聯接四條地鐵線的項目。300米內3個地鐵站市中心地鐵站(Downtown MRT Station)、濱海灣地鐵站(Marina Bay MRT)和珊頓道地鐵站(Shenton Way MRT)。
由新加坡和馬來西亞政府聯合開發。開發商是新加坡政府的投資公司淡馬錫控股(Temasek Holdings) 和馬來西亞的政府投資公司國庫控股(khazanah)。
濱海盛景豪苑是個超級綜合性項目,樓上是豪華型住宅,樓下是零售商場,旁邊是全東南亞最大的甲級寫字樓,facebook, Grab 這些大公司是它的主要租客。對投資客來講,租客的質量和租金是有保證的。
爲了體現花園城市的理念,這個公寓內部修建有65000sqft的內部花園。是新加坡唯一一個有內部花園的公寓。
欣賞城市天際線,海景,和濱海灣花園的無限美景。
全優配套 舒適生活,二層三層均爲小區的休閑娛樂的公共區域。健身房,閱讀室,棋牌室,遊泳池應有盡有。足不出戶即可享受各類文娛活動,生活的格調就這樣散散落落的彌漫開來。
濱海盛景豪苑取用國際先進的建築材料,爲不同客戶設計打造了不同裝修風格。無論是古色古香的傳統風格,還是低調簡約的現代風格都由著名室內設計師綜合多種元素,以星級酒店的標准完成。配套家具一應俱全,真正達到拎包入住,投資,租賃。
03
戶型及價格
濱海盛景豪苑 以居民住宅爲主,戶型多樣,滿足客戶各種需求。在有限的空間裏,我們爲您提供了靈活的選擇。
/一房一廳/
實用面積(64-68平方米
價位163萬起
正常付款還有3%折扣
/兩房一廳/
加私人電梯
實用面積(104-105平方米)
價位218萬起
正常付款還有3%折扣
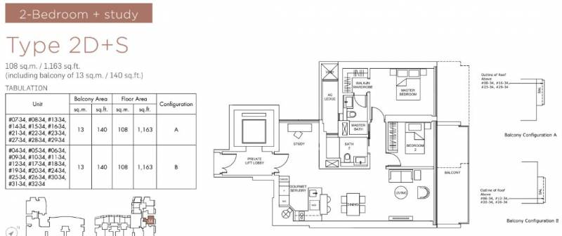
/兩房加書房/
實用面積(108平方米)
價位244萬起
正常付款還有3%折扣
/三房加書房/
實用面積(147-148平方米)
價位354萬起
正常付款還有3%折扣
/四房加書房/
實用面積(190-209平方米)
價位559萬起
正常付款還有3%折扣
04
實景欣賞
最新消息
現引入新的延遲付款系統:先入住,後付款!
正常付款系統: 先付1%定金,9% 三周內支付,剩下的90% 12-16周支付。
延遲付款系統1: 先付1%定金,19% 三周內支付,剩下的80% 12個月或者一年內支付。
延遲付款系統2:(只對樣板間):先付1% 定金,29% 三周內支付,70% 一年內支付
這樣一來,買房就沒有壓力啦!
還在等什麽呢?
快快聯系我們新加坡資深的房屋顧問吧~


























