之前國內有個神綜藝
豆瓣都是給9分起
家裝改造還能把人看的飙淚?
簡直又下飯又溫暖
原本我也不明白
去看了幾期徹底被感動了
當看到淩亂蝸居
變爲舒適居所的時候
有些人笑容滿溢
有些人感動落淚
原來生活中都有
艱辛,苦澀和不如意
家,卻永遠是心之歸宿
在新加坡我們體會更深
HOME
在新加坡,我想有個家
在新加坡這樣匆忙的城市
家,有不同的意義
對于 單身 的人來說
家是在異國流浪的容身之處
對于 情侶 來說
家是對未來的一種憧憬
對于 小家庭 來說
家是穩定和幸福的來源
有幾位椰友記錄了
自己在新加坡
買房和裝修的全過程
沒有節目中那種改天換地的變化
但是,從無到有
也充滿了幸福和感動
文末有福利
免費領取價值50新幣
NTUC超市代金券
還有網紅家居大牌送
Dyson 吹風機
Le Creuset 琺琅鍋
Delonghi 吐司面包機
*示意圖
在新加坡買房
在新加坡買房對于
很多椰友來說真的
是一個超級陌生的過程
先總結一些買房心得給大家
二手房
拿到綠卡之後就買了二手組屋
當時沒攢下什麽錢
就海淘了一些家具
刷了一下牆壁就搬家了
總感覺像是將就
裝修風格特別的南洋本地style
也就是沒裝修
*回想起來,特別像我們當時的出租房
只花了不到1萬新幣
做了廚房,地板,和牆壁的
簡單裝修就住進去了
後來我們迎接了小生命
老公也拿到了公民
于是決定換BTO
新房 BTO
新房,怎麽都得好好捯饬
爸媽公婆都說要好好裝修一下
這回不想將就想講究~
2014年底的BTO
2017年中拿到了鑰匙
給大家念叨念叨全過程
在新加坡裝修
組屋篇
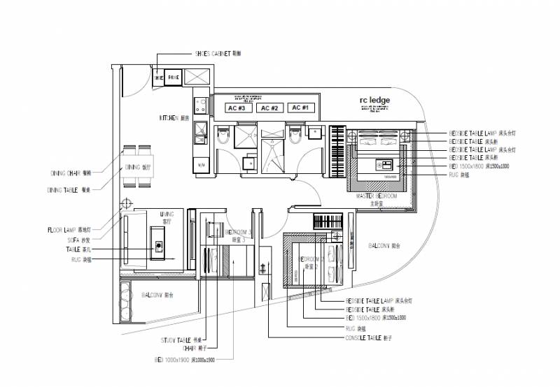
我買的是四房式組屋
面積在98平左右
這邊是按平方尺算的~
這是平面圖
看看裝修前是一片淩亂
腦子裏也是漿糊
其實,我們也咨詢了很多人
在新加坡裝修
一般來說分爲兩種方式:
1
第一種就是
刷牆+買家具型
這樣的一般都會自己找水電瓦工
然後海淘家具入住
2
至于新移民們多少講究些
如果想做吊頂和結構
或者像我們這樣
不光是貼瓷磚拉電線
想要一次就位的
不想以後改造時花錢花精力
那就要找獨立設計公司
客廳
客廳應該說是最簡單
但是也是整個房子的顔值擔當
像是敲敲打打的活
感覺每一家都幹的差不多
活兒好不好完全看設計理念了
整個房間的布局和配色
窗簾和牆壁顔色調和
比較靠的是設計+軟裝
廚房
廚房也很重要
在新加坡很少煮飯
或者多是小煮
參考了我們家的飲食習慣之後
決定來個大膽的想法
開放式的廚房設計
真的比較明朗和透亮
廚房,大概是我最滿意的設計了
是不是很有呼吸感?
臥室
事前溝通很重要
知道我是一個處女座
設計師就把大衣櫃內色
和床單窗簾都是成套設計的
臥室的主色調是
讓人覺得平靜的白色
渾然一體,引發極度舒適
下面是我這次裝修的一些經驗
和大家分享
經驗一:溝通很重要
我經驗就是前期溝通很重要
一定要表達出來自己的想法和要求
之後也好安排
這時候就顯得
有中國背景的設計公司
方便的地方了
比較好溝通,審美也相近
經驗二:監工頻率
前期溝通妥善了
就不需要每天緊盯著
我大概有時候晚上會去看看
周末的時候待久一點,省心
經驗三:實用性設計
像是客廳,廚房和臥室
還是比較主要的部分
其他部分軟裝就可以了
性價比比較高
但是設計和實用性就很重要
比如玄關這裏
本來想說鋪地墊
但是後來被說服了用瓷磚
事實證明設計師是對的
地墊相比之下
更不容易清理
組屋和公寓裝修起來
就很不一樣了
一起來感受一下
公寓篇
這邊的公寓和國內不太一樣
一般都有基本的裝修
拎包入住的類型
但是,有5個房間的公寓
發揮空間其實還是很大
看下新加坡公寓大概交房
就是這麽個狀態
客廳
我比較在意生活空間
就是客廳和臥室
是設計的重點
想要沉穩大氣一些的風格
在家具材質的選擇上
也比較喜歡金屬質感的家具
整個效果出來非常驚豔
說說我比較喜歡的幾個地方
首先就是滑面的大理石
隱隱能映照出人影
桌子和側邊的牆壁上
也有這種鏡面質感的設計
書房
設計感也體現在書房上
將陽台改造成了閱讀空間
充分利用了采光
是整個設計中的小確幸
階梯下方的照明燈
這個地方也是有小巧思的
暖色的黃光和木質地板相互反射
就像是多了一層光帶
也能帶來不一樣的感覺
臥室
客廳是門面
但是臥室才是待的最久的地方
這裏面的設計比起外面
還是更追求舒適了
床單被套以及窗簾
整體營造的還是更放松的氣氛
公寓裝修最大的體驗就是
不需要太多的敲敲打打
更多需要的是設計的審美了
從下面這個單身公寓裝修的
經曆中就可見一斑
單身公寓篇
我沒別的什麽要求
單身,但是朋友多
希望空間能被“放大”一些
另外想要比較ins的風格
(裝修前)
就是那種…朋友來了之後
忍不住拍照打卡的感覺
客廳 & 餐廳
锵锵锵,是不是安排的很巧妙?
一目了然的長方形格局
打造出了三個空間
卻完全沒有擁擠的感覺
仔細看這些純白歐式相框
簡約又不會單調
分割空間上卻起了很大作用
餐桌上的透明燈飾很加分
朋友都說整個色調很深沉
更顯得它出彩了
金屬色的鏡面
也在視覺上增加一些層次感
臥室
明亮的臥室總是能帶給人好心情
伸縮式的深卡其色卷簾
以及安置在床頭後邊的暖黃燈光
都透露著淡淡的溫馨
很喜歡這種在有限空間
能夠設計出大量
個人活動空間的貼心
“一個真實而有溫度的家
一定能帶來有遐想的未來”
這三件作品
都出自于同一間設計公司
獨立設計工作室
Espacio Studio在2017年成立,聚集了一群有激情有夢想的室內設計師。公司就一直在爲住宅和商業客戶提供服務,並且致力于創造理想和舒適的地方,以此提高客戶的生活質量。
推薦給大家
掃碼咨詢吧
都說好的設計是種美的享受
而好的室內設計
則是平淡生活中的一種溫暖的奇迹
Espacio Studio 在室內設計方面
擁有豐富的經驗
從工裝、家裝到軟裝
從設計到施工的每一個過程
以至于到每一個步驟
都是對細節的經營
Espacio Studio
擁有“專業的態度”
“設計的溫度”
還有,“獨一無二的設計理念”
以更出挑的審美
打造更出色的品質
在你面對新房一籌莫展時
爲你創造家裝奇迹
其實,不單單是“大興土木”
有時候軟裝也獨居匠心
這靠的就是設計理念了
也正是Espacio Studio的強項之一
改造生活:裝修的匠心
如果對現在生活空間
太過簡單的裝修不滿意
軟裝,小工程大匠心
也會給居所帶來翻天覆地的變化
到了現代更多的人
不願意受傳統的裝修風格束縛
而是有所偏好地加入自己喜歡的元素
從而創造出獨一無二的專屬風格
比如現代簡約風格
將設計的元素、色彩、照明、原材料
簡化到最少的程度
但對色彩、材料的質感要求很高
大小空間都可以駕馭
在你擁有很多“家”的想法
卻不知道該如何實施時
爲你架通夢想與現實的橋梁
獨立室內設計師
是你絕佳的選擇
Espacio Studio
重 磅 福 利
福利一:50新幣超市代金券
點擊右下角的“在看”
並且留言本文
留言點贊數排在前5位
將免費獲得價值50新幣的
Fairprice 超市代金券
每人各一張
(點贊截止時間:10月11日上午11點)
福利二:網紅家居用品
只要和Espacio Studio
成功簽約
就能夠獲得網紅家居品
任選其一
Dyson 吹風機
Le Creuset 琺琅鍋
Delonghi 吐司面包機
任選其一
*本活動最終解釋權歸商家所有
公司網站:
www.espaciostudio.com
微信公衆號:Espaciostudio
Instagram:Espaciostudio
地址:靠近麥波申地鐵站
LTC BUILDING B, 12 ARUMUGAM ROAD #05-11 S 409958
電話 : +65 9790 5210
推薦給大家
掃碼咨詢吧
在新加坡,Espacio Studio
改造的不只是房子











































































