獨具生活氣息的公寓有哪些?
“
我多麽希望,有一個門口,早晨,陽光照在草上。我們站著,扶著自己的門窗,門很低,但太陽是明亮的。草在結它的種子,風在搖它的 葉 子, 我們站著 ,不說話,就十分美好。——顧城 《門前》
我們奮鬥在這個高速運行的時代
每天的打拼雖已筋疲力盡
但追求一個惬意舒適的生活環境
也是很多人的目標
最近很多小夥伴們詢問
公寓2房 100萬新幣的預算
但要有獨立廚房
會有哪些介紹呢
確實,對于我們華人來講
廚房也算是能帶來一種生活儀式感的象征之一
一家人做一桌好飯
坐在一起享受美食,溝通情感
何不快哉
這裏,
就讓小楊(81212366 微信:cedchn)
帶領大家看看以下幾個項目
01
The Florence Residences 悅湖苑
公寓背景信息
開發商:Florence Development Pte Ltd
地址:Hougang Ave 2; 地區:D19 – 後港/榜鵝/盛港
物業類型:99年; 總單位:1410
預計交房:2022年
公寓關鍵點
1
位于成熟市鎮,7分鍾步行到高文/後港地鐵站
2
後港未來跨島線經過,將帶來更大升值潛能
3
一公裏內有好小學聖嬰小學
4
靠近三個輕工業區,投資潛力大
5
俱樂部式公寓-128個設施+12個俱樂部-完美生活體驗
6
兩年免費的體育休閑課程,有門房服務
7
多數單位南北朝向,有多種景觀選擇
8
智能居家設計
2房價格
新幣 S$877,000 起
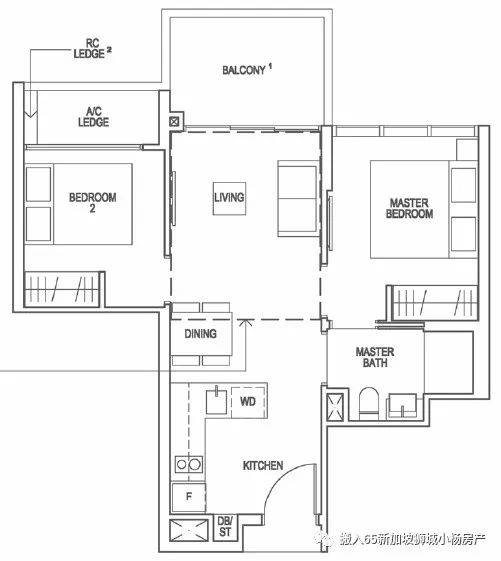
戶型 2C3 – 2室 2廳 一廁
635sqft= 59平方米
25% 首付:S$219,250
75% 貸款:S$657,750
30年貸款,2.15%利息
月供:S$2548
02
Treasure At Tampines 聚寶園
公寓背景信息
開發商:Sim Lian Group Limited
地址:118 Tampines St11; 地區:D18 – 淡濱尼/巴西立
物業類型:99年; 總單位:2203
預計交房:2023年3月
公寓關鍵點
1
超高性價比!新公寓只需$12XX平方尺入場價
2
步行5分鍾可到綠線SIMEI 四美地鐵!
3
公寓對面就應有盡有 ,NTUC 24小時 | 菜市場 | 巴士站
4
步行距離內4個購物商場,附近更有Tampines 1,Tampines Mall,Eastpoint Mall,SAFFRA Tampines,Our Tampines Hub等
5
128個設施、大型公寓,開車方便,近地鐵容易出租,近TPE高速快速達到全島
6
8所小學!1公裏內!
7
配有小巴士往返淡濱尼地鐵和樟宜機場
8
成熟市區;附近有新的工業和商業發展-大銀行和衆多跨國公司所在地
2房+書房價格
新幣 S$886,000 起
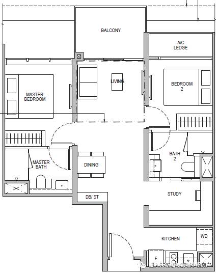
戶型 B7S – 2室 2廳 2廁
678sqft= 63平方米
25% 首付:S$221,500
75% 貸款:S$664,500
30年貸款,2.15%利息
月供:S$2575
03
The Garden Residence 嘉和馨苑
公寓背景信息
開發商:Gardens Development Pte. Ltd.
地址:Serangoon North View; 地區:D19 – – 後港/榜鵝/盛港
物業類型:99年; 總單位:613
預計交房:2021年8月
公寓關鍵點
1
位于實龍崗北部的成熟城鎮
2
距離CTE和PIE等主要高速公路僅有幾分鍾車程。實龍崗地鐵和巴士轉換站也在附近
3
一公裏範圍內有著名的教育機構,如Rosyth小學和LycéeFrancaisDe Singapour
4
周圍環繞著私人有地住宅區
5
擁有完整而獨特的設施,包括警衛室,會所,多功能廳,室內健身房,網球場,50米遊泳池,陽光甲板,燒烤爐和兒童遊樂場。公寓的設施爲您的家人和親人提供全面的家庭娛樂需求
6
位于Bidadari Estate總體規劃附近, 升值潛力大
2房價格
新幣 S$895,300 起
戶型 B1 – 2室 2廳 1廁
614sqft= 57平方米
25% 首付:S$223,825
75% 貸款:S$671,475
30年貸款,2.15%利息
月供:S$2602
04
Riverfront Residence
公寓背景信息
開發商:Oxley-Lian Beng Venture Pte Ltd
地址:344 Hougang Ave 7; 地區:D19 – – 後港/榜鵝/盛港
物業類型:99年; 總單位:1451
預計交房:2024年
公寓關鍵點
1
距後港地鐵站800多米,步行可達
2
101個公寓設施滿足家人的不同需求
3
附近公園, 腳車道,綠色走道帶給住戶更健康的生活體驗
4
市場上價格最爲優惠的項目之一
5
臨近的城市高速路KPE和CTE去市區和各大商業中心都很方便
6
免費巴士往返後港地鐵站
7
學區房:Rosyth Primary School(樂賽小學)、中華小學、蒙福中學、實龍崗中學、實龍崗初院等等;
8
後港地區,潛力大
2房價格
新幣 S$958,000 起 (17樓)
戶型 B3 – 2室 2廳 1廁
732sqft= 68平方米
25% 首付:S$239,500
75% 貸款:S$718,500
30年貸款,2.15%利息
月供:S$2784
05
The Jovell
公寓背景信息
開發商:Tripartite Developers Pte Ltd
地址:Flora Drive; 地區:D17 – 洛陽/樟宜
物業類型:99年; 總單位:428
預計交房:2022年
公寓關鍵點
1
第一次升級公寓的買家最理想的價格
2
沒有一個單元面向主要道路,意味著甯靜舒適的居住環境
3
靠近沿著市中心線新開的樟宜上段地鐵站,連接東西線的世博交彙處地鐵站
4
居民在Jewel @ Changi享受世界級的購物,餐飲和娛樂
5
距離宜家淡濱尼,Courts Megastore和Giant Hypermarket,樟宜城市點僅短距離車程
6
通過Simei Avenue和Xilin Avenue分別可輕松訪問PIE和ECP
7
靠近新加坡科技設計大學,樟宜商業園和樟宜機場,這將帶來該地區潛在的高租金收益率
8
50%以上的土地用于設施和景觀
2房價格
新幣 S$785,000 起
戶型 (2)a – 2室 2廳 1廁
635sqft= 59平方米
25% 首付:S$196,250
75% 貸款:S$588,750
30年貸款,2.15%利息
月供:S$2281
06
Kandis Residence
公寓背景信息
開發商:Tuan Sing Holdings Limited
地址:2 Kandis Link; 地區:D27 – 三巴旺/義順
物業類型:99年; 總單位:130
預計交房:2021年
公寓關鍵點
1
位于三巴旺田園詩般的位置,是新加坡北部最平靜的低層住宅區內唯一的公寓發展
2
附近-三巴旺公園,長葛花園,卵石花園,三巴旺CC,Cranberra CC,Simpang兒童公園,三巴旺運動休閑中心(正在建設中)
3
交通方便- 三巴旺巴士交彙,三巴旺地鐵站,堪培拉地鐵站
4
周圍-堪培拉廣場(正在建設中),太陽廣場,三巴旺購物中心,咖啡廳,百合派藝術與設計,Beaulieu House,1036 Eat House,百老彙食品 中心,北環食品屋,泰國口味,貝克釀酒室,NTUC Fairprice,伍迪家庭護理,Hidangan Sah
5
學校- 福林國際學校,三巴旺小學,惠靈頓小學,努力小學,Northoaks小學,堪培拉小學,堪培拉中學
6
靠近三巴旺公園和海灘,俯瞰著柔佛海峽(Johor Straits)
7
公寓設有一個33米無限泳池,健身站,太極草坪,腳底按摩,慢跑路,會所等等。室內戶外房屋間庭院設計,每一步都會有美麗的園景走道。
8
現代時尚酒店化房屋設計,想要逃離城市喧囂的大自然愛好者的首選
2房價格
新幣 S$941,800 起
戶型 B2 – 2室 2廳 2廁
765sqft= 71平方米
25% 首付:S$235,450
75% 貸款:S$706,350
30年貸款,2.15%利息
月供:S$2737
07
Parc Botannia翠林苑
公寓背景信息
開發商:Fernvale Green Pte Ltd
地址:Fernvale Street ; 地區:D28 實裏達/楊厝港
物業類型:99年; 總單位:735
預計交房:2020年
公寓關鍵點
1
緊鄰盛港Thanggam LRT 地鐵,走路1分鍾
2
兩大知名發展商Wee Hur & Sing Holding 聯合呈現大型,品質保障
3
靠近淡濱尼高速TPE和中央高速公裏CTE, 快速到達各地
4
附近大型商場-Seletar Mall(有海底撈哦)/ Compass One等,公寓後身是新加披有名的24小時美食一條街。
5
預計2020年交工- 是目前市場上售價較劃算的公寓中最早可以入住的!
6
附近的學校有盛盛港小學,芬威小學,南僑小學,南僑中學和裴華中學
7
設施超級齊全的優質公寓
8
投資潛力大
2房價格
新幣 S$932,000 起(17樓哦)
戶型 2BR P2 – 2室 2廳 2廁
667sqft= 62平方米
25% 首付:S$233,000
75% 貸款:S$699,000
30年貸款,2.15%利息
月供:S$2708
08
Whistler Grand 禦峰
公寓背景信息
開發商:CDL Pegasus Pte Ltd
地址:West Coast Vale ; 地區:D05 金文泰/西海岸
物業類型:99年; 總單位:716
預計交房:2023年
公寓關鍵點
1
靠近裕廊湖區,裕廊創新區,第二個中央商業區
2
靠近3個地鐵站,現有的裕廊東和金文泰站,未來的班丹蓄水池站;將來還有跨島地鐵線經過西海岸一帶
3
靠近7個購物商場
4
靠近國際商業園,國大,Buona Vista / One North 各大研究機構和跨國公司
5
全套公寓設施,大量綠化,高樓有無敵海景
6
名校南華小學一公裏內
7
公寓設施齊全,符合各個年齡段的住戶
8
買到就在賺錢-隔壁去年開盤的樓盤比此樓盤還貴
2房+書房價格
新幣 S$1,012,500 起
戶型 B39 – 2室 2廳 2廁 1書房
764sqft= 71平方米
25% 首付:S$253,125
75% 貸款:S$759,375
30年貸款,2.15%利息
月供:S$2942
綜合
對
比
價格
SGD
面積
sqft
/平
尺價
SGD
位置交房日Florence$887K
635
/59
$1397
高文地鐵
步行可達
2022Treasure$886K
678
/63
$1307
四美地鐵
步行可達
2023Garden$895.3K
614
/57
$1458
高文
需搭巴士
2021Riverfront$958K
732
/68
$1309
後港地鐵
步行可達
2024Jovell$785K
635
/59
$1236
淡濱尼
需搭巴士
2022Kandis$941.8K
765
/71
$1231
三巴旺
需搭巴士
2021Botannia$932K
667
/62
$1231
盛港輕軌
門口LRT
2020Whistler$1.0125M
764
71
$1325
金文泰
需搭巴士
2023









































