一轉眼2019年就要結束了
這一年新加坡房地産欣欣向榮
特別是私宅價格穩中有漲!
*圖源:squarefoot.com.sg
私宅整體從年初
第一季度的1500新幣/平方尺
一路漲到第四季度
大約1700新幣/平方尺
可以說買到就是賺到~
賣得最多的自然是
性價比超高的大衆型公寓
而豪華型的公寓也表現不俗
2019新加坡地産王
出爐啦!!!
最貴公寓成交價
7380萬新幣
而最貴住宅成交價
2.3億新幣
2019新加坡房産王
(包含公寓、有地住宅)
成交價
(萬新幣)
1
那森路 洋房
23,000
2
華利世家 公寓
7380
3
Boulevard Vue 公寓
5200
4
愛士特山 洋房
4700
5
古魯尼路 洋房
4100
6
貝蒙路 洋房1
3980
7
貝蒙路 洋房2
3450
8
TwentyOne Angullia Park
3200
9
烏節三翠林
3200/3150
10
Tanglin Hill
3150
而這些豪宅的買家
很多都是我們認識的人!
今年的房産王到底花落誰家?
讓我們一起來看看!
2019年公寓王
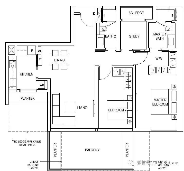
Wallich Residence
華利世家頂層的超級公寓
2019年賣出的最貴公寓
這個大家也許不會感到意外
畢竟,這個新聞
早就刷屏了我們的朋友圈
買下2019最貴公寓的
正是戴森老板詹姆斯戴森本人
這個傳說中
叫價過億新幣的公寓
最終成交價爲7380萬新幣
折合人民幣將近4億
看來開發商給了戴森廠長
一個大折扣
不過依然,這個房價
光是印花稅就要交幾百萬新幣
圖源:亞洲新聞台報道
這間頂級公寓
不只在新加坡拿下各種之最
還曾入選全球十大豪華公寓項目
傲視全世界的壕
這一間Penthouse頂層公寓
占據華利世家
第62層樓至64層樓
公寓總面積爲21108平方英尺
也就是2000平方米
2000平方米啥概念?
基本和室內體育場一樣大了
更何況這公寓還是位于
城市之巅,百萬人之上
*公寓內有私人遊泳池、圖書館、玻璃觀景陽台
最後算下來成交的尺價是
3496新幣/平方尺
相比其他超級頂層公寓
絕對是劃算的~
不得不讓人佩服戴森老板
財大氣粗之余還很精明
2019年度別墅王
納森路洋房
Nassim Road
雖然戴森老板買的洋房很牛
但是年度別墅王不是他
以2.3億新幣買下年度最貴別墅
是另一位我們挺熟悉的名人
對,就是買家就是
Facebook聯合創始人
早已移民新加坡的
薩維林(Eduardo Saverin)
名下的公司購買
爲什麽他買下的別墅那麽貴?
戴森廠長買的4100萬別墅
已經非常豪華了
這個莫非還能更壕?
4500萬新幣
by 戴森
2.3億新幣
by 薩維林
讓人意外的是
天價房不是什麽酷炫的建築
而是新聞照片裏這個其貌不揚的房子
雖然房屋本身只是
一棟普普通通隨處可見的小樓
但是這棟小樓帶著
一!大!片!地!
整片地一共有84,543平方尺
約等于7854平方米
啥概念?
一個標准足球場的面積是
7140平方米
這片地比足球場還要大!
這下大家明白了吧
貴的不是房子
而是房子所在的一大片地
如果算土地面積
折算成尺價的話
幾乎和戴森買的別墅一樣
約2700新幣/每平方英尺
這棟2.3億新幣的大豪宅
位于植物園和烏節路之間
就位于新加坡富人區
優質洋房聚集地之一納森路
是納森路沿線
占地最大的優質洋房
至今保持完好
這塊地大致上是長方形的
靠馬路的一邊有100米長
這塊地本身除了房屋
還自帶一個全尺寸的網球場
和一個遊泳池
據專家分析
這片地很有可能會被重新發展
如重建房子,這片地可以
至少建5棟原房屋大小的洋房
所以富豪們真的
比我們想像中還要精打細算!
中國買家大放異彩
除了公寓王和別墅王
被我們熟悉的名人買了
2019年中國買家的表現
也非常亮眼
據不完全統計
2019最貴公寓的
第二名和第五名
都是被中國買家買走的
《新加坡的這些奢侈頂層公寓
被中國買家買走》
Boulevard VUE Penthouse
(圖源:商業時報)
《中國買家買下3150萬新幣的
烏節三翠林頂層公寓》
頂層公寓素有“房産之王”的說法
居住于頂層公寓可不僅僅
是購買一套昂貴的房産
也代表奢華的生活方式
更是一種特殊身份的象征
同樣是烏節路的豪宅
Boulevard 88 鉑瑞雅居
最近被買走4套
其中有2套都是落入中國買家之手
均價也都幾乎到達3000萬新幣
是什麽樣的神仙樓盤
吸引中國買家的目光?
Boulevard 88
鉑瑞雅居
樓盤簡介
發展商
城市發展公司CDL和豐隆集團
(新加坡著名發展商)
地契
永久地契
占地面積
12127.2平方米,屬于中型樓盤
所處地段
地處核心地段,尊貴的第10郵區
靠近地鐵
375米步行約6分鍾到烏節路地鐵站
預計交房時間
2022年12月之前
戶型介紹
2+書房122平方米,3房165平方米,4房257-260平方米,4個頂層複式單位527-562平方米
總單位數
限量版154個單位,停車位高達322個
參考價格
2臥室+書房價格445萬新幣起,3臥室價格593.7萬新幣起,4臥室1006.3萬新幣起
*以看房時價格爲准
地理位置介紹
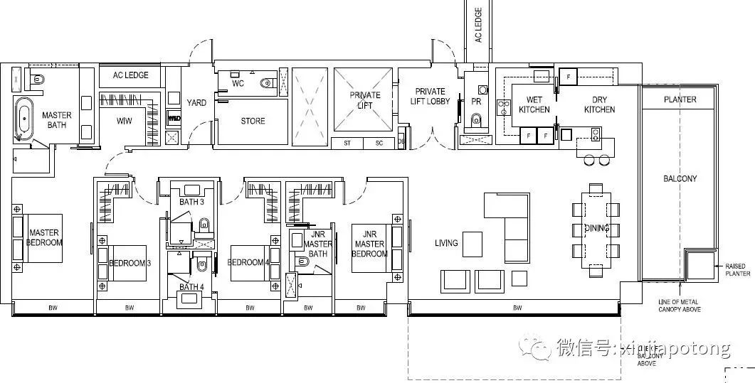
鉑瑞雅居地處新加坡核心地段-烏節路林蔭道,新加坡最好的三個街道之一,是身份的象征,位于尊貴的第10郵區。
緊鄰著名的瑞吉酒店(ST Regis Hotel)和四季酒店(Four Season Hotel),步行6分鍾可以到烏節路地鐵站,8分鍾步行到新建中的Orchard Boulevard地鐵站(預計2021年開通),6分鍾車程可到被列爲世界文化遺産的“新加坡植物園”,由2棟28層單位組成,限量版154個豪宅單位。
第9郵區和第10郵區是新加坡本地著名企業家、商人、政治人物(如總理級、部長級、國會議員等)、科技業和金融業巨頭喜歡定居的地段,如臉書Facebook創辦人之一薩維林、阿裏巴巴創始人之一孫彤宇、金融大鳄羅傑斯等。
也是明星們喜歡紮堆住的地段,如功夫巨星成龍、李連傑、甄子丹、趙薇、章子怡、周華健、張柏芝、新加坡當地藝人如林俊傑、範文芳、孫燕姿等。
毗鄰世界十大購物街之一烏節路,商場包括Ion Orchard、百麗宮、義安城、威士瑪、董廈Tangs、313索美塞等,是一個與巴黎香謝麗舍大道、東京銀座、紐約第五大道齊名的購物勝地,什麽名牌包包(Channel、Hermes、LV、Prada等)、名牌手表、品牌香水、珠寶、名牌服飾等,應有盡有!每年都有來自世界各地的遊客來此瘋狂購物。
靠近美國俱樂部、萊福士俱樂部、東陵俱樂部等,喜歡社交的朋友們可以俱樂部結交新的朋友哦。
名師設計
聘請建築設計師爲大名鼎鼎的莫瑟.薩夫迪(Moshe Safdie)打造,新加坡的地標景點濱海灣賭場、金沙酒店也出自他手,還有最近竣工的機場星耀樟宜(Jewel Changi)也是他設計的,今天竣工的重慶市的新地標-萊福士城廣場也是他旗下作品,耗資240億人民幣打造,把公園修到空中。2019年初莫瑟.薩夫迪獲得沃爾夫建築獎,堪稱建築界的諾貝爾獎。
頂層空中設施
頂層位于29層,主打“天際”概念,50米長天際無邊遊泳池、天際觀景台、天際俱樂部、天際健身房、天際溫泉浴、天際休閑廳、天際草坪、住戶禮賓服務台,可以去頂樓欣賞烏節路美麗景觀,還配備兩個燒烤台,享受美景和美食兩不誤
位于頂層的健身房能夠讓您一邊在跑步機上揮灑汗水,一邊欣賞城市美景,具有高度私密性的空中俱樂部能夠滿足公司董事會議、家庭聚餐、節日慶祝等多種需要,是另外一番體驗。
名師的設計就是獨具匠心,鉑瑞雅居的大客廳設計讓人感覺寬敞明亮,舒適流暢,加上又是永久地契,屬于稀缺資源,經典永恒。
頂級用料,奢華舒適
格調高雅的鉑瑞雅居,建築與裝飾的一切選材,在設計和材料品質方面講究精益求精,例如意大利的Caccaro衣櫥,客廳采用梵高格調來自土耳其的大理石、配有著名衛浴品牌Antonio Lupi、Hansgrohe AXOR Citterio E等浴室配件。廚房選用最高級的Ernestomeda Icon系列,臥室地板采用美國胡桃木,采用最頂級的用料,只爲給您帶來奢華、舒適的生活體驗。
智能家居系統,享受科技生活
項目采用智能家居系統,對于4房戶型,可以智能燈光控制,智能空調控制,電子鎖,智能語音助手,大門感應器,數碼電子鎖,可以在回家之前提前通過手機應用程序開好空調,讓您回家就感覺涼爽而舒適。
城市發展公司CDL和豐隆集團
發展商城市發展公司CDL有超過50年的項目開發經驗,住宅40000套,項目開發在新加坡、中國、英國、日本、澳洲等,公司旗下有住宅、辦公樓、酒店、服務型公寓、商場,在全球擁有130家酒店,是新加坡最大的商業地産持有者。2017年豪宅銷量冠軍格美華庭(Gramery Park)和2018年豪宅銷量冠軍銀峰(New Futura)都是由城市發展公司CDL開發,豐隆集團爲都是由城市發展公司CDL的母公司,旗下開發的豪宅項目如Tate Residence和ST Regis酒店瑞吉居(ST Regis Residence)等等。
烏節路2.0版本,進一步轉型升級
2019年1月,市區重建局,新加坡旅遊局和國家公園管理局宣布政府將重新打造烏節路購物街,打造區域包括烏節路、東陵、索美塞和多美歌,打造一個更多元化、更多配套設施、更多綜合住宅商場項目([email protected]隔壁地塊,待開發,估計到時候價格不菲),烏節路2.0版本對周圍住宅項目的住戶生活更方便、周邊地價房價自然升值。
戶型圖和參考價格介紹
2臥室+書房,122平方米/1313平方英尺,價格445萬新幣起
3臥室戶型,165平方米/1776平方英尺,每個房間足夠大,戶型方正,價格593.7萬新幣起
4臥室戶型,257平方米/2766平方英尺,國人喜歡的大平層,每個房間足夠大,客廳大到可以任性的想踢足球,主臥配超大步入式的衣櫃,每個房間配獨立衛生間,價格1006.3萬新幣起
【戶型點評】戶型面積絕對配得上豪宅身份,連最小的2臥室+書房戶型面積都達122平方米,4臥室面積更是多達257平方米,戶型方正實用型,空間利用,四臥室大客廳與大陽台相接,讓住戶享受寬廣的視野,每個房間面積足夠大氣,配大衣櫃。國際建築大師打造,永久地契,方正的戶型格局,絕對值得您收藏!
在新加坡買房
找最靠譜的經紀Linda
Jadescape
順福軒
這裏要第二個推薦項目
地理位置同樣優越
價格更加親民
項目要點
1.地點好,3分鍾步行就可到達瑪麗蒙地鐵站Marymount MRT
2.名校林立的學區房,公教小學、愛同小學、萊佛士書院等
3.靠近自然公園,麥裏芝蓄水池,享受綠色生活
4.兩個著名建築設計公司聯手打造,必屬精品
5.全部單位帶智能家居系統,讓科技進入生活
6.采用品牌電器和衛浴,高質量保證
7.房子面積明顯比其他項目大,連普通房面積都有10-11平方米
8.地處新加坡中部,方便到全島各處
9.享受漂亮的麥裏芝蓄水池景觀,遊泳池景觀或周圍別墅景觀
10.只需15XX/平方英尺起,具備投資潛力
接近大自然,享受綠色生活
公寓不遠處就是麥裏芝蓄水池,只需2站巴士就可到達,作爲新加坡徒步愛好者聖地,這裏安靜的大自然景觀,吸引在繁忙都市上班的人,組織周末徒步活動,享受親近大自然的綠色生活,徹底把工作或者生活上的煩惱抛到腦後。
茶余飯後還可以去附近碧山公園溜達,碧山公園爲飯後消遣打發時間和周末遛娃的好去處。
融入自然山水畫設計
七座塔樓交錯排列,層次分明,仿佛重巒疊嶂,平衡了周圍的綠色植被和水,是現代版山水畫的最佳诠釋,設計師Paul Tange巧妙的把順福軒的整體規劃按照麥裏芝蓄水池的地形,小區泳池對應河道,異曲同工之妙。
智能家居配套,科技健康生活
發展商設計的戶型以實用爲主,是新加坡發展商裏面第一個采用智能家居系統的,新加坡第一個在EC Visonaire項目中引入智能家居系統的HiLife Smart Home Solution,讓科技進入生活。
升級版的智能家居系統可以通過手機應用程序預定公寓設施、預定清洗空調公司服務、交物業費等,在沒到家之前可提前把空調打開,讓您到家就覺得涼爽~更多介紹快預約看房吧!
名牌電器,品牌保證
冰箱、洗衣機、酒櫃、油煙機、爐竈、烤箱全采用意大利品牌SMEG,很多高檔項目采用的品牌,LAUFEN勞芬和Hansgrohe衛浴,居然還有國內賣得火爆的方太,BWT牌淨水器,4房豪華型,5房和複式樓采用高檔品牌AXOR和GEBERIT智能馬桶,都是采用耳熟能詳的品牌,高質量的保證,讓您住得放心,發展商用心來打造優質的中高檔項目,必須給個大大的贊。
超級實用戶型
附注:促銷活動只限到12月底,具體價格以看房時選的單位價格爲准
一房戶型,面積爲49平方米/527英尺,在一房中算面積大的,中規中矩,價格87.7萬新幣起
兩房一衛戶型,面積爲60平方米/646英尺,主臥加衛生間高達18平方米,完全可以媲美三房的主臥面積,原價119.7萬起現在促銷價116.9萬起
兩房兩衛戶型,面積爲71平方米/764英尺,連普通房都有9平方米,主臥加衛生間高達19平方米,完全可以媲美三房的主臥面積,原價127萬起,現在促銷價格121.9萬新幣起, 數量有限哦
三房戶型,面積爲94平方米/1012英尺,普通房都有10平方米,大于一般新樓盤普通房8平方,住起來夠爽,現在促銷價格168.6萬起
四房戶型,面積爲117平方米/1259英尺,配置雙陽台,普通房面積多達10個平方米,主臥面積19平方米,原價209.1萬起,現在促銷價格200.9萬新幣起,數量有限哦
四房戶型,面積爲132平方米/1421英尺,配置大陽台,亮點是主臥自帶衣帽間,女主人最愛的獨立衣帽間,面積多達25平方米,私人電梯直接入戶,價格236.2萬起,現在促銷價格226.9萬新幣起,足足節省將近10萬哦
四房豪華型,面積爲153平方米/1647英尺,配置大陽台,亮點是主臥自帶女主人最愛的獨立衣帽間,面積多達25平方米,私人電梯直接入戶,原價268.6萬起,現在促銷價格258萬新幣起,足足節省將近10萬!
五房戶型,面積爲195平方米/2099英尺,有錢人喜歡買的大平層戶型(數量稀缺),私人電梯直接入戶,客廳多達57平方米,大到可以帶小孩踢室內足球,任性的主臥和衛生間面積多達33平方米,帶女主人最愛的獨立衣帽間,沒有浪費的面積,價格319.06萬起!
樣板房實拍圖
在新加坡買房,找最靠譜的經紀!
這裏,給大家推薦一個靠譜經紀
買房,省錢的同時還省心~
可以聯系linda
微信號:zhangqiong046456
電話:93397258
張瓊(Linda),新加坡最大房産經紀公司Huttons市場部高級董事,公司代理全島各地項目,擁有豐富的房産行業經驗,已經加入熱愛的房地産行業7年多。不跟買家收取中介費,專車接送看房,公司代理全島各地項目。一個電話過來就了解全島各地段的項目,總有一款適合您!
歡迎需要買房或者賣房的朋友添加我的微信號(掃描以下二維碼)
張瓊/Linda































































