俗話說得好
”去新加坡可以不逛公園不去海灘
但烏節路是一定要去的!“
畢竟烏節路可是新加坡繁華的代表
有著時尚潮流聚集地之稱
吃喝玩樂購一應俱全
簡直不要太完美!
對于購物狂來說
在烏節路待個三天三夜都不夠!
恨不得把家就搬這兒
隨時隨地想逛就逛~
說到這兒,
大家肯定很羨慕那些家住烏節路的人吧!
餓了,出門就有全新加坡最全的餐廳
無聊了,出門就能逛全新加坡最好的商場
逛再晚也不用擔心地鐵停運
因爲走路就能回家!
那麽,烏節路周邊居民到底是怎樣的生活呢?
今兒就來給大家揭秘一波
看完你會發現,住在烏節路竟然這麽…
出門就能逛街購物
這大概是年輕潮人最最最羨慕的吧!
烏節路向來是新加坡的購物天堂
但新加坡地鐵停運時間非常早
還沒逛盡興呢
就要掐著時間趕回家
而住在附近的人壓根就沒這個煩惱!
無論何時,出門就能逛街購物
就算逛到半夜,走個路也能回家咯~
餓了立馬就能吃
作爲新加坡最繁華的商圈
除了逛街購物外
當然還少不了“吃”啦!
對于資深吃貨來說
最受不了的就是餓了還要等很久!
而住在烏節路附近的居民
出門幾分鍾就能到餐廳的這波操作
實在讓人眼紅
身份地位變高了
大家都心知肚明
能住得起新加坡商圈房子的人
非富即貴
身份一下就提升了好幾個檔次!
但很多時候有錢是解決不了問題滴
烏節路的房子雖然貴些
但房源特別緊張
有時候遲了想買都買不到呢!
那麽,這樣的房子還有嗎?
剛好有兩個新樓盤
永久地契項目
一起來看看吧~
鉑瑞雅居 Boulevard 88
鉑瑞雅居(Boulevard 88)永久業權公寓將位于酒店組件的頂部。酒店部分由208間酒店客房組成,共有2棟28層樓的公寓,構成了鉑瑞雅居(Boulevard 88)的154個住宅單位。
從上圖您可以看見鉑瑞雅居的所在地,緊臨瑞吉酒店和四季酒店。臨近的烏節路地鐵站,湯申-東海岸線也將從2019年起陸續建成。
烏節路林萌道就好像是紐約的Fifth Avenue,黃金地段,價值競爭力位于”金字塔“頂瑞,鉑瑞雅居是永久地契的絕版地段,長期升值潛力巨大。必須提到的一點就是烏節路將迎來一個全新大改造!
鉑瑞雅居(boulevard88)的戰略位置遠離喧囂,記得住在城鎮中普遍存在的嘈雜交通嗎,但鉑瑞雅居(boulevard88)距離所有豪華區域都很近。其中一個區域是烏節附近,您可以在這裏找到娛樂場所,餐廳和娛樂中心。聖瑞吉斯住宅,烏節路果園區,瑞吉酒店和新加坡麗晶酒店是衆多著名酒店中的一些,都靠近鉑瑞雅居(Boulevard 88)。
希望擁有一切核心的業主和投資者都會喜歡這個開發項目周圍的基礎設施,與東陵,庫斯卡登,烏節路,安圭拉公園,格蘭奇路和納皮爾公路交叉並相互平行,即使你趕時間沒有什麽中心地方你不能到達。
這就是鉑瑞雅居 CDL的巅峰之作。
三層設施,擁有綠植充分的底層戶外花園,也有視野開闊的空中亭榭。爲了體現鉑瑞雅居的氣派,項目提供酒店級管家服務,從進門第一刻起,就能讓你感受到身份的尊貴。
一、二層設施
一層到達區以花園爲主題,二層則以庭院爲概念,打造了不同戶外休閑區——包括用餐區、戶外健身區、戶外瑜伽等。
無邊泳池景觀
位于高層的健身房能夠讓您一邊在跑步機上揮灑汗水,一邊欣賞城市美景。而具有高度私密性的空中俱樂部能夠滿足公司會議、家庭聚餐、節日慶祝等多種需要。
五星級酒店貼心服務
由精心訓練的專員提供酒店級一站式管家服務,你能想得到的任何一個小細節,服務團隊都能爲你打理妥帖:包括到達服務、行李服務、雨天服務、快遞接收、出行安排、設施預定、私人教練、餐廳預訂、幹洗服務、寵物服務、派對服務等等。讓你享受至尊一般的感覺
頂級用料,至尊品質
廚房套櫃:意大利Ernostormeda櫥櫃
家用電器:德國美諾
衛浴用品:德國唯寶、意大利Antonio Lupi衛浴(主人房)
浴室配件:Hansgrohe Axor Citterio
衣櫃:Caccaro
客廳/餐廳地板:土耳其大理石
臥室地板:美國胡桃木
客廳層高:3米
烏節路地區和卡斯加登路地區
位于鉑瑞雅居(Boulevard 88)附近的購物中心的質量和品種衆所周知且高檔。東陵購物中心和論壇購物中心距離酒店不到3分鍾步行路程。,包括Delfi Orchard購物中心和懷舊的遠東購物中心。
烏節路(Prime Orchard)地區
鉑瑞雅居(Boulevard 88)公寓位于世界首屈一指的購物區烏節路的邊緣,交通便利。位于世界級豪華和購物目的地的中心 !許多購物和娛樂娛樂選擇等待著您,目的地衆多,令人羨慕。烏節路購物區正在進行一項重大研究,以便在未來進行改造。在這一切的核心。不間斷的脈動餐飲選擇和精選美食,以滿足您的各種需求。無可挑剔的服務和熱情好客等待您的光臨!
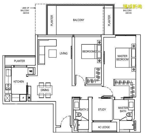
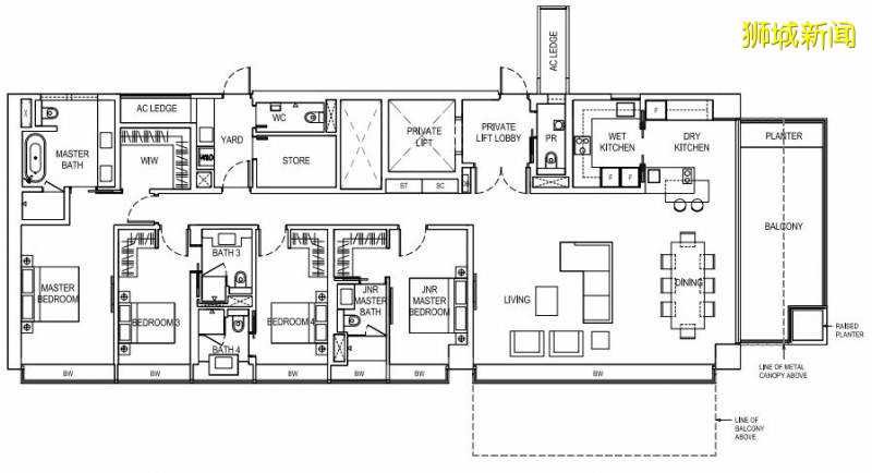
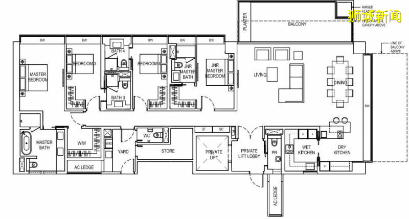
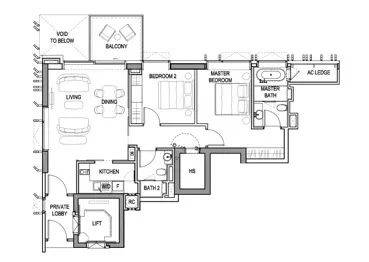
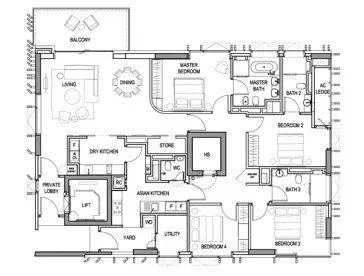
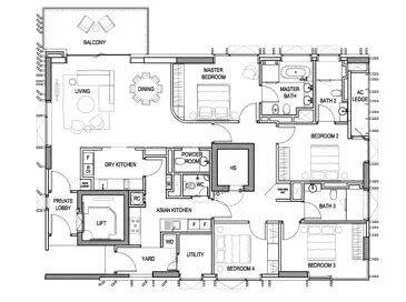
公寓單位
平面圖
2臥房+書房(A1)
2臥房+書房(A2)
3臥房(B1)
3臥房(B2)
4臥房(C1)
4臥房(C1a)
4臥房(C2)
4臥房(C2a)
公寓價格
3 Orchard by the Park
樓盤介紹
3 Orchard By-The-Park位于新加坡核心地帶第10郵區——烏節。永久地契項目,占地面積達62,179sqft,由三棟25層高的住宅建築樓組成,共有77個獨立單元。開發商YTL和設計師Antonio Citterio之間的合作推出,TOP已于2017年獲得。
該項目概念化了意大利建築師和設計師Antonio Citterio對“天空中的別墅”的設想,並提供了精選二至四居室的住宅,每間都擁有定制的室內設計,以及保留了住戶發揮自己獨特創造性的余地,可以在屬于自己的理想家園中添加自己的獨有元素。
樓盤詳情
樓盤名稱 3 Orchard By-The-Park
開發商 YTL Westwood Properties Pte Ltd
産權期限 永久
完成時間 2017
單位數量 77
起步價 S$8,000,000
面積 1066英尺起
樓盤亮點
3 Orchard By-The-Park讓您置身于新加坡的中心,住在超豪華住宅區,生活在世界上最令人垂涎和最具盛名的房地産之一,體驗烏節林蔭大道上的純粹樂趣,感受到熱帶郁郁蔥蔥的環境,您將在這裏體驗您意想不到的完美生活。優越的地理位置,標志性的購物天堂以及豪華酒店——烏節路,該永久地契住宅項目將開啓您極具享受的奢華住宅生活。
鑒于它是Citterio的設計,請放心,所有必要的設施都經過精心設計,包括空中泳池、青翠花園等,當然還有設計師在使用自然光和空間方面的標志性光彩,塑造您極具活力的城市生活空間。
公寓設施應有盡有——抵達廳、胡姬花園、圖書館、用餐區、戶外陽台、健身房、遊泳池、按摩池、兒童戲水池、休息區、保安室等等。
主要特色
地理位置優越,位于市中心
坐落在綠樹成蔭的烏節林蔭大道上
永久業權!外國人購買無限制
僅77個住宅單元
即將開放的Orchard Boulevard MRT
就在公寓地址附近
世界著名意大利建築師Antonio Citterio設計
東南亞第一個住宅項目
郁郁蔥蔥的景觀花園,種類繁多的植物
展示單元配備了世界領先的意大利品牌家具Armani Casa
特別設計的生活方式廚櫃和木制特色牆
私人電梯大堂
除了二樓的單位外,所有單位都設有陽台
2,3和4間臥室設有花園和/或陽台
閣樓單元設有雙人居住空間,配有花園或私人遊泳池
私人花園露台通往公寓
24小時保安
公寓規劃圖
樓盤附近學校
小學
立化小學(1.7公裏)
英華學校(1.9公裏)
新加坡女子小學(2公裏)
中學
萊佛士女子中學 (1公裏)
克信女中(1.4公裏)
顔永成中學、女皇鎮中學(1.6公裏)
新加坡女子中學(2公裏)
初級學院
公教初級學院(2.7公裏)
大學
新加坡國立大學(1.9公裏)
國際學校
ISS 國際學校 (0.6公裏)
挪威國際學校、芬蘭國際學校(0.8公裏)
瑞典國際學校、采士華國際學校(烏節)(1.5公裏)
漢合國際學校(2公裏)
公寓單位
每個單位的空間都非常豪華,舒適和寬敞。
單位完全安裝並配有世界領先的意大利品牌家具(德國美諾Miele等)。特別設計的生活方式廚櫃,木制boiserie功能牆。
公寓價格
*需要時間執行購房意向書或等著資金的買家可以采用延遲付款計劃
主力戶型
2居室
戶型 A1
面積: 99平米
戶型 A2-b
面積: 108平米
戶型 A2-a
面積: 99 平米
戶型 A2-c
Area: 107 平米
4居室
戶型C2-a
面積: 210 平米
Type C2-b1
Area: 210 sq m / 2,260 sq ft
#10-03 to #18-03
戶型 C2-b1
面積: 210平米
這麽好的地段
錯過就再也“搶”不到啦!


























