新加坡長年上榜各種世界排名榜單,總是第一:最安全、最富有、最具競爭力等等!
這些早已經耳熟能詳了。
但是新加坡有一個世界第一,總是被人遺忘,說起來卻不得不服。
那就是 全球最“綠”城市
不好意思,圖放錯了,是這個
新加坡的綠不但賞心悅目,還被世界各地爭相模仿,教科書一般的綠色城市!
新加坡有大大小小70多個有正式命名的公園,如果算上沒有名字的小花園,一共340個!
居民區平均每500米就有一個公園。
綠化面積占國土面積的45%,綠化覆蓋率達到80%以上。
在新加坡砍伐樹木都必須嚴格經過批准!
這還不夠,好多建築物都被綠了!我們一起圍觀一下。
新加坡皮克林賓樂雅酒店,仿佛在原始森林裏懸挂著的鳥籠,賞心悅目!
豪亞酒店(Oasia Hotel)把垂直綠化做到了極致。
CapitaGreen高透明度的幕牆,讓樓裏的植物曬到足夠的陽光,樓頂仿佛一朵盛開的鮮花。
濱海灣花園,現實版的阿凡達世界!
星耀樟宜,直接把森林瀑布搬進了室內!
除了這些人造的綠色,最厲害的是新加坡中部有幾個超級大的自然保護區,23%的國土屬于森林或自然保護區。
那才是大自然的饋贈!
其中最大的,是中央集水區自然保護區。位于新加坡的地理中心,占地約3000公頃。
這裏有水庫、有熱帶雨林!是新加坡名副其實的綠色心髒。
中央集水區的附近,空氣好生態好。
又有不少可以徒步健身的自然公園,所以成爲了炙手可熱的居住地。
尤其是中央集水區南部武吉知馬美世界一帶,既靠近自然保護區,又靠近市區。是最爲搶手的地方!
(圖源:URA)
根據2019年政府發展總藍圖,2021年開始建設的武吉知馬-梧槽綠色走廊,將會連結裕廊花園、新加坡植物園、濱海灣花園,總長達11公裏。 這一區以後房子肯定更貴了!
今天就要推薦一個美世界的新樓盤,趁現在入手,坐等未來升值吧!
該樓盤發展商有創意的把“森林浴”的概念帶回了家,讓您足不出戶便可沐浴在森林之中。
享受清風襲來,感受美如畫的中央庭院,在家的感覺如此治愈!
蔚庭.軒 VERDALE
蔚庭.軒(VERDALE)名字的來源也是頗有意境:
“蔚”,取意自蔥郁繁茂的周邊環境,也有荟萃、盛大的意思,更是項目舒適自然、生態宜居等設計理念的靈感來源;
“庭”,取家庭之意,也點出項目庭院式設計的精巧與舒適;
“軒”,取其優雅、高尚含義,襯托出項目的精致典雅。
項目要點
1. 地處優越的武吉知馬私人住宅區、美世界一帶
2. 政府規劃大轉型美世界這一帶,勢必帶動這一帶房産價值
3. 著名發展商中建地産和中海地産聘請大牌建築設計公司P&T Consultant
4. 靠近自然保護區、武吉知馬自然保護區、武吉巴督公園等
5. 低密度、低容積率住宅小區,隱私性好
項目概況
項目名字:蔚庭.軒
發展商:中建地産和中海地産
地契:99年
項目地址:美世界一帶,狄蘇莎道
占地面積:約14234平方米
建築設計公司:P&T Consultant Pte Ltd
項目總單位/樓層:總共258個單位,7棟5層
戶型:1臥室到豪華5臥室+書房(2層複式)
交房時間:2024年
01 參考價格
最重要的參考價格來了:
1房79.1萬新幣起,2房99.8萬新幣起 3房15X萬新幣起,4房24X萬新幣起 (X表示任何數字) 附注:以上爲參考價格,具體價格以發展商9月19日開盤時公布價格爲准
02 地理位置介紹
蔚庭.軒靠近市區線美世界地鐵站,靠近綠樹成蔭、生機勃勃的武吉知馬自然保護區、毗鄰美世界社區和興建中的鐵路走廊。
自然綠意、社區活動和曆史意義的鐵路走廊完美結合,構成它的獨特性格魅力,將進一步提高美世界這一帶的魅力。
駕車10分鍾可前往新加坡植物園,靠近美食街張振南路(Cheong Chin Nam Road),可以約家人或好朋友一起去那裏享受特色美食。
喜歡戶外運動朋友們,如爬山、徒步、跑步等,一定喜歡住美世界這一代,周圍環境蔥郁、蔚庭.軒靠近武吉知馬山,直接去武吉知馬山享受真正的“森林浴”,或者約家人或朋友們一起去徒步,養成健康的生活方式。
03 優質的教育配套資源
1公裏範圍內武吉知馬小學 1-2公裏範圍內有培華長老會小學
由于蔚庭.軒靠近武吉知馬路一帶,有知名學校包括排名第二的初級學院華僑中學(相當于國內高中)、國家初級學院,義安理工學院、新躍社科大學(SIM University)。
對于外派到新加坡工作的家長們或有興趣送小孩讀國際學校的家長們,這一帶有瑞士國際學校、荷蘭國際學校、韓國國際學校和采士華國際學校等。
04 政府規劃和轉型美世界
政府規劃轉型美世界這一帶,勢必給這一帶注入新的活力。
市區重建局URA在2020年6月宣布以雙信封的形式招標大地塊,預計打造一個集商場、巴士總站、地鐵站、住宅爲一體的大型綜合項目。
有多達20000平方米的大型商場,商場預計會有大型超市、餐館、銀行分行、補習中心等,將進一步提升美世界一帶的交通和生活便利性,勢必帶動周邊的房産增值。
政府計劃興建武吉知馬民衆俱樂部、包括巴刹、熟食中心、室內體育館、社區圖書館、樂齡人士活動中心,能滿足您的日常生活需要。政府將進一步完善周邊公園連接道和綠色走廊,讓喜歡戶外運動的朋友們享受大自然樂趣。
05 與豪宅同款設計 烏節路
來看看蔚庭.軒整體外觀圖,很多人覺得外觀整體感覺像極了烏節路豪宅項目The Nassim,該項目總價約700到2500萬新幣,據說相似度達70%,看起來妥妥的豪宅感,只能說現在設計師一直不斷的追求精益求精
The Nassim
06 周圍美食林立
著名的美食街張震南街Cheong Chin Nam Street就在這一帶,靠近美世界地鐵出口。 美食餐館如文東記(海南雞飯)、坤肉骨茶、武吉知馬沙煲活田雞粥、珍記海鮮、潮州菜、西餐、五星餐館(廣東、福建菜)、印度咖喱飯、萬合樓小吃、韓國烤肉店、韓式炸雞等。 街對面的Beauty World Centre還有很多中餐館、韓國餐館、日本餐館,吃貨朋友們一定會很喜歡這一帶,物美價廉!
07 完美儲藏空間解決方案
發展商花心思巧妙打造的儲藏空間解決方案(Smart Home Solution) 4A’S The Atelier The Armadio The Alcove TheArmoire 讓有限的空間得到最大化的利用,將實用和美觀完美結合,從小細節入手,用心打動買家!
整體項目而言,通過簡約創新的設計,將實用和美觀完美結合,爲業主們帶來優雅、貼心、實用、舒適的高品質住宅。秉承找工匠精神,把房子當做藝術品一樣精心打磨,賦予房子自帶靈魂。
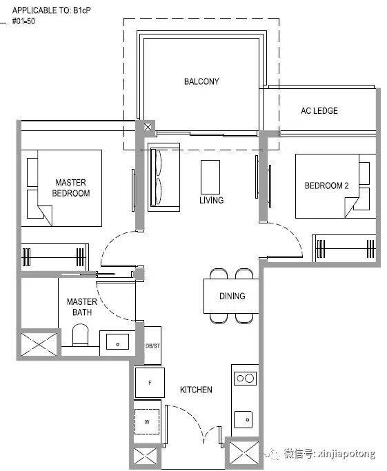
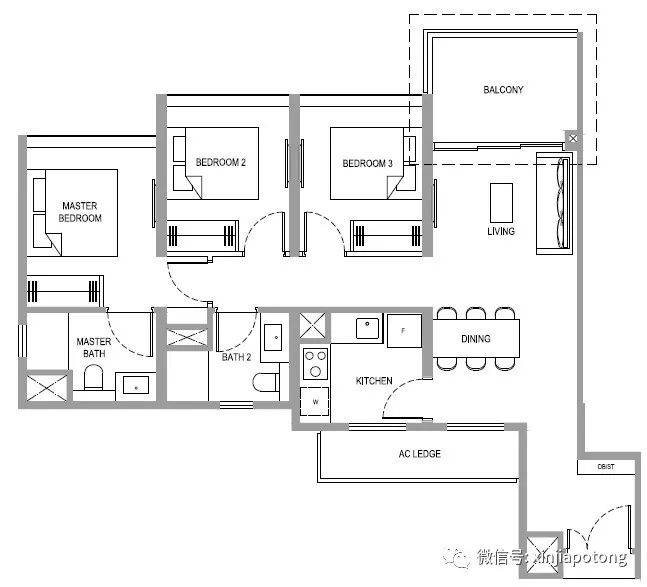
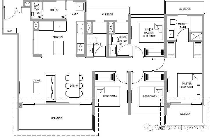
08 戶型圖介紹
1房,面積爲44平方米,高效戶型,適合單身人士或年輕情侶
2房1衛,面積爲57平方米,高效實用的啞鈴戶型(節省走廊)
2房優質型,面積爲70平方米,帶封閉式廚房,配大陽台(可擺餐桌)*
3房,面積爲88平方米,帶窗口的封閉式廚房,通風性好
3房優質型,面積爲96平方米,帶窗口的封閉式廚房,通風性好,帶保姆房/儲藏室,喜歡的三房戶型設計
4房豪華型,面積爲132平方米,大客廳和餐廳分區,主臥可以直通大陽台,廚房中央配置大島台(通常要豪宅和別墅才配備的),豪華感十足
發展商提供的漂亮樣板房照片













































