新加坡一直都很受到富豪的青睐。
作爲一個國土面積這麽小的地方,竟然有25名身家超過10億美元的億萬富翁!
瑞士銀行(UBS)和普華永道(PwC)前兩天聯合發布了—— 《2019年億萬富翁報告》
這是一份分析人類財富金字塔頂端那些人的報告。 讓人吃驚的是,即使在疫情之下,新加坡億萬富豪(身家十億美金以上)的人數增加了3人,總財富去年增長40%至1026億美元(約1390億新元),幅度僅次于中國是整個亞太地區第二高的。
全球億萬富豪的 財富增長最大的主要領域有
科技、零售、工業、醫療等 也就是新加坡有25人擁有總計1026億美元的財富。真,一人財富頂上千萬人財富。
雖然瑞銀和普華永道沒有在報告中公布具體億萬富豪的名單。
不過,根據《福布斯亞洲》(Forbes Asia)8月份公布的新加坡50大富豪榜,我們基本上能看出這些人是誰。
新加坡富豪榜前25名
(圖源:福布斯亞洲官網)
這裏面有我們不熟悉的,也有非常熟悉的。前25名中的,這些都是來自中國的富豪面孔。
第1名:張勇夫婦,火鍋連鎖店海底撈集團創始人及主席
第2名:李西廷,中國深圳邁瑞醫療聯合創始人兼董事長
第7名:李小冬,冬海集團Sea的首席執行長兼創始人
第11名:葉剛,冬海集團Sea的聯合創始人和營運長
第25名:David Chen,冬海集團Sea的聯合創始人和電商業務Shopee的首席産品官
看完榜單之後,不禁感歎來自中國的富豪們年輕有爲,單是冬海集團就出了三位“十億美金俱樂部”玩家。
他們選擇了來新加坡,是被新加坡大環境所吸引,而創業成功又離不開新加坡的優良營商環境和對于創業的支持。
疫情下,新加坡更是成爲很多公司海外投資的重點。
中國社交媒體和遊戲公司騰訊(Tencent)計劃把新加坡作爲區域中心。
電商巨頭阿裏巴巴則正在探討向本地科技公司Grab投資30億美元(41億新元)
字節跳動(TikTok的母公司)有意以新加坡爲戰略據點,向亞洲其他地區和全球市場擴張,未來三年將投資數十億美元,
美國亞馬遜要在新加坡繼續擴張,拿下三層樓作爲區域辦公室。
難怪,新加坡被評爲“疫情後最值得投資的國家”。在2020年前4個月中,經濟發展局EDB總共獲得了近130億新幣的投資承諾。
除了商業投資,新加坡從6月之後房地産市場行情也一路飙漲。
2020私人房産銷售情況 (圖源:todayonline)
新加坡優質的教育資源、安全的環境以及舒適的生活等等都是海外買家趨之若鹜的原因。
另外,很多買家認爲目前在新加坡購房性價比很高。
如果你既追求投資回報,又對生活品質有著高要求,還考慮到子女的教育和未來的買家,這次有一個好項目推薦
綠墩雅苑
地處第10郵區,尊貴地址Leedon Height
稀缺的永久地契項目,而且是超大占地面積的
靠近優質洋房GCB住宅區,新加坡最高等級的別墅
馬路對面就是新加坡植物園,還有鄧普西山的美食休閑區
有2棟在新加坡排名首位的南洋小學一公裏內
名校華僑中學、萊福士女子小學、南洋女子中學、國家初級學院離項目不遠
采用頂級家用電器,如進口大理石地板、衛浴采用德國的Axor、廚房采用瑞士的VZUG
01 地理位置極其優越
地處中央核心區第10郵區,毗鄰新加坡植物園、鄧普西山美食休閑區、荷蘭村,駕車只需5-15分鍾就可以到達烏節路、中央商業區,坐擁名校南洋小學和萊福士女子小學等頂尖學校的教學資源。距離新加坡版硅谷-緯壹科技城(Biopolis)和啓彙園(Fusionpolis)咫尺之遙,潛在租客來自這些生物制藥研發科技公司。 綠墩雅苑由7座獨立的住宅樓組成,共有638套1臥室到四臥室。設計師利用占地面積大的優勢,巧妙的利用寬闊的戶外空間,讓您在小區裏就可以有大自然親密接觸,給您帶來平和安甯的享受,仿佛置身于度假屋般悠閑愉悅。
02 稀缺的永久地契和大面積地塊
新加坡的住宅類房屋地契分99年、999年、永久地契,主要是以99年地契爲主,政府售地只給最多99年地契,所以永久地契絕對屬于稀缺的産品,可以世世代代傳承給您的下一代子孫們。房産恒久遠,代代永流傳,許多人或許都有“一屋代代住”的想法,既盼屋子生財,更求屋子旺子旺孫,代代相傳下去。
綠墩雅苑占地面積高達316718平方英尺,接近5個足球場的大小,在新加坡屬于難得的永久地契大型地塊,大面積意味著園林設計師有更大的空間安排小區綠化公寓配套設施,買公寓不止是房子本身,完善的配套設施絕對給房子加分,該項目的配套設計極爲完善,多達33項配套設施,
03 第10郵區向來是高檔私宅買家青睐的地區
荷蘭村,武吉知馬-富人聚集區所在地,周圍以新加坡最高等級的別墅-優質洋房爲主(GCB),環境清幽,低密度住宅區,喜歡注重隱私的朋友們最愛的地點之一,靠近世界文化遺産-新加坡植物園和鄧普西山Dempsey Hill,距離烏節路購物街只需約5分鍾車程,到中央商業區CBD、濱海灣約15分鍾車程。
世界文化遺産-新加坡植物園的漂亮照片分享
可以稱作爲名副其實的明星地段,很多名人選擇定居這一帶,比如功夫巨星李連傑早就在武吉知馬買了優質洋房、新加坡國寶級歌手孫燕姿、全球知名的投資大師羅傑斯(已經移民定居新加坡)、愛馬仕一姐蔡欣穎、房地産大亨、知名企業家和藝人等都選擇買這一帶優質洋房定居于這一帶,到底這一帶爲什麽這麽有吸引力呢?周圍環境清幽、靠近排名靠前的小學、中學、初級學院是其中原因。
04 荷蘭村風情街轉型中,升值潛力大 廣受本地和外籍人士歡迎的荷蘭村,未來將出現集電影院和超級市場于一身的綜合發展項目。
上世紀三四十年代,荷蘭村是英軍及其眷屬居住與活動的地方。現在的荷蘭村逐漸變身爲本地人探索異國美食,享受歐陸風情的好去處。
這裏的排屋、餐廳、酒吧都透露著濃濃的小資風情。
在新的規劃之下,未來的荷蘭村將會是新商場和老店屋無縫銜接,讓荷蘭村更充滿活力。
05 周圍名校雲集
靠近小學排名數一數二的南洋小學、萊福士女子小學、聖瑪格列中學、南洋女子中學、華僑中學、國家初級學院等,國際學校如英華國際學校ACS International、華中國際學校都在綠墩雅苑附近,一條龍式解決您小孩教育這塊的需求。
06 智能家居走進您生活
發展商配置智能家居系統,每戶單位配置智能電子鎖,如智能空調控制系統,提高電量使用效率,可以通過視頻和來訪訪客溝通,可以通過應用程序預定公寓配套設施,智能包裹解鎖,大戶型單位配置智能鏡子,除了當鏡子用之外,可以變爲一個數字觸摸屏幕,可以觀看您想看視頻、浏覽想看的網頁等等。
07 仁恒置地和香港置地強強聯手
仁恒置地專注于高檔住宅項目開發26年,在中國16個高增長城市建立開發高端住宅、商業、辦公樓及綜合項目,主要在上海、深圳、天津、成都、武漢、蘇州、杭州、海口、濟南、三亞等城市,香港置地MCL Land作爲世界500強的百年企業,深耕房地産行業多年,在新加坡已經開發多個大型公寓項目
08 漂亮小區圖片大放送,供您欣賞!
風景如畫,令人陶醉,綠化經過精心打造,呈現一幅心曠神怡的景象。
入口大廳處精巧的一線禅設計與水流的平衡統一,給來賓營造甯靜祥和的氣氛。
雅致的社交場所,可會友,可交際。甯靜的氛圍加上秀美風景,歡迎親朋好友到來。
獨一無二的大餐廳將家庭娛樂提高到全新的高度,從前廳到住宅,住戶足之所至,無不精心設計,以追求完美。
闡釋空間,定制生活。
布局巧妙周到。
附注:以上部分文字介紹和圖片引自發展商中文介紹
【各款樣板房視頻】
2+書房 76平方米 3房優質型,126平方米
4房豪華型,139平方米
各款樣板房視頻:2+書房 76平方米 3房優質型,126平方米
4房豪華型,139平方米
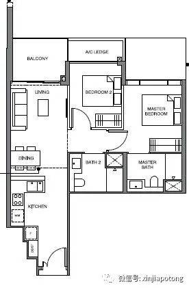
09 戶型圖和參考價格 一臥室,實用面積爲44平方米,價格134.7萬新幣起,現在促銷價121.8萬新幣起
一臥室+書房,實用面積爲50平方米,價格155.3萬新幣起,現在促銷價146.08萬新幣起
兩臥室一衛,實用面積爲57平方米,價格170.1萬新幣起,現在促銷價158.1萬新幣起
兩臥室兩衛,實用面積爲66平方米,帶封閉式廚房,價格185.4萬新幣起,現在促銷價174.4萬新幣起
兩臥室+書房,實用面積爲76平方米,可封閉式廚房,價格213.9萬新幣起,現在促銷價12.8萬新幣起
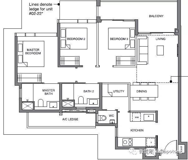
三臥室入門款,實用面積爲89平方米,帶封閉式廚房,價格248.9萬新幣起,現在促銷價234.1新幣起
三臥室優質型,實用面積爲97平方米,帶封閉式廚房,價格275萬新幣起
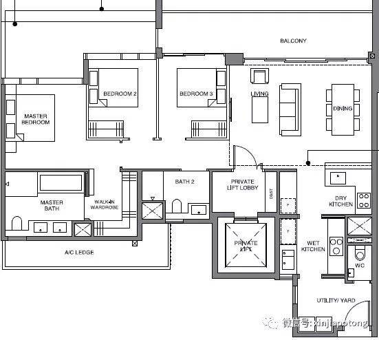
三臥室豪華型,實用面積爲126平方米,幹濕雙廚房,私人電梯入戶,價格377.4萬新幣起,現在促銷價354.7新幣起
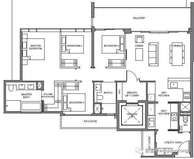
四臥室豪華型,實用面積爲139平方米,幹濕雙廚房,私人電梯入戶,價格391萬新幣起



















































