Menu
快讀
  • 旅遊
  • 生活
    • 美食
    • 寵物
    • 養生
    • 親子
  • 娛樂
    • 動漫
  • 時尚
  • 社會
  • 探索
  • 故事
  • 科技
  • 軍事
  • 国际
快讀

【熱賣樓盤】MidWood, 西部的隱藏寶石-Hidden Gems, 武吉知馬親自然原生態雅居

2021 年 6 月 13 日 古玩梦想家

如果您的理想住所是周邊有山有水,風景優美的地方;周邊都是私宅,別墅的高檔住宅區; 環境清幽又不失生活的便利性,地鐵,商城近在咫尺; 性價比又比較高,兩房基本上100萬內買得到。那就看下Midwood吧。

Midwood at Hillview

Play

山景坡(Midwood Condo)是一個全新的項目,位于新加坡第23區武吉知馬上段的山景坡(Hillview Rise)。這裏屬于新加坡西部,環境清幽、空氣清新,被新加坡幾大自然保護區環繞,如武吉知馬自然保護區,武吉班讓公園,小桂林,牛奶山公園等。

項目網站請掃描:

Image

midwood condo

山景坡 Midwood Condo:

Image

Midwood  

01

項目信息

Image

項目名稱:   山景坡 Midwood Condo

發展商:       豐隆集團(Hong Leong Group)

建築師:         DP Architects Pte Ltd

項目地址 :     8 & 10 Hillview Rise

地契:            99年

區域:            D23 -山景-武吉巴督-武吉班讓

建築面積:      14,296平方米

項目規模:     兩棟高達29層的高樓(564 間)

預計交房時間:  2022年9月

山景坡(Midwood)由知名開發商豐隆集團(Hong Leong Group)所開發的,占地面積約爲14,296.1平方米,它正面就是我們熟悉的鑫豐山景碧苑(Kingsford Hillview Peak)。整個項目由兩棟29層高樓和一個6層的停車場組成,一共564間單位。

02

地理位置

Image

山景坡(Midwood)距離市區線的山景地鐵站(Hillview MRT) 僅400米,步行5分鍾就可以達到。市區線(Downtown Line)爲新建的一條線路,快速直達中央商務區及各大重要地點。

開車的朋友通過武吉知馬高速(BKE)和泛島高速(PIE),20分鍾內可達烏節路,中央商務區及其他重要地點。

Image

在線看房請掃描

03

商城及周邊

Image

住在山景坡生活非常方便,對面的HillV2商城擁有各種高級餐館,裏面的超級市場Market Place 提供日常所需的新鮮蔬菜水果。在附近的武吉班讓的熟食中心(Bukit Panjang Hawker Centre and Market),您可以找到最地道的本地美食,還有很多新鮮的水果蔬菜。

Image

04

周邊名校

Image

山景坡位于武吉知馬的上段,兩到三站地鐵或者15分鍾車程就可到達著名的武吉知馬學區。知名的小學和中學:萊佛士女小,萊佛士女子中學,華中,美以美女子小學和中學,國家初院,義安理工都在那裏。

山景坡的附近也有許多不錯小學,中學及國際學校。

1公裏內小學

聖嬰女校和平之後小學(CHIJ Our Lady Queen of Peace) 

1-2公裏內小學

武吉班讓小學(Bukit Panjang Primary School)

聯華小學(Lianhua Primary School)

聖安東尼小學(Saint Anthony’s Primary School)

大衆小學(Dazhong Primary School)

正華小學(Zhenghua Primary School)

2公裏內中學

法嘉中學(Fajar Secondary School)

瑞士村中學(Swiss Cottage Secondary School)

育林中學(Hillgrove Secondary School)

聖升英校(Assumption English School)

國際學校

德國歐洲國際學校

(German European School Singapore)

Image

05

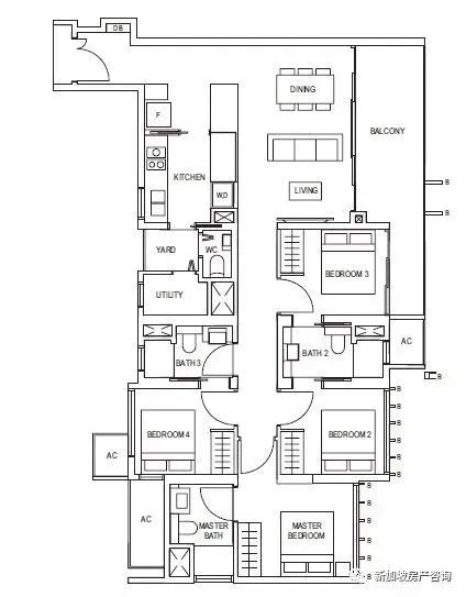
戶型及價格

一房一廳 實用面積(45平方米)價位80萬起

ImageImage

在線看房請掃描

Image

兩房兩衛 實用面積(59-64平方米)價位100萬起  

ImageImage

在線看房請掃描


Image

三房 實用面積(83-92平方米)價位137萬起

ImageImage

在線看房請掃描

Image

四房  實用面積(117平方米)價位190萬起

ImageImage

在線看房請掃描

Image

06

美圖欣賞

ImageImageImageImageImage
Image

●熱門樓盤精選 ●

01

現房系列

【即刻入住+延遲付款】現房集錦系列一  

現房集錦-烏節路篇  #超豪宅

【烏節路現房】 名築 Nouvel 18 促銷!折扣高達28%!#超豪宅

【豪宅促銷】水晶閣 The Lumos,烏節路核心地段永久地契,高達30%折扣,尺價僅2300!#輕奢豪宅

【華麗世家 Wallich Residences】 金融區核心地帶,新加坡最高樓,海景現房  #輕奢豪宅

新加坡這個超黃金地段,據說有99.9%的人都想住在這裏!#輕奢豪宅

【烏節路現房】 聖多馬士8號 8St Thomas 促銷!折扣高達36萬!項目實景視頻!#輕奢豪宅

【新加坡中央區的奢華項目】The Crest,名家設計,地標建築,5%首付即可入住 #輕奢豪宅

【Corals at Keppel bay】吉寶灣麗珊景 位于聖陶沙的公寓,享受奢華濱海生活#輕奢豪宅

02

期房系列

熱門地段

烏節路

【鉑瑞雅居 Boulevard 88】 烏節路商圈一顆璀璨的明珠,永久産權,代代相傳  #超豪宅

【熱賣豪宅】The Avenir · 未來 市中心永久地契奢華大盤,立化小學學區#輕奢豪宅

【RIVIÈRE 瑞雅嘉苑】, 新加坡河畔擁有保留建築的地標性公寓,步行去大世界地鐵站,立化小學一公裏!#輕奢豪宅

【HAUS on Handy】位于市中心烏節路總統府附近,步行兩分鍾到多美歌地鐵,擁有保留建築 #輕奢豪宅

武吉知馬

盤點新加坡最優質的學區房,連富豪名人都爭相搬進來~ #輕奢豪宅

【禦景苑RoyalGreen】武吉知馬別墅區永久産權公寓,名校學區 

#輕奢豪宅

【Fourth Avenue Residences (富雅軒)】第十區武吉知馬核心位置,Six Ave地鐵就在門口 #輕奢豪宅

荷蘭村

【Wilshire Residences】, 荷蘭村永久地契公寓,南洋小學學區,萊佛士女小1-2公裏!  #輕奢豪宅

【壹瀾庭One Holland Village】荷蘭村正中心唯一綜合性住宅項目,遠東力作 #輕奢豪宅

2020年新加坡人極致向往的住所,聽說長這樣… #輕奢豪宅

【Van Holland 】荷蘭軒,步行去荷蘭村地鐵站的永久地契項目,優雅精致#輕奢豪宅

【新盤推薦】Hyll on Holland,永久地契山水大盤,步行去荷蘭村地鐵村地鐵站#輕奢豪宅

東海岸

【美雅豪苑 Meyer Mansion 】傳承稀世名宅,坐擁海岸之心 #輕奢豪宅

【Amber Park】,  東海岸大型永久地契海景新公寓, 3分鍾步行到未來丹絨加東地鐵站 #輕奢豪宅

Seaside  Residences, 三分鍾步行到siglap 地鐵站,海景單位 二期隆重開盤 #大型海景樓盤

南部濱海區域

【Avenue South Residences】 首個瀕臨南部瀕水區GSW的項目,位于未來CBD的門戶位置,無限潛力#大型樓盤

【新盤推薦】牛車水超值樓盤The Landmark,14 號開盤,開始預約!#超值樓盤

【新盤促銷】萬寶軒 One Pearl Bank ,市中心地標建築,都市裏的花園,凱德集團代表作! #未來三線交彙

【Kent Ridge Hill Residences】明天開盤!歡迎預約!擁抱大自然,背山面海的景觀公寓,緊鄰國大和西部商圈 #低密度舒適樓盤

綜合樓盤

【綜合項目】桦麗居The Woodleigh Residence, 盡享自然之美,  綜合發展項目之瑰寶

【盛港嘉園Sengkang Grand Residences】位于盛港中心的超級綜合項目

03

學區房系列

【學區房系列】 新加坡政府名校錄取“揭秘”

【學區房系列】 新加坡如何進入“天才班”學校

【學區房系列】 新加坡如何進入“天才班”學校 – 南洋小學

盤點新加坡最優質的學區房,連富豪名人都爭相搬進來~

【Parc Clematis 錦泰門第】 最新促銷!金文泰唯一新盤,南華/啓發學區房,共享社區理念 教育中心,醫療中心

【新盤更新】JadeScape順福軒,近麥裏芝蓄水池的山水景觀大盤,公教小學學區,萊佛士書院

【樂賽學區房】Affinity At Serangoon 大型公寓項目,近Serangoon/NEX

【KOPAR】核心第九郵區最超值的公寓,紐頓地鐵旁,名校英華,聖約瑟小學學區

【Sloane Residences 】Balmoral Road 巴慕樂路中段,擁有曆史記憶的永久産權住宅,名校學區

【Park Colonial】一分鍾步行去兀裏(Woodleigh) 地鐵,斯坦福美國國際學校就在門口!

【新盤更新】Forett at Bukit Timah 福瑞軒武吉知馬大型永久地契公寓,培華學區,享受美世界發展的無限潛力

【MayFair Gardens】武吉知馬別墅區,雙名校學區房,英倫風格建築

【學區房系列】 西部樓盤及學區速查(D05, D21,D23&D24)

【學區房系列】 中央區樓盤及學區速查(D09 ,D10和D11)

【學區房系列】 目前熱門 第21區-武吉知馬上段 學區項目總結

04

超值熱賣

【The M】城市中心,萬象之上,絕佳投資樓盤

【預售分析】 Penrose年度最熱樓盤, 預售情況分析!

【Stirling Residences 尚景苑】映在星空下,浮于塵世上 的甯靜奢華 女皇鎮地鐵的大型項目,樂享無敵都市景觀

【新盤更新】JadeScape順福軒,近麥裏芝蓄水池的山水景觀大盤,公教小學學區,萊佛士書院

【Treasure At  Tampines】步行到四美地鐵站, 靠近成熟社區淡濱尼,2019 最便宜的大型公寓

【新盤推薦】國大金文泰熱門樓盤悅文荟,華業集團力作

相關文章:

  • Midwood---新加坡武吉知馬原生態森林雅居
  • Midwood Condo(山景坡)|位于新加坡最大的自然保護區,武吉知馬原生態森林雅居
  • 新加坡GEMS國際學校 GEMS World Academy Singapore
  • 山景坡公寓新加坡武吉知馬原生態森林雅居
  • 【山景坡MidWood】武吉知馬親自然原生態雅居
  • 極兔速遞電子面單API接口C#
美食

發佈留言 取消回覆

發佈留言必須填寫的電子郵件地址不會公開。 必填欄位標示為 *

©2026 快讀 | 服務協議 | DMCA | 聯繫我們