這兩天新幣兌人民幣持續下探,11月17日那天竟然跌破了4.7!
之後就持續在4.7之下徘徊,達到了近4年的新低。 新幣兌人民幣一周走勢
新幣兌人民幣一個月走勢
新幣兌人民幣一年走勢
如果從一周、一個月、一年來看,新加坡兌人民幣都在一直小幅波動中下滑。
最近幾天跌破了4.7,在11月20日淩晨4點左右達到了4.69的幾年中新低。
上一次出現這個數值,還是在2018年1月份,當時彙率呈現近5年的最低值是4.6855。
(圖源:Xe currency)
大家可能感到納悶,前幾天新加坡金管局才剛剛確立新幣長期升值的目標,怎麽還不升反降。
這主要跟國際大環境分不開,11月16日在岸、離岸人民幣雙雙創2021年6月新高。
不過預計這種情況不會持續很久,畢竟新幣的長期目標是要升值的。
新加坡金融管理局10月14日發布半年一度的貨幣政策聲明,收緊新元貨幣政策。
早前3月因爲受新冠疫情影響采取了寬松的貨幣政策,新幣不升值。
現在基于經濟複蘇預期,要新元升值啦~ 那麽最近,就是想要把人民幣換成新幣的最後好時機。
趁著彙率下降,想要在新加坡安家的小夥伴,可以在這段時間抓緊出手,可以省下不小的一筆資金呢~
新加坡的樓市持續火熱,還有很多開發商推出重磅折扣 ×
在新加坡的城市中心一一第7郵區武吉士的密駝路(Middle Road) 一帶,有一處由知名上市永泰控股(Wing Tai Holdings)傾力打造的99年産權豪華綜合項目一一The M。
去年一經推出就火爆全城,最近剩余單位更有24個月租金保證!
1臥室+書房
發展商折扣$91,200新幣
相當于兩年租金保證
2臥室+書房
高達$144,000折扣
相當于兩年租金回報
*發展商推出的折扣只限首10套購買者
無論你是新加坡本地人,還是曾經來過或是即將來要來新加坡的人,你一定聽說過武吉士 (Bugis)這個地方。
這裏不僅僅有大大小小的購物中心,有美味中餐、 本地美食及西式餐廳,還有缤紛時尚的拍照聖地 一一哈芝巷……
試想一下,如果你可以安家在這附近,這些繁華熱鬧的地方都將近在咫尺,會是怎樣的便利奢華生活呢?
The M
地址:新加坡第七郵區 30,32,34,36,38 Middle Road(密陀路)
占地面積:約7,462.7平方米
總套數:522套單位(3棟20層高樓和1棟6層的低樓組成)
戶型:1臥房—3臥房
單位面積:409平方尺—904平方尺
容積率:4.2 交房日期:2024年3月
地契:99年
車位:261(另有132個單車停車位)
開發商:永泰控股(Wing Tai Holdings)
01 疫情下的第一個冠軍樓盤
說起The M,大家記得去年它推出的時機恰逢疫情來襲,卻創下銷售記錄!
《不受新冠病毒疫情影響,全新豪宅項目TheM已成功售出70%!》的新聞刷屏。
去年2月知名開發商永泰亞洲(Wing Tai Asia)宣布好消息:位于密駝路(Middle Road)的新豪宅 項 目 T h e M , 在 剛 剛 結 束 的 周 末 ( 2 月 2 2 日 及 23日),成功售出了超過360套住宅,約占總數(522套)的70%。
據悉,大多數的買家爲30多歲及40多歲的新加坡公民,包括自住業主和投資者。永泰物業管理的營銷經理表示:“我們相信,這表明了購房者對我們的房産及我們采取的預防措施來阻止COVID-19病毒以任何形式的傳播有信心”。
TheM是一個位于核心中央區(CCR)的私人公寓項目。ERA Realty Network的核心執行官認爲The M的銷售成果“打破了記錄”。
“我們已經有一段時間沒有見過這樣的核心中央區的房産項目能達到這麽好的銷售結果了”
02 投資自住兩相宜
The M這一全新項目,將由3棟20層樓高的塔樓及1棟6層樓高的塔樓組成,其中1樓將作爲商業用途,此外還將打造522套奢華住宅。
戶型則會有1臥房到3臥房雙鑰匙單位等多種可選,將成爲單身人士及不同大小家庭的理想住家選擇。
項目所在武吉士作爲市區濱海灣的重要延伸區,屬于政府重點規劃區域。
03 絕佳地理位置
占據著城市中心的絕佳地理位置,The M周圍的交通網絡十分發達。包含武吉士(Bugis)、濱海藝術中心(Esplanade)和政府大廈(City Hall)在內的3個地鐵站就在附近,爲你提供更多的出行選擇。
若是喜歡自己駕車出行,附近主要道路及快速路如東海岸快速公路(ECP) 、中央快速公路(CTE)和亞逸拉惹快速公路(AYE)。
此外武吉士還遍布著大大小小的商場。
周邊交通:
• Bugis MRT • Esplanade MRT • City Hall MRT 周邊商場&超市: • Bugis Junction • Bugis+ • Suntec City Mall • Raffles City • Peninsula Shopping Center • Millenia Walk • Funan DigitaLife Mall • Esplanade Mall • The Central • Marina Square • Cold Storage Bugis Junction • NTUC Fairprice (Rochor Centre) • Jason’s Market Place
04 高品質的教育
如果家中有學齡階段的孩子,住在The M將能夠享受到多個知名學校提供的優質教育,例如:史丹福小學(Stamford Primary School) 、 聖瑪格烈小學(St Margaret’s Primary School)及英華小學(Anglo-chinese School (Primary))等。
05 小區欣賞
The M 分別打造了兩個露天平台,分別位于停車場上方的區域和6層建築的天台上,公寓的基礎設施都分布在這兩個地方。
The M 融合生活與工作的全新居住概念,成就事業與夢想。並全面引進智能家居,打造全方位智能生活,時代精英式的生活方式。
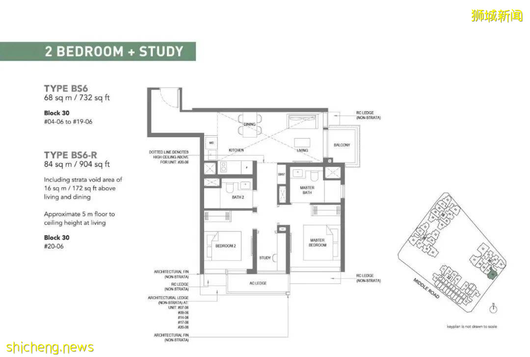
06 戶型推薦
1臥室+書房 527-657平方英尺
2臥室 592-840平方英尺
2臥室+書房 732-980平方英尺
樓盤亮點總結
新加坡第7郵區、罕見的99年産權豪華綜合發展項目;
由上市房地産開發公司永泰控股(Wing Tai Holdings)傾力打造;
由3棟20層樓高的塔樓及1棟6層樓高的塔樓組成;1層爲商業用途
預計打造522套奢華住宅單位,滿足不同大小家庭的居住需求;
項目II近3個地鐵站:武吉士(Bugis)、濱海藝術中心(Esplanade)和政府大廈(City Hall)地鐵站;
附近主要道路及快速路如東海岸快速公路(ECP),中央快速公路(CTE)和亞逸拉惹快速公路(AYE)等能夠提供快速便捷的駕駛路線;
周邊有多個購物好去處,例如Bugis Junction、8ugis+等;
附近教育資源充足,如史丹福小學(Stamford Primary School)、至瑪格烈小學(St Margaret’s Primary School)及英華小學(Anglo-chinese School (Primary))等,能夠 爲孩子們提供高品質的教育;
武吉士附近最近的新建組屋
被定義爲“黃金地帶組屋“
預料將進一步帶動附近公寓升值
把握城市變革的機遇

























