近來,全球天然氣價格飛漲,原材料價格攀升的挑戰也日益嚴峻,精明的投資者紛紛尋找優質的房産避險。應對通脹,專家們通常給予的一大建議就是購置房産和貴重金屬避險,因爲房地産和貴重金屬爲有限資源,在貨幣供應過量和物價飛漲的時候,能起到保值作用。
新加坡的經商便利、政治穩定和低稅率,向來被富豪們視爲最好的財富“避風港”。上個月的新聞報道披露,單單是今年首9個月,新加坡賣出的新私宅銷量已突破1萬零111個,超越去年一整年售出的9982個。今年首9個月的私宅價格也上漲了5.1%,超越去年全年的2.2%漲幅。
疫情期間,已有許多富豪虛擬浏覽本地的房地産項目,期待新加坡一開放就飛抵進行交易。最近,新加坡逐步開放邊境,允許已接種疫苗旅客入境,這預計將掀起新一波的買氣。這些買家相信,越早進場將能搶占先機,走在大勢的前頭,掌握更好的主導權。
位于曆史悠久的富人區
衆所周知,新加坡地少人多,烏節路作爲新加坡最旺的購物大街,更是寸土如金。烏節路周邊的房地産供應極度稀缺,因此價格一直居高不下。禧盈軒位于經禧坡,緊貼烏節路,正是島國最頂級的富人區。
Cairnhill地名源自殖民地時代一位豆蔻農場主人Charles Carnie,他在烏節路臨近的山丘上經營豆蔻農場,因此山丘被稱爲Carnie’s Hill,地區也變成Cairnhill。
到了1900年,這一片山丘成爲許多經商致富的華人、歐洲人、猶太人、阿拉伯人等建造住所的首選,包括新加坡著名的橡膠大亨陳嘉庚和著名銀行家陳振傳都曾居住在此。如今,不少醫生、律師、建築師等專業人士也選擇Cairnhill,這些專業菁英爲此地增添了獨特都會魅力。一個世紀以來,Cairnhill已成爲新加坡優越地理位置的代名詞。
屬于稀缺的永久地契
禧盈軒屬于稀缺的永久地契産權,這也就是說,它將是一個能夠世代傳承、無限持有的房産。
新加坡自2007年便不再推出永久地契土地供發展商招標,因此永久地契土地成爲稀缺資源。物以稀爲貴,新加坡經濟越發達,國家越強盛,這些稀缺資源的價值也越高。
目前,市中心的房産供應大多屬于99年地契,這類房産的缺點是,地契期滿後就不再屬于屋主,必須歸還給政府。因此,99年地契的房産在使用20年後,價值可能遞減;使用超過40年後,買家也會開始避開,因爲地契時間剩余不到60年,在銀行貸款和使用公積金方面是有不少限制的。
相對來說,永久地契房産則是可以世世代代傳承的家族産業,因此各國富豪都喜歡到新加坡來購置永久地契房産。屋主可以不受限地動用公積金,銀行也不會施加貸款限制。多年後,如果有發展商想要收購地皮,由于不需要補地價(來更新地契),因此永久地契房産的業主往往能夠通過集體出售獲得更可觀的回報。
地理位置卓越
禧盈軒位于烏節路旁的經禧坡16號,也就是整個島國最核心的卓越地理位置。在這裏,時時刻刻都能感受到這座繁華都會的缤紛多彩和時尚潮流的蓬勃脈動。
一踏出家門,就能輕松步行到百利宮、義安城、ION等購物商場。這裏有來自世界各地,最時尚最獨特的美食、名牌精品和貼心服務,由伊麗莎白醫學中心和百利宮組成的世界級醫學中心也近在咫尺。
此外,就在一公裏的範圍內,家長們就可爲學齡孩童找到知名學府,如:英華小學(經禧)(Anglo-Chinese School (Junior))和聖瑪格烈小學(St Margaret’s Primary School)。
禧盈軒臨近烏節路地鐵站的三個出口,對外四通八達,前往中央商業區、濱海灣,乃至樟宜機場都十分便利。
環境清幽
Cairnhill雖緊貼烏節路,卻享有鬧市中難得的私密與安靜,四周綠意蔥蔥,宛如熱帶的伊甸園。
禧盈軒致力于與周圍環境的自然融合,因此綠化方案獲得了新加坡建設局的綠色建築標志金獎肯定。整棟公寓內的綠化面積超過40%,不但裝置各種節能電燈、冷氣和電器,還設有再循環垃圾槽,以及電動車充電設施。
一回歸家門,就像進入世外桃源,忘卻都市的繁華喧囂,置身于一片至美的自然景觀之間。
只有少數幸運兒可擁有
禧盈軒僅有39戶單位,獨享私密性和專屬性,只有非常少數的幸運兒可以擁有。這39戶單位分布在15層樓,所有單位都有私人電梯直通單位,一出電梯就是回家。
禧盈軒的前台也將爲住戶們提供各種貼心服務,包括餐飲預訂、交通預約、家政服務安排等。
具匠心的建築設計 高貴與精致是在每一絲的小細節中流露出來的,在冷靜的色彩、簡潔的線條和卓越的工藝協調下,禧盈軒完美地展示了低調的奢華。
兩個空中花園和屋頂花園,綠植如瀑布般自然垂下,不但提高了禧盈軒的綠化空間,也讓整棟建築在視覺上更顯開闊。住戶下車的抵達處,波浪形的地面設計,與冷色調的幕牆和溫暖的木質材質形成對比,打造現代化的優雅品味。
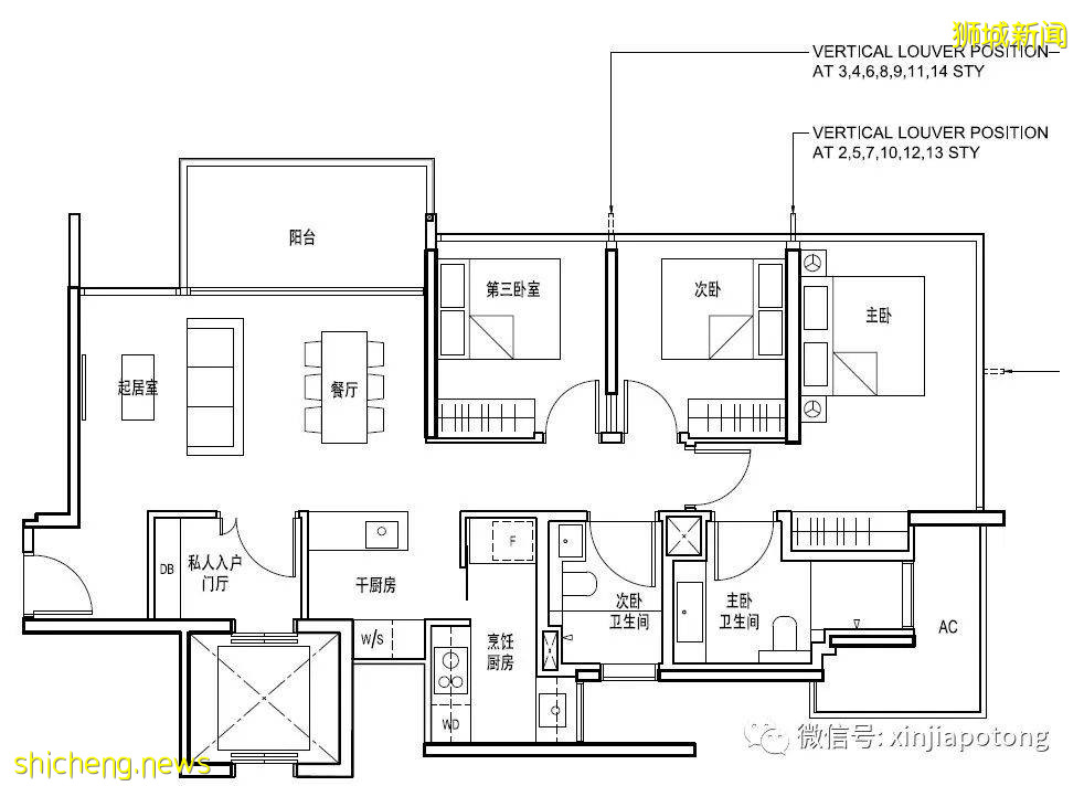
工藝奢華高貴 禧盈軒的戶型實用,天花板挑高讓視覺更開闊,所配置的都是最頂級的名牌器具。(圖/商家提供)禧盈軒的每個戶型都非常實用,起居室和餐廳左右對稱,方便屋主視個人喜好量身定制家具。同時,天花板全部設計成超高挑高,部分戶型的天花板甚至高達4.2米,不但讓空間更寬敞,也盡可能將美麗風景攬入眼簾。在幕牆的包圍下,所有戶型的主臥房都擁有無框、無死角的全景視野。所有衛生間配置德國著名品牌Grohe鍍鉻潔具。廚房則采用瑞士VZUG的品牌電器,是頂級的廚房設計首選。爲了生活便利,禧盈軒的屋主也使用智能家居設置,遠程控制公寓內的電燈、冷氣等設施。
兩臥兩衛,實用面積爲72平方米,私人電梯入戶
三臥室入實用面積爲98平方米,帶幹濕雙廚房,私人電梯入戶
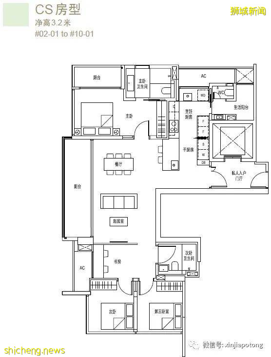
三臥室+書房豪華型,實用面積爲120平方米,幹濕雙廚房,私人電梯入戶,橫廳設計
盈軒將在11月27日推出,參觀示範單位必須提前預約
【本文由禧盈軒 Cairnhill 16發展商呈獻】










