NOUVEL 18
奢華生活典範
阿摩園與安徒生路的優質家居
Nouvel 18 屹立于地理位置卓越的核心中央區第10郵區,36層稀有永久地契豪宅項目,名校環繞,交通成熟,配套完善,世代傳承……Nouvel 18 是高尚與奢華的完美結合,已然成爲完美人居的代名詞。
黃金地段烏節路
與世界知名購物與休閑中心如法國巴黎香榭大道、日本東京銀座及紐約第五大道分庭抗禮的烏節路,不僅是全球高檔精品必占的品牌櫥窗,更是吸引成千上萬環球遊客的必遊勝地。
在此可以盡享都會繁華便利,環繞大師努維爾經典名作周圍,皆是國際級酒店旅館、高級休閑倶樂部,以及知名學府院校。另外,使館區、新加坡植物園及方便通達的交通設施也近在咫尺。
距烏節路不遠處,則是新加坡最尊貴高檔住宅區——阿摩園(Ardmore)及安徒生路 (Anderson)的所在之處,而這裏,也是氣派豪宅 Nouvel 18 的駐足點。
從Nouvel 18 出發到烏節路,步行只需幾分鍾,在這個新加坡著名的購物街,衆多美食和購物場所鱗次栉比,一站式享受精彩娛樂。附近有許多俱樂部,如東陵俱樂部,帶來新鮮高級的娛樂享受,讓你的休閑時光不再單調。
東陵俱樂部
Nouvel 18 臨近烏節地鐵站(Orchard MRT Station)和正在興建的烏節林蔭道地鐵站(Orchard Boulevard MRT Station),輕易通往全島,讓出行更加高效便捷,量身定制輕松日常。
在這裏,您能享受到頂級教育資源,多所名校近在咫尺,如英華中學和新加坡女子學校,與優秀爲鄰。
新加坡女子學校
Jean Nouvel
Nouvel 18 是普利策克獎得主,法國著名建築設計師Jean Nouvel大師在新加坡首度登場的矚目之作。在他手下,項目整體融入自然元素,煥發出一片蓬勃生機。
一以貫之的卓爾不凡前衛作風與超群風範使之傲居市中,爲新加坡美麗都會風景線增添一筆神來之采。隨夢想落筆爲始,隨之超凡理念逐步成形,再經由周圍阿摩園與安徒生路高檔住宅的氣質氛圍細細琢磨,最終Nouvel 18 這個令人屏息的極致臻品震撼問世。
精彩融入生活
Nouvel 18 將悠閑注入生活,匠心打造公寓設施,傾情呈現八大主題天際露台,塑造獨特的外觀,帶來極具尊崇乾和舒適感的社區娛樂享受。精巧設計的玻璃色調,如同千變萬化的調色盤,讓 Nouvel 18 成爲城市中心標志性的建築。
僅156個奢華單位,這兩座36層樓高的建築傑作,將現代主義之美與大自然融入生活,創造出與城市交流之美妙聲韻。
這裏有網球場,任何時候,都可以和好友來一場酣暢淋漓的對決。天際露台的休閑娛樂設施更加多元化,如水上休閑露台,健身房,健身池和美味廳,動靜相宜,可以讓您享受戶外運動和用餐體驗,讓休閑的每一刻更加惬意。
50米泳池旁的露台視野開闊,場地寬敞,在這裏開派對款待親友再合適不過。還能在2樓帶有放映室和美食廳的時尚會所聚餐聯歡,放松身心。
2樓
俱樂會所
想開派對款待親友?俱樂會所從裏至外,全都已一應俱全,擁有齊備的擺設設備,讓每次相聚都充滿歡樂。您也能邀約幾個好友到放映室去,享受一部好電影,松懈一下。
10樓
綠林瞭望台
投身綠蔭盎然之中,瞭望翠綠無際,與老友摯愛暢聊敘舊,相聚逍遙,美好 一刻再無所求。
11樓
健身房
讓婆娑綠葉的律動,無敵開闊的城市景觀,伴您一起活動筋骨、舒放身心。
11樓
養心軒
遠離塵囂,走入這甯靜私密花園,給疲憊的身心放個假。周圍高聳的綠樹與熱帶花卉,陣陣鳥語花香,讓您悠閑躺臥在水療跑池中,偷得浮生半日閑。
14樓
水健池
在翠綠環抱之中,泡浴天池,居高臨下,借由水中浮力,輕松雕塑,收緊玲珑身段,甚至挑戰高耗量、低沖擊的水中健身,絕對感覺不同。
14樓
美味廳
盛邀親朋好友到此露天相聚點,在大自然的美麗帷幕下,相聚齊享美食。開放式的廚房格局,流暢不落俗套的擺設裝置,令美食大賞的體驗及樂趣,同樣得到無上升華。
14樓
休閑水上樂園
在泳池暢泳之後,躺臥在惬意悠然的休閑池中,賞遍周圍怡然悅目綠景,任由大自然放縱您的每一寸感官,打造舒暢好心情。
19樓
天台植物園
白天,在綠樹涼風中,暢閱一本好書或是邀來好友喝杯下午茶。晚上,則是眺望星空,舉行雞尾酒派對,衣香鬓影的最佳首選。
24樓
靜思園
想要個人獨處,思緒完全不受幹擾,或是找個安靜處,練練瑜珈、太極還是默想打坐,這裏保證讓您盡情忘我。
項目總平面圖
尊貴禮賓服務
尊貴不止在設備硬件,貼心而優質的住戶禮賓服務,帶來生活便利的保證。從安排洗衣、家政、預定餐廳、或者交通安排,我們的禮賓服務人員都可以爲您貼心打理。
爲了增強住戶體驗,會所和接待台都設有住戶禮賓服務櫃台,備有專人爲您服務。此外,所有單位都配有私人電梯,提升了回家的便利性和安全度。
美好生活空間
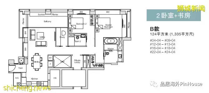
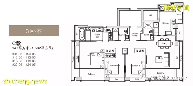
從2臥室+書房單位到4臥室+書房單位,豪華的天際套房單位及頂層越層豪華單位,各種精心設計的戶型可供選擇,爲每位家庭成員帶來理想空間。
內部設計和高效布局都設備齊全,誠意十足。客廳和用餐區寬敞氣派,在這裏接待賓客顯示出主人氣度不凡;這兩個區域配備了大理石地板,襯托了低調的奢侈感,讓居家空間看起來更優雅別致。
而陽台則是享受極致視野美感的空間,晨昏彩霞,星光璀璨,不論是早上還是晚上,都可以沉浸于美妙的天際線中,欣賞城市全景。
在設備齊全的廚房裏,您可以使用配有美諾(Miele) 的高檔器具,展示廚藝變得輕松而享受。
居家,最重要的地方是臥室,在這個私人空間裏可以寫下疲憊,放松自己。天然的橡木地板爲房間增添了幾分溫暖和溫馨的氛圍。每間臥室都配有格外寬敞的衣櫃,享受極致的奢侈感。
不僅如此,主浴室還配有杜拉維特(Duravit)和高儀(Grohe)的衛浴配件,讓沐浴的快樂變得簡單純粹。
項目信息
項目地址:阿摩園/安徒生路
區域:第10郵區
項目地契:永久地契
項目層數:36層
總單位數:156個單位
交付時間:現房
交付標准:精裝修交付
項目戶型圖
左右滑動查看更多戶型圖
新加坡精選項目推薦
Boulevard 88



























