樓盤所在位置
簡介
Mori是由RL East Pte. Ltd開發的小高層公寓項目。該項目位于新加坡第14郵區,223 Guillemard Road。預計2026年12月完工。屋主享有永久産權。該項目是1幢5-8層樓宇,內含137套住宅單元,有1元、1室+書房、2室、2室+書房、2室+客房、3萬、3室+客房、4室等多種戶型可供選擇。
新加坡郵區分布圖
樓盤概況
樓盤名稱:Mori
開發商:RL East Pte Ltd
産權:永久産權
完成年份:2026年
單位數量:137套住宅
樓層數量:包含1幢5-8層公寓建築
起始總價:新幣 S$
每平方英尺起始:新幣 S$
賣點
別致設計 獨特的生活體驗
· 5層結構與8層結構相連接,組成一幢複合體建築
· 僅有137套珍稀房源,常葆高品質生活體驗
· 地面+地下停車場,爲您的愛車提供充足的停放空間
· 樓宇2層及6層的公共休閑空間,設施齊備
· 6層屋頂泳池,及視野上佳的露天平台
交通便捷 駕車地鐵皆可
· 短車程至新加坡體育中心、CBD、東海岸公園East Coast Park、樟宜機場等
· 臨近Aljunied、Dakota及Mountbatten MRT地鐵站
附近學校
Kong Hwa School
Geylang Methodist School
James Cook University
Chung Cheng High School
Dunman High School
戶型分布
主力戶型
1室A1戶型 1室 484平方英尺/45平方米
1室+書房
B1戶型 1室+Study 549平方英尺/51平方米
1室+書房B2戶型 1室+Study 592平方英尺/55平方米
2室C1戶型 2室 710平方英尺/66平方米
2室C2戶型 2室 710平方英尺/66平方米
2室C3戶型 2室 721平方英尺/67平方米
2室+書房D戶型 2室+Study 721平方英尺/67平方米
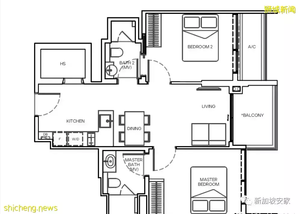
3室F1戶型 3室 958平方英尺/89平方米
3室F2戶型 3室 980平方英尺/91平方米

















