上周三,很多人一夜無眠
新加坡政府深夜發布房産降溫措施
許多想要買房的計劃戛然而止
許多開發商手足無措
然而,就在個節點上
卻有個明年1月8日開盤的樓盤
幾乎不受影響
很多新加坡本地購房者都在翹首以盼~~
好消息!
新加坡市場上十分罕見的
超火永久地契洋房
Belgravia Green
終于出兄弟升級款了!!!
市場上已經很久、很久沒有出現過的 永久地契洋房——Belgravia Ace 是很多人夢想中“家的樣子”
永久地契洋房可以傳承後代 同時配備齊全的公寓設施 環境優美,宅家就像度假 交通方便、周圍有公園
附近學校、商場、美食一應俱全 Belgravia Ace是Tong Eng Group 同榮集團推出的Belgravia永久地契洋房系列的收官之作,也是最大、最後一個項目。辣媽已經聽說好幾個新加坡本地家庭准備預約看房、一舉拿下啦!
想必前幾年Belgravia Green開盤時的盛況大家都還印象,永久地契的分層洋房,在新加坡市場上實在是太稀罕了!很快就售罄了!
所以!購房目標瞄准永久地契的小夥伴們,這次的Belgravia Ace是目前新加坡市面上唯一的,也很可能是新加坡分層洋房最後一個全新項目了,一定不要錯過!
關鍵是,起始價位預計僅$360萬左右,均價預計也只在$400萬左右,比市面上的99年地契的3房、4房公寓貴不了多少!這性價比,絕了! 1月8日就開盤了! 立刻掃碼預約看房!
永久地契洋房+完美公寓設施
Belgravia Ace位于新加坡中心地帶——D28郵區宏茂橋,擁有104套半獨立式洋房和3套獨立排屋,預計于2028年1月31日獲得臨時入夥准證(TOP)。
Belgravia Ace 是罕見的永久地契分層洋房,同時提供完備的公寓設施,2層多功能會所俱樂部包含了健身、遊戲娛樂功能,再加上遊泳池、露天花園、燒烤露台等設施,可以說是十分宜居的豪宅了。
作爲華僑銀行(OCBC)第一筆建築能源效率評估(BEEA)的受益者,Belgravia Ace十分節能環保。
大大落地窗能夠降低紫外線和紅外線的照射,空調系統和家用電器都是最高節能等級的。
能夠修養生息的家
進入了小區,就感覺進入避風港灣,郁郁蔥蔥的植被、曲徑通幽的小道,沿著這樣的風景漫步,心一下就甯靜下來。
8個花園的靈感來源于水、金、石、空氣等自然元素,對應每個花園的特殊功能,裏面藏著遊戲區、派對草坪、池塘、亭子、吊床……和住家的庭院相呼應,平衡和諧又有趣。
在景觀的中心地帶,有一個50米長的公共泳池以及兒童戲水地帶、家庭泳池、按摩浴缸、小瀑布等等設施。
每戶住宅有4層靈活的生活空間,以及一個地下私人停車場。5間臥室、浴室和開放式廚房等生活區,都經過仔細規劃,最大限度利用住宅空間。
小區內所有的單位都是南北朝向,落地窗確保每個房間都能夠獲得充足的自然光,同時小區內的郁郁蔥蔥的景色也一覽無余。
休閑、娛樂十分便利
Belgravia Ace 距離新加坡北海岸、實裏達和榜鵝最新的創新商業區僅僅數分鍾路程。位于成熟市鎮宏茂橋中心,有許多便利的設施滿足生活、購物需求。
周邊的綜合購物中心包括Greenwich Village, Seletar Mall, 這裏提供美食、和大型超市等。
項目位于Seletar Hill 社區內,環境甯靜優雅,距離Ang Mo Kio Linear Park 只有幾分鍾的路程,公園連接器就在小區外,還可引領您抵達更多的公園。
交通四通八達 Belgravia Ace 的位置相當優秀,位于宏茂橋5道(Ang Mo Kio Ave 5)附近,距離南北地鐵線的宏茂橋地鐵站僅幾分鍾車程距離。項目旁邊還有一個巴士站,有巴士直接通往碧山、宏茂橋、盛港和實龍崗。
開車的居民可以3分鍾內駛入快速公路(CTE, TPE, SLE),實裏達俱樂部驅車幾分鍾就可以達到,距離烏節路、濱海灣金沙和中央商務區也只有15分鍾車程。 附近的知名學校
項目周邊的教育資源比較知名的有樂賽小學(Rosyth School)、安德遜初級學院(Anderson JC)、南洋理工學院(Nanyang Polytechnic)、法國國際學校(Lycee Francais De Singapour)等等。
劃重點
市場上有多久沒有新建大型永久地契洋房小區了?
萬衆矚目的Belgravia Ace半獨立式高檔洋房社區,有著完整小區設施配套:50米泳池、水療池、燒烤亭一應俱全,可以說是非常罕見。
坐落在洋房區丘陵之上的甯靜居所,4000尺左右奢華生活空間,搭載戶內私人電梯,分層五臥室適宜多代同堂居住。
個人最喜歡戶型分享: – 3.5層樓背靠背半獨立式洋房,增加采光面 – 地下室配備家庭娛樂房 – 一樓客廳、餐廳、中西廚房、自家花園 – 二樓主臥與次主臥均配內衛 – 三樓兩間客臥加樓頂花園平台、適合觀星賞月
起始價位預計$360萬新幣左右,多數半獨立價位預計$400萬新幣上下,需新加坡公民身份特享購買權力。
現已開始預訂看房!
1月8日-18日
開放樣板間參觀
1月22日
抽簽選房
歡迎感興趣的朋友提前預約,了解更多詳情。掃描下方二維碼,添加微信YJProperty開啓一對一專屬咨詢服務。
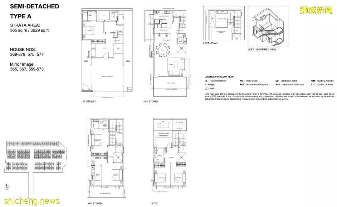
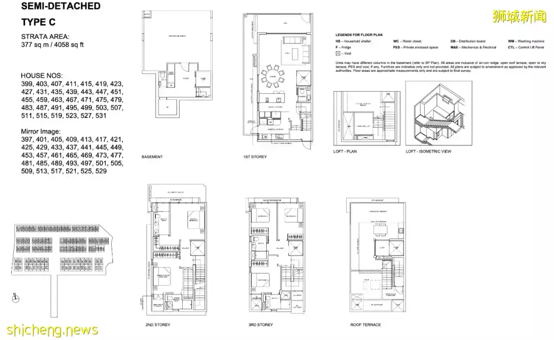
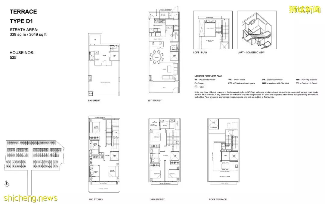
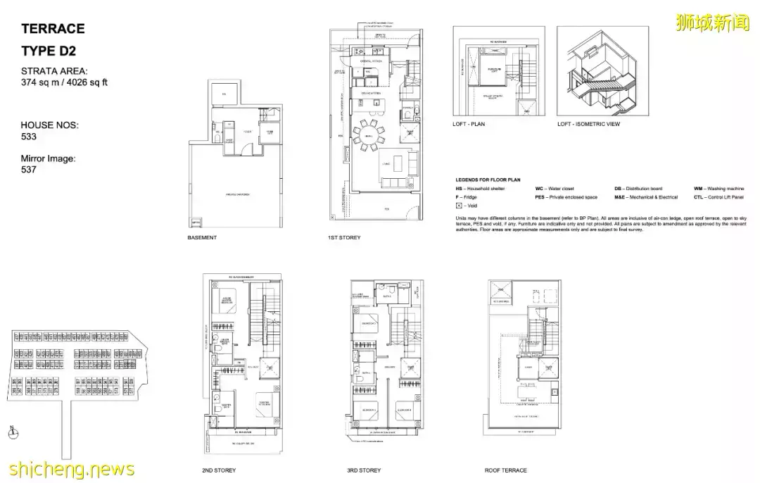
戶型指導
A戶型 |
B戶型 |
C戶型 |
D1戶型 |
D2戶型 |


























