此項目位于公共私人混合的高層住宅區內,旨在展示高居住密度的公寓也可以十分舒適。社區生活的豐富性和可持續性也是設計的主題。此項目全部的公共區域都面對公衆開放。設計的革新點在于公共空間,外部區域和共享空間交織在一起在成群的塔樓中穿拆錯落的出現,從地面層到頂層中穿梭自如。此天空之城包含80個公寓,每一戶公寓都可共享帶有遮擋的社區露台花園。其目的是促進居民的互動交流,使之成爲日常生活的一部分。每個居民都可以從電梯到家門口的這段路上穿過或俯瞰花園以問候自己的鄰居,或是和鄰居在這裏閑聊,小孩子們也可以把這裏當做玩耍的遊樂場。
公共外部區域和共享空間交織在一起在成群的塔樓中穿拆錯落的出現
建築夜景
每一戶公寓都可共享帶有遮擋的社區露台花園
每個居民都可以從電梯到家門口的這段路上穿過或俯瞰花園
高層中的共享陽台 – 外部區域和共享空間交織在一起在成群的塔樓中穿拆錯落的出現
其余的社區空間有沿著線性公共花園的廣場,花園兩側是鱗次栉比的超市、咖啡店、小商店和兒童設施。社區公共客廳是一個雙層陽台空間,其使用位于地面層,坐在客廳中可以俯瞰公園的景觀。婚葬禮堂,健身娛樂中心,草坪和一些小場地沿著一個150米長的沼澤池排列。屋頂天空花園24小時開放,光伏陣列的亭子下方有一條400米長的慢跑道。
沿著線性公共花園的廣場,花園兩側是鱗次栉比的超市、咖啡店、小商店和兒童設施
社區公共客廳是一個雙層陽台空間,其使用位于地面層,坐在客廳中可以俯瞰公園的景觀
亭子
24小時開放的屋頂天空花園
場地的曆史也表達了在這棟如藝術品的建築中。一名當地藝術家曾記錄了該社區的變化特點,這件繪畫作品呈現在了建築的預制牆上。建築運用藍色玻璃的設計元素,讓人們回想起福建方言中的“Lam Po Lay”,意爲藍色玻璃區,是老一代公共住宅使用藍色窗戶的區域。參天的老榆樹被保留下來與景觀有機結合。
記錄了該社區的變化特點的繪畫作品呈現在了建築的預制牆上
建築包含了不同尺寸的3種公寓戶型。無柱無梁的空間使平面布置靈活多變,減少了空間浪費,並可適應多種家庭需求和不同的生活方式,如家庭辦公或是閣樓客廳。也爲未來的多樣化發展提供了必要條件。
作爲新加坡最高的第一棟公共住宅,建築獲得了白金綠色標志,其采用了被動式的設計策略,自然光照亮了大廳,台階和入口步道,自然通風也穿堂而過。開放,通風的設計使所有公寓都有著極佳的自然通風,且大部分公寓都不用安裝空調。屋頂上配備有光伏發電系統。該建築完全采用預澆制和預構建的建造方式,減少了浪費,避免了錯誤。該設計通過重新布置各個單元,創造了多種多樣的布局,光影顔色也變化多端。
建築內部
開放,通風的設計使所有公寓都有著極佳的自然通風,建築包含多種多樣的布局,光影顔色也變化多端
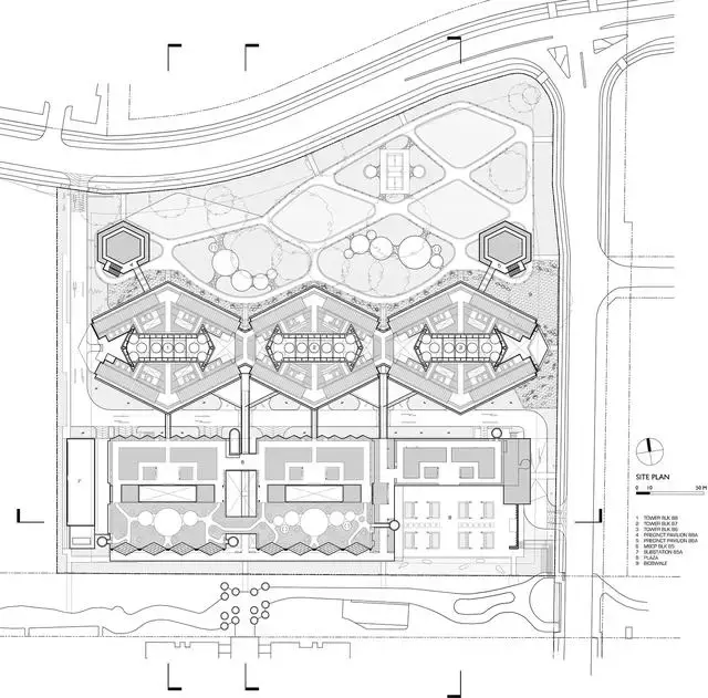
總平面
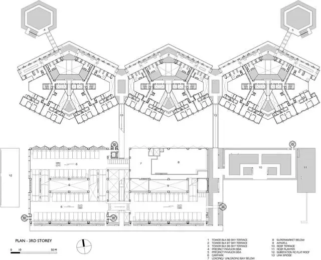
平面圖
剖面圖
立面圖























