Belgravia Ace看房過去一周 中介行收到支票總數超過預期 雖然我還沒收到一張,過年可能要吃草了
主要是房子設計好配置高,自動會賣
這是樣板房的Matterport 這個元宇宙概念的公司股票最近腰斬了
有興趣看小區點擊看看Youtube的視頻
Youtube – https://youtu.be/k6JEqmyJNoQ
Belgravia Ace is nestled within the tranquil enclave of Belgravia Drive featuring 107 freehold strata houses. It is the final phase of the acclaimed Belgravia collection and specially designed to create a modern oasis living.
With F&B and shopping malls like The Seletar Mall, Lower Seletar Reservoir and Seletar Aerospace Park all located less than 15 minutes’ away, Belgravia Ace puts you a heartbeat away from trendy restaurants, nature hangouts, and daily amenities. Furthermore, residents can get around the island seamlessly via three major expressways.
指導價符合預期
想來看的朋友來聯系我
我要一所大房子,有很大的落地窗戶
孫燕姿說完美的一天需要從一個大房子開始 因此聽話的新加坡人喜歡別墅,主要因爲房間多 一個房間裝吉他,一個房間裝衣服,一個房間做書房 一個睡覺,一個不知道幹什麽,所以需要5個房間 晚上可以不睡覺,白天在床上思考 廳裏要大得讓小狗奔跑,所以我找到了一個燕姿喜歡的房子 正好五個房間,有很大落地窗戶,這就是Belgravia Ace
今年別墅交易量價齊升,多虧了低利率和疫情下許多富豪轉型成功,對面積和保值有更大需求,優質別墅的尺價比一年前起了24.6%,比政府組屋和公寓起更多。說明政府這麽多的cooling measures對優質洋房沒啥影響,因爲大佬不差錢。
別墅一直是富豪和大家庭喜歡的選擇,總面積大,環境優美,産品造型設計也一般美觀大方。不過世上沒有完美的房子,不論是別墅房還是一般的住房都有優點和缺點的,因此在我們恰當地了解到他們的優點和缺點以後才很有可能作出更爲有效的分辨和挑選,如果你喜歡其優勢,接受其缺點,口袋足夠深,手有紅登記,那就可以上別墅。
別墅的優勢:
別墅面積整體比較大,房間多,而且分層,上下樓層相互幹擾比較少,適合當前疫情大家在家工作學習的大環境
別墅的周邊園林綠化自然環境是比較好,私密也是較強,有著充足大的室內空間,自身能夠隨便的整體規劃,沒有過多的嘈雜聲,是較爲清靜的一種環境。
別墅住宅高檔有品味,鄰裏非富即貴,方便擴張你的微信朋友圈。
別墅的天地都是你的,如果是非分層地契的,不用交物業費,也可以在政府限制內改建。
別墅的缺陷:
別墅的總面積十分大,清潔是一個難題。普通別墅沒有物業維護,所有維修或者除蟲需要自己搞定。要是沒有技術專業的工作人員准時開展清除,蚊子也是比較多的。
別墅必須爬樓,這針對年齡越來越大的老年人是不方便的,沒電梯的話,搬家具也不容易。
別墅位置大多是比較偏僻的地點,周邊商場餐廳學校等比較少,離地鐵站一般也比較遠。
普通別墅一般沒有小區,小孩平時要麽在家裏玩,要不去馬路上,沒有泳池和健身房等設施,對有孩子家庭來說,體驗跟大組屋差不多。如果沒有小區保安的話,別墅的安全性還是有點問題的,除了小偷或者仇人容易光顧,蚊子老鼠甚至蛇也可能拜訪。
如果我告訴你有那麽一種別墅,結合了普通別墅和公寓的優點,既有個大房子,裏面裝了很快的電梯,還有小區設施,房子壞了也可以找物業來做,由于規模效應成本比較低,你會不會動心?
分層地契別墅
分層地契別墅是一個創新,分層地契下的土地屬于該物業的所有者或發展商所擁有,公共區域例如遊泳池、健身房、電梯和休息室等共享區域,不屬于任何個別分層單位的持有人,這些公共財産的維護和管理由管委會打理。
Balgravia Drive那三塊地由開發商Tong Eng Group 同榮集團所有,之前開發了Belgravia Villas和Belgravia Green.
兩者成交價如下:
Belgravia Villas就是最近上新聞的那個項目,一個天朝土豪找了本地人去代購別墅,最後搞得房財兩空還要去坐牢,因爲外國人本來是不能持有別墅的,除非你是PR有特別的經濟貢獻。
可見Belgravia Villa的最近成交價有375萬的了,Belgravia Green估計明年交房,價格更高些。
有386萬成交的,現在進度還不錯。
2. Belgravia 位置介紹
Belgravia Ace作爲Belgravia家族的三妹,位于D28郵區宏茂橋,擁有104套半獨立式洋房和3套獨立排屋,預計于2028年1月31日獲得臨時入夥准證(TOP),當年放7年有點太慢了,實際應該會早些。周邊全是別墅區,保證了清幽的環境。
Belgravia Ace 距離新加坡北海岸、實裏達和榜鵝最新的創新商業區只要幾分鍾路程。在成熟市鎮宏茂橋中心,有許多便利的設施滿足生活和購物需求,那邊是李總理的選區,位于名校樂賽小學2公裏之內。
周邊的綜合購物中心包括AMK Hub,Greenwich Village, Seletar Mall, 這裏有美食和大型超市。
去市區走CTE很方便。
3. 小區介紹
Belgravia Ace 是罕見的永久地契分層洋房,同時提供完備的公寓設施,兩層多功能會所俱樂部包含了健身、遊戲娛樂功能,再加上遊泳池、露天花園、燒烤露台等設施,可以說是十分宜居的豪宅了。
小區由日本設計師本盟操刀,我猜這個設計師可能是個足球運動出身,感覺他們有日本武士排兵布陣的感覺,前峰是火陣,中場是金土氣聲四大元素,後衛是木水石。
這個陣型很猛,火是進攻性的,孫子兵法的《軍爭》有:“故其疾如風,其徐如林,侵掠如火,不動如山,難知如陰,動如雷震。”火在五行中也在南邊,朱雀也是紅色的。
大門設計很氣派,樹是一種經常會有紅色葉子的特別的樹,走在那邊有點蘇州園林的感覺,也許會激發業主的詩意:葉落烏啼霜漫天,江楓漁火對愁眠。
過了長走廊後的drop off地方有個大轉盤,這是全小區的中心,也是風水大陣的法眼,中間黑色的是眼珠。我沒有晚上去過那個地方,否則夜空可以看看這個法眼是否跟天上星星有沒關系,也許設計師搞了個天罡北鬥七星陣。
其實那個陣眼也有玄機,除了兩花瓣相當于陰陽魚可以和周邊地勢呼應外,八個水柱分別對應八個小陣眼,分別是驚門、杜門、死門、休門、傷門、景門、生門以及開門。
有點像三國時曹仁擺下八門金鎖陣,這樣可以保業主平安,這個陣在大門入口的確是像鎖一樣。 曹仁是曹家很厲害的將才,我覺得他防守很厲害,八門金鎖陣從頭到尾是仿著各種動物擺的八個陣,也是十大古陣之一。十大陣應該是:一字長蛇陣、二龍出水陣、三才太乙陣、四象漯河陣、五虎群羊陣、六宇連方陣、七星北鬥陣、八門金鎖陣、九曲黃河鎮、十面埋伏陣這十大陣。這十大古陣也能相互變換,一字長蛇陣兩頭並進,就成了二龍出水陣;二龍出水陣陣中間突出一部分就形成了三才太乙陣;三才太乙陣的兩頭撤回,便變成了四象漯河陣;四象漯河陣互相穿插,就變成了五虎群羊陣;五虎群羊陣按照六丁六甲排列,就形成了六宇連方陣;六宇連方陣一半拉成線,另一半變成四象漯河陣,就形成了七星北鬥陣;七星北鬥陣環繞一圈,擺成八卦,就形成了八門金鎖陣;八門金鎖陣排列成九宮形狀,就形成了九曲黃河陣;九曲黃河陣之中暗藏暗器弓箭,這樣就形成了十面埋伏陣。。
古代牛逼的將領都會根據地形和敵人的攻勢而靈活變化,我三國演義和大秦賦三部都看很多遍,發現陣法是很牛逼的事,我覺得如果我生活在古代,也許可以做個軍師,直接去打架我不行,不是力量型英雄,最多做個靈巧型,我也不是智力型英雄,因爲很多人喊我ben。
不過作爲團隊,最好是幾種英雄都有,這樣就能有synergy,達到1+1>2的效果,所以歡迎各路英雄加入我的團隊,我許多事都想斜杠一把,有詩爲證:
魔獸爭霸系列詩-獸族Orc in Warcraft
帶兵出征有老狼,劍聖敵營真囂張
雙線操作需苦練,內亂外困君慌忙
打怪升級科多獸,光環寶物全帶上
牛頭一出沖擊波,攻入敵陣算總賬

沖鋒陷陣用小強,寒冰秒殺巫妖王;
加速奶媽黑騎士,不死三英世無雙。
不小心歪樓了,還是講回小區設計吧。西邊是白虎,本身就是屬金的,前後排有18米寬,比一般五層樓的公寓樓盤都要寬了。
北方是屬水的,因衛玄武喜歡水
中央是土,小孩遊樂場很大有氣勢,能鎮住四周
東北是石頭,因爲後衛要比較穩,整體也有瀑布出來,融合了水的元素。
大都符合五行的原理,只有本來東邊的木移到了西北角,也許設計師想留出那邊通道,讓風流通,這也跟小區大環境的地理吻合。
這片樹就是聲的位置,老實說,砍了也挺可惜的,不過爲了創造GDP和滿足人民群衆日益增長的想住大房子需求,只得挪位了。
總體來說,這個陣搞得很好,我覺得設計師是高手,兩個大拇指來佩服。
Belgravia那一片我還是蠻熟的,前年走狗屎運賣了兩間別墅,這次要求並不高,賣掉一間就好,希望我的買家能有抽簽好運氣。
所以這個設計蠻不錯的,得獎不讓人驚訝。
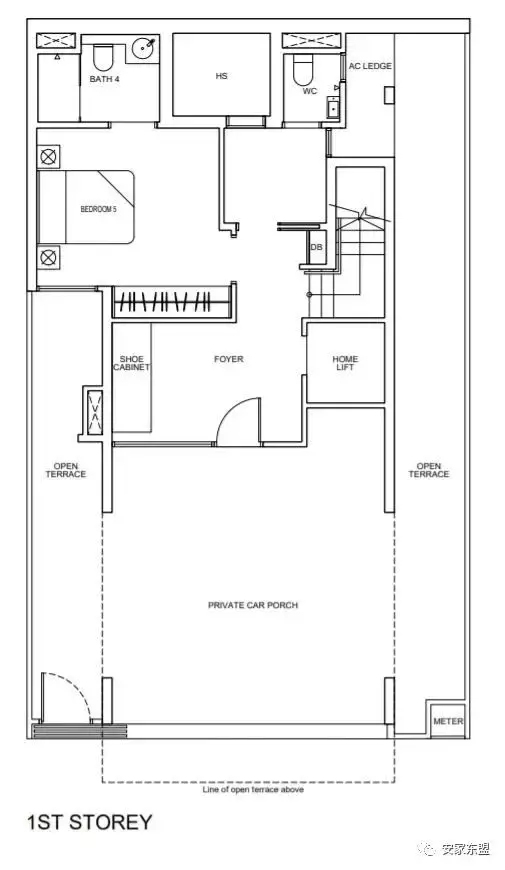
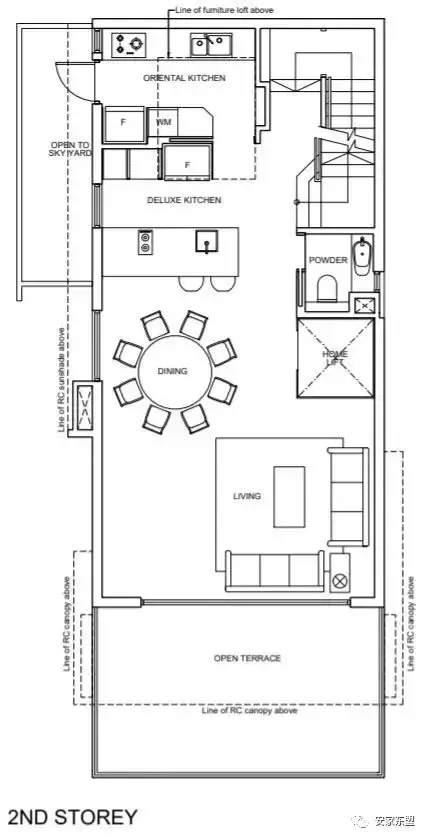
4. 房子設計
小區設計這麽美,房子自然也差不了。整個小區有A, B,C, D四種戶型。前三種是半獨立式Semi-D,大概400萬起,D戶型是Cluster House,大概360萬起,都是5房式別墅。
其Profile View截面圖如下
A戶型是背靠背的,從前面看過去,像獨立式
門口可以大概停五輛車,裏面設計也非常好
戶型圖細節,想看的朋友聯系Ben 96951591,到時透露更多細節。
B和C戶型是肩和肩相連
Type B要大些406平米
Type B是樣板房,來看看你未來的房子氣派不
Type C要小些377平米,但是大多數,一共有68間
Type D只有3間,也會是最便宜的三間,我不確定我買家有運氣選到,不過這是Cluster House,而且靠近bin centre和substation,我覺得還是繞道走吧,加點錢可以選更好的。
這個項目預約目前還有一些看房slots,有興趣的朋友請速聯系我來看房,這個項目可能開盤就賣光,因爲現在市場是轉售的SemiD都很貴而且可能設計和裝修不太好。
我覺得這個項目的房子配置和小區設計都很好,強烈推薦給大家。Belgravia周六1月8日開盤,19日截至收支票,1月22日選房





















































