今日,向大家推薦一套永久産權的帶地下室3層豪宅【Paterson Residence】,房産位于新加坡黃金地段第9(District 9)的Paterson Rd。
Paterson Residence烏節路分層豪宅
房屋地點優勢
Paterson Residence于2008年建成,位于新加坡 83 Paterson Rd, District 9,附近設施完善,商超餐飲一應俱全。
地理位置優越,交通設施便利,具備優質的公共運輸設施,附近有衆多公交路線、走路8分鍾可到達Orchard地鐵站、開車4分鍾即可到達新加坡市中心。
該區域地段規劃明確,混合了住宅和商用,潛力無限。
分層地契有地住宅的優勢
享受私人公寓設施
分層落地式住宅一般包括了聚落式住宅(cluster housing)和聯排別墅(town houses)。
聚落式住宅一般指的是排屋。
分層落地式住宅包含了分層地契別墅、半獨立式洋房和排屋,不過排屋在數量上超過了別墅和半獨立式洋房。
110套公寓中只有6套是聚落式住宅,相似有地住宅,Paterson Residence分層套房不僅提供公寓設施,每一套三層樓高的單位都擁有一個私人的露台空間以及露天陽台。
住戶還可以享用公寓裏的設施包括遊泳池、健身房、桑拿浴和網球室等等。
買家不必要去考慮住宅外的維護要求。
聚落式住宅展望良好
在未來,無論買家是新加坡公民、永久居民或者外國買家,都可購買。
奢侈的空間與布局
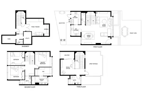
Paterson Residence此套房産是一個擁有5室5衛浴室的三層樓頂級豪宅。
房屋面積有4,058平方英尺,這包括私人露台空間、陽台、後院和地下室。
房屋的每個細節,都能體會到無處不在的休閑舒適感與歸屬感。
1
02/ 一樓
餐客廳
一整面的落地窗,光線充足、設計感極強的客廳。
餐廳與客廳打通,連成一個整體空間,活動面積更大,聚會待客空間感十足。
高高的天花板給人一種通風和寬敞的感覺。
客廳面對著遊泳池和露台,透過窗,欣賞外景,非常適合家庭聚會與派對。
露台
露天台,可供賞景、休息等用途。還有,一扇專用通往遊泳池的玻璃門。
廚房
陽光充足,透氣的開放式廚房,通往後門可進入後院
後院
後院寬敞,種些花花草草,布置屬于自己的小花園
1
03/ 二樓
臥室
采光充足的臥室、超大的儲物空間,兼具空間感、富有童趣的兒童房。
書房
露天陽台
地下室
娛樂,休閑,一應俱全
1
得天獨厚的教育資源
Paterson Residence附近學府環繞,是優質的多元化國際教育區,擁有衆多人才輩出的著名國際學校,如 River Valley 小學、Anglo-Chinese 學校 (Junior),International School Singapore (ISS)國際私人學校以及Crescent Girls’ 中學等。
同時學校在發達地帶,離家很近,家長不用爲孩子上下學的交通問題發愁。
有完整的商業配套、交通配套資源,無論從居住舒適程度還是子女的成長考慮,都具備獨特的優勢。
潛力無限的商用價值
周邊生活設施成熟且全面,方圓1公裏內,囊括了10大購物中心,包括許多零售商店和超市。
購物商店有超過300家專賣店,住戶出門即可享受電影、購物、美食等多種休閑活動的需求。
位于市中心附近,遠離主路,有潛力無限的商用價值。
位于優勢發展區,衆多購物中心和高校環繞,還有完善的配套設施都使得Paterson Residence成爲新加坡市中心附近炙手可熱的分層套房。
(3分鍾路程即可到達新加坡著名地標性購物中心—— ION Orchard)
位于優勢發展區,衆多購物中心和高校環繞,還有完善的配套設施都使得Paterson Residence成爲新加坡市中心附近炙手可熱的分層套房。
信息和照片來源:
PropertyLimBrothers官網和YouTube
網格
信息連結:
https://www.propertylimbrothers.com/paterson-residence




















