NO.1 項目介紹
35 Gilstead是位于新加坡黃金地段 第11郵區的稀有永久産權全新公寓項目,是一座擁有70套公寓的高端低密度住宅,戶型1臥至3臥。
該項目步行6分鍾即可抵達紐頓地鐵轉換站(Newton MRT),只需約13分鍾車程即可前往中央商業區(CBD),而到達烏節路也僅需5分鍾車程。讓您和家人能夠享受到優越的生活配套和出行便利。
該項目融合度假風格設計,裝修精美,格調優雅,是您城中度假的溫馨家園。而且在核心地段,靜中帶旺,出行便捷,擁有巨大增值空間,是自住、投資、出租的明智選擇。
永久地契(稀有核心中央區永久地契)
城中心高端低密度住宅(3棟5層建築)
70套單位,多個戶型可供選擇
每個單位附有私人電梯以及全屋配備SMART Home功能
配備24小時保安、景觀花園、遊泳池、兒童遊樂場等設施
出行便捷,5分鍾車程到烏節路,步行6分鍾到達紐頓地鐵站
著名的學區房,一公裏以內有百年名校英華小學
生活配套完善,周邊大型商場、美食中心、醫院等一應俱全
NO.2 便捷的交通及生活配套
35 Gilstead的位置非常優越,享有便捷的交通優勢。距離紐頓地鐵轉換站(Newton MRT)只需步行6分鍾,該地鐵站爲您提供了南北線和市中心線的靈活轉換選擇。
駕車人士通過泛島高速公路(PIE)和中央高速公路(CTE)可通往全島各地,非常方便。
周邊交通:
泛島高速公路(Pan-Islan Expressway)-6分鍾車程
中央高速公路(Central Expressway)-6分鍾車程
紐頓地鐵站(Newton MRT)- 步行6分鍾
諾維娜地鐵站(Novena MRT)- 步行10分鍾
Esplanade-Theaters On The Bay – 4站地鐵
新加坡濱海灣金沙酒店(Marina Bay Sands)-5站地鐵
新加坡濱海灣花園(Gardens by the Bay)-5站地鐵
35 Gilstead的周邊配套也非常完善,靠近諾維娜商業區(Novena Cluster),在那有許多商場,如大華廣場購物商場(United Square Shopping Mall)等,以及著名的美食中心Newton Food Center 紐頓熟食中心,爲您提供許多的購物和餐飲設施。
如想到新加坡最大的購物區烏節路也非常方便,約5分鍾車程或者步行約15分鍾即可到達,那裏各大購物中心林立,是新加坡首屈一指的購物區。
35 Gilstead附近是新加坡著名的名校區,對于年輕夫婦或有孩子的家庭,附近有曆史悠久,享譽盛名的名校可供選擇,孩子的教育更有保障。
一公裏以內的學校:
聖雅各堂幼稚園
St James‘ Church Kindergarten-步行2分鍾
英華小學
Anglo-Chinese School(Primary)-步行11分鍾
英華中學
Anglo-Chinese School(Barker Road)-步行14分鍾
其中英華小學(Anglo Chinese Primary School)成立于1886年,是一所有著百年曆史的學校。
周邊配套:
諾維娜健康城 Health City Novena -步行約10分鍾
新加坡 Velocity @ Novena Square- 步行約10分鍾
大華廣場購物商場
United Square Shopping Mall -步行約10分鍾
紐頓熟食中心 Newton Food Center -步行11分鍾
Wheelock Place-6分鍾車程
新加坡百麗宮 Paragon -6分鍾車程
Dempsey Cluster-10分鍾車程
荷蘭村 Holland Village -12分鍾車程
VR雲端看35Gilstead周邊配套
長按QR代碼進入即可查看
NO.3 設計與戶型
35Gilstead現有3棟5層高的建築,共計70個單位,有1臥至3臥的多個戶型可供選擇,每個單位都附有私人電梯。
這裏還配套有種滿不同植物的景觀花園、24小時保安、遊泳池、陽光甲板、健身房、功能房、花園燒烤和兒童遊樂場等設施。讓你可以在這裏細細品味生活和悠閑地體驗各種活動。
該項目的理念是打造市中心度假山頂豪宅,現代輕奢冷色調裝修風格,時尚奢華,唯美溫馨。黑白灰的主色調,配原木色地板和暖黃燈帶,色彩點綴恰到好處。加上落地大玻璃窗,視野開闊,滿眼大自然畫卷。
全屋配備SMART Home功能,令您的生活更便捷,享受更高品質的生活。能在寸金尺土的新加坡市中心擁有一套旺中帶靜的舒適居所,實屬難得。
價格詳情
VR雲端看房
長按QR代碼進入虛擬板間看房
一 房
兩 房
三 房
一 房+書房
一 房+書房頂層豪華公寓
一 房+書房優質公寓
經 典 兩 房
雙 鑰 匙 兩 房
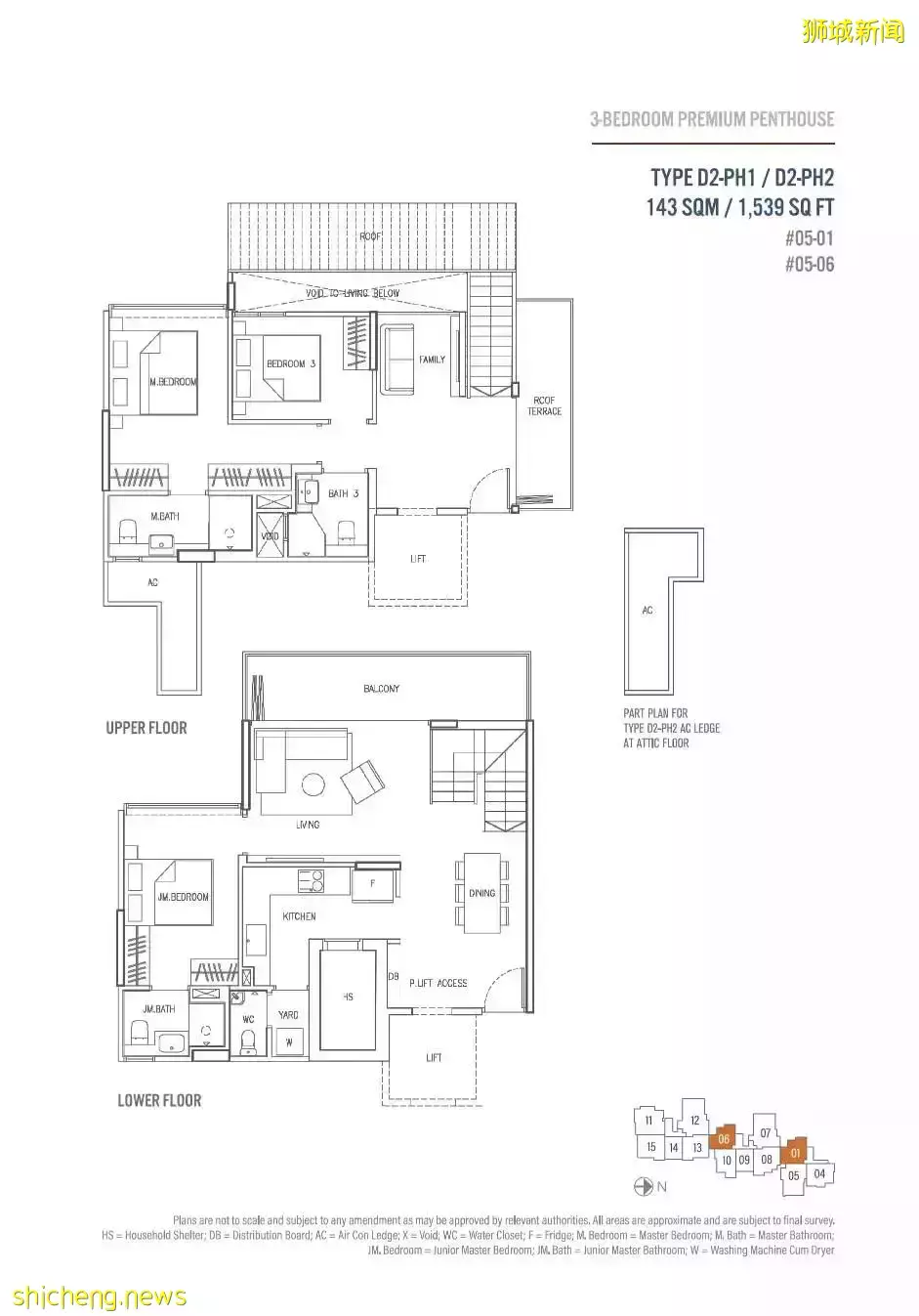
三 房 經典頂層公寓
三 房 豪華頂層公寓
NO.4 知名發展商
Amcorp Forward Pte Ltd
該集團是一家知名的房地産開發商,在新加坡、馬來西亞、澳大利亞和新西蘭均設有辦事處,一直致力提供高質量的住宅和商廈。他們的房地産開發項目主要是永久業權,針對的是中高收入的消費者。
該集團成立于2012年,並于2013年在新加坡交易所主板上市,是新交所主板上市的TEE International Limited的子公司。
他們擁有豐富的專業知識和資金來支持他們的開發項目。從排屋,半獨立式住宅,高檔平房到公寓,標志性的獨特建築作品令他們始終獨樹一幟。他們對項目的熱情和堅持,使各個項目一直得到該領域傑出專家的認可。
資料來源:百度
免責條款:價格僅僅爲2022年1月參考指引價。隨庫存變化和發展商調價,上述數字或有差異,價格以成交前更新數字爲准。






































