2022年開年的第一個新項目The Arden,位于西部Bukit Panjiang 地鐵站附近,由青建開發,整個項目從有地住宅收購而來,周邊環境都是低密的有地別墅環境。
這個項目總體來說重質不重量,采用低單位數目,高層高設計,注重生活品質。
預計于2月底開盤,是2022年尺價最低的一個項目。
The Arden雅詩軒
01 基本信息
The Arden
基本信息
樓盤名稱:The Arden 雅詩軒
發展商:青建置地QingJian Realty Group
地址:Phoenix Road(District 23)
占地面積:6464平方米
年限:99年
完成年份:2025年
單位數量:105
規模:3棟5層樓高的單位組成
家電品牌:BOSCH, Roca, hangrohe, TECE and FRANKE
The Arden雅詩軒 位于D23郵區的2-24 Phoenix Road Choa Chu Kang Singapore 668168, 由知名開發商QingJian Realty Group開發。The Arden雅詩軒 擁有 99年産權,包括2室,3室,4室,共105個單位。
02 項目要點
The Arden
坐落于第二十三郵區-位于私人有地住宅聚集區
罕見的精品開發,注重質量而不是數量。
200米內輕軌連接DT line 和南北線,步行7分鍾到bukit Panjang MRT
步行距離內三個大商場Junction 10, Hillion Mall, 和Bukit Panjang Plaza,加上蔡厝崗的lot one, 很容易去的有4個大商場
帶有智能家居
靠近武吉知馬自然步道步道和武吉知馬自然保護區。
驅車片刻即可抵達中央商務區和濱海灣金融中心。
青建設計,戶型方正,實用寬敞,南北向爲主
層高都是3.2米通透大氣,PH客廳層高4.5米
設計實用,功能性好,每個普通房9平米,主人房13-15平
2房Deluxe以上就有封閉廚房和煤氣竈,最小兩房是電磁爐
超大4+S在四個臥室,書房,HS基礎上還有小儲藏間,HS 都有折疊門,方便做女傭房
03 周邊
該項目周邊優質教育資源充足,學前班小學至中學、大學,家中有學齡兒童的父母無需擔憂孩子上學問題。
Ado Learning Educare Centre
Hijra Kindergartens
Teck Why Primary School
Teck Why Secondary School
MindChamps PreSchool
West View Primary School
Assumption Pathway School
Chua Chu Kang Primary School
Bukit Panjang Primary School
Cha Chu Kang Secondary School
West Spring Secondary School
South View Primary School
Zhenghua Primary School
Methodist Girls’
School
Raffles Girls’Primary School
Nanyang Girls’High School
National Junior College
Hwa Chong Institution
Singapore Chinese Girls’ School
St. Joseph Institution
04 戶型分布
主力戶型
2室
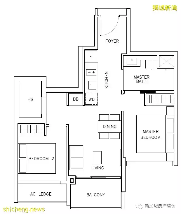
B1戶型 2 室 657平方英尺/61平方米
主力戶型
2室豪華
B2戶型2室 721平方英尺/67平方米
主力戶型
3室
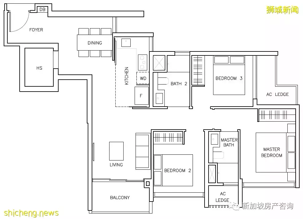
C1戶型 3室 1021平方英尺/94平方米
主力戶型
3室+書房
C2戶型 3室+書房 1109平方英尺/103平方米
主力戶型
4室
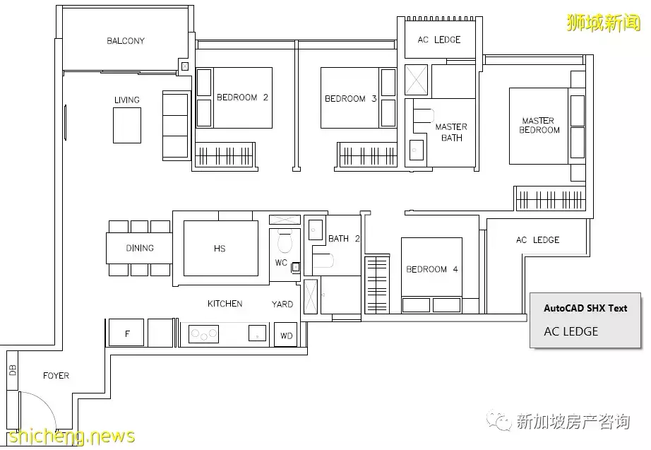
D1戶型 4室 1206平方英尺/112平方米
主力戶型
4室+書房
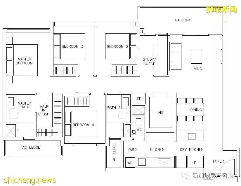
D2戶型 4室+書房 1388平方英尺/129平方米















