上周財政預算案,財政部長宣布將對新加坡年價值超過3萬新元的自住住宅物業征收更高的房産稅!
(圖源:CNA)
這些物業占新加坡所有自住住房單位的前7%頂級單位,也就是前7%的豪宅需要交更多的稅。
加稅將分2023年和2024年兩個階段進行~
這到底會影響房價走勢嗎? 房産稅怎麽收?
這樣影響租金、房價
財政部給出了一個例子: 到2024年,位于中心地段、年價值4萬新元的公寓的業主將不得不多付200新元的房産稅。
比較極端的情況,那些年價值15萬新元的擁有”非常大片 “土地房産(如有地洋房)的業主將不得不多支付15,400新元的房産稅!
(示意圖:Edgeprop)
在未來兩年內,房産稅也將適用于所有非業主居住的住宅物業,也就是出租的房子也要交。
算下來,到2024年,住在各種物業裏面的人大概要交這麽多稅:
年價值1萬新元的非自住住房和發展局(HDB)單位,約200新元;
位于中心地段的私人公寓年價值爲40,000新元,約1,400新元;
年價值15萬新元的大型土地房産,約19,200新元。
這會産生什麽影響呢?首先租金應該會上漲: 一些房東可能會提高租金以補償他們需要支付更高的稅款~
那些租住豪華公寓的人可能受影響更大, PropertyGuru的一位經理就認爲增加的房産稅將影響到每月支付超過1萬新元租金的租戶,因爲豪華的房産的稅率提高得更厲害。
但是對于房價,多個專家都表示,房産稅可能不太會影響到房價。
增加房産稅的目的是爲了加強稅收制度,以確保其更加公平和累進。
對投資者而言,通常對購買房産持長期觀點,關注長期回報、資本增長潛力以及作爲保存財富的手段。
對大衆化私人住宅的大部分自住者而言,不太受此次加稅影響。
當然豪華或高端房産的銷售可能會放緩。
比起加稅,其實前段時間的“降溫政策”如印花稅和貸款比例影響更大,不過這兩項都是在去年12月推出的。
(圖源:8視界)
一句話評論此時增加房産稅:
“如果房地産投資者願意支付投資房地産所需的其他費用和稅收,增收的房産稅也是可以接受的,這不會是壓倒駱駝的那根稻草。”
既然業界覺得房産稅對租金有一點影響而對房價反而影響不大,那今年想買房的人可以放心了!
這邊有一個新樓盤介紹給大家
推薦!
迎 新 園
促銷活動中 發展商給出吸引人的折扣!
1臥室 享受4萬折扣
2臥室 享受5萬折扣
3臥室 享受7萬折扣
4臥室 享受8萬折扣
迎新園
項目賣點: 3分鍾步行到Bartley地鐵站,交通便利
2022年底就可以交房,等待時間短 雙學區房,海星小學和美以美女校 1樓和5樓的單位擁有雙層高,發展商沒有算空中的層高面積,高性價比 靠近東北部最大商場Nex Mall,高文購物商場、濕巴刹(菜市場) 視頻介紹:
基本信息介紹
迎新園屬于稀缺的永久地契項目,距離巴特立地鐵站300米 ,約3分鍾就可步行到地鐵站,只需一站到達轉換站實龍崗地鐵站(紫線和黃線地鐵)。
占地面積爲13,568平方米,總共250個單位,戶型從一臥室到4臥室單位,還有7個頂層閣樓單位,面積介于41平方米到166平方米。
周圍環境清幽,都是私人住宅區,以洋房、公寓爲主。
預計交房日期2022年12月, 交房時間快,適合想買房盡快入住的朋友哦,有興趣朋友添加文章尾端微信~
卓越的地點
衆所周知,對購買者來說,地點是最重要的因素之一,實龍崗地鐵是黃線和紫線的轉換站,還有巴士總站,新加坡東北部最大的商場NEX Mall就在這,擁有銀行、圖書館、NTUC超市、餐館、補習中心、零售店面等,只需2站即可到達碧山地鐵站,7站地鐵到烏節路地鐵站,別忘了實龍崗花園的美食區忠忠熟食中心,周圍店屋美食餐館林立。
優質教育資源
衆多名校圍繞,是名副其實的學區房,新加坡知名學校如新加坡海星中學附屬小學、巴耶利峇衛理女子小學、養正小學、中華中學、聖加布裏埃爾中學、南洋初級學院、南洋理工學院(NYP)等皆在幾公裏範圍內, 其中海星中學附屬小學、巴耶利峇衛理女子小學都在一公裏內哦,國際學校如美國史丹福國際學校、澳大利亞國際學校和博偉國際學校只需兩站地鐵,全方位滿足您對小孩教育方面的需求。
生活便利
蓮逸軒的住戶只需步行幾分鍾可以到對面的鄰裏商場肯辛頓商場(Kensington Square),商場裏面有超市、零售店面、餐飲店等,這附近還有保留店屋供餐飲用途。靠近海南村巴刹(Hainanese Village Centre)和高文巴刹與熟食中心(類似國內菜市場),那裏可以提供新鮮而物美價廉的蔬菜、肉類、海鮮和水果,也有很多本地美食攤位,全方面滿足您生活方面的需求。
樓盤圖片欣賞
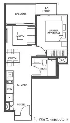
戶型圖和參考價格
附注:價格以新幣爲單位,以看房時選的單位價格爲准 一臥室,面積爲43平方米,價格104萬起,促銷價100萬新幣起
兩臥室,面積爲58平方米,價格137.5萬起,促銷價132.5萬新幣起
兩臥室+書房,面積爲65平方米,價格150.5萬起,促銷價145.5萬新幣起
三臥室,面積爲79平方米,價格187.2萬起,促銷價180.2萬新幣起
三臥室優質型,面積爲89平方米,價格201.2萬起,促銷價194.2萬新幣起
三臥室豪華型,面積爲98平方米,價格228.3萬起,促銷價221.3萬新幣起
四臥室豪華型,面積爲119平方米,價格268.9萬起,促銷價260.9萬新幣起
迎昕園樣板房圖片(供參考)





























