新加坡除了本地富豪,還有東南亞和天朝土豪
新加坡超過3000萬身價人數現在有4206人
預計2026年會到6007人
天朝估計到時有13.3471萬人達到人民幣2億身價
我把錢換成越南盾也有2億身價了
怪不得分析師預測今年豪宅會繼續起價,原來富豪多了
在限購政策特別是額外印花稅的背景下,越來越多持有改善性需求的中高端客戶選擇大戶型平層産品一步到位。放眼全球,近年來,福布斯評選出的全球十大最貴豪宅中,大平層曾一度占據7席,這與新加坡的大平層成爲豪宅主流的現狀相呼應,新加坡成交最貴的華麗世家公寓和之前一鍋端的Eden也是大平層。
大平層是指面積較大的平層住宅。從産品上來看,大平層屬于高端公寓的一種,常分布于高層或多層住宅的全幢或部分樓面,以面積大、功能完善爲主要特征。它突破了普通公寓産品的設計理念,實現了一層一戶、大面寬、全景觀的空間布局。
大平層一般都有一個大廳,這裏可以讓孩子跑步比賽
大平層産品是把別墅的功能區都放在一個平面上,即在一層內解決了家庭生活的所有功能。避免了中老年人頻繁上下樓的不方便。寬敞的空間布局能讓主臥空間、客廳等生活和服務功能的空間被強化,並且在舒適度上更加貼合高端人群需求。
從新加坡核心豪宅區的位置來看,大平層主要集中在Orchard,Tanjong Pagar, Marina Bay, Keppel Bay和East Coast,這裏我定義大平層就算是180平米或2000平方英尺以上,一般是3-4房以上,這裏說明一下新加坡是實際得房面積,沒有公攤的,大概相當于國內的230平米。
目前市場上有剩余大平層現房的有:Eden Residence Capitol, Marina One Residence, South Beach Residence, Wallich Residence等。
能購置得起頂豪的買家,在占據核心區位核心資源的訴求之外,就是重視生活空間的生活美學設計。最小戶型面積段都集中在100㎡,大戶型面積都在在200㎡以上。唯有大空間,才能承載更多亮點功能設計,實現居住舒適度。這些豪宅小區裏面,賣得快的都是大戶型,比如最近Boulevard 88,Avenir和Park Nova都是這樣,土豪不好意思去買小戶型,也許覺得沒面子,所謂甯爲雞頭,不爲鳳尾。
爲何新加坡
新加坡的房價最近表現不錯,有點慢牛的感覺
量也上來了,量價齊升才可以持續
一年來組屋和公寓都是聯手上漲
豪宅上漲的主要原因還是低利率和有錢人多了
許多有錢人來新加坡買買買,誰叫新加坡這麽宜居呢
富人覺得安全,窮人也有尊嚴
還有許多年輕人也很會賺錢,這位小弟28歲就買GCB
看來賣椅子也很賺錢,當年應該去學做木匠的
真的是英雄出少年,我們大多數人28歲連組屋都買不了
因爲很多還沒有對象,願意把名字借過來一起買
因爲低稅和低利率,許多富人都來到新加坡,如果想投資和了解新加坡八卦,歡迎關注我的公衆號或者加我微信Tianpengxia1984
2. 烏節路
說起烏節路曾經是果園,除了種植榴梿芒果等水果,尚有甘蔗、胡椒、肉豆蔻之栽種,那邊還有些老地主留下的100年前的二層房子,地價都不得了。至1860年代,種植園被大量平房所取代,並且有山路穿越,經過100多年發展,現在成了新加坡最著名的購物區及商業大街,相當于上海的南京路,北京的王府井。現在政府也有重新發展烏節路的計劃,會帶來更多的綠色。
烏節路馬路兩旁大興商場和百貨公司林立,包括義安城、威士馬廣場、愛雍.烏節、[email protected]、Orchard Central 及會德豐廣場等。商場後面就是酒店和一系列高檔公寓,那邊的物業費都不便宜的,一般2房要$800,3房要上千,不過住那邊的人都不在乎這個,那邊隨便去上餐館就可以花這個錢。
烏節路傳統上分兩塊,北邊是Cairnhill,南邊是River Valley,Cairnhill那邊有St Ritz Residence, Nouvel 18和新開的Klimt Cairnhill,River Valley這邊有Park Nova, The Avenir, Irwell Hill Residence, 3 Orchard by the Park.
2.1 St Ritz Residence
位于Cairnhill 山上,跟最近要開的Klimt Cairnhill很近,只有58個單位,裝修極致豪華,電梯那裏的扶手都包了鴕鳥皮,是我見過最高檔的現房,有興趣來看了你就知道。
2.2 Nouvel 18
名築Nouvel 18在Admore路,隔鄰香格裏拉酒店,小燕子趙薇在那附近築了幾個燕窩。
樓盤是法國設計師,彭蕾老公老孫在隔壁買了一個頂層,也是同一個設計師的
這間4臥房附加書房的大平層是小區最大戶型,總面積230平方米,戶型方正大氣,景觀很好,最近被天朝土豪爆買。
2.3 Klimt Cairnhill
這是即將開盤的一個豪宅,現在可以預約,誰想去看跟我說,賣點除了地段好,全棟樓都是土豪金色,開發商還花了1億坡幣買了旁邊一個GCB來做Club house,真的是有錢任性。
這個樓盤配置很高檔,會有大平層,估計會首先賣大的。
2.4 3 Orchard by the Park
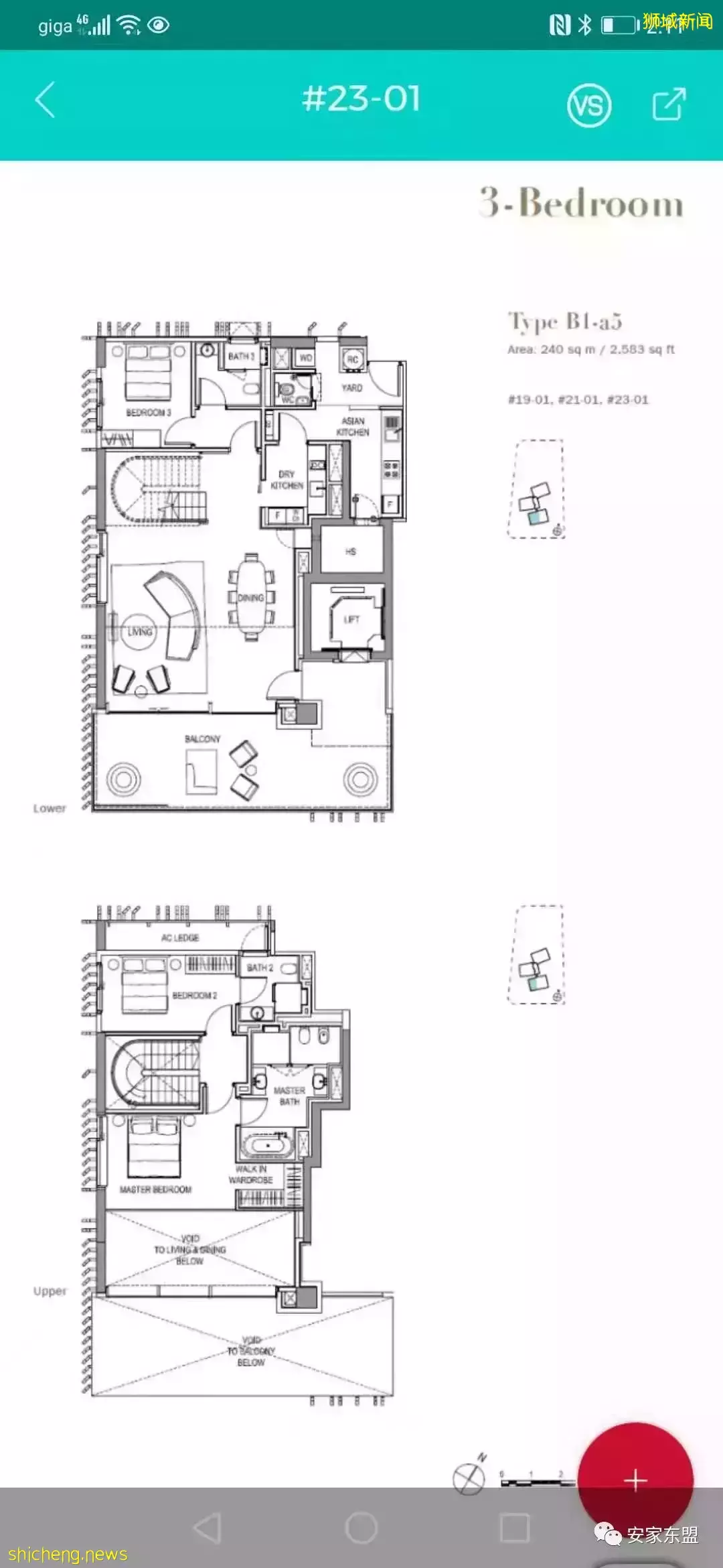
烏節三翠林是由楊宗禮開發商開發和設計大師安東尼奧•奇特裏奧操刀設計的經典作品之一。內部設施豪華,住宅單位布局合理,裝修符合華人審美,還剩下少許大平層,套內面積210平米,現在有5%折扣。
其三房也有複式的
2.5 The Avenir
這個項目我曾經說是四大美女的趙敏,這裏就不老調重彈,直接看戶型圖,想看詳細的請點擊:
River Valley的新四大美女樓盤:Avenir,Park Nova, Boulevard 88, Irwell Hill
好處是物業費便宜
2.6 Irwell Hill Residence
這個項目我也寫在張無忌的四大美女中,四房和Penhouse如下戶型:
2.7 Boulevard 88
3房165平米,大概660萬
2.8 Park Nova
3房205平米
3. Tanjong Pagar
Tanjong Pagar是傳統金融區,老李做議員的地盤,豪宅只有一個華麗世家,這也是新加坡最高樓,七合一綜合體。之前戴老板也買了,虧了一些錢賣掉了,有興趣看八卦的可以看這篇文章。
還有一些Penthouse,價格好商量。
4. Marina Bay濱海灣
濱海灣是填海出來的,20年前還是一篇灘塗,因爲老李堅持要開賭場,在一片沙子的灘塗上賭一把色子,出來一片辦公樓和高檔住宅去。由于靠近CBD和濱海灣金沙等休閑、旅遊及高檔購物群的興起,近10年來形成一個高檔社區。這邊的賣點是海景、國家級濱海花園、濱海灣景、金融區和市中心區域,南邊靠Garden by the Bay也會有新的住宅,從商務區域蛻變爲一個集生活、工作、消閑和娛樂的中心,有很大的發展空間。。
4.1 Marina One Residences
新加坡濱海灣金融中心新亮點, Marina One Residences (濱海盛景豪苑) 地理位置優越,位于迷人的濱海港灣,在連接城市以及地鐵建設範圍內,居于新加坡著名的世界級金融商務區。由淡馬錫控股和國庫控股的合資企業,馬新私人有限公司(M+S Pte Ltd)聯合發展。國庫控股董事總經理阿茲曼雅亞指出“濱海盛景"將爲新加坡濱海灣金融中心打造新亮點,可媲美美國金融中心曼哈頓及香港的中環;此外,該計劃也將爲濱海灣整體發展建設掀開新裏程碑。
濱海盛景豪苑由兩棟34層高級公寓大廈組成,合共1,042個租賃期99年的公寓單位。由德國著名建築設計公司Christoph Ingenhoven操刀。濱海盛景豪苑是包括豪華公寓,零售,甲級寫字樓的綜合發展樓層。商業裙樓位于蔥郁的花木園林內,零售組合包括美食廣場,特色餐廳,超市,餐飲店,生活便利店(約140000平方英尺可出租面積)。辦公室可分爲濱海一號東塔和西塔兩個位置,總包括 30層的高級商業大樓約188萬平方英尺的可出租面積。
濱海盛景豪苑將提供一個充滿活力和吸引力的生活方式。綜合生活,工作,旅遊,商業和金融中心爲一體優質結合。公寓通過大量的開放空間和蔥郁的綠化提升給你不一樣的視覺體驗。濱海盛景豪苑公寓突顯了新加坡“城市在花園”的概念,是建築風格獨特的“綠色心髒”的多樣化花園。公寓可連結濱海廣場和城市中央公園,以及以項鏈形式圍繞濱海灣的休閑娛樂,當地文化,餐飲景點。
Marina One Residences(濱海盛景豪苑)也非常方便,項目周圍共有3個地鐵站提供4條主要地鐵線服務。濱海灣地鐵轉換站(Marina Bay MRT)目前可爲住戶提供地鐵南北線(MRT North South Line)和地鐵環線(MRT Circle Line)的服務,該站只離 Marina One Residences(濱海盛景豪苑)約200米。而湯申-東海岸地鐵線(Thomson-East Coast MRT Line)的Marina Bay段也將在2022年完工。濱海灣地鐵轉換站(Marina Bay MRT)正是該地鐵線通車的其中一個地鐵站。項目旁的市中心地鐵站(Downtown MRT Station)也爲住戶提供濱海市區地鐵線(Downtown MRT Line)服務。
現在剩下單位不多,四房戶型還不錯,很方正。
廳相當大,土豪可以邀請許多人來開party
3房也不錯,430萬可以買到24樓帶裝修的海景房
這個項目去年被幾批中國買家打包來買,深受土豪喜愛
喜歡的話這邊也有3維圖,要看房隨時聯系Ben 96951591,我這個月已經賣了2套那邊的,有點經驗
https://chio.space/virtual-tour/marina-one-residences
4.2. South Beach Residence
這個樓盤位置也很好,離City Hall很近,可惜就是大平層都賣掉了,要來的話二手吧。
4.3 Eden Residence Capital
這個在Stanford Road,也離City Hall地鐵站近,但戶型一般,賣得不太行,價格好商量。
項目: 集酒店、商場、劇院、住宅爲一體的豪華綜合項目. 直通政府大廈地鐵站。
位置: 位于史丹佛路, 第6區, 緊鄰新加坡曆史區, 金融區和烏節購物區
便利性: 直通“政府大廈”地鐵站, 毗鄰主要高速道路
獨特的賣點: 全新豪華公寓, 僅39戶, 超大住宅面積 , 2個停車位
項目資訊: http://bit.ly/EdenResidencesCapitolDetail
三臥+書房 (3003 – 3068平方英尺)$10.16m 起
四臥+書房: (3369 – 3391平方英尺) $11.599m 起
四臥閣樓: (5802 – 6469平方英尺) $21.884m 起
五臥閣樓: (6609平方英尺) $24.93m
每平方英尺價格 $3383起
線上看房
4️⃣臥閣樓
http://bit.ly/EdenPenthouseV360
3️⃣臥+書房
http://bit.ly/Eden3BRStudyV360
5. Keppel Bay
Keppel Bay也算是一個富人區,許多人住聖淘沙每天進出島不方便,甯願住在Keppel Bay,目前開發商在賣的Penthouse主要在Reflection at Keppel Bay。
剩下單位不多,覺得這個Penthouse還不錯
這個大客廳的也是這裏
Corals也有蠻大的四房在賣
這邊的環境非常好,小孩很喜歡
遊艇+美女是超級土豪的標配
我今年初接了個單,一個土豪花了2000萬歐元去歐洲定了個遊艇
還帶一幫以前海工的兄弟們幫他審圖了2個月,大家賺了點雞蛋錢
6. East Coast
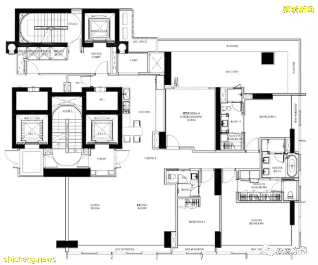
也算是富人區,目前有很獨特的大平層,一家只有一戶電梯的Meyer House。
今年就要交房,外面風景也不錯
來看看霸氣的戶型吧
3房196平米
4房276平米



































































