簡介
One Pearl Bank 萬寶軒位于D03郵區的 1 Pearl Bank, Singapore 169016,是由知名開發商CapitaLand(凱德集團)開發的高層公寓項目。該項目業主擁有 99年産權,戶型包括1室,2室,3室,4室,共計774個單位。計劃于2024年12月完工。
新加坡郵區分布圖
樓盤概況
樓盤名稱:One Pearl Bank
開發商:Areca Investment Pte Ltd
産權:99年
完成年份:2024年底
單位數量:774
樓層數量:39
起始總價:新幣 S$1,083,000
每平方英尺起始:新幣 S$2,513
One Pearl Bank 凱德集團(CapitaLand)
TVRFeExqWTFMalExTGpFME53PT0=
品味熱情舒適空間
惬意舒適的空間輕松的讓他人的關懷化爲烏有。一個提供靜谧安逸居住空間的溫馨家園,讓您完美享受理想生活。
這就是心之所往的瑰寶之地。
惬意休閑陽台
在這裏體驗理想生活,享受完整人生。
珍珠山公園(Pearl’s Hill City Park)
修養身心,心情複蘇並重煥活力的靜谧安逸所在。
提供一切安谧閑適設施的理想聖地
舒心惬意的小憩勝地
回歸溫馨家園,感受熱帶雨林。
所有地面設計都旨在讓您舒緩身心、慰藉感官。
輕拂湛藍水面,享受舒適清爽。
私人露台
爲您指引前往清幽靜思角的道路,這裏是冥想和沉思的天堂。
拓展嶄新視野,開啓全新體驗
在我們打造的花園社區裏占有一席之地,種植屬于您的花草,享受花園成長的樂趣。
惬意休閑陽台
吸人眼球的唯美天空
欣賞歎爲觀止的迷人景觀時,您會爲選擇了這個舒適住宅而心滿意足。
零裝修的室內空間爲您想要的一切提供無限可能,讓您毫無壓力的入住。
任何空間和住宅立面景觀都讓您倍感舒適。
One Pearl Bank
閑適舒心之地——置身熱帶雨林的靜谧家園。
近在咫尺的優質設施
專屬于您的舒適區
盡享垂涎美食
步行5分鍾即達
中峇魯
恭錫路
武吉巴梳
牛車水
享有得天獨厚的交通連接性
歐南園地鐵站
步行/驅車5分鍾即達
歐南園三線轉換站
中央快速公路/阿亞拉惹快速公路/泛島快速公路
加冷-巴耶利峇高速公路/東海岸公園大道
驅車25分鍾即達
中央商業區/濱海灣(20分鍾)
烏節路(10分鍾)
樟宜機場/星耀樟宜(25分鍾)
輕松休閑時刻
驅車10分鍾即達
濱海灣花園
聖淘沙
金沙購物中心
珍珠山公園
福康甯公園
與曆史文化的絕佳連接
驅車10分鍾即達
新加坡國家博物館
新加坡國家美術館
亞洲文明博物館
濱海藝術中心
住宅區域設施
圖例:
A 步行入口通道
B 生態池
C 通往負2層通道
D 室外涼亭
E 遊泳池
F 水上健身房
G 按摩池
H 泳池躺椅
I BBQ區域
J 兒童泳池
K 孩童遊樂草坪
L 多功能室
M 蜿蜒小徑
N 晨練角
O 公園通道
P 運動場
Q 寵物公園
R 落客區
S 配置花園(每隔四層)
T 服務區(一樓)
-發電機組
T1 服務區(負一層)
-大型垃圾池
-變電室
凱德集團(CapitaLand)
凱德集團(CapitaLand)是亞洲最大的房地産公司之一,總部設在新加坡,並在新加坡上市。截至2019年3月31日,集團擁有並管理著價值逾1030億新元的全球投資組合,包括綜合開發項目、購物中心、長租公寓、辦公室、住宅、房地産投資信托(REIFs)以及基金。截至2019年3月31日,凱德集團(CapitaLand)的市值約爲150億新元。集團業務遍及全球30多個國家的180多個城市,以新加坡和中國爲核心市場,並不斷開拓越南、歐洲和美國等市場。
凱德集團(CapitaLand)的競爭優勢在于其雄厚的資産基礎和廣泛的市場網絡。集團憑借廣泛的設計、開發和運營能力,開發並管理著高品質的房地産産業和服務。集團還擁有馬來西亞最大的凱德商用信托、凱德商務産業信托、雅詩閣公寓信托、凱德零售中國信托以及凱德商用馬來西亞信托。
開發商:Areca Investment Pte Ltd(199500924C)
開發商許可證編號:C1313
地址:00189L, TS 22, A22,珍珠苑/歐南園路
地契:99年,2019年3月1日
預計完工日期:2023年12月31日
預計法定完工日期:2026年12月31日
– 地理位置 –
新加坡中央醫院-校園投資合作
20年轉型成爲新加坡最大的醫療中心
高投資潛力-擁有龐大的租戶群
擁有10,000多勞動力並且在不斷增長
坐落在歐南園地鐵站-交通便捷
未來3條地鐵線的換乘站:EWL(東西線),NEL(東北線)和TEL(湯姆申-東海岸線)
與島嶼廣泛連通
兩三個站到中央商務區(CBD),多美歌站和濱海灣站
地鐵直接覆蓋連通這個公寓One Pearl Bank
你的私人門前花園
隱隱約約的翡翠綠色風景
9公頃郁郁蔥蔥的綠林
高大茁壯的天布樹(Tembusu Trees),豐富的樹木氛圍
和平甯靜的綠洲
遠離城市的喧嘩,在這得到休息放松
連接福康甯公園的山頂至山頂(1 8公頃)
升級,改善公園及休憩用地
引入遊樂場所和社區社交空間
加強其他主要綠地和娛樂休閑場地的聯通
擴展的自行車道,方便城市內的通勤
市中心-生活,工作和娛樂
市中心不斷發展,變得更有活力
多元化,充滿活力的24/7國際金融中心
更多就業機會和商機
令人歡快的街道和公共場所
令人愉快的鄰裏 – 衆多時尚區域
牛車水地區-擁有曆史遺迹和曆史悠久的街景
中峇魯地區-有著迷人的廣場,伴有時尚咖啡館和獨特商店
Bras Basah / Bugis(武吉士) / Civic District(區域)-藝術和文化活動中心
Fort Canning District-適合家庭人員的活動的休閑花園地帶
公寓獨特的賣點和設施
裝修翻新 – 全新概念
裝修翻新-自由理念
尤其適合需要立即入住的業主
精心挑選的飾面便于維護
方便投資者出租/業主入住
(圖片僅供參考)
先進的設備
帶轉台的全集成化設施廚房,由意大利Ernestomeda進口
擁有工程瓷磚級別的廚房台面和集成化水槽的優點
防汙耐髒性
衛生更易于清潔和護理
耐熱性
抗刮傷性
耐抗日常使用帶來的磨損
耐冰凍,耐低溫性
抗紫外線
耐碰撞,柔韌性高
抗折,抗彎強度高
高抗熱對比度
先進的設備
綜合廚房配有全套由瑞士制造的V-ZUG廚房用具和洗衣機和烘幹機
先進的設備
主浴室 – 家庭水療中心
噴射降雨式水療
出自Hansgrohe的配件
凹圓暗槽照明燈
一體化梳妝台和水盆的優點
耐碰撞,劃傷和熱沖擊
易于清潔,因爲它們的吸水率爲零
非常衛生,可防止細菌滋生
優雅,多功能的臉盆設計,與其他設施相得益彰,如廚房台面,營造均衡和諧的氛圍
大幅面瓷磚的好處
大幅面的樣式是當前流行樣式
提供更大的空間感
提供多種用途
易于維護
衆多健身設施
綜合智能生活管理系統
應用商店提供各種應用程序
智能集成化的鏡面
智能鏡面,爲每天的生活服務
時鍾
天氣預報
最新新聞
網頁浏覽器
門防盜眼
智能家居自動化控制
智能生活管理系統
……以及更多功能
發展要點
買方關注點-裝修翻新-全新概念
內部關注點-加大單位設施建設
健康關注點
個人花園
健身設施
綜合智能生活管理系統
擁有高投資價值,提供發展機會
賣點
隨處可達的周邊便利設施
交通連通性
Outram Park MRT Station
-East-west line
-Northeast line
-Thomson-East Coast line
Central Expressway
Ayer Rajah Expressway
購物/餐飲
Chinatown Point
Tiong Bahru Plaza
Orchard Road Shopping Belt 7分鍾車程
Chinatown Food Belt
Keong Saik Road
Duxton-Tanjong Pagar Food Trial
Ann Siang Hill Area
大自然/休閑中心
Pearl’s Hill City Park
Ann Siang Hill Park
Chinatown Cultural and Heritage Corridor
公寓提供的部分設施包括:
遊泳池
健身角
陽光甲板
健身房
功能房
花園燒烤亭
兒童遊樂場
1公裏內學校
Cantonment Primary School
2公裏內學校
Alexandra Primary School
Chij (Kellock)
Radin Mas Primary
River Valley Primary School
Zhangde Primary School
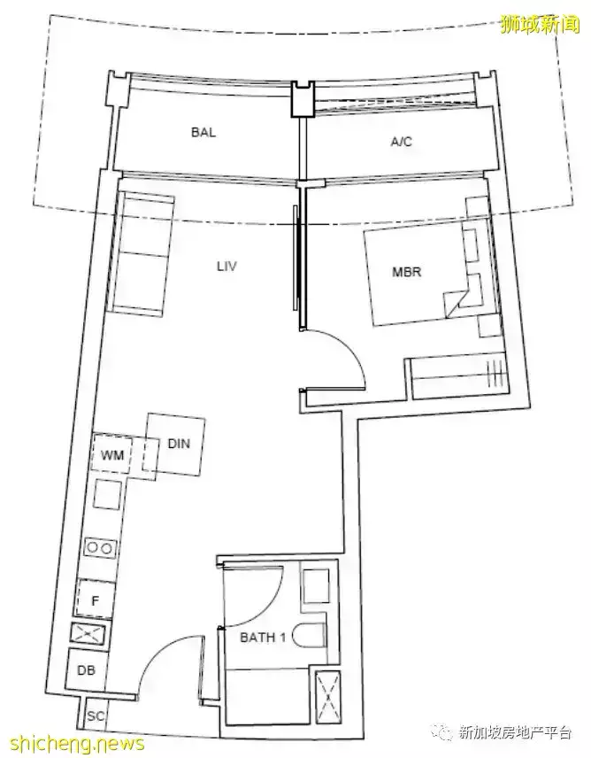
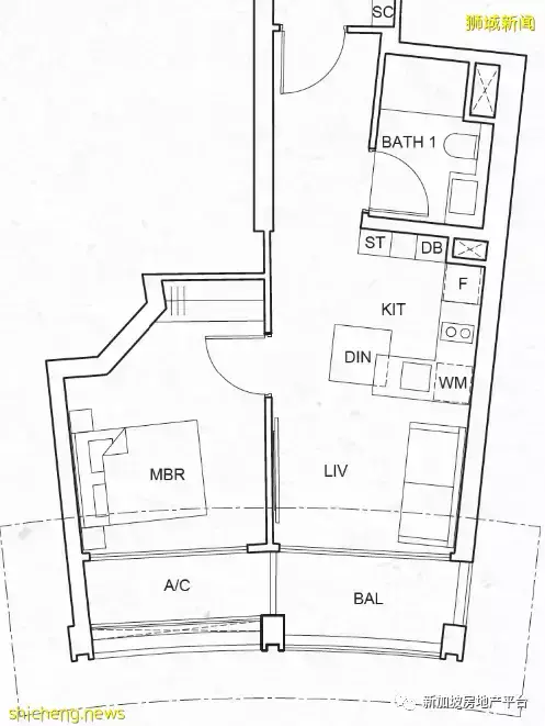
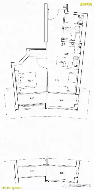
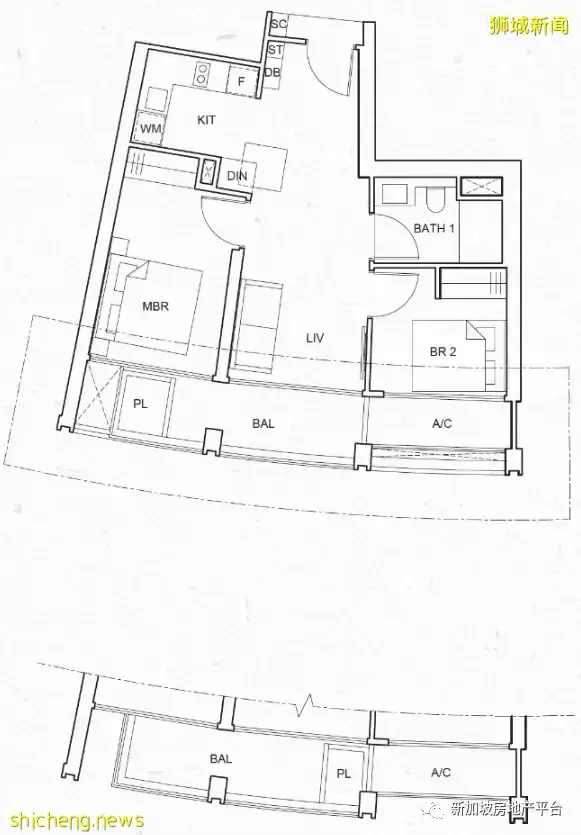
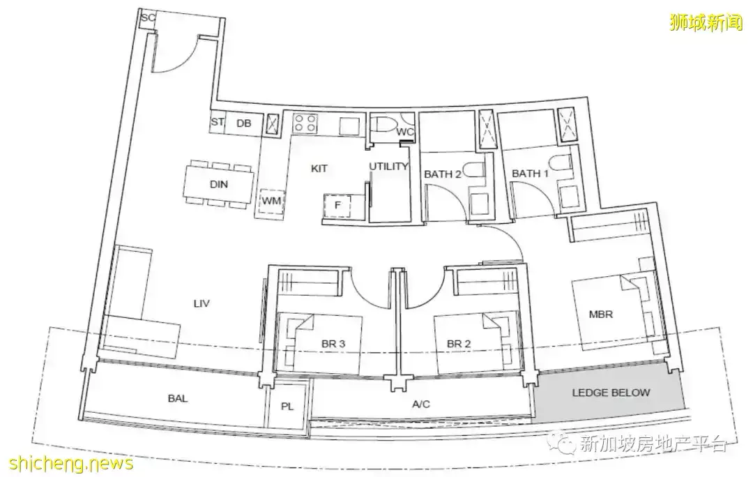
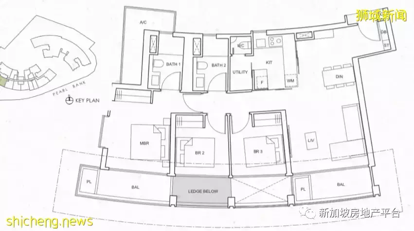
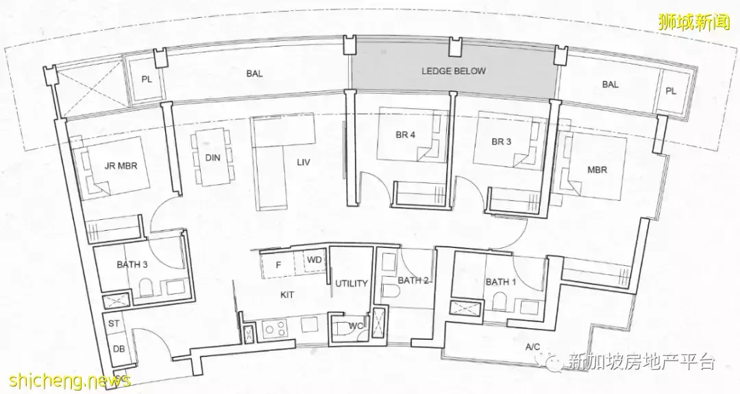
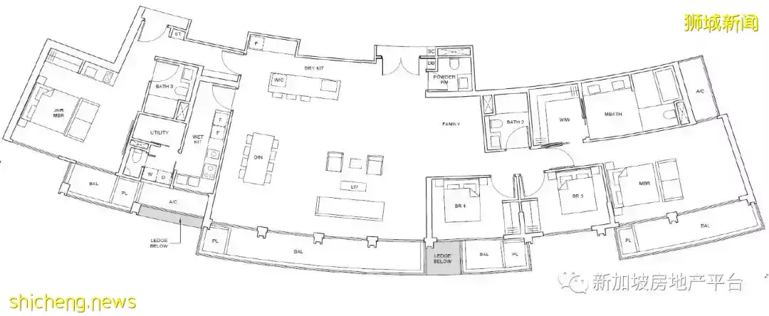
戶型分布
主力戶型
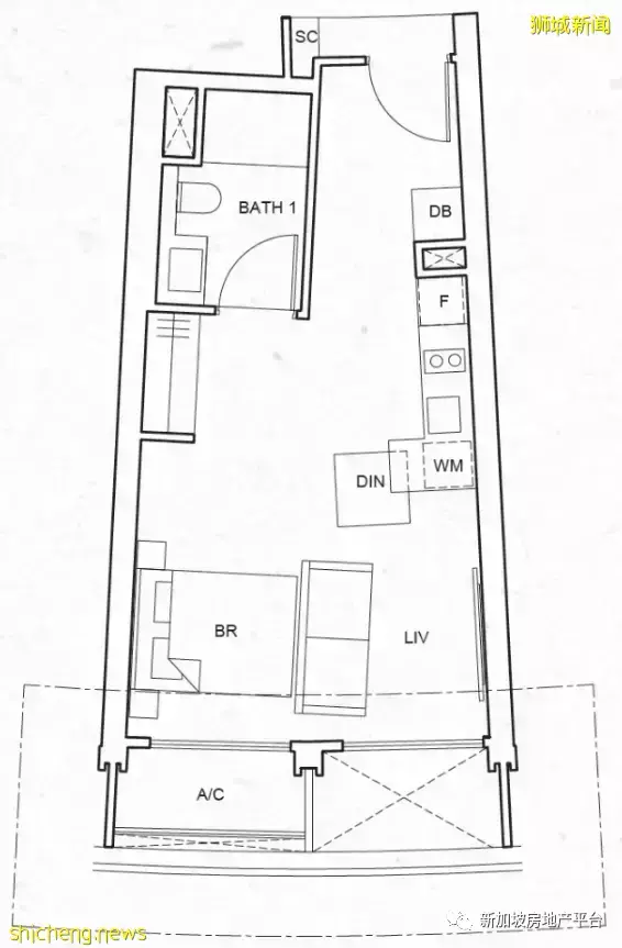
1室
新幣 S$1,496,000 起
B1-a戶型 1室 570平方英尺/53平方米
25%首付:S$374,000 / 75%貸款:S$1,122,000
30年貸款,2%利息,月供:S$4,147
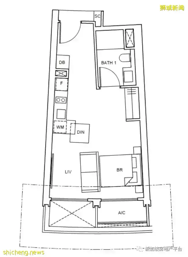
1室
新幣 S$1,501,000 起
B1-b戶型 1室 570平方英尺/53平方米
25%首付:S$375,250 / 75%貸款:S$1,125,750
30年貸款,2%利息,月供:S$4,161
1室
新幣S$ (售罄)
B3-a戶型 1室 527平方英尺/49平方米
25%首付:S$ / 75%貸款:S$
30年貸款,2%利息,月供:S$
1室
新幣 S$ (售罄)
B3-b戶型 1室 527平方英尺/49平方米
25%首付:S$ / 75%貸款:S$
30年貸款,2%利息,月供:S$
1室
新幣 S$ 起
B4-b戶型 1室 560平方英尺/52平方米
25%首付:S$ / 75%貸款:S$
30年貸款,2%利息,月供:S$
2室
新幣S$1,920,000 起
C1-a戶型 2室 700平方英尺/65平方米
25%首付:S$480,000 / 75%貸款:S$1,440,000
30年貸款,2%利息,月供:S$5,323
2室
新幣 S$1,839,000 起
C1-a(m)戶型 2室 700平方英尺/65平方米
25%首付:S$459,750/ 75%貸款:S$1,379,250
30年貸款,2%利息,月供:S$5,098
2室
新幣 S$1,864,000 起
C1-b戶型 2室 700平方英尺/65平方米
25%首付:S$466,000 / 75%貸款:S$1,398,000
30年貸款,2%利息,月供:S$5,167
2室
新幣 S$ 起
C1-b(m)戶型 2室 700平方英尺/65平方米
25%首付:S$ / 75%貸款:S$
30年貸款,2%利息,月供:S$
2室
新幣 S$1,908,000 起
C1-c戶型 2室 700平方英尺/65平方米
25%首付:S$477,000 / 75%貸款:S$1,431,000
30年貸款,2%利息,月供:S$5,289
2室
新幣 S$1,827,000 起
C1-c(m)戶型 2室 700平方英尺/65平方米
25%首付:S$456,750 / 75%貸款:S$1,370,250
30年貸款,2%利息,月供:S$5,065
2室 新幣 S$ (售罄) C2-b戶型 2室 743平方英尺/69平方米 25%首付:S$ / 75%貸款:S$ 30年貸款,2%利息,月供:S$
2室
新幣 S$ 起(售罄)
C2-c戶型 2室 743平方英尺/69平方米
25%首付:S$ / 75%貸款:S$
30年貸款,2%利息,月供:S$
2室
新幣 S$ 起
C3-a戶型 2室 893平方英尺/83平方米
25%首付:S$ / 75%貸款:S$
30年貸款,2%利息,月供:S$
2室
新幣 S$1,952,000 起
C3-b戶型 2室 840平方英尺/78平方米
25%首付:S$488,000/ 75%貸款:S$1,464,000
30年貸款,2%利息,月供:S$5,411
2室
新幣 S$ 起
C3-c戶型 2室 893平方英尺/83平方米
25%首付:S$ / 75%貸款:S$
30年貸款,2%利息,月供:S$
2室
新幣 S$ (售罄)
C4-a戶型 2室 840平方英尺/78平方米
25%首付:S$ / 75%貸款:S$
30年貸款,2%利息,月供:S$
2室
新幣 S$ 起 C4-b戶型
2室 807平方英尺/75平方米
25%首付:S$ / 75%貸款:S$
30年貸款,2%利息,月供:S$
3室
新幣 S$2,551,000 起
D1-a戶型 3室 1098平方英尺/102平方米
25%首付:S$637,750 75%貸款:S$1,913,250
30年貸款,2%利息,月供:S$7,072
3室
新幣 S$2,565,000 起
D1-b戶型 3室 1152平方英尺/107平方米
25%首付:S$614,250 / 75%貸款:S$1,923,750
30年貸款,2%利息,月供:S$7,111
3室
新幣 S$2,576,000 起
D1-c戶型 3室 1098平方英尺/102平方米
25%首付:S$644,000 / 75%貸款:S$1,932,000
30年貸款,2%利息,月供:S$7,141
3室
新幣 S$2,606,000 起
D2-a戶型 3室 1216平方英尺/113平方米
25%首付:S$651,500 / 75%貸款:S$1,954,500
30年貸款,2%利息,月供:S$7,222
3室
新幣 S$2,606,000 起
D2-b戶型 3室 1184平方英尺/110平方米
25%首付:S$651,500 / 75%貸款:S$1,954,500
30年貸款,2%利息,月供:S$7,222
3室
新幣 S$2.628,000 起
D2-c戶型 3室 1216平方英尺/113平方米
25%首付:S$657,000 / 75%貸款:S$1,971,000
30年貸款,2%利息,月供:S$7,285
3室
新幣 S$ 起
D3-a戶型 3室 1281平方英尺/119平方米
25%首付:S$ / 75%貸款:S$
30年貸款,2%利息,月供:S$
3室
新幣 S$2,793,000 起
D3-b戶型 3室 1195平方英尺/111平方米
25%首付:S$698,250 / 75%貸款:S$2,094,750
30年貸款,2%利息,月供:S$7,743
3室
新幣 S$ 起
D3-c戶型 3室 1281平方英尺/119平方米
25%首付:S$ / 75%貸款:S$
30年貸款,2%利息,月供:S$
4室
新幣 S$3,285,000 起
E1-a戶型 4室 1432平方英尺/133平方米
25%首付:S$821,250 / 75%貸款:S$2,463,750
30年貸款,2%利息,月供:S$9,107
4室
新幣 S$3,186,000 起
E1-b戶型 4室 1399平方英尺/130平方米
25%首付:S$796,500/ 75%貸款:S$2,389,500
30年貸款,2%利息,月供:S$8,832
Penthouse頂層閣樓
新幣S$9,000,000 起
F1戶型 Penthouse 2691平方英尺/250平方米
25%首付:S$2,250,000 / 75%貸款:S$6,750,000
30年貸款,2%利息,月供:S$24,949
Penthouse
新幣S$9,000,000 起
F2戶型 Penthouse 2788平方英尺/259平方米
25%首付:S$2,250,000 / 75%貸款:S$6,750,000
30年貸款,2%利息,月供:S$24,949
Penthouse
新幣S$ 起
F3戶型 Penthouse 2626平方英尺/244平方米
25%首付:S$ / 75%貸款:S$
30年貸款,2%利息,月供:S$
Penthouse 新幣S$ 起
F4戶型 Penthouse 2777平方英尺/258平方米
25%首付:S$ / 75%貸款:S$
30年貸款,2%利息,月供:S$
Studio工作室
新幣 S$1,172,000 起
A1-a(m)戶型 Studio 431平方英尺/40平方米
25%首付:S$293,000 / 75%貸款:S$879,000
30年貸款,2%利息,月供:S$3,249
Studio工作室
新幣 S$1,166,000 起
A1b戶型 Studio 431平方英尺/40平方米
25%首付:S$291,500 / 75%貸款:S$874,500
30年貸款,2%利息,月供:S$3,232
Studio工作室
新幣 S$1,176,000 起
A1b(m)戶型 Studio 431平方英尺/40平方米
25%首付:S$294,000 / 75%貸款:S$882,000
30年貸款,2%利息,月供:S$3,260
END



























































































