項目介紹:
Penrose地處RCR中央邊緣區,靠近市區,有1臥室到4臥室戶型供選擇,全方面滿足投資者和自住買家的需求,總共566個單位,由新加坡著名建築設計公司P&T Consultants Pte Ltd和園林設計公司Ecoplan黃金組合聯合設計,預計交房時間2025年10月(通常會提早交房),2分鍾可以步行到Sims Vista熟食中心(吃飯、買菜等),駕車的朋友可以通過PIE/KPE前往全島各地。
視頻介紹:
項目要點:
(1)只需約5分鍾步行到阿欲尼地鐵站
(2)極有吸引力的入場價格尺價1627起
(3) 1站地鐵到巴耶利峇地鐵轉換站,3站地鐵到武吉士地鐵站,4站地鐵到市政大廈地鐵站,5站地鐵到CBD萊福士
(4)政府已經規劃發展的巴耶利峇商業區,待開發靠近加冷河一帶甘榜武吉士區域
(5) 周圍有Nexus國際學校(超過900國際學生,還在增長中)和JCU詹姆斯庫克大學(有4000學生),這兩個學校學生家庭條件優越,潛在租客需求強勁,投資者可以考慮1房或者2房(好出租),大戶型3房和4房適合自住買家,1公裏內的政府小學芽龍美以美小學和Canoss Covent Primary
(6)著名發展商豐隆集團和城市發展有限公司CDL聯合開發,實力發展商,開發豪宅項目如鉑瑞雅居、風華南岸府、銀峰、名築等
(7)聘請新加坡著名的建築設計公司P&T Consultants,戶型講究高效實用爲主,參考戶型圖
(8)周圍生活方便,如美食餐館、熟食中心Sims Vista,商場林立如PLQ、Kallang Wave、Singapore Post Centre等
預計項目會成爲2020年下半年的爆款,已經驗證成爲爆款,銷量賣出96%,原因如下:
(1)Penrose項目最大的賣點應該是他的進場價格,參考下圖,發展商以很合理的價格每平方英尺$723拿到該地塊,是市場上私人公寓最便宜的地塊之一,接下來開盤的項目地價都比他高。發展商爲了保證預售開盤銷量,很大可能給出有吸引力的定價,發展商知道現在處于疫情期間,預計定價低開高走是更合理的策略。
(2)地處RCR中央邊緣區,靠近巴耶利峇商業區,生活和交通極爲便利
TVRFeExqWTFMalExTGpFME53PT0=
(3)潛在的上漲空間,已經初步成型的巴耶利峇商業區,仍然在轉型升級中,還有待開發靠近加冷河一帶甘榜武吉士區
(4)我一直認爲阿欲尼第14郵區屬于價格窪地,識貨的朋友們應該關注這一區,想投資或者自住的朋友們可以重點關注這個項目。
高性價比,和周邊的項目對比
銷量佳的東景苑Parc Esta一房成交價$1953/平方英尺,兩房成交價$1864/平方英尺,三房成交價$1738/平方英尺,綜合項目The Woodleigh Residence的兩房成交價爲$1973/平方英尺,東海岸的Seaside Residence成交價$2099/平方英尺,如果發展商定價$15xx/平方英尺,那您的入場價就周邊項目或者同級別的項目就便宜300-400/平方英尺。
交通便利,四通八達
只需1站地鐵到巴耶利峇地鐵轉換站,3站地鐵到武吉士(年輕人潮流打卡地和美食街),4站地鐵站到新加坡國家體育場(看演唱會、舉辦大型體育賽事、運動愛好者區打球、跑步等),5站地鐵到中央商業區(萊福士)、多美歌、金沙賭場(網紅打卡地)、濱海灣花園(旅遊網紅打卡地),方便在CBD上班朋友們,或者情侶、夫妻分別在東邊和西邊上班的。駕車的朋友們可以通過PIE、ECP快速公路前往全島各處。
完善公寓配套設施
我經常強調買公寓不只是房子本身,要關注公寓配套設施是否齊全,Penrose的配套設施非常齊全,豪華的會所包括上下車停靠點、迎賓大廳、瀑布、多功能室、遊戲室、圖書館、音樂室、衛生間等,還有大型50米遊泳池(面積約510平方米)和35米的遊泳池、樹屋、健身房、網球場、草坪、野餐草坪、健身草坪、娛樂草坪、太極草坪、瑜伽草坪、兒童探險區等,還有2層兒童托管中心,方便家有小孩的業主們。
園林設計師還巧妙的在第30棟18層空中餐廳區,可以讓您舉辦聚會活動時享受美食的同時欣賞濱海灣一帶美麗的夜景。
平面圖:
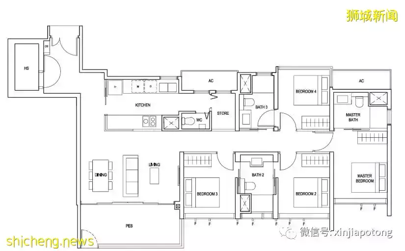
戶型圖介紹:
3房+書房優質型,110平方米,廚房和房間區分開,防空壕(HS,可以當儲藏室或保姆房用),價格195.8萬新幣起
4房豪華型,129平方米,橫向大客廳配大陽台,每個房間自帶衛生間,帶防空壕(HS)和保姆房(儲藏室),價格226萬新幣起
4房豪華型,130平方米,縱向大客廳配大陽台,帶防空壕(HS)和保姆房(儲藏室),每個房間帶衛生間,有小主臥在房子右側,價格234.7萬新幣起
綜合點評:
該項目預計會成爲2020年下半年的爆款(已經驗證我之前預測正確),近市區,靠近地鐵站,交通和生活便利,戶型設計高效實用等,重點是剩余三房和四房價格很吸引人,只需$1627/平方英尺起,剩余單位數量不多,有興趣的朋友們盡快加我微信預約看房或線上視頻看房
樣板房照片:
線上雲看房連結,歡迎聯系我實地看房:
3臥室 98平方米
4臥室 129平方米



























