The Tre Ver
高品質私人公寓
在新加坡推出的衆多房地産新項目中,The Tre Ver 私人公寓廣受投資者的青睐。
根據分析,The Tre Ver之所以很受歡迎,因爲它面向河流(長達220米的河岸),靠近地鐵站,遠離上實龍崗路的交通噪音。而且由于地價較低,The Tre Ver 與 Bidadari 地區的其他項目相比,具有極大的價格優勢。
開發商介紹
華業集團和聯合工業公司
UOL and United Industrial Corporation
The Tre Ver 由著名發展商華業集團和聯合工業公司共同開發,由享有盛譽的WOHA建築事務所設計。
華業集團創建于1963年,是新加坡乃至全球富有聲譽的房地産發展商之一,業迹跨越亞洲、北美和大洋洲,從事精品公寓、寫字樓、購物中心、五星級酒店等核心業務。
新加玻華業集團管理及經營超過30個酒店和服務式公寓,遍布亞洲、澳大利亞與北美,如在中國擁有廈門泛太平洋大酒店和蘇州吳宮泛太平洋酒店兩家5星級酒店。
創立55年來,華業集團一直嚴以律己,在國內外榮獲衆多獎項。
項目基本信息
項目名稱:The Tre Ver
項目地址:波東巴西大道1號
開 發 商:華業集團和合工業有限公司
地 契: 99年
占地面積:約18,711平方米
總單位數:729套
竣工時間:預計2022年8月
單位價格:約79萬新幣起
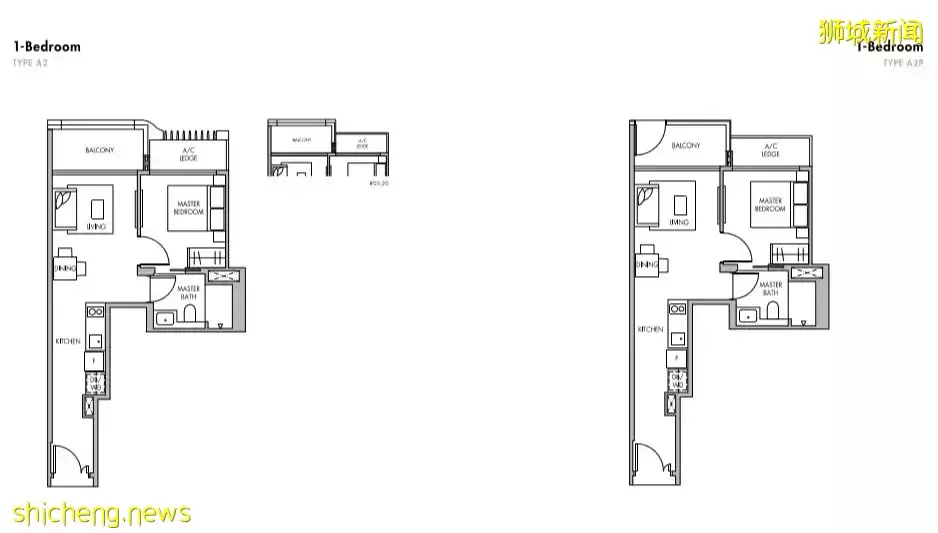
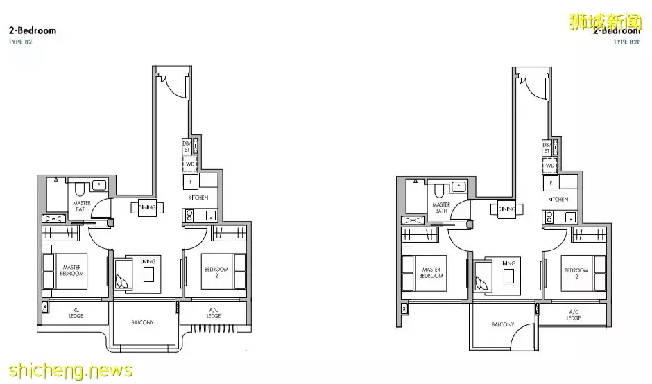
項目戶型
1臥:45-47平方米
2臥:57-74平方米
3臥:94-102平方米
4臥:124-128平方米
項目亮點
位于新加坡中部心髒地帶,交通方便,四通八達;
公寓西邊是加冷河畔,獨享200米河川和熱帶雨林,東邊是比達達利,均是政府大力發展的地段,未來發展前景無量,四周的房産具有巨大的增值潛能;
附近購物商場林立,擁有大量的休閑、娛樂設施。一棟有曆史的建築,見證過去,展望未來;
屬河畔公寓,臨水而居,波光粼粼,聚財氣、享生活;
公寓設施齊全,室內裝飾豪華,注重高品質;
四周樹木林立,綠意盎然,靜享繁華,如詩如畫;
附近名校林立,靠近著名的國際學校——新加坡史丹福美國學校;
由著名發展商開發,享有盛譽的建築師設計。
區位價值
The Tre Ver 位于新加坡第13郵區,波東巴西大道1號,屬于新加坡的中部地區,位于新加坡的心髒地帶,交通非常便利。
從項目出發,步行10分鍾(800米)即可抵達波東巴西地鐵站(Potong Pasir MRT),公寓附近還有公交車可直接到達該地鐵站。
該地鐵站距離多美歌地鐵站 (Dhoby Ghaut MRT)只有4個站,還可輕易轉換到小印度地鐵轉換站(Little India)和地鐵環線(實龍崗地鐵站)。
除了便利的地鐵之外,項目位置連接主要高速公路和道路,中央高速公路(CTE)和泛島高速公路(PIE),可輕松抵達新加坡任何角落。駕車人士只需短車程就能到達中央商業區、濱海灣金融中心、烏節路等等,享受真正的交通便捷。
位于加冷河畔,有河有樹,環境清幽
公寓旁邊的加冷河流經碧山——宏茂橋公園,連接新加坡中部。
長達220米的河流正面流經該地段,是世界上少有的擁有這麽長河流的河畔公寓,可謂臨水而居,波光粼粼,聚財氣、享生活。
如今,加冷河已成爲生活方式的中心,孩子們可以在清澈的水邊嬉戲、玩耍,大人們可以在河畔休閑、運動。居住于此,以雨林爲背景,人與自然和諧共存。
來自于出類拔萃的建築設計師之手
該項目由新加坡最富國際名聲的WOHA建築事務所設計,將現代感、地域和環境有機融合,強調獨特的地域特色。
注重生態平衡、注重人與自然的和諧、注重可持續發展、注重舒適便利的生活設施與空間。
WOHA建築事務所獲獎無數,致力于在城市中進行超密度設計,將建築場所的地域特征與氣候條件、空間規劃有機結合,選擇最適合的材質,建造環保綠色、可持續性的宜居建築。
從樹木和河流中汲取靈感,WOHA設計了一系列塔樓,可以充分利用河流的景色和花園裙樓,公寓享有度假風格的景觀,瀑布朝向蜿蜒的河流,這是“會呼吸建築”的具體體現。
戶型設計方正有效,不同戶型不同景致
公寓的配套設施齊全,分別在第2、3和8層,爲業主們提供50多個休閑、娛樂和健身場地。
戶型方方正正,布局合理,空間被充分利用。有17.6%的單元可享受花園景觀,34.8%可欣賞泳池景觀,47.6%可欣賞河畔景觀。
其中還有31%的單元可以同時享受河畔和泳池景觀。總體而言,82%的住戶可以欣賞泳池或河畔景觀。
另外,有24個單元可以享用綠色露台(Green terrace),260個住戶可以有綠色門廳(Green foyer),享受更新鮮的空氣,更好的景觀和氣候條件。
周邊配套齊全,購物、休閑、娛樂設施豐富
公寓附近有NTUC平價超市、巨人超市,稍遠一點有Cold Storage和晟菘超市等。
波東巴西地鐵站旁還有博雅中心,實龍崗地鐵站(距離公寓2個站)附近有NEX大型商場,完全能夠滿足平日的購物、娛樂、休閑、用餐等日常需求。
距離公寓最近的熟食中心是大巴窯7巷大牌22熟食中心,稍遠一點的熟食中心還有大巴窯4巷的大牌93和72熟食中心、大巴窯5巷熟食中心以及芽籠峇魯大牌69熟食中心等。
集中在項目附近的教育資源
公寓1公裏範圍內的幼兒園就有4家。
1公裏範圍內的中小學有:
聖安德魯小學(St Andrew’s Junior School)
聖安德魯中學(St Andrew’s Secondary School)
稍遠一點的中小學:
公立培群學校(Pei Chun Public School)
大智小學(First Toa Payoh Primary School)
四德小學(Cedar Primary School)
聖加俾爾小學(St. Gabriel’s Primary School)
聖加俾爾中學(St. Gabriel’s Secondary School)
養正小學(Yangzheng Primary School)
海星小學(Maris Stella High School (Primary))
海星中學(Maris Stella High School (Secondary))
明智小學(Bendemeer Primary School)
明智中學(Bendemeer Secondary School)
宏文學校(Hong Wen School)
四德女子中學(Cedar Girls’ Secondary School)
中華中學(Zhonghua Secondary School)
培德中學(Beatty Secondary School)
……
除此之外,公寓附近還有史丹福美國國際學校(Stanford Ameirican International school, SAIS),距離項目僅400米!!
該國際學校爲2-18歲的學生提供北美體制教育和國際文憑課程(IB),受到來自中國的很多家長關注,香港著名影星張柏芝的兩個兒子就在此校就讀。
性價比最優,增值潛力巨大
The Tre Ver公寓的前身是中等入息公寓,地皮收購價位較低,售價也較低,因而有價格優勢,增值潛能更大。
與The Tre Ver公寓比鄰且都是今年開發的新公寓項目還有兩個,一個是Park Colonial,另一個是Woodleigh Residences。
Park Colonial的土地售價是每平方尺容積率S$1100(psfppr),在降溫措施推出前一晚開盤,平均尺價達S$1,730。
Woodleigh Residences因其土地價格psfppr更高,其售價必定更高。
相比而言,The Tre Ver公寓的每平方尺容積率psfppr只有S$815,其售價已顯著低于附近的其它公寓。
戶型效果圖


























