“該酒店利用懸臂式露台每隔4層進行層疊式綠化,既凸顯了個性又在城市中心區增加了綠化面積
Parkroyal on Pickering
皮克林賓樂雅酒店展示了在一個空間匮乏、人口密集的城市中心區,經過深思熟慮的建築設計如何與綠色幹預相結合,助力在城市中建立一座非傳統的花園。這座16層高的建築位于中央商務區和唐人街之間,面向芳林公園(Hong Lim Park),將酒店和SOHO大廈結合在一起,成爲新加坡老中央商務區中産階級社區的創新開發項目。皮克林賓樂雅酒店被視作促進發展的催化劑,已成爲許多不同人的目的地,包括酒店客人和辦公室工作人員,以及建築師、景觀設計師和任何對景觀設計感興趣的人。這座建築不僅成爲中央商務區的支柱,也是綠色綜合城市建築的標志性作品。作爲毗鄰西部公共住房的地標,這座建築鞏固了新加坡在全球範圍內作爲“花園中的城市”的地位。
設計策略側重于將鄰近公園的成熟景觀融入建築底部,在中高層酒店臨街面每隔四層設置開放式走道、空中花園、泳池和露台。通過在建築上引入這些綠色景觀植被,酒店客人和下方街道的行人可以享受新加坡蔥郁的熱帶綠色環境。該建築對酒店多個樓層的景觀幹預面積達到了該場地綠地面積的兩倍。據統計,這裏共選擇了6種樹木、5種棕榈樹和52種灌木,形成了多樣化的植物組合。
在建築的第一層,大量植物沿酒店臨街面延伸。步行街層面具有遮擋的人行道一側是層疊的水景,另一側是郁郁蔥蔥的道路綠化。玻璃覆蓋的人行道兩側排列著竹芋、石蒜和雕塑般的雞蛋花樹。水景、植物和樹木給人一種從熱帶酷熱中得到喘息的感覺,而玻璃頂棚則爲人們躲避突如其來的雷雨提供了庇護。在酒店大堂內,垂直綠化和倒影池將人行道上的綠意和水景延續到室內。
五樓的空中花園是一個巨大的綠色空間,被上方的酒店塔樓保護著。三層樓高的拱形體塊在兩側開放,人造蛇形結構支撐的天花板上面種植著耐蔭植物、雞蛋花、棕榈、灌木和地被植物。瀑布般的植物穿過狹窄的通道,從遊泳池區“流”下,越過花園露台和人工“侵蝕”的岩層立面,裂縫和岩壁上種植著蕨類植物和鳳梨科植物。
在面向公共住房發展委員會大樓的場地南側,每隔四層樓種植的一串串層疊的植物強化了建築後立面。特選的兩個本土植物品種Pouteria obovate和Cyathea latebrosa(陰生桫椤)與所選的衆多植物鳥巢蕨、尖葉腎蕨、水龍骨科植物和假脈骨碎補、海芋以及竹芋一起,進一步強化了這個建築立面。其後方一堵綠色的牆穿過12層樓,形成了爲客房服務的外部路徑的綠化系統。
自然光線和新鮮空氣消除了這些通道對空調的依賴。由于不能指望軟景植被能進行自然的生態過程,因此在收集的雨水中添加了肥料。從上層收集的雨水在重力作用下可用于灌溉下層的花台,而新生水(NEWater)或飲用水被用于水景。
大型的空中花園露台每隔四個樓層懸挑在酒店客房前方並分布于客房之間,在視覺上與街對面的大型公園融爲一體。建築平面設計中容納了花園的 “架子”,可以從相鄰的客房以及下方的街道欣賞。
上皮克林街方向酒店立面圖
屋頂花園配有舒適的室內和室外休息室,可以將城市美景一覽無余。從這個制高點向下可以看到 “第五 “立面,規劃概念清晰地展現出來。懸臂式露台以優雅的層疊式植物凸顯了自己的個性。大量種植的本地和馴化品種的樹木、灌木、棕榈和地被植物,其花朵和果實吸引著昆蟲棲息在這些空中花園裏。在屋頂,用于軟景照明的太陽能電池燈使這些景觀區成爲新加坡第一個零能耗的空中花園。
皮克林公園酒店獲得了新加坡綠色標志白金認證,是新加坡首家使用太陽能自動灌溉系統的酒店,該系統可以收集雨水並循環利用水用于植物維護。
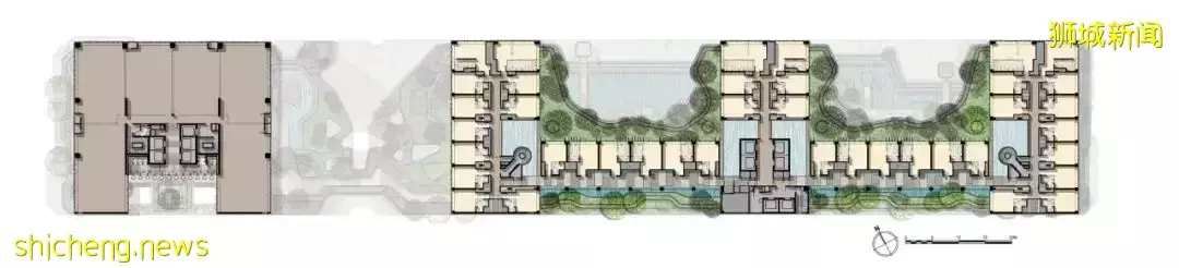
1層平面圖
第5樓層平面圖
第6、10、14樓層平面圖
項目詳細信息
項目名稱:皮克林賓樂雅酒店
完成時間:2012年
面積:29811.54平方米
項目地點:新加坡 皮克林
景觀設計:Tierra Design (S) Pte Ltd
網站:https://tierradesign.com.sg/
聯系電子郵件:[email protected]
建築設計:WOHA
客戶:UOL Group Pte Ltd
圖片來源:由供稿方Tierra Design (S) Pte Ltd提供

















