新加坡政治穩定、經濟持續增長,是公認宜居、宜業與宜樂的地方,先進的基礎設施、良好的治安、公開的經濟使新加坡成爲全球最佳營商目的地。新加坡曆來以其開放包容和多元文化成爲亞洲外籍菁英人士的首選,更是全球第三大最受歡迎的移居地,不少外國人甚至利用買房作爲申請在新加坡長期居留的一個跳板,
今天,我們不妨先來看一下新加披的區域劃分:
上圖就是新加坡的28個郵區劃分,而“有錢人”部分通常指代是傳統的市中心9,10,11郵區,“海灘”部分指的東海岸15郵區。這些都是最熱門的投資地點。
一環
核心中央區
1,2,6,9,10,11這個郵區組成了一環,就是棕色部分的中央區,也稱一環。
其中1,2,6屬于中央商務區,是金融中心,世界500強紮堆的地方。9,10,11區則是傳統意義上的高檔住宅區,9區有舉世聞名的頂級購物中心烏節路,10區是鬧中取靜的武吉知馬有地私宅+學區,李連傑,趙薇,海底撈老板,戴森老板,阿裏巴巴老板都爲這個片區背書,11區是整個東南亞的醫療中心,有著最先進的醫療設備和最專業的醫療團隊。
二、三環
外圍區域
中央區周邊區域的十大郵區組成了二環,性價比高,到市中心一般30分鍾公共運輸。這裏的每個片區都各有特色,其中4區是知名的聖淘沙區,5區金文泰有亞洲第一名校國大;20區碧山有新加坡最大的麥裏芝蓄水池,14區亞龍是美食娛樂的天堂,15區東海岸風光秀麗,是和9,10,11區並駕齊驅最受投資者青睐的片區之一,有著本地最美的海岸線,沿海步道以及美食。再往外圍的三環就包含了新加坡的東部,西部片區,北部和東北部。組屋比較多,每個區都有一個區域中心,東部的是淡濱尼,西部的是裕廊,北部的是兀蘭,東北部的是實裏它。
投資新加坡
新加坡的全部土地面積仍然只有720平方公裏,僅約爲北京市面積的1/23。但在這麽小的國土上,卻居住著超過570萬人口,這使得新加坡成爲世界上人口密度第三高的地區(前兩位是中國澳門與摩納哥)。
在高人口密度影響下,新加坡的城鎮化水平達到100%,除生態保護區之外基本沒有未開發土地。而在當地政府的長期規劃下,新加坡人口將在2030年增長達到690萬,爲了滿足更多人口的生活與對環境的影響,政府還在規劃更多的自然保護區于公共設施用地。可以說,新加坡的每一塊土地都有著可見的升值空間,是開發商的必爭之地。
新加坡房産的投資優勢
“
無資本收益稅,無遺産稅
不限制外國人購買
堅挺穩定的貨幣
按淨使用面積銷售
外國人可獲得高達70%的貸款
貸款年利率低于2.5%
租金回報率 3-4%
活躍的轉售市場
保護購房者權益的法律法規
法律規定的按工程進度付款計劃
新加坡的發展爲房地産增值
One Holland Villiage
壹瀾庭
荷蘭村豪華公寓
荷蘭村心髒地帶唯一多用途綜合發展項目
盡享生活、工作、娛樂、美食和購物體驗
項目信息
Sea’hill
項目地址:1,3&5 Holland Village Way
地契:99年(從2018年8月13日起)
占地面積:27119平方米
單位數量:296個私宅單位
車位數量:299個車位(包括3個殘疾人士專用車位)
項目:Sereen——1臥房、2臥房、3臥房
Leven——2臥室
Quincy——3臥房、3臥房+書房、4臥房、4臥房+書房(複試)、閣樓
交房年份:2023年底
開發商:Far East Organization
選擇新加坡
新加坡地理位置優越,位處亞洲心髒地帶,交通網絡覆蓋區內及全球市場,不單成爲亞洲連接世界的樞紐,也讓世界與亞洲緊密連系起來。
01 全球最具競爭力的經濟體
新加坡不但政局穩定,而且社會安定有序,營造了開放型經濟、穩固的勞資關系、多元勞動人口、強效的版權權保障措施,以及敏銳的應變能力。根據世界銀行發布的營商環境報告,新加坡于190個經濟體中,位列全球最便利營商地方第二位,反映所推行的措施成效顯著。不少跨國企業的區域總部均設于新加坡,包括戴森(Dyson)、臉書(Facebook)、希爾頓全球控股有限公司(Hilton Worldwide Holdings Inc.)及英超聯(The Premier League)等。
02 卓越醫療服務
新加坡擁有優良的醫療體系,確保每個人都能以合乎成本效益的方式,及時和妥善地使用到不同級別的醫療保障服務。
03 頂尖教育中心
新加坡國立大學(National University of Singapore,簡稱NUS)和南洋理工大學(Nanyang Technological University,簡稱NTU)同時位列世界第11位,亞洲大學排名亦名列前茅。
04 便利交通網絡
新加坡樟宜機場于2020年的世界機場大獎再次蟬聯榜首,連續第八年成爲全球最佳機場。
05 有利置業環境
新加坡稅制比較簡單,不設資本增值稅,吸引很多外國人于當地置業,而且外國人同樣有資格申請以新加坡幣結算的置業按揭,加上國家設有嚴格法例保障業主權益,營造出相當理想的置業環境。
荷蘭村
新加坡中央核心區第十區綜合開發項目
從甯靜生活到繁榮都市,位于城市邊緣的荷蘭村是一個盡享地理優勢的都市綠洲,開滿多姿多彩的“坡式”店屋,不同元素交錯拼湊在一起,組成多元設計風格的活力社區。此外,荷蘭村與各大購物商店以及商業場所緊密相連,您可從這裏乘坐地鐵前往烏節路購物區、濱海金沙酒店和中央商務區等重要地標。
社區
成熟社區感受荷蘭村新脈動,悅享精彩生活。落戶One Holland Village Residences 綜合項目,餐飲購物選擇近在咫尺,延展生活空間。
交通
該區密布公共運輸網絡、城市幹道、高速公路,通達性極佳。五分鍾步程即達荷蘭村地鐵站,一站即達波那維斯達,通連東西線;兩站即達新加坡植物園,通連濱海市區線。及至2025年環線地鐵竣工,該區將直通濱海灣、新達城及烏節路。此外,項目便捷通達亞逸拉惹高速公路及泛島高速公路,住戶可駕車輕松前往全島各處。
教育
One Holland Village Residences坐落于優尚第十郵區,鄰近零售中心及商業中心。由荷蘭村地鐵站出發,五站即達烏節路,兩站即達緯壹科技城。此外,項目鄰近衆多知名學府,如新加坡精英教育小學恒力小學、南洋小學、英華國際學校,新加坡國立大學、華僑中學及歐洲工商管理學院亞洲分校。
One Holland Village
爲荷蘭村新一代而打造的大型發展項目,無瑕地糅合住宅、辦公空間、零售及餐飲于一身。全新的生活、工作及玩樂空間,組合成令人心動的小區。
項目介紹
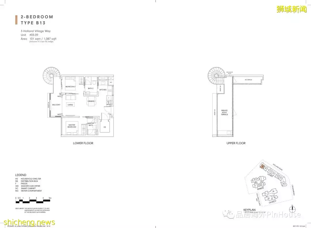
2房2廳
3 HOLLAND VILLAGE WAY
單位 #03-09
面積 101 平方米 / 1,087 平方尺
(包含5平方米的空調外機平台)
Leven 猶如一幅描繪非凡生活的油畫,這所2室2廳單位散 發曆久彌新的魅力,明亮開揚的室內空間一直延伸 至室外樹影婆娑的環境。公寓1樓連接綠草如茵的 草地;二樓擁有私人露台;三樓連天台平台,經過 特別設計的間格及配置,把內與外融爲一體。
Leven 的設計靈感來自昔日盛行的低密度住宅,再加入極富現代感的建築風格。這些2房2廳單位帶有幾分懷舊氣息,明亮通風的室內設計延伸到綠意盎然的戶外空間,散發一種曆久不衰的永恒魅力。位于一樓的單位與平台草坪相通;二樓的單位擁有私人陽台,至于三樓的住宅則帶屋頂露台。整幢物業只有2 1個2房2廳單位,絕對是“限量版”的優質生活典範。
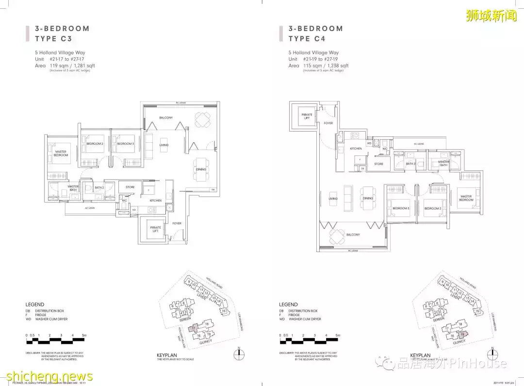
3房2廳
5 HOLLAND VILLAGE WAY
單位 #21-19 至 #27-19
面積 115 平方米 / 1,238 平方尺
(包含5平方米的空調外機平台)
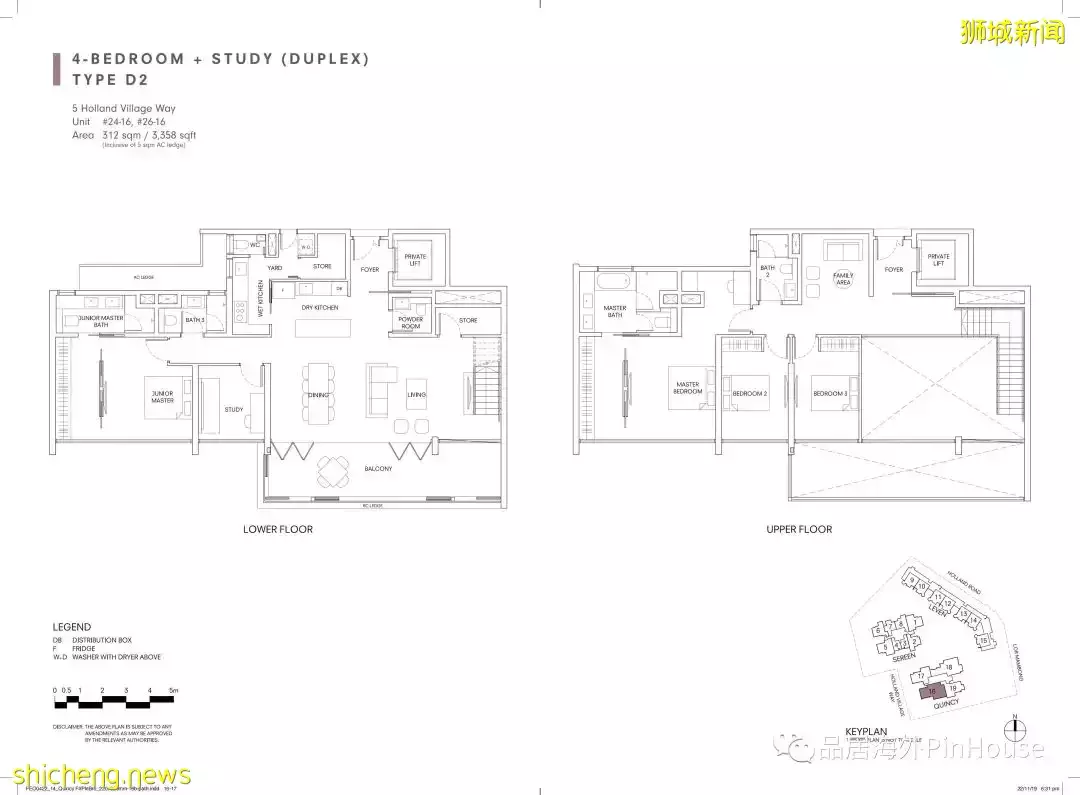
4房2廳
5 HOLLAND VILLAGE WAY
單位 #21-18 至 #27-18
面積 194 平方米 / 2,088 平方尺
(包含7平方米的空調外機平台)
Quincy爲你提供極致的生活享受,備有3室2廳至4室2廳單位、複式單位及頂層豪華單位共27個單位供選 擇,獨一無二的設計,只爲懂得生活的您而設。
Quincy Private Residences 位于Qunicy 大樓頂部共八層,提供多個3房2廳、4房2廳以及4房2廳1書房(複式)單位,共27個豪華住宅不但地方寬敞,更是One Holland Village住宅中最優越的,住客可尊享Qunicy House服務式住宅的健身室、名爲Living Room的會所,更重要的是住客將搭乘私人升降機出入。
1房1廳
1 HOLLAND VILLAGE WAY
單位 #02-04 至 #32-04
面積 45 平方米 / 484 平方尺
(包含2平方米的空調外機平台)
2房2廳 B1
1 HOLLAND VILLAGE WAY
單位 #02-07 至 #32-07
面積 64 平方米 / 689 平方尺
(包含3平方米的空調外機平台)
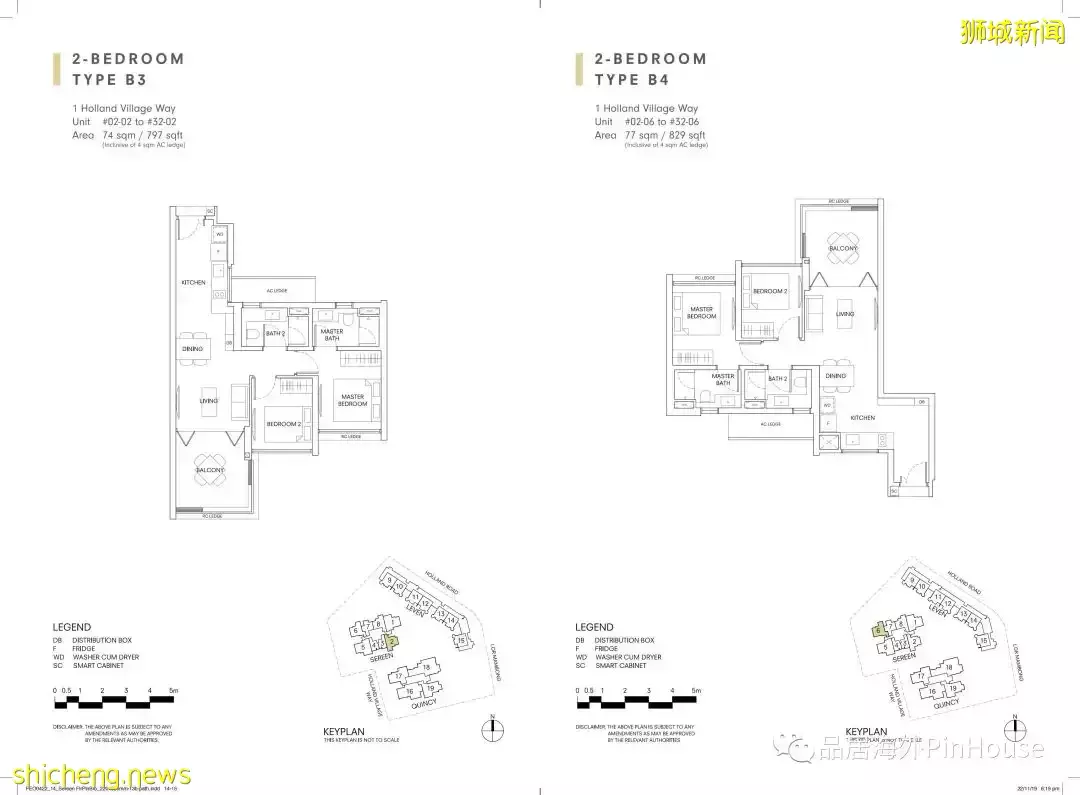
2房2廳 B2
1 HOLLAND VILLAGE WAY
單位 #02-08 至 #32-08
面積 74 平方米 / 797 平方尺
(包含3平方米的空調外機平台)
3房2廳 C1
1 HOLLAND VILLAGE WAY
單位 #02-01 至 #32-01
面積 102 平方米 / 1,098 平方尺
(包含5平方米的空調外機平台)
SEREEN 是荷蘭村One Holland Village Residences發展項目中最高的一幢住宅物業,設施配套全部經過深思熟慮,非常符合時下都市人極其崇尚的“慢活風”。
單位以實用率爲主要賣點,務求將家居打造成可讓您思考和放松的甯靜空間。大樓內有1房1廳、2房2廳和3房2廳單位,室內設計充分考慮到功能實用性,例如將起居區延伸至陽台,打造出一個適合休閑放松和娛樂活動的空間。想與家人共度美好時光?您可在位于33樓的空中露台享受燒烤之樂,或使用50米遊泳池、健身平台或天台網球場等運動設施,一邊鍛煉身體,一邊飽覽四周醉人美景。


















































