項目介紹:
地處新加坡第9郵區,比鄰總統府,屬于中央核心區,家門口就是多美歌地鐵轉換站,占地約4796平方米,2棟9-12層高建築,總共188套私人住宅,由新加坡著名發展商城市發展有限公司CDL開發,屬于99年地契,預計2023年底交房 (交房時間快)
Haus On Handy離獅城大廈(Plaza Singapura)只不到200米距離,獅城大廈有許多商鋪和餐飲店,住戶可品嘗到不同國際美食, 商場裏設有食閣、大型超市和電影院。從項目只需步行就能到達武吉士村(Bugis Village),武吉士村也靠近竹腳巴刹(Tekka Market)及雅柏閣巴刹與熟食中心(Albert Court Market and Food Centre)
公寓位于新加坡最繁華的烏節路地帶,交通四通八達,住戶只需步行200米就抵達多美歌地鐵轉換站(Dhoby Ghaut MRT),該地鐵站運營3條主要的地鐵線,有南北地鐵線(NS Line)、東北地鐵線(NE Line)和地鐵環線(Circle Line)。
商場林立,生活便利
周邊有大型商場Plaza Singapura,只需2分鍾步行就可以到達,有大型連鎖超市Cold Storage,電影黃金劇院Golden Village、唱歌的K.STAR KTV,銀行DBS、OCBC、Citibank、HSBC都有服務點,餐館有中國、日本韓國、西餐館、食閣等,
烏節路重振計劃,勢必帶動這一帶房産增值
爲了振興新加坡的烏節路,提高競爭力,新加坡旅遊局(Singapore Tourism Board)、市區重建局和國家公園局(National Parks Board)公布了重振烏節路計劃。全長約3.2公裏的烏節路重振計劃分兩大主題:
計劃主要分兩大主題:
1.將烏節路打造成生活時尚景點
2.通過植物展示烏節路昔日果園曆史
從東陵至多美歌,全長約3.2公裏的烏節路未來將發展成生活時尚聚集點,讓訪客在每個轉角,都能享有全新體驗。
新加坡政府也就重振烏節路的計劃舉行公共展覽與咨詢活動,吸引逾1500名新加坡公衆提供意見,多數人都建議開拓更多綠化空間及打造親家庭設施。
未來到烏節路的訪客,將可透過六公裏長的綠色連道,
從植物園一路步行至總統府公園、福康甯公園,再到新加坡河畔享受城市花園的別樣景致。
新加坡市區重建局和國家公園局計劃將烏節路位于新加坡獅城大廈(Plaza Singapura)與新加坡總統府(The Istana)前面的路段改爲人行道,原本的烏節路車道則計劃改道至槟城路(Penang Road),讓總統府公園、多美歌格林小公園與槟榔路的戶外空間可無縫銜接,形成坐落在烏節的一片清新綠洲。烏節路重振計劃,勢必給這一區房産帶來增值。
平面圖:
漂亮圖片大放送:
城市發展CDL的住宅管家服務
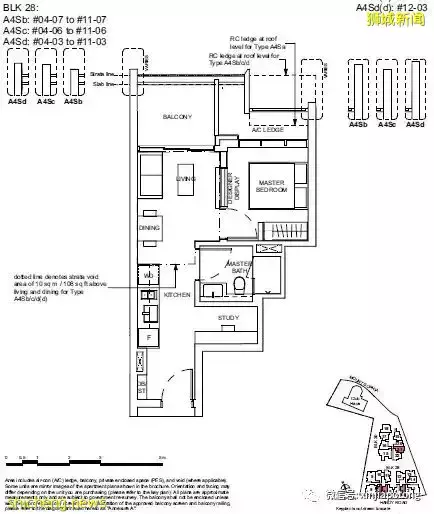
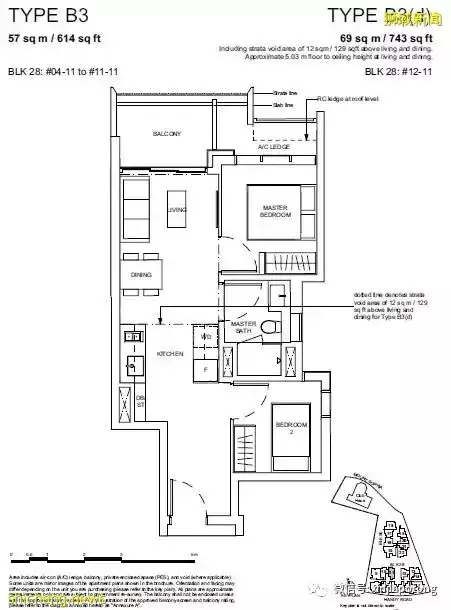
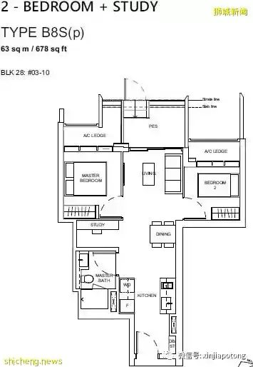
戶型圖和參考價格:
1+書房,48平方米,價格134.8萬新幣起
2房, 57平方米,價格164.9萬新幣起
2房, 59平方米,價格167.4萬新幣起
2+書房, 64平方米,客廳配大陽台,受歡迎的啞鈴戶型,價格180萬新幣起
3房,88平方米,封閉的中式廚房,價格259.1萬新幣起
3房雙鑰匙,91平方米,相當于2套單位,價格271萬新幣起


















