6月新加坡樓盤促銷彙總,豪宅篇。
此文適合尋找市區高層豪宅的投資者
宏觀小背景:
疫情期新加坡房地産表現強勁,2020&2021 價格漲最多的是優質別墅GCB板塊,因爲稀缺,最核心地點價格幾乎翻倍了。另外,頂級公寓豪宅板也受國際投資者追捧,近期重大交易包括:中國福建省買家以逾8500萬元,買下康甯河灣(Canninghill Piers)20個單位。各大頂級豪宅包括:康鄰豪庭(Klimt Cairnhill)、名築(Nouvel 18)、隽峰(Irwell Hill Residences)、紐頓銅源(Kopar at Newton)等的頂層penthouse相繼出售!
新加坡政府于2022年12月果斷降溫。2022年初我們對市場做了回顧和展望。本文談新加坡頂級公寓頂層penthouse, 開發商一手現房單位有哪些選擇.
1、 Reflections @ Keppel Bay 映水苑
關鍵詞:南部地標 | 項目亮點
新加坡南部海景豪華的公寓。Reflection映水苑精品豪邸項目,出自著名建築師丹尼爾·裏貝斯金德(Daniel Libeskind)大師。濱水而居一直是人們首選的居住環境,親水住宅已是全世界豪宅的一個潮流:開闊的景觀以及濱水所帶來的舒適平靜,讓城市人從急促而忙碌的城市生活中解脫出來。
| 項目點評
新加坡稀有親水住宅
地標建築,超現代風格
新加坡中南部2021年新盤中,入場單價幾乎最低
戶型推薦:
5臥+私人電梯
5臥+私人電梯面積是6,835平方尺, 叫價:$18,800,000 單價:$2,751psf 6臥超級頂層閣樓
>>左滑觀看戶型規格
底層>
中層>
頂層
6臥超級頂層公寓面積是13,293平方尺, 叫價:$68,000,000 單價:$5,115psf
2、 THE MARQ ON PATERSON HILL
關鍵詞:豪宅之巅 | 項目亮點
The Marq被列入世界10大最貴豪宅排行榜當中,以令世人驚豔的創新建築風格及設計,蜚聲國際。66間永久地契高端豪華公寓座落于黃金第10郵區的優質私人地産,占地達125,000平方英尺。其Signature Tower的每一個住宅單位均單獨擁有室外泳池,是全球首創的驚世之舉。The Marq由法國時尚品牌愛馬仕(Hermes)負責包括家具,窗簾,地毯,牆紙與皮革軟墊等的內部設計與裝飾。
| 項目點評
新加坡現房中,品質設計最好的豪宅,空中別墅概念
豪宅開發商SC Global最頂級的項目
五臥三層閣樓,屋頂遊泳泳池 面積7,847平方尺 指導價格:Price on Application
3、 RITZ CARLTON RESIDENCES 麗茲卡爾頓公寓
關鍵詞:品牌至尊 | 項目亮點
新加坡麗思卡爾頓公寓位于亞洲第一家永久産權麗思卡爾頓酒店,位于新加坡第9區,屬于核心中央區,永久地契項目。麗思卡爾頓公寓是東南亞唯一一棟由豪華連鎖酒店管理並配備工作人員的獨立住宅樓。距新加坡首屈一指的購物區烏節路僅5分鍾路程。
| 項目點評
永久地契,豪宅風範
頂級酒店品牌住宅,享受頂級官家禮賓服務
戶型推薦:
4臥3層閣樓
>>左滑觀看戶型規格
底層>
中層>
頂層
四臥三層閣樓面積是6,501平方尺,
叫價:$40,000,000 單價:$6,153psf
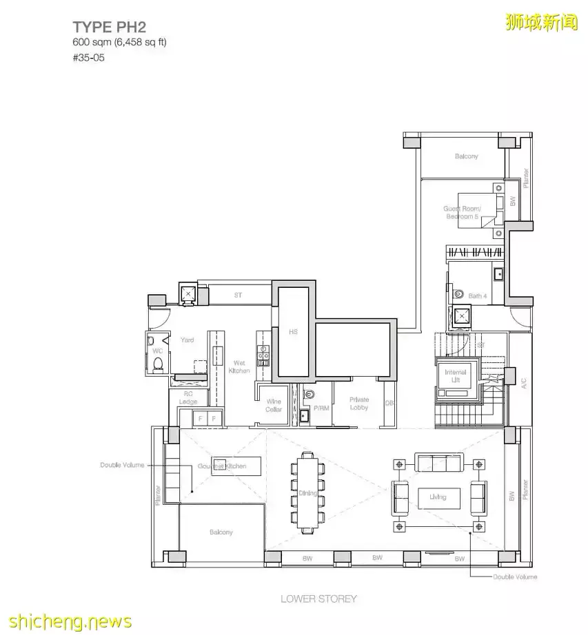
4、 NOUVEL 18 名築
| 項目亮點
由榮獲普利策建築大獎的法國建築名師努維爾(JeanNouvel)設計,罕見永久地契豪華項目,位于最富有盛名的阿摩園與安徒生路住宅區,緊鄰香格裏拉酒店,項目的周邊有著名的休閑俱樂部,頂尖的學校,以及植物園。
| 項目點評
永久地契新盤現房中,位置最核心,最尊貴的樓盤
鬧中取靜,無敵城市美景
步行可至烏節路繁華路段
戶型推薦:
5臥3層閣樓
>>左滑觀看戶型規格
底層>
中層>
頂層
五臥三層閣樓面積是6,458平方尺,
叫價:$35,875,000(8折折後價) 單價:$5,555psf
5、 Klimt Cairhill 康鄰豪庭
黃金地標 隽永家園 | 項目亮點
36 層樓高的康鄰豪庭將傲然屹立于新加坡最尊貴的第 9 郵區 核心地段,成爲烏節路超群的新地標。在富麗堂皇的別墅會所中所設置的休閑室和私人餐廳裏,無論是度過閑暇 時光或款待親朋摯友,您都可盡情享受古雅的氛圍,創造美好的回憶。康鄰豪庭爲您精心設置了一系列設施。從充滿生機的遊泳池和遊樂場到甯靜 怡人的花園及休閑室,每一個空間都猶如一個能讓您靜心呼吸的綠洲世界。好事成雙。
| 項目點評
一套複式公寓豪邸,擁有 6.5 米挑高、令人贊歎的開闊設計。
而另一 套爲單一樓板豪邸,坐擁廣闊空間。兩套豪華尊邸皆配有六間布置華麗的臥室, 爲您與家人提供無限的成長空間。
戶型推薦:
5臥+2書房 複式閣樓
>>左滑觀看戶型規格
底層>
頂層
5臥+2書房複式閣樓面積是5,920平方尺 叫價:$32,800,000 單價:$5,541psf
6、 Reignwood Hamilton Scotts 華彬漢美登
空中私車門廊寓所 | 項目亮點
華彬漢美登(Reignwood Hamilton Scotts)是華彬集團傾力打造的亞洲藏品地産,以超前的設計理念啓迪著全球建築師的創意靈感,引導著世界建築的設計發展方向與潮流。華彬漢美登是亞洲唯一 “空中私車門廊寓所”,能將私車停至客廳,並擁有空中雙車位。“人與愛車同時搭乘電梯回家”的超前設計理念、全球領先的停車系統和超高空雙車位設計,將奢華生活提升至一個全新的標准。
該項目位于新加坡繁華核心地段,坐擁烏節路商圈,是新加坡公認的“五大豪宅”之一。它享有受保留良木山(Goodwood Hill)郁郁蔥蔥的壯觀景色,現代與自然融合得相得益彰。
| 項目點評
每個單位都設有 7 米超寬大的闊景陽台,360°全景視野
擁有全球頂級俱樂部配套,專爲住戶打造的 1,800 平米的華彬會員私屬領地和 600 平米的屋頂空中花園
以五星級的標致提供全天候貼心服務,酒店式管理的接待服務、優雅的大堂接待區、45 米泳池、燒烤吧、健身房,盡是五星級的標准。
租用了私人海上博物館—“海熊號”遊艇爲住戶提供專享的社交、娛樂、休閑私屬空間。亞洲第一架龐巴迪環球G5000爲華彬漢美登住戶提供專屬服務。
戶型推薦:
5臥頂層豪宅
五臥頂層豪宅面積是6,975平方尺,
叫價:$30,000,000 單價:$4,301psf
7、 EDEN RESIDENCES CAPITOL
| 項目亮點
整合超豪華生活方式開發項目,僅有39個單位, 位于新加坡市中心區的核心區,由普利策克獎獲得者Richard Meier設計。享有新加坡最具活力的景點及極佳的生活方式。靠近著名的濱海灣地區和獨特的社區,擁有曆史、遺産、文化和藝術等休閑娛樂方式,靠近重要的地標,包括聖安德魯大教堂,新加坡藝術博物館和國家美術館。
| 項目點評
享受正對金沙酒店和濱海灣的無敵風景
實用戶型
樣板房客廳挑高戶型爲該項目最佳選擇!
戶型推薦:
3臥+家庭活動區+6廁 複式閣樓
>>左滑觀看戶型規格
底層>
頂層
3臥+家庭活動區+6廁 面積是4,221平方尺,樣板間,叫價:$17,948,600 (包含ID Cost $800,000) 單價:$4,252psf
8、 Hilltops 山頂
關鍵詞:山頂樓王 | 項目亮點
Hilltops早在2011年開盤時,就贏得了“烏節路均價最貴高的樓王”的封號,由新加坡著名豪宅開發商SC Global開發。該開發商迄今開發樓盤均價均爲4000新幣起,此時購買的均價與高峰期相比已有很大折扣。
Hilltops 位于新加坡第九區烏節路沿線,中軸之上,天生優越,不可複制。當下能夠購得“樓王”封號,Hilltops堪稱爲匹配價格最合理的樓盤。且該公寓項目,從兩居室到五居室不等,面積介于800平方英尺和2800平方英尺之間,是爲數不多的豪宅公寓項目配備5居室的樓盤。
戶型推薦:
5臥大平層
*五臥面積2,874平方尺
叫價:$11,618,000 單價:$4,042psf
* 整層:面積5,748平方尺, 10個臥室
叫價:$24,240,000
9、 MARINA ONE RESIDENCES 濱海盛景豪苑
關鍵詞:CBD新中心 | 項目亮點
濱海盛景豪苑是大型綜合發展項目,結合購物娛樂、住宿和高檔A級寫字樓于一體。位于新加坡第1郵區的黃金地段,濱海灣新金融區,其優越的地理位置可媲美美國金融中心曼哈頓及香港的中環。它是新馬兩國的重要合作項目,具有重要的曆史意義,已成爲新加坡金融新區的標志性建築。由著名設計師引入 “梯田” 設計理念,履行“花園中的城市”概念,屢獲大獎。項目樓下就是三個地鐵站,包括海灣地鐵站(Marina Bay Station)和市中心地鐵站(DowntownStation) ,以及一個正在修建中的珊頓道地鐵站(Shenton Way Station)
戶型推薦:
4臥複式閣樓
四臥複式閣樓面積是7,244平方尺,
叫價:$17,332,850(樣板間)單價:$2,393psf
4臥複式閣樓
四臥複式閣樓面積是8,310平方尺,
叫價:$19,930,940 單價:$2,398psf
10、 SILVERSEA 銀海
東部海景之王 | 項目亮點 東海岸目前現房中最豪華的公寓,全海景。頂層爲開發商保留房源,現開放出售。
戶型推薦:
4臥+書房 複式閣樓
4臥+書房複式閣樓面積是4,596平方尺 開發商單位,叫價:$14,700,000 單價:$3,198psf
11、 Park Nova 柏皓
關鍵詞:綠色藝術風 | 項目亮點
新盤中最豪華的公寓!柏皓獨特的弧型設計,讓住戶欣賞270度的廣闊的新加坡城市景觀,同時保持空間的相互聯系和流動感,把大自然的氣息,戶外的魅力帶入舒適的家中。整個建築每一層的結構都呈不規則形態,根據蝴蝶飛舞的樣子來設計的,每一層都被獨特的花園環繞,不僅達到自然遮蔭和通風的效果,也使建築看起來也更輕盈。
戶型推薦:
4臥大平層
4臥大平層面積是2,906平方尺 叫價:$13,493,000 單價:$4,643psf 12、 Corals @ Keppel Bay 麗珊景
| 項目亮點
吉寶灣麗珊景由世界知名建築師Daniel Libeskind設計,宛如在水之濱的一串璀璨的珍珠。因其綠色的生態創新和可持續發展的特點,項目榮獲了“綠色標志超金獎 (Green Mark Gold Plus Award)” 。該樓盤低密度,設計獨特別致,整個小區從空中俯瞰,就像是一條高貴典雅的珍珠項鏈,點綴在大海 和綠樹間。每個單位設計都不同,裏面每一戶都是別具一格個設計。
| 項目點評
在新加坡南部海景公寓中,該小區最靠近南部最大的購物中心Vivo City.
低密度親水住宅,靠近海邊的海景大戶型極其稀有!
戶型推薦:
4臥複式閣樓
>>左滑觀看戶型規格
底層>
頂層
4臥+書房複式閣樓面積4,725平方尺, 叫價:$9,180,000 單價:$1,943psf
備注:*文章所有價格爲文章發表日的數據,價格的解釋權歸開發商所有




















































