新房上線!火熱開盤!
1-4室以及奢華頂層閣樓,99年産權,D15郵區,不容錯過的優質宅業!
簡介
[email protected]是由Bukit Sembawang Land Pte Ltd開發的高層住宅公寓,位于新加坡第15郵區,114A Arthur Road。項目所在地原爲Katong Park Towers。該項目由1幢20層建築和3幢19層建築構成,共包含298套住宅單元,戶型包含1-4室和奢華頂層閣樓(PENTHOUSE),配備精心設計的高品質裝潢。預計2024年第四季度建成。
承建方:Arc Studio Architecture + Urbanism Pte Ltd
室外景觀顧問:Ong & Ong Pte Ltd
主承包商:Lim Wen Heng Construction Pte Ltd
機電工程:Alpha Consulting Engineers Pte Ltd
土木工程:DE Consultant(S) Pte Ltd
室內設計:2nd Edition Pte Ltd
樓盤所在位置
銷售中心位置
新加坡郵區分布圖
樓盤概況
樓盤名稱:[email protected]
開發商:Bukit Sembawang Land Pte Ltd
産權:99年
完成年份:2024年
單位數量:298
樓層數量:1幢20層+3幢19層
起始總價:-
每平方英尺起始:-
賣點
[email protected]位于新加坡D15郵區,所在位置原是加東公園塔(Katong Park Towers)。項目占地面積140,758平方英尺,總建築面積295,592平方英尺。298套住宅單元、享99年産權的東海岸珍貴宅業,絕對不要錯過!
交通方便
步行3分鍾即達加東公園(Katong Park) MRT 地鐵站(屬湯申-東海岸線 Thomson-East Coast Line),不需換線即可抵達濱海灣(Marina Bay)和烏節路(Orchard)地鐵站
距離達科他(Dakota)和巴頓山(Mountbatten)地鐵站僅1公裏
生活便利
坐落于D15郵區Rest of Central Region(RCR),可方便抵達城市,並享東海岸成熟生活設施。
步行即達東海岸公園(East Coast Park),綿延東部海岸線的自然與歡樂都近在咫尺,每個周末均可輕松安排!
健身愛好者們,駕車3分鍾即可到達加東公園(Katong Park)和新加坡健身中心(Singapore Sports Hub)。
2公裏內購物中心和生活設施:
· Leisure Park Kallang
· Pavilion Square
· Guillemard Village
· Katong Shopping Centre
· Odeon Tower
3公裏內購物中心及生活設施:
· Parkway Parade
· KINEX
· Roxy Square · Tanjong Katong Complex
· i12 Katong
· Katong Plaza 教育資源 步行5分鍾可達: · Eton House Pre-School
· Konohana Kindergarten
附近小學: · Kong Hwa School
· Tanjong Katong Primary School
· Geylang Methodist School (Primary) 附近中學及專科院校: · Dunman High School
· Chung Cheng High School (Main) · Tanjong Katong Girls’ School
· Tanjong Katong Secondary School
· CHIJ Katong Convent
· Victoria School
· Victoria Junior College 國際學校: Canadian International School Singapore
Global Indian International School
商業園區、辦公與醫療服務
· 5分鍾車程抵達Central Business District and Marina Bay Financial Centre
· 約10分鍾車程抵達Paya Lebar Biz Hub
· 約7分鍾車程抵達Park East Hospital
總平面圖
1 公園亭子1
2 池塘
3 綠地
4 庭院
5 遊樂場
6 健身場地
7 公園亭子2
8 前院
9 巴頓山草坪
10 雨林別墅
11 雨林水療池
12 吊床林
13 岸邊別墅
14 淺水池
15 公園別墅
16 戲水池
17 主泳池
18 水療泳池
19 水床
20 陽光甲板
21 遊泳健身區
22 餐廳1
23 餐廳2
24 巴頓山禮堂
25 綠草坪
26 室外健身場
27 室內健身場
28 室外燒烤區
29 更衣室
30 室外場地
31 公園小徑
32 單車庭院
A 垃圾站
B 變電所
C 保安室
D 人行入口
園區設施
露天庭院 位于11層:
33 瑜伽庭院
34 休息區
35 水療區1
36 水療泳池
37 餐室1
38 天空休息室1
39 天空休息室2
40 自習室1
41 自習室2
42 餐室2
43 水療區2
44 水療
樓頂空間 位于20層:
45 瑜伽庭院
46 休息區1
47 庭院
48 休息區2
49 陽光綠地
50 泳池甲板
51 遊泳池
52 水上甲板
53 露天燒烤區
54 露天別墅
55 前庭
56 巴頓山燒烤區
57 巴頓山別墅
注:以上各處建築和設施均爲設計方案,實際可能會有調整。
室內設計
主力戶型
1室
新幣 S$ 起
A1戶型 1室 495平方英尺/46平方米
25%首付:S$ / 75%貸款:S$
30年貸款,2%利息,月供:S$
1室
新幣 S$ 起
A1(a)戶型 1室 581平方英尺/54平方米
25%首付:S$ / 75%貸款:S$
30年貸款,2%利息,月供:S$
1室
新幣 S$ 起
A2戶型 1室 517平方英尺/48平方米
25%首付:S$ / 75%貸款:S$
30年貸款,2%利息,月供:S$
1室
新幣 S$ 起
A2(p)戶型 1室 667平方英尺/62平方米
25%首付:S$ / 75%貸款:S$
30年貸款,2%利息,月供:S$
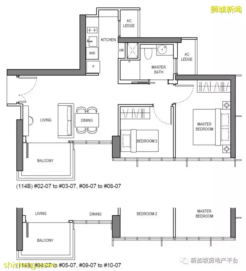
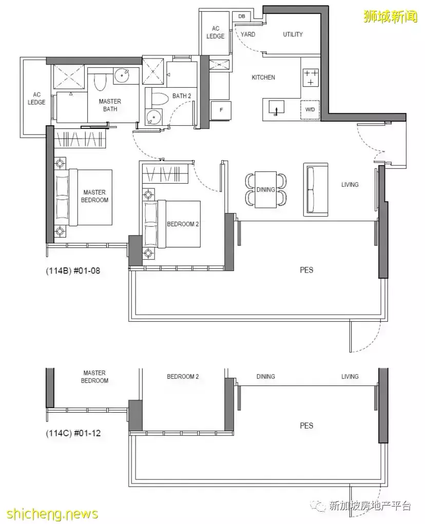
2室
新幣 S$ 起
B1戶型 2室 624平方英尺/58平方米
25%首付:S$ / 75%貸款:S$
30年貸款,2%利息,月供:S$
2室
新幣 S$ 起
B1(a)戶型 2室 678平方英尺/63平方米
25%首付:S$ / 75%貸款:S$
30年貸款,2%利息,月供:S$
2室
新幣 S$ 起
B2戶型 2室 646平方英尺/60平方米
25%首付:S$ / 75%貸款:S$
30年貸款,2%利息,月供:S$
2室
新幣 S$ 起
B2(a)戶型 2室 710平方英尺/66平方米
25%首付:S$ / 75%貸款:S$
30年貸款,2%利息,月供:S$
2室
新幣 S$ 起
B2(p)戶型 2室 850平方英尺/79平方米
25%首付:S$ / 75%貸款:S$
30年貸款,2%利息,月供:S$
2室DELUXE
新幣 S$ 起
B3戶型 2室 753平方英尺/70平方米
25%首付:S$ / 75%貸款:S$
30年貸款,2%利息,月供:S$
2室DELUXE
新幣 S$ 起
B3(a)戶型 2室 818平方英尺/76平方米
25%首付:S$ / 75%貸款:S$
30年貸款,2%利息,月供:S$
2室DELUXE
新幣 S$ 起
B3(p)戶型 2室 990平方英尺/92平方米
25%首付:S$ / 75%貸款:S$
30年貸款,2%利息,月供:S$
2室DELUXE
新幣 S$ 起
B4戶型 2室 796平方英尺/74平方米
25%首付:S$ / 75%貸款:S$
30年貸款,2%利息,月供:S$
2室DELUXE
新幣 S$ 起
B4(a)戶型 2室 861平方英尺/80平方米
25%首付:S$ / 75%貸款:S$
30年貸款,2%利息,月供:S$
2室DELUXE
新幣 S$ 起
B4(p)戶型 2室 1044平方英尺/97平方米
25%首付:S$ / 75%貸款:S$
30年貸款,2%利息,月供:S$
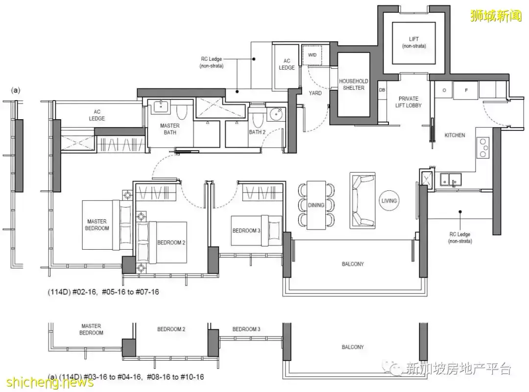
3室
新幣 S$ 起
C1戶型 3室 1119平方英尺/104平方米
25%首付:S$ / 75%貸款:S$
30年貸款,2%利息,月供:S$
3室
新幣 S$ 起
C1(p)戶型 3室 1216平方英尺/113平方米
25%首付:S$ / 75%貸款:S$
30年貸款,2%利息,月供:S$
3室
新幣 S$ 起
C2戶型 3室 1206平方英尺/112平方米
25%首付:S$ / 75%貸款:S$
30年貸款,2%利息,月供:S$
3室
新幣 S$ 起
C2(p)戶型 3室 1302平方英尺/121平方米
25%首付:S$ / 75%貸款:S$
30年貸款,2%利息,月供:S$
3室DELUXE
新幣 S$ 起
C3戶型 3室 1270平方英尺/118平方米
25%首付:S$ / 75%貸款:S$
30年貸款,2%利息,月供:S$
3室DELUXE
新幣 S$ 起
C3(p)戶型 3室 1432平方英尺/133平方米
25%首付:S$ / 75%貸款:S$
30年貸款,2%利息,月供:S$
3室DELUXE
新幣 S$ 起
C4戶型 3室 1302平方英尺/121平方米
25%首付:S$ / 75%貸款:S$
30年貸款,2%利息,月供:S$
3室DELUXE
新幣 S$ 起
C4(p)戶型 3室 1388平方英尺/129平方米
25%首付:S$ / 75%貸款:S$
30年貸款,2%利息,月供:S$
3室DELUXE
新幣 S$ 起
C5戶型 3室 1302平方英尺/121平方米
25%首付:S$ / 75%貸款:S$
30年貸款,2%利息,月供:S$
3室DELUXE
新幣 S$ 起
C5(p)戶型 3室 1453平方英尺/135平方米
25%首付:S$ / 75%貸款:S$
30年貸款,2%利息,月供:S$
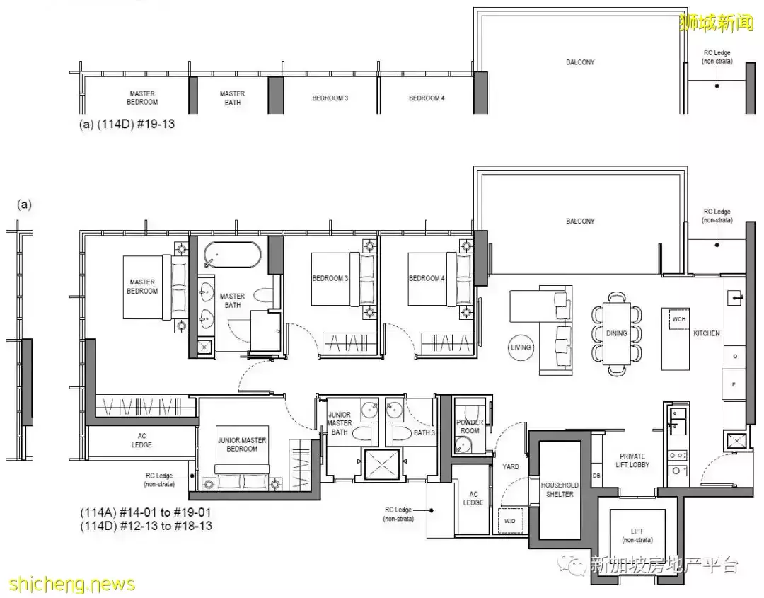
4室
新幣 S$ 起
D1戶型 4室 1518平方英尺/141平方米
25%首付:S$ / 75%貸款:S$
30年貸款,2%利息,月供:S$
4室DELUXE
新幣 S$ 起
D2戶型 4室 1668平方英尺/155平方米
25%首付:S$ / 75%貸款:S$
30年貸款,2%利息,月供:S$




















































