小紅點新加坡雖國土面積不大,卻憑著政治穩定與經濟蓬勃發展,使其擁有不少在全世界排名前列的機會。其中就包括了今天我們將介紹的項目-華利世家 Wallich Residence,也曾在“全球十大豪華公寓項目”的名額中,占有一席之地。
榮列全球十大豪華公寓第九的華利世家樓盤位于新加坡金融核心區域-丹戎巴葛金融區中心,其坐落于海拔180米之上,是新加坡最高的超豪華公寓住宅單位,也是當之無愧的獅城之巅。
其中位于62樓至64樓共三層的超級頂層豪華複式公寓,被稱爲是”空中別墅”,其擁有私人泳池,泳池甲板,按摩浴池,懸挂式陽台等奢華設施。而這個超級頂層豪宅單位前年十月份也以6,200萬新幣的售價轉手,也是新加坡本地最昂貴的公寓住宅單位之一。
那華利世家還有什麽過人之處能跻身世界前十豪華公寓之列呢?小編今天就帶大家一探究竟,探索華利世家的頂級時尚生活!
項目簡介
Wallich Residence 華利世家坐落于第2郵區的丹戎巴葛中央商務區,是由新加坡房地産領域的領導者-國浩置地集團,耗資32億新元打造的一個集商業、住宅、零售、酒店和城市公園于一身,並與丹戎巴葛地鐵站直接相連的六合一”垂直城市”綜合體項目。
該項目房型多元豐富,其中包括一至四臥房單位、4套頂層複式豪宅和1套超級頂層豪宅,共擁有181個單位。而華利世家作爲丹戎巴葛中心的最頂端,整棟大樓以290米的高度,超越大華銀行一號大廈(UOB Plaza One)、萊佛士坊一號(One Raffles Place)及共和大廈(Republic Plaza)維持近20年的紀錄,躍居成爲新加坡第一高樓。該住戶不僅有一覽城市美景的無敵高度,也能體驗絕無僅有的便利生活享受。
項目風格
Wallich Residence 華利世家是由國際知名的SOM建築設計事務所(Skidmore, Owings & Merrill LLP)設計,該設計事務所的作品享譽世界,包括全球最高建築的迪拜哈利法塔,紐約世界貿易中心1號樓等,世界上前12大最高建築中,有6座均由SOM建築事務所設計。而發展商國浩置地集團也是屢獲殊榮的亞洲綜合發展項目領導者,兩者強強聯手成就了名副其實的城市巅峰之作—華利世家。
華利世家占地16萬平方英尺,是丹戎巴葛中心一部分。該中心完美無暇地把甲級辦公樓“國浩大廈”(Guoco Tower),五星級酒店“索菲特酒店”(Sofitel Hotel),生活購物商場,廣闊的城市公園,華利世家超豪華住宅公寓以及丹戎巴葛地鐵站集爲一體,滿足了城市人所有生活所需的垂直宜居生活概念。
而該項目難能可貴的是,在寸土寸金的市區中心地帶,還大手筆的保留了位于地鐵站上方面積達10萬平方尺的丹戎巴葛公園,讓住戶與職場精英們在繁華的中央商務區域,也可以享受綠意盎然的公園空間。
此外,華利世家還設有四個專屬的設施樓層,其中包括首層大廳的酒店服務標准禮賓服務部;39層令人驚歎的無邊際泳池及俯瞰摩天大樓的運動中心;52層的私人圖書館、小劇院和盛宴廳及62層擁有屏息美景的觀景台,以滿足住戶對生活的一切需求。
地理位置
華利世家地處丹戎巴葛中央商務區的中心地帶,其交通四通八達、出行便利,經濱海高速(Marina Coastal Expressway)、亞逸拉惹高速(Ayer Rajah Expressway)等主要高速公路可方便抵達新加坡城市的各處,且距離樟宜機場也僅16分鍾車程即可抵達。而丹戎巴葛地鐵站就在該項目的底層,前往萊福士金融區、烏節路及牛車水等地僅是一箭之遙。
該地區也聚集了許多的大型機構與公司,其中包括新加坡金融管理局、新加坡股票交易所、新加坡政府投資公司、麥士威會堂等。這不僅吸引許多同級別的跨國公司來此辦公,同時也對那些想加入精英地域的小公司具有非凡的吸引力。該項目的極佳地理位置,外加上附近大量精英商務族群的客源需求,將爲華利世家帶來極高的投資潛力。
而丹戎巴葛也將迎來新加坡政府土地再開發項目之一的轉型,無縫連接南部市區發展項目(Southern Waterfront City),使現有的中央商業區無縫擴展,形成一個煥然一新的濱水城市。而華利世家作爲丹戎巴葛的地標性建築項目,價值也將隨著南部瀕水市區的發展而水漲船高。
(未來南濱海新城概念設計)
周邊設施
地鐵站
Tanjong Pagar MRT – 0.1km
Telok Ayer MRT – 0.6km
Downtown MRT – 0.8km
Chinatown MRT – 0.9km
商場
Icon Village – 0.3km
China Square – 0.8km
Marina Bay Link Mall – 0.9km
People’s Park Complex – 0.9km
Chinatown Point – 0.9km
People’s Park Centre – 1.0km
The Central – 1.4km
Marina Bay Sands – 1.5km
Funan The Digital Mall – 1.7km
UE Square – 1.8km
Esplanade Mall – 1.8km
幼兒園
Fairfield Methodist Church Kindergarten – 0.5km
PCF Tanjong Pagar-Tiong Bahru Blk 1E – 0.6km
Chinese Kindergarten – 1.5km
Y W C A Kindergarten (Outram) – 1.6km
Arts Kidz Pre-school – 1.8km
PCF Tanjong Pagar-Tiong Bahru Blk 130 – 127 – 1.9km
Rosemary Hall Montessori Kindergarten – 2.0km
小學
Cantonment Primary School – 0.7km
中學
Outram Secondary School – 1.5km
初級學院
Catholic Junior College – 5.5km
大專
Singapore Management University – 2.3km
國際學校
American College – 0.4km
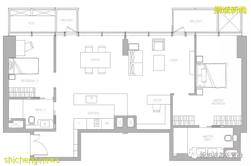
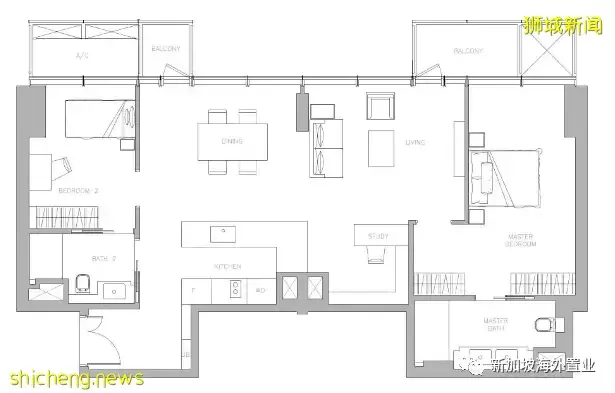
現有戶型圖
2室
B2-2戶型: 85平方米 / 915平方尺
新幣 S$3,648,000 起
2室
B2-2(1)戶型: 85平方米 / 915平方尺
新幣 S$3,558,000 起
2室+書房
C2-1戶型: 117平方米 / 1,259平方尺
新幣 S$5,588,000 起
2室+書房
C2-1(1)戶型: 117平方米 / 1,259平方尺
新幣 S$5,688,000 起
3室
A3-1戶型: 122平方米 / 1,313平方尺
新幣 S$4,118,000 起
3室
A3-6-50戶型: 152平方米 / 1,636平方尺
新幣 S$5,668,000 起
3室
A3-3-49戶型: 153平方米 / 1,647平方尺
新幣 S$5,388,000 起
3室
A3-3-48戶型: 155平方米 / 1,668平方尺
新幣 S$5,338,000 起
3室
A3-3-47戶型: 156平方米 / 1,679平方尺
新幣 S$5,288,000 起
3室
A3-6-45戶型: 159平方米 / 1,711平方尺
新幣 S$5,508,000 起
3室
A3-3-44戶型: 160平方米 / 1,722平方尺
新幣 S$5,198,000 起
3室
A3-6-42戶型: 163平方米 / 1,755平方尺
新幣 S$5,358,000 起
4室
B4-1戶型: 154平方米 / 1,658平方尺
新幣 S$6,068,000 起
4室
B4-3-56戶型: 160平方米 / 1,722平方尺
新幣 S$6,738,000 起
4室
B4-2-55戶型: 162平方米 / 1,744平方尺
新幣 S$6,380,000 起
4室
B4-2-54戶型: 163平方米 / 1,755平方尺
新幣 S$6,320,000 起
4室
B4-2-53戶型: 164平方米 / 1,765平方尺
新幣 S$6,280,000 起
4室
C4-1戶型: 185平方米 / 1,991平方尺
新幣 S$9,098,000 起
4室+書房
C4-2-61戶型: 184平方米 / 1,981平方尺
新幣 S$9,443,000 起
4室+書房
C4-2-60戶型: 186平方米 / 2,002平方尺
新幣 S$8,488,000 起
總結
華利世家作爲丹戎巴葛中心的中央地標性建築,除了附近有著龐大的精英商務族群的客源需求,新加坡土地再開發的南部市區發展項目,也將把華利世家升華至另一個高度。不管是家庭自住的尊享感,還是商務投資的回報率,華利世家將是您的首選項目!
































