太興奮了,今年終于有新樓盤在宏茂橋開盤了!最後一次是在2014年的Panorama。宏茂橋是我成長的地方,我是The Original AMK Boy。雖然我已經不住在宏茂橋了,我還是經常回去這個充滿回憶的地方。
廢話不多說,本期推薦的主角應該是在非中央區(Outside Central Region)最最最優越的地點了,雙學區房,它就是 – AMO Residence!
項目簡介
開發商:華業集團,慶隆,Singapore Land
地址:21 Ang Mo Kio Rise Singapore 569417
竣工日期:2026年
産權:99年
占地面積:12679平米
戶數:372 (2居室至5居室)
參考價格(單價僅僅每平方英尺$1890開始)
2居室 $126萬起跳
3居室 $181萬起跳
4居室 $248萬起跳
5居室 $285萬起跳
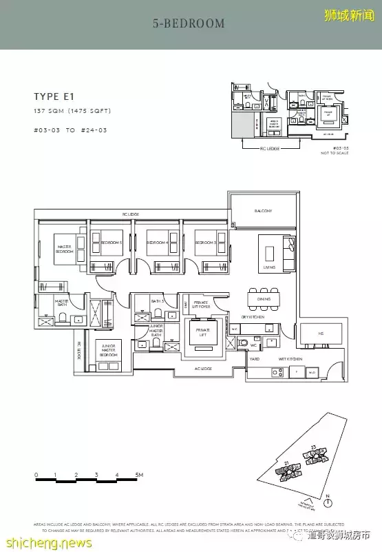
戶型分布
戶型參考
AMO Residence也是雙學區房。一公裏以內就有兩所大名鼎鼎的小校。愛同學校和聖尼各拉女校。標准學區房的標配!愛同是福建會館附屬5大名校之一,也是新加坡最受歡迎的小學之一。
衆所周知宏茂橋是新加坡總理李顯龍的集選區,宏茂橋的生活配套可以說的非常成熟的。地鐵贊,巴士總換站,高速公路都一應俱全。宏茂橋這個位置在新加坡地圖上可說是非常中部的,所以不管去新加坡的東南西北都非常方便。如果從AMO Residence步行到新的地鐵站 – Mayflower只需要7分鍾,Mayflower地鐵站是位于新的地鐵線湯申-東海岸線。喜歡高端時尚,購物的朋友們,烏節路地鐵站僅僅8站距離。
對了,AMO Residence毗鄰著三個商場:Thomson Plaza,Junction 8,AMK Hub。不管吃飯,購物,看電影,生活的點點滴滴都非常方便。AMO Residence也是跟大自然靠得很近。開車5分鍾就可以到達Macritchie Reservoir(麥裏茲溪水池)和Lower Pierce Reservoir。喜歡大自然的朋友可以嘗試在園林裏徒步,是個非常棒的體驗。
心動不如馬上行動!示範單位將在7月9號開放給買家參觀!
















