紐約有著名的中央公園,周圍的房價全城最貴。
新加坡其實也有一個中央公園,寸土寸金的新加坡再發展下去,你覺得周圍的房價會不會也變得越來越貴呢?
美國紐約中央公園
新加坡碧山-宏茂橋公園
新加坡版“中央公園”邊上 住得有多舒服?
2012年2月,碧山-宏茂橋公園花費上億新元完成改建。該設計獲得了當年世界建築節年度最佳景觀設計項目獎!
碧山公園采用修複自然河道手法改造的河道蜿蜒曲折、寬窄不一,塑造出極爲寶貴、自然而又多元化的棲息地,生物多樣性增加了約30%。
隨後公園周圍的房子眼看就蓋起來了,住在碧山-宏茂橋公園的人有多幸福?
附近的網友給我們發來很多實拍照片
這裏有水道潺潺小溪、有蒼天大樹、有花園菜地、還有好幾個遊樂場,一個中式風格的蓮花池。
可惜碧山宏茂橋公園附近已經很久沒有新的公寓了,尤其是宏茂橋一端,已經8年沒有建新公寓。
時隔8年,這兩天新加坡終于要開盤一個新項目,它不僅僅是在Bishan-Ang Mo Kio公園邊上,還靠近地鐵站!還有兩個名校在1公裏之內! 你可能已經聽說了,最近全城都在議論這個樓盤 AMO Residence!
這個熱爆全城市的項目
最新指導價格出來了!
尺價只需1890/平方英尺起
2臥126萬起,3臥181萬起
4臥248萬起,5臥285萬起
1 首先它是地鐵房- 美華地鐵站步行5分鍾
2 其次它是兩個名校學區房
– 愛同小學和聖尼格拉女校
3 最後它擁有4大公園自然景觀
– 碧山宏茂橋公園只是其中之一,它還靠近幾個蓄水池和保留區。
三大亮點
因爲靠近新加坡的“綠肺”,其高層的景觀是這樣的(附近居民樓實拍)
讓我們來細細了解一下
項目介紹
新加坡著名發展商華業集團UOL、新加坡置地和慶隆集團聯合開發,品質保證 雙名校學區房,愛同小學、CHIJ 聖尼各拉小學,都是特選學校,有高級華文課程; 周邊配套設施超級多,菜市場、小販中心、網紅咖啡館、海鮮餐館一應俱全; 家門口有碧山宏茂橋公園、麥裏芝蓄水池,親近大自然,遛娃、徒步好去處; 戶型設計方正實用,符合自住和投資型買家需求
項目資料: 地點 第20郵區,宏茂橋Ang Mo Kio Rise
發展商 著名的華業集團UOL、新加坡置地和慶隆集團
産權 99年地契
單位數量 372套,2臥室-5臥室
占地面積 12679.4平方米
樓棟 兩棟25層
預計交房 2026年底
01 生活便利
位于成熟的宏茂橋市鎮,只需2站地鐵到達Thomson Plaza,著名的湯生路上段美食街就在這裏,如美味中餐館、火鍋店、日式料理、西餐、印度煎餅、特色咖啡館、西式甜品店和泰式火鍋店,3分鍾可以步行到組屋的咖啡店,全方位滿足您的味蕾。碧山地鐵站有大型商場 Junction 8、宏茂橋地鐵站有大型商場AMK HUB,有大型超市、餐館、零售店、電影院、銀行分行等。
02 交通便利
5分鍾地鐵步行到Mayflower地鐵站(湯生-東海岸線),8站地鐵到烏節路地鐵站(市中心),到烏節路約20分鍾車程,濱海灣CBD約25分車程。預計2026-2027年開通的南北快速公路, 連接新加坡北部到市中心,預計節省平均10-15分鍾的出行時間, 還有2029年開通的泛島地鐵線 (Cross island Line)
03 名校雲集
關注學區房的家長們可以聯系我看下這個項目,周圍1公裏內有雙名校愛同小學、CHIJ 聖尼各拉小學,還有鄰裏的宏茂橋小學供家長選擇。幾分鍾車程可以到公教中學、萊福士初級學院RI(新加坡最好的高中)。衆所周知,學區房項目一直廣受家長們投資者歡迎,學區房除了給小孩提供好的教育外,同時是一個穩妥的投資選擇,坐等房價穩定增值。
04 著名開發商
項目由新加坡華業集團UOL開發,資金實力雄厚,力求打造大師級的産品,高品質保證,讓您買得放心,重點是很多業主買UOL的項目都取得可觀的利潤,如The Clement Canopy、Principal Garden、Thomson Three等。 榮獲Edgepro2018、2019年最佳發展商獎,旗下很多項目獲得各類獎項,悅文荟贏得最佳私人公寓設計獎,如最近幾年開發的項目Principal Garden、Tre Ver、Avenue South Residence,頗受買家們好評。華業集團UOL自從1973年創辦以來,已經有48年項目開發曆史,旗下開發的如烏節路豪宅項目 Nassim Park Residence,東海岸高檔住宅Meyerhouse、Amber 45等。
商場如Novena Square、United Square等,旗下有泛太平洋酒店集團有30個酒店,業務範圍有住宅開發、商場、酒店管理,辦公樓、投資等。
05 接近大自然,享受綠色生活
公寓不遠處就是麥裏芝蓄水池,只需3站巴士就可到達,作爲新加坡徒步愛好者聖地,還有貝雅士上段蓄水池,貝雅士下段蓄水池,組成新加坡全島的“綠肺”,靠近大自然,麥裏芝蓄水池安靜的自然景觀,吸引在繁忙都市上班的人,組織周末徒步活動,享受親近大自然的綠色生活,徹底把工作或者生活上的煩惱抛到腦後。 對于攝影愛好者來說,可以等在太陽快下山時,去抓取夕陽美景那一瞬間。 此外可以在飯後去附近碧山公園溜達,碧山公園爲飯後消遣打發時間和周末遛娃的好去處。
06 平面圖和漂亮小區圖
07 戶型設計實用高效
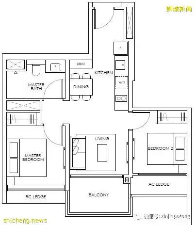
2臥室,57平方米,價格126萬起
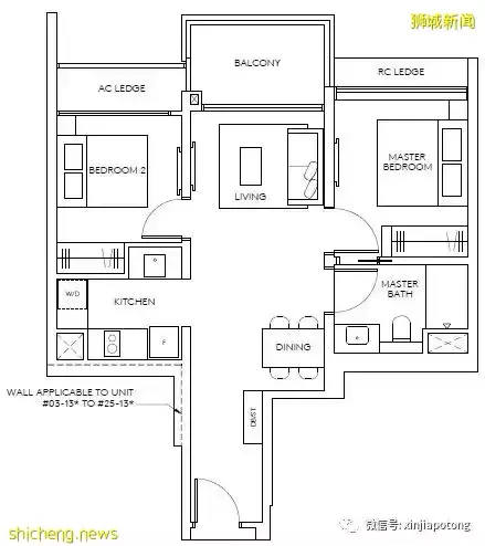
2臥室啞鈴型,63平方米,可封閉式廚房
2臥室啞鈴型,69平方米,可封閉式廚房
三臥室入門款,89平方米,價格181萬起
3臥室+書房,97平方米,適合家庭戶型
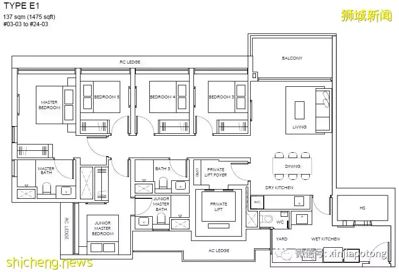
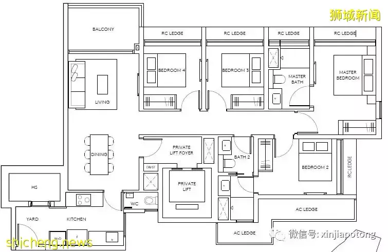
四臥室豪華型,143-180平方米,私人電梯入戶,理想大家庭或三代同堂戶型,價格248萬起
五臥室豪華型,137平方米,私人電梯入戶,理想大家庭或三代同堂戶型,價格285萬起


































