摘要
星宇軒(The Antares)位于第D14郵區的麥波申區(MacPherson),屬于新加坡的中央區。公寓坐落在瑪達路(Mattar Road),位于恩典浸信教堂(Grace Baptist Church)和聖斯德望教堂(Church Of Saint Stephen)的中間,屬成熟住宅區。
該公寓由FSKH Development Pte Ltd開發。該公司是由福聯盛控股(Hock Lian Seng Holdings)、強楓控股(Keong Hong Holdings)和長益集團有限公司(TA Corporation Ltd)組成的聯盟公司。
星宇軒(The Antares)占地約6,230平方米(67,059平方尺),擁有99年地契,將建造2棟5層樓高、1棟17層樓高和1棟18層樓高的建築,提供265個私宅單元。
戶型包括:
28套一臥室
7套一臥室閣樓
150套兩臥室
14套兩臥室閣樓
47套三臥室
3套三臥室閣樓
15套四臥室
1套四臥室閣樓
(452-1603平方尺)
1
公寓精華分析
距離濱海市區線瑪達地鐵站(Mattar MRT)100米,2分鍾步行抵達;
靠近PIE、KPE、CTE和尼诰大道,7分鍾車程抵達體育中心,15分鍾至烏節路;
教育資源豐富,1公裏範圍內的小學就有3所;
靠近各種就業群,如Kallang Way、Tai Seng和Kg Ubi IndustrialEstates,租金回報潛力高;
毗鄰多家購物商場,如Macpherson Mall、Paya Lebar Square、Singapore Post Centre和Paya Lebar Quarters;
由實力雄厚的發展商開發,有質量和信譽保障;
天人合一的設計,全景窗戶,高級家私配備。
1
星宇軒
※ 星宇軒位于中部黃金地段,新加坡的心髒
星宇軒(The Antares)位于第D14郵區的麥波申區(MacPherson),屬于新加坡的中央區。公寓坐落在瑪達路(Mattar Road),位于恩典浸信教堂(Grace Baptist Church)和聖斯德望教堂(Church Of Saint Stephen)的中間,位于成熟住宅區。如果將星宇軒(The Antares)定位于新加坡地圖,您將發現,該公寓位于新加坡的心髒地帶。
星宇軒(The Antares)就在麥波申廣場(MacPherson Mall)的旁邊,步行幾分鍾即可抵達。這是一間剛開幕不久的商場,現代摩登,設有不少的商鋪、餐飲店和超市,居民可以在此購物、娛樂和享用美食。星宇軒(The Antares)也靠近巴耶利峇廣場(Paya Lebar Square),這個中心聚集辦公、零售、酒店和便利的公共設施于一體,是購物、娛樂、休閑、健身和餐飲的好去處。
星宇軒(The Antares)附近的購物場所還包括Singapore Post Centre和巴耶裏巴中心(Paya Lebar Quarters)等。巴耶裏巴中心(Paya Lebar Quarters)將是一個繁華的綜合商業節點,擁有辦公室,零售店和充滿活力的公共空間;
12公頃土地可供開發,相當于約500,000平方米的商業建築面積;除了引入新的商業開發項目外,未來的Wisma Geylang Serai還將增強獨特的本地特色,以及芽籠路沿線的新步行街和廣場空間。
星宇軒(The Antares)附近還有多家位于循環路的熟食中心(Circuit Road Food Centre),如大牌79、80和89的熟食中心等,公寓居民可以在那享受到各種各樣、價廉物美的本地美食。
星宇軒(The Antares)的地理位置非常優越。公寓距離濱海市區地鐵線的瑪達地鐵站(Mattar MRT)只有100米,步行2分鍾即可抵達。這個地鐵站距離位于地鐵環線的麥波申地鐵轉換站(MacPherson MRT)只有1個站的距離。公寓附近100米範圍內還有多路巴士路線,如40、61、63、65、66A、135、154、155、158、155A和155等,通往全島各地。
星宇軒(The Antares)的駕車人士可通過附近的主要道路如阿裕尼路(Aljunied Road)、麥波申路(MacPherson Road)等連接中央高速公路(CTE)和泛島高速公路(PIE)等,非常便利。公寓距離烏節購物商圈或中央商業區(CBD)只有約15分鍾車程。
※ 區位教育多元化、質量化
近年來,報讀小學的孩子有上升的趨勢,許多家長都苦于爲自己的孩子報讀心儀的小學。一些海外朋友特別是來自中國的朋友希望將自己的孩子送到新加坡政府小學。由于名額有限,外籍孩子的入學由教育部根據孩子的居住地點統一分配。這樣一來,這些孩子可能就會被分配到離家較遠的小學。但如果您家附近有多所小學,被分配到離家較近的小學的機會將大大提高。
嘉諾撒仁愛會小學(Convent Primary School)
麥波申小學(Macpherson Primary School
芽籠美以美小學(Geylang Methodist Primary School)
四德小學(Cedar Primary School)
光華小學(KongHwa Primary School)
海星中學(附小)(Maris Stella High School,Primary)
柏盛中學(Macpherson Secondary School)
芽籠美以美中學(Geylang Methodist Secondary School)
四德女子中學(Cedar Girls’ Secondary School)
巴特禮中學(Bartley Secondary School)
此外,公寓也靠近澳大利亞詹姆斯庫克大學(James Cook University)沈氏道分校。年輕的媽媽們也不用擔心,附近1公裏範圍內就有5所幼兒園可供選擇。說星宇軒(The Antares)是學區公寓是名副其實的。
※ 星宇軒是夜空中最輝煌、耀眼的夢想家居
星宇軒(The Antares)項目的地段是2017年下半年的政府售地計劃中推出的其中一幅,該地段擁有99年地契,由FSKH Development Pte Ltd開發。該公司是由福聯盛控股(Hock Lian Seng Holdings)、強楓控股(Keong Hong Holdings)和長益集團有限公司(TA Corporation Ltd)組成的聯盟公司。
Hock Lian Seng(HLS)成立于1969年,爲新加坡的公共和私營部門承擔並完成了衆多土木工程和基礎設施項目,獲得了多個獎項和認證,並在新交所主板上市。上市公司強康控股于1983年成立,業務遍及新加坡、越南、日本和馬爾代夫等國家。TA Corporation擁有超過45年的業績記錄,是一家成熟的優質房地産和建築集團。
FSKH Development公司在10家公司參與的競標中以S$2.23億新元標下這塊政府售地。星宇軒(The Antares)公寓由Consortium 168 Architects設計。該公司成立于1982年,是業內知名的建築設計師,擁有衆多獲獎作品。設計的公寓包括[email protected]和Sol Acres等。
星宇軒(The Antares)的設計靈感來源于恒星心宿二星(Antares)。心宿二星(Antares)是銀行系中最耀眼的恒星之一,她用美麗的紅色光芒照亮夜空,打造一個壯觀的景象。心宿二星(Antares)位于天蠍座區位的心髒地帶,正如星宇軒(The Antares)位于新加坡的心髒地帶一樣。公寓采用這樣的設計可謂天人合一。
心宿二星(Antares)是一個巨大的星體,直徑達4.8億公裏,亮度是太陽的9000倍。設計靈感來自心宿二星(Antares)意在打造一個在夜空中最輝煌、最耀眼的住宅。天蠍星座的人對互不相同的和互不相融的事物有特殊的興趣,也喜歡探究事物的本質並加以區別。
星宇軒(The Antares)的設計也注重層次感,將相鄰建築有機結合起來。著名的美國哲學家和詩人Ralph Waldo Emerson曾經說,房屋由牆壁和橫梁組成,而建造一個家需要愛與夢想(A house is made withwalls and beams; a home is built with love and dreams)。
星宇軒(The Antares)堅信,公寓將建造堅實的牆壁和橫梁,配以豪華的裝備,制造愛的氛圍,讓這裏的居民充滿愛與夢想。
星宇軒公寓將建造至少29個/類設施,如健身房、俱樂部、遊泳池、水療室、閱讀區等供居民選用。公寓采用優質木制和大理石地板、特別設計的環形燈具、木制衣櫃等打造優質家居。廚房配備齊全,如烤箱、爐竈、冰箱和洗衣機等,就連放碗筷的架子都配備好了。
※ 星宇軒的投資升值潛能
星宇軒(The Antares)位于新加坡的心髒地帶,距離地鐵站只有100米距離,又位于成熟社區,周邊購物、娛樂、健身和餐飲設施齊全,附近還又多所幼兒園、小學和中學。這樣的位置必將吸引專業人士前來租住,提高租金回報率。公寓也靠近各種就業群,如Kallang Way、Tai Seng和Kg Ubi IndustrialEstates等,提供大量的工作機會,進一步提升出租回報率。舉一個例子,最近TOP的位于星宇軒(The Antares)附近的SIMS URBAN OASIS公寓,一臥室、二臥室和三臥室今年7月份的租金分別已達每月S$2,600、S$2,800和S$3,800新元,可見這一地帶的公寓具有相當不錯的租金回報率。
投資回報的另一個考慮因素是公寓的價位回升。這與新加坡及區域的大環境有關。但總體趨勢是往升時的,這已得到專家們的論證認可。到2030年,新加坡的房産價格將翻番,這不是信口開河,是根據相關數據分析得出的結論。星宇軒(The Antares)位于新加坡的心髒地帶,靠近東部地區。而東部的99年地契公寓的平均交易價在S$1700-S$1800之間。就拿附近的SIMS URBAN OASIS公寓爲例,其最近的成交價已高達每平方尺S$1740。由此可見,星宇軒(The Antares)的升值潛能的明顯的。
※ 室內設計和欣賞
星宇軒(The Antares)占地約6,230平方米(67,059平方尺),擁有99年地契,將建造2棟5層樓高、1棟17層樓高和1棟18層樓高的建築,提供265個私宅單元,戶型包括28套一臥室、7套一臥室閣樓、150套兩臥室、14套兩臥室閣樓、47套三臥室、3套三臥室閣樓、15套四臥室、1套四臥室閣樓,面積介于42-149平方米(452-1603平方尺)。
1
一臥室,套內面積42-56平方米(452-603平方尺),整套售價從S$789,000新元起。特點是戶型方方正正,布局合理,無浪費空間,客廳配備全封閉陽台,臥室配備衣櫃。這樣的戶型非常適合夫妻情侶享受二人世界,以及專業人士和學生。除了自住,也適合出租給高端專業人士。
二臥室,套內面積61-82平方米(657-883平方尺),整套售價從1,125,000元起。特點是戶型方方正正,布局合理,無浪費空間,客廳配備全封閉式陽台。兩個臥室均配備衣櫃,主臥室可放置King Size的大床,普通房也可放置雙人床。這樣的戶型非常適合有個小孩的夫妻,以及相應的專業人士和學生,也適合喜歡與父母同住的年輕夫婦。除了自住,也適合出租給相應的高端專業人士。
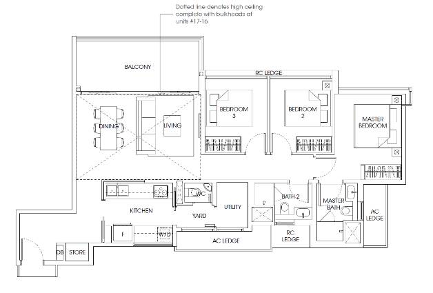
三臥室,套內面積82-127平方米(883-1,367平方尺)。整套售價從1,550,000元起。共同特點是,戶型方方正正,所有房間均配備內置衣櫃,主臥室可放置King Size的大床,其余2間普通房也可放置雙人床。廚房相對獨立,餐廳與客廳共享空間,並共享一個全封閉式陽台,擁有3個衛生間。這種房型特別適合有2個小孩的夫妻,以及專業人士和學生,或出租給相關高端專業人士。
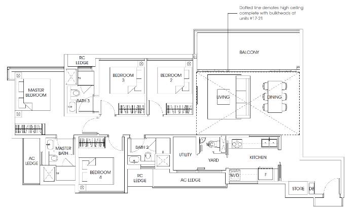
四臥室,套內面積127-149平方米(1,367-1,604平方尺)。整套售價從S$2,250,000新元起。四臥室戶型方方正正,所有房間均配備內置衣櫃。廚房相對獨立,幹濕廚房分開,還有儲藏間,餐廳與客廳共享空間,並配備陽台。主人房可放置King Size的大床,並配備陽台,其余3間普通房也可放置雙人床。三間普通房中有一間是准主人房,擁有相對獨立的衛生間。這種房型特別適合有二三個小孩的夫妻,或與父母同住的家庭以及出租給相關高端專業人士。
1
小結
星宇軒(The Antares)的設計靈感來自浩瀚的宇宙、是少數以星體命名的公寓。星宇軒(The Antares)位于新加坡的心髒地帶一樣,正如心宿二星(Antares)位于天蠍座區位的心髒地帶。公寓采用這樣的設計可謂天人合一。著名的美國哲學家和詩人Ralph Waldo Emerson曾經說,房屋由牆壁和橫梁組成,而建造一個家需要愛與夢想。
星宇軒(The Antares)堅信,公寓將建造堅實的牆壁和橫梁,配以豪華的裝備,制造愛的氛圍,讓這裏的居民充滿愛與夢想。公寓采用優質木制和大理石地板、特別設計的環形燈具、木制衣櫃等打造優質家居。廚房配備齊全,如烤箱、爐竈、冰箱和洗衣機等,就連放碗筷的架子都配備好了。公寓靠近各種就業群,提供大量的工作機會,進一步提升出租回報率。公寓附近有6家政府小學,爲期待自己的孩子能進入新加坡政府小學的外國朋友提供一個很好的選擇。


















