簡介:
The Antares位于D14郵區的19 Matter Road, Singapore 387728。由知名開發商FSKH Development開發。The Antares擁有 99年産權,包括1室,2室,3室,4室共265個單位。
新加坡郵區分布圖:
概況:
樓盤名稱:
The Antares
開發商:
FSKH Development
産權:
99年産權
預計交鑰匙時間:
2022年
單位數量:
265
樓層數量:
起始總價:
新幣 S$789,000
每平方英尺起始:
新幣 S$1,746
The ANTARES
絕妙生活方式的閃耀時刻
宇宙的浩瀚是無法估量的,它由數十億個星系組成,每個星系都有數十億顆恒星和行星。夢想在星光燦爛的天空下飛翔,激勵我們志存高遠,夢想更大。
作爲銀河系中最明亮的恒星之一,安塔瑞斯(Antares)以其美麗的紅光照亮夜空,是值得一看的壯麗的景象。
受這顆火紅阿爾法星的啓發,The Antares 是一個現實中的“天體現象”,它凝聚了你的好奇心和敬畏感,並將它們轉化爲一種永恒的生活方式。
它坐落在城市邊緣的第14郵區,緊鄰馬塔路和馬塔地鐵站(Mattar Road and Mattar MRT Station),毫無疑問,它是附近最耀眼的寶石。
時尚、迷人,它在成熟的住宅區中脫穎而出。
當你現在能擁有“星星”的時候,沒有理由只止步于現狀,不去追逐“星星”
凝視一顆冉冉升起的星星
The Antares坐落在馬塔路( Mattar road)的中心,以其具有現代感和永不過時的建築設計,照亮了周圍的甯靜。
包括四個街區,共265套公寓,有1到4間不等的臥室,爲您遠離都市生活的日常喧囂提供歇息的場所。
與此同時,它靠近城市中心,能夠滿足現代都市人的需求和欲望。它就像一顆真正的阿爾法星,發出耀眼的光芒。
馬塔爾地鐵站 B出口
佩爾頓運河公園連接道(3分鍾車程/步行4分鍾)
79及79A電路道路市場及熟食中心(3分鍾行車及4分鍾步行)
麥克弗森地鐵轉換站(1站)
巴耶利峇中心-SingPost中心 – 巴耶利峇 廣場-終身學習機構(5分鍾車程)
巴耶利峇地鐵轉換站(2站)
新加坡芽籠東部活動遊泳綜合設施(7分鍾車程)
麥克弗森89市場和熟食中心(5分鍾車程/步行7分鍾)
麥克弗森社區俱樂部(5分鍾車程/步行7分鍾)
芽籠美以美中小學(4分鍾車程)
阿裕尼地鐵站(3站)
新加坡體育中心(10分鍾車程)
海灣花園(15分鍾車程)
新加坡航空(14分鍾車程)
中央商務區(15分鍾車程)
萊仕國際學校(新加坡)(2020年1月)(5分鍾車程/ 9分鍾步行)
詳細信息
周邊的公路交通也四通八達,駕車的朋友可以快速與PIE、KPE等主要高速公路快速接駁,駕車經過尼科爾高速公路(Nicoll Highway)到達中央商務區,只要15分鍾,安塔瑞斯(The Antares)的地理位置十分優越,能迅速而毫不費力地到達新加坡的任何一個地方。
教育
卡諾莎天主教小學
四德女子中學
四德小學
芽籠美以美中小學
詹姆斯庫克大學
光華小學
海星中學
萊仕國際學校(新加坡)(2020年1月)
史丹福美國國際學校
聖安德魯學院
(初中/初中/初級學院)
商店
環城路77號Fairprice
城市廣場
Giant超市
Kinex購物中心
NEX購物中心
巴耶利峇廣場
巴耶利峇綜合商住體
新加坡中心
餐館
79和79A Circuit Road市場和熟食中心
面包新語總部
沿麥克弗森路的餐館
芽籠士乃市場
麥克弗森市場熟食中心
舊機場路熟食中心
上阿裕尼路餐館
Upper Boon Keng市場熟食中心
娛樂設施
阿裕尼公園
比達達裏公園
濱海灣花園
芽籠東部活動遊泳綜合設施
加冷河濱公園
麥克弗森社區俱樂部
濱海灣金沙新加坡
新加坡Hyer
新加坡體育中心
—
公園連接道
商業中心
終身學習研究所
巴耶利峇中心
新達城/新達新加坡會議展覽中心
萊佛士地金融區
濱海灣金融中心
丹戎巴葛區
永遠保持時尚風格
賣點:
隨處可達的周邊便利設施
交通連通性
Mattar MRT Station
Paya Lebar MRT Interchange 2 stations
Serangoon MRT Interchange 4 stations
Bishan MRT Interchange 6 stations
Downtown MRT Station 8 stations
購物/餐飲
MacPherson Markets and Food Centres
Paya Lebar Quarter
Macoherson Mall
商業中心
Geylang East Central
Paya Lebar Central
便捷設施
Singapore Sports Hub 7分鍾車程
MBFC 13分鍾車程
Orchard Road 17分鍾車程
交通
PIE, KPE, CTE, and Nicoll Highway
公寓提供的部分設施包括:
遊泳池
健身角
陽光甲板
健身房
功能房
花園燒烤亭
兒童遊樂場
1公裏內學校
Canossa Catholic Primary School
Geylang Methodist Primary School
2公裏內學校
Maha Bodhi School
Maris Stella High School
Cedar Girls School
Cedar Girls School
Cedar Primary School
Stamford American Int’ School
St. Andrew’s Junior School
戶型分布:
戶型
面積(平方英尺)
單位數量
1室
452-603
35
2室
657-883
164
3室
883-1,367
50
4室
1,367-1,604
16
主力戶型:
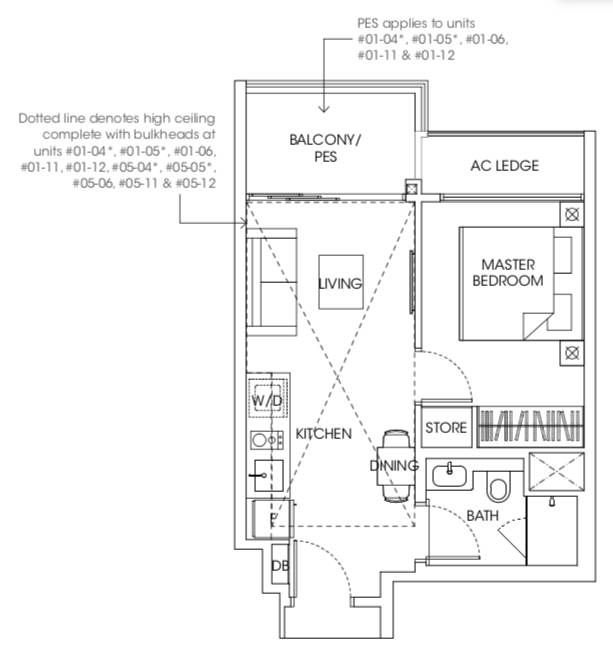
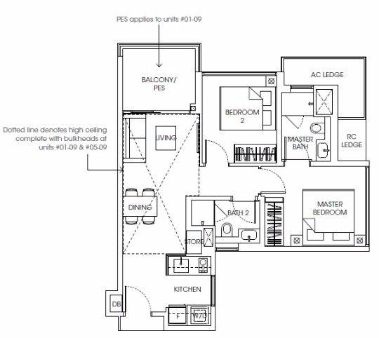
1室
新幣 S$789,000 起A1戶型1室 452平方英尺/42平方米
25%首付:S$197,250 / 75%貸款:S$ 591,750
30年貸款,2%利息,月供:S$2,187
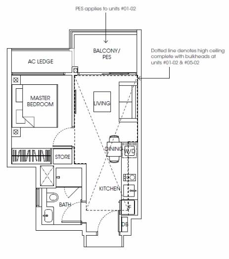
1室
新幣 S$794,000 起A1B-G戶型1室 603平方英尺/56平方米
25%首付:S$198,500 / 75%貸款:S$ 595,500
30年貸款,2%利息,月供:S$2,201
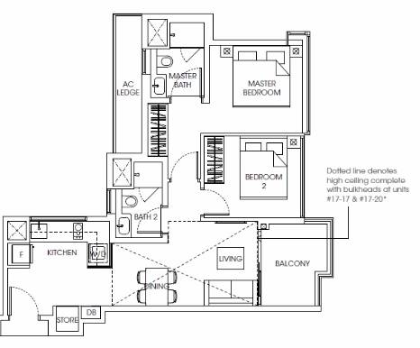
2室
新幣 S$1,144,000 起B1A戶型1室 689平方英尺/64平方米
25%首付:S$286,000 / 75%貸款:S$ 858,000
30年貸款,2%利息,月供:S$3,171
2室
新幣 S$1,178,000 起B1B戶型1室 689平方英尺/64平方米
25%首付:S$294,500 / 75%貸款:S$883,500
30年貸款,2%利息,月供:S$3,266
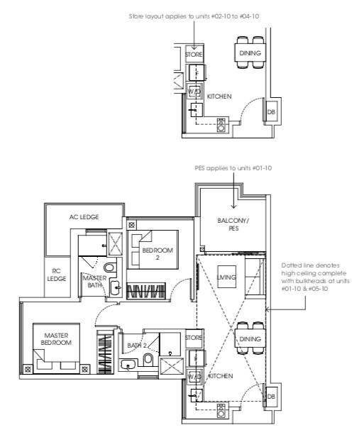
2室
新幣 S$1,125,000 起B1C戶型2室 687平方英尺/63平方米
25%首付:S$281,250 / 75%貸款:S$843,750
30年貸款,2%利息,月供:S$3,119
2室
新幣 S$1,268,000 起B1C-G戶型2室 850平方英尺/79平方米
25%首付:S$317,000 / 75%貸款:S$951,000
30年貸款,2%利息,月供:S$3,515
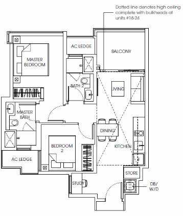
2室
新幣 S$1,152,000 起B1D戶型2室 667平方英尺/62平方米
25%首付:S$288,000 / 75%貸款:S$864,000
30年貸款,2%利息,月供:S$3,194
2室
新幣 S$1,220,000 起B1E戶型2室 700平方英尺/65平方米
25%首付:S$305,000 / 75%貸款:S$915,000
30年貸款,2%利息,月供:S$3,382
2室
新幣 S$1,211,000 起B1F戶型2室 689平方英尺/64平方米
25%首付:S$302,750 / 75%貸款:S$908,250
30年貸款,2%利息,月供:S$3,357
2室
新幣 S$1,268,000 起B2戶型2室 732平方英尺/68平方米
25%首付:S$317,000 / 75%貸款:S$951,000
30年貸款,2%利息,月供:S$3,515
2室
新幣 S$1,494,000 起B2-PH戶型2室 861平方英尺/80平方米
25%首付:S$375,500 / 75%貸款:S$1,120,500
30年貸款,2%利息,月供:S$4,142
2室
新幣 S$1,173,000 起B3戶型2室 657平方英尺/61平方米
25%首付:S$293,250 / 75%貸款:S$879,750
30年貸款,2%利息,月供:S$3,252
2室
新幣 S$1,272,000 起B4戶型2室 667平方英尺/62平方米
25%首付:S$318,000 / 75%貸款:S$954,000
30年貸款,2%利息,月供:S$3,526
2室
新幣 S$1,257,000 起B5戶型2室 710平方英尺/66平方米
25%首付:S$314,250 / 75%貸款:S$942,750
30年貸款,2%利息,月供:S$3,485
2室
新幣 S$1,204,000 起B6戶型2室 689平方英尺/64平方米
25%首付:S$301,000 / 75%貸款:S$903,000
30年貸款,2%利息,月供:S$3,338
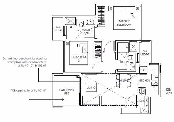
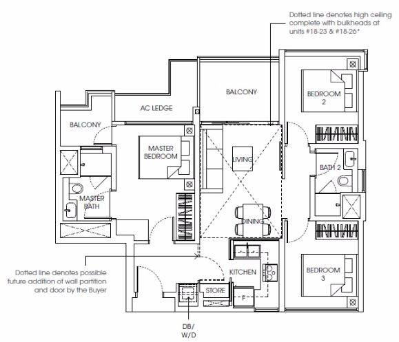
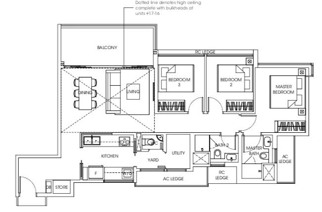
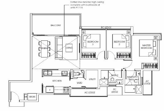
3室
新幣 S$ 1,550,000起C1戶型3室 883平方英尺/82平方米
25%首付:S$387,500 / 75%貸款:S$1,162,500
30年貸款,2%利息,月供:S$4,295
3室
新幣 S$ 1,899,000起C2戶型3室 1152平方英尺/107平方米
25%首付:S$474,750 / 75%貸款:S$1,424,250
30年貸款,2%利息,月供:S$5,264
3室
新幣 S$ 2,205,000起C2-PH戶型3室 1367平方英尺/127平方米
25%首付:S$551,250 / 75%貸款:S$1,653,750
30年貸款,2%利息,月供:S$6,113
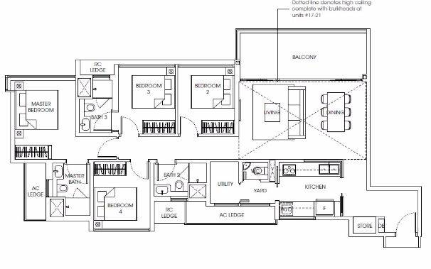
4室
新幣 S$ 2,571,000起D1-PH戶型4室 1604平方英尺/149平方米
25%首付:S$642,750 / 75%貸款:S$ 1,928,250
30年貸款,2%利息,月供:S$7,127



























