作爲全球“最適合孩子成長”的國家,新加坡吸引了無數華人家庭前來定居,爲的就是給孩子一個好的教育環境,讓他們從小贏在起跑線!
然而,日益漸增的求學人數,早已使新加坡學校名額供不應求!于是,入學門檻變高了,開始了史上最激烈的拼爹拼媽拼兄妹時代!
其實,也不用這麽麻煩,只需一套房子就能解決所有問題!
沒錯,這就是在新加坡最受家長歡迎的:
“學區房”
毫不誇張地說,擁有一套學區房,甚至可以影響孩子的未來!
在孩子小一報名時,若沒有其他優勢可以拼,則同等條件同等身份,有學區房則可以被優先錄取~
簡單來講,新加坡小一報名會經曆以下幾個階段:
拼兄妹階段
兄弟姐妹正在學校讀書的,一定會被錄取。親的兄弟姐妹哦。上名校的話,老大進了,下面的就不用擔心了。
拼父母階段
適合兩類人:
1)父母之前是該校的學生,並成爲校友會成員。
2)父母是校董會/管理委員會成員。
拼兄妹父母階段
適合三類人
1)兄弟姐妹,父母曾經就讀于該校
2)父母是該校教職工
3)孩子就讀于該校教育部附屬幼兒園*
拼義工階段
適合三類人
1)父母在該校做義工滿40個小時。
2)如果學校是教會或會館資助的, 父母是這間教會或會館的成員。
3)父母是活躍的社區基層(grassroot)領袖。
拼身份和學區房階段
以上各階段拼父母,拼兄妹,拼義工。這個階段就是開放給普通大衆,拼身份和學區。如果學額不夠,就需要抽簽,優先級是公民優先于PR,同等身份再考慮住所距學校遠近(分1公裏內,1-2公裏,2公裏外)。
Supplementary
上一階段抽簽失敗的話,到這個階段找還有剩余學額的學校繼續報名。
最後階段
這個是給非公民,非PR的國際學生。家長6月份網上提交,十月份拿到結果。
看到這裏
或許你會說
“這樣的房子,大家都搶著買
哪還輪得到自己啊!”
別著急,有肯定是會有滴~
這不,最近小編就發現一處
環境設施都堪稱完美的高性價比學區房
安利給大家~
Parc Clematis 錦泰門第
名校學區房
下拉詳情
點擊觀看視頻
項目信息
金文泰 – 今年 – 唯一新盤
· 名稱: Parc Clematis 錦泰門第
· 開發: SINGHAIYI
· 地址: 2-20 Jalan Lempeng
· 地契: 99年
· 設計: The P&T Group
· 面積: 58,866平方米
· 落成: 2023年第三季
· 規模:1450間住宅,8間排屋,4間角頭排屋,6間獨立式洋房
地理位置
第五郵區-交通中心
Parc Clematis 位于第5郵區,由之前的Park West公寓集體收購而來。位于成熟社區金文泰,8分鍾可步行去金文泰地鐵站。乘搭綠線9站到達目前的金融中心萊佛士,僅1站到達未來的金融中心裕廊東。
戰略性的位于裕廊創新區(Jurong Lake District)即第二金融中心以及維壹科技城(One north)的中心位置。
金文泰也是集成的交通中心,不僅是地鐵站,也是巴士總站。從金文泰上去高速路AYE,ECP,PIE和CTE也是很快。
周邊商城
成熟社區-衆多商城
金文泰是成熟社區,地鐵站附近非常多的商城,比較有名的有 :Clemnti Mall,City Vibe,321Clementi,著名的 food court ,濕巴沙 Clementi Market and Food Centre等
坐地鐵一站到裕廊東地鐵,擁有更多的商城:Westgate,JEM,JCube和IMM等。
周邊學校
金文泰-著名教育中心
一公裏以內的小學
集合了頂尖曆史名校: 南華小學(Nan Hua Primary School)與鄰裏名校: 啓發小學(QIFA Primary School)、錦明小學(Clementi Primary School)、培童小學(Pei Tong Primary School)。
無論新移民、公民子女、PR子女,落戶在這裏,都有優質的小學可供選擇。
周邊知名學府
南華中學(Nan Hua High School)、國立中學(NUS High School)、義安理工(Ngee Ann Polytechnic)、新加坡理工(Singapore Polytecnic)等。
高級學府更有國立大學和南洋大學。
公寓特色
超前設計-共享社區
位于金文泰的私宅區域,周圍都是公寓或者別墅。環境優雅。
靠近裕廊湖區,One north, Science Park西部主要商業園區,潛在租客和買家非常多。
不僅僅是教育樞紐,也是醫療樞紐,國大醫院,Ng Teng Feng, Jurong Medical Centre近在咫尺。
房型設計上,擁有衆多大房型單位可供選擇。超前設計理念,共享社區,這個理念在目前的00後裏特別流行,已經成爲租房的趨勢之一。
場地圖
面積大-設施齊全
戶型介紹
類型齊全-選擇多多
1臥1廳1衛
(實用面積:42㎡)
2臥2廳加書房
(實用面積:64㎡)
3臥2廳2衛
(實用面積:82-100㎡)
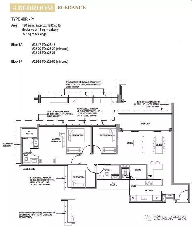
4臥2廳3衛
(實用面積:120㎡)
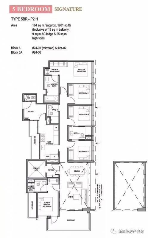
5臥2廳3衛閣樓PH
(實用面積:184㎡)
投資潛力
發展迅速-未來可期
西部正在經曆比較大的發展。未來的跨導線(金文泰會是其中一站),裕廊區域線,將正在建設的裕廊創新區,和南部瀕水區很好的融于南北線的大網絡中。
公寓欣賞
全景美圖
環境好,設施齊全
還是學區房
看完有木有心動哇!




















