新加坡2020年小學報名季正在如火如荼地進行中! 雖然新加坡教育部宣稱“每一所公立小學都是好學校”,從2013年之後也廢除了官方的學校排名。
不過新加坡的家長還是很追逐“名校”,什麽是名校呢?
其實教育部在師資分配上是基本公平的,“好”學校的“好”主要在其曆史傳承、校風、特色活動以及校友會的影響力上。
而且在學生小六離校考試中,每個學校的學生平均分,也就是學術表現還是存在客觀差異。
所以,在報名的時候,家長們發現每個學校的搶手程度是不一樣的!
基于此,新加坡家長們非常熱衷于研究小學排名。雖然沒有了官方數據,但是還是有其他辦法可以了解到哪些學校更好。
按2019年2B剩余學額排
比如我們照可以按照2019年小學入學2B階段每個小學剩余的學額來衡量。2B階段教育部規定必須強制保留20個學額,以下學校從學額從少到多排列,學額越少的,說明越搶手。
按照市場經濟的規律,搶手的,更多人申請的學校,大概率就是好學校。
CHIJ St. Nicholas Girls’ School (Primary Section) (girls) – 20
Catholic High School (Primary Section) (boys) – 20
Nan Hua Primary School – 20
Nanyang Primary School – 20
Pei Hwa Presbyterian Primary School – 20
Red Swastika School – 20
Rosyth School – 20
Temasek Primary School – 20
Methodist Girls’ School (Primary) (girls) – 21
Rulang Primary School – 22
Riverside Primary School – 23
West Spring Primary School – 23
Junyuan Primary School – 24
Punggol Green Primary School – 25
Yu Neng Primary School – 25
Eunos Primary School – 26
Pei Chun Public School – 27
Anglo-Chinese School (Primary) (boys) – 28
Shuqun Primary School – 29
Westwood Primary School – 29
Ai Tong School – 30
Fairfield Methodist School (Primary) – 32
Henry Park Primary School – 32
Jurong Primary School – 33
Juying Primary School – 33
Radin Mas Primary School – 33
River Valley Primary School – 33
Frontier Primary School – 34
Pasir Ris Primary School – 34
Singapore Chinese Girls’ School (Primary) (girls) – 34
Tao Nan School – 34
Blangah Rise Primary School – 36
Jing Shan Primary School – 36
Xingnan Primary School – 37
Gongshang Primary School – 38
South View Primary School – 38
Innova Primary School – 39
Keming Primary School – 39
Woodlands Primary School – 39
Princess Elizabeth Primary School – 40
West Grove Primary School – 40
White Sands Primary School – 40
Opera Estate Primary School – 41
Woodgrove Primary School – 41
CHIJ Primary (Toa Payoh) (girls) – 42
Chongzheng Primary School – 42
Angsana Primary School – 43
Evergreen Primary School – 43
Maha Bodhi School – 43
Sengkang Green Primary School – 43
Bukit Panjang Primary School – 44
Changkat Primary School – 44
East Spring Primary School – 44
North View Primary School – 44
Yangzheng Primary School – 44
Ang Mo Kio Primary School – 45
Holy Innocents’ Primary School – 45
Jurong West Primary School – 45
Kuo Chuan Presbyterian Primary School – 45
St. Gabriel’s Primary School (boys) – 45
Anglo-Chinese School (Junior) (boys) – 46
Chongfu School – 46
Fengshan Primary School – 46
Guangyang Primary School – 46
Jiemin Primary School – 46
Tampines Primary School – 46
Yumin Primary School – 46
Anderson Primary School – 47
Canossa Catholic Primary School (girls) – 47
Teck Ghee Primary School – 47
Zhonghua Primary School – 47
Casuarina Primary School – 48
Hong Wen School – 48
Qihua Primary School – 48
Xinmin Primary School – 48
St. Anthony’s Primary School – 49
Tanjong Katong Primary School – 49
CHIJ Our Lady of Good Counsel (girls) – 50
Dazhong Primary School – 50
St. Andrew’s Junior School (boys) – 50
First Toa Payoh Primary School – 51
Kong Hwa School – 51
Montfort Junior School (boys) – 51
Zhenghua Primary School – 51
Canberra Primary School – 52
Elias Park Primary School – 52
Fuhua Primary School – 52
Park View Primary School – 52
Admiralty Primary School – 53
Northland Primary School – 53
Springdale Primary School – 53
Alexandra Primary School – 54
Huamin Primary School – 54
Marsiling Primary School – 54
Si Ling Primary School – 54
Unity Primary School – 54
Haig Girls’ School (girls) – 55
Maris Stella High School (Primary Section) (boys) – 55
Sembawang Primary School – 55
Yew Tee Primary School – 55
Yishun Primary School – 55
Bendemeer Primary School – 56
Damai Primary School – 56
St. Hilda’s Primary School – 56
Farrer Park Primary School – 57
Oasis Primary School – 57
Peiying Primary School – 57
Townsville Primary School – 57
Cantonment Primary School – 58
Nan Chiau Primary School – 59
Hougang Primary School – 60
Punggol View Primary School – 60
Queenstown Primary School – 60
St. Joseph’s Institution Junior (boys) – 60
Bukit View Primary School – 61
Greenwood Primary School – 61
Kranji Primary School – 61
Punggol Cove Primary School – 61
Woodlands Ring Primary School – 61
Meridian Primary School – 62
Rivervale Primary School – 62
Stamford Primary School – 62
Zhangde Primary School – 62
Lakeside Primary School – 63
Mayflower Primary School – 63
Xinghua Primary School – 63
Corporation Primary School – 64
Punggol Primary School – 64
West View Primary School – 64
Bukit Timah Primary School – 65
Ngee Ann Primary School – 65
St. Margaret’s Primary School (girls) – 65
Yio Chu Kang Primary School – 65
Yuhua Primary School – 65
CHIJ Our Lady Queen of Peace (girls) – 66
De La Salle School – 66
Endeavour Primary School – 66
Gan Eng Seng Primary School – 66
Greenridge Primary School – 66
Pioneer Primary School – 66
Telok Kurau Primary School – 66
CHIJ (Katong) Primary (girls) – 67
Fernvale Primary School – 67
North Spring Primary School – 67
Chua Chu Kang Primary School – 68
Edgefield Primary School – 68
Lianhua Primary School – 68
Qifa Primary School – 69
CHIJ (Kellock) (girls) – 70
Poi Ching School – 70
Palm View Primary School – 71
Tampines North Primary School – 71
Beacon Primary School – 72
Compassvale Primary School – 72
Fuchun Primary School – 72
Concord Primary School – 73
Teck Whye Primary School – 73
Bedok Green Primary School – 74
Naval Base Primary School – 74
Raffles Girls’ Primary School (girls) – 74
St. Stephen’s School (boys) – 74
Anchor Green Primary School – 75
Clementi Primary School – 75
Kheng Cheng School – 75
Paya Lebar Methodist Girls’ School (Primary) (girls) – 75
CHIJ Our Lady of The Nativity (girls) – 76
Geylang Methodist School (Primary) – 78
North Vista Primary School – 79
New Town Primary School – 82
Waterway Primary School – 82
Cedar Primary School – 83
Fern Green Primary School – 83
Marymount Convent School (girls) – 83
Xishan Primary School – 83
Pei Tong Primary School – 84
St. Anthony’s Canossian Primary School (girls) – 84
Wellington Primary School – 85
Seng Kang Primary School – 87
Boon Lay Garden Primary School – 90
Horizon Primary School – 91
Ahmad Ibrahim Primary School – 92
Mee Toh School – 93
Northoaks Primary School – 93
Greendale Primary School – 106
Valour Primary School – 110
按學校獲得的獎項排
如果你想換一個角度衡量一個小學的好壞,可以參考學校獲得的教育部(MOE)獎項。
以下這些獲獎多的學校,自然也是好學校。
SEA、SDA、SAA這些獎項都是什麽?上圖中越靠左邊的獎勵越厲害。
教育部頒布的獎項有三個等級:一級獎勵、二級獎勵、鼓勵獎。
一級獎勵 :學校在至少一年的時間裏,在某一領域取得了成就,包括學校傑出獎(SEA)和學校榮譽獎(SDA)
二級獎勵:學校在特定領域有持續卓越的表現,包括持續成就獎(SAA)、傑出發展獎(ODA)和最佳實踐獎(BPA)
三級獎勵:表彰學校在建立優秀學校和獲取優秀成績方面所做的整體努力,包括成就獎(AA)和發展獎(DA) 另外,新加坡各區獲5個獎項以上的小學都有這些(括號內爲獲獎數量) 中部地區
Raffles Girls Primary School (7)
Ai Tong School (6)
Catholic High School (6)
CHIJ St. Nicholas Girls’ School (6)
Kong Hwa Primary School (6)
Methodist Girls’ School (6)
Tao Nan School (6)
Hong Wen School (6)
Henry Park Primary School (5)
Maris Stella High School (5)
Singapore Chinese Girls’ Primary School (5)
Anglo-Chinese School (Primary) (5)
Haig Girls’ School (5)
Fairfield Methodist School (5)
River Valley Primary School (5)
CHIJ Kellock (5)
北部地區
Chongfu School (5)
Canberra Primary School (5)
Northland Primary School (5)
東北部地區
Rosyth School (6)
Paya Lebar Methodist Girls’ School (5)
東部地區
St. Hilda’s Primary School (7)
Pasir Ris Primary School (7)
Tampines Primary School (6)
Temasek Primary School (5)
西部地區
Rulang Primary School (7)
Keming Primary School (5)
Nan Hua Primary School (5)
如何查家附近的小學?
新加坡小學采用就近入學,學區房的重要性不用多說了,新加坡學區房的定義是在一公裏內是否有名校。
如何查你家或者某地一共內是否有名校?可以使用Onemap地圖www.onemap.sg
就算家裏沒有適齡兒童,在買房時候也應該關注1公裏內有沒有名校。
單純以投資來考量,帶有學區房性質的房屋保值的能力與增值潛力也是不言而喻。
今天就有一個超棒的學區房推薦!一公裏內有【培華長老會小學】Pei Hwa Presbyterian Primary School。以搶手程度來看,絕對是名列前茅。
福瑞軒
福瑞軒,稀缺的大面積永久地契項目,名校培華長老會小學一公裏內!
項目要點
1. 靠近知名學校,培華長老會小學在1公裏內
2. 地處優越的武吉知馬上段私人住宅區、美世界一帶
3. 稀缺的大面積地塊永久地契項目,多達33457平方米
4. 政府規劃大轉型美世界這一帶,勢必帶動這一帶房産價值
5. 著名發展商青建地産聘請大牌建築設計公司P&T Consultant
6. 靠近自然保護區:武吉知馬自然保護區、武吉巴督公園等
7. 低密度、低容積率私人住宅小區,隱私性好
8. 駕車人士可以通過PIE或AYE高速前往全島各地
項目概況
項目名字 福瑞軒 Forett at Bukit Timah
發展商 青建置地和鵬瑞利置地
地契 永久地契(稀缺)
項目地址 道德路,美世界地鐵站一帶
占地面積 約33,457平方米
建築設計公司 P&T Consultant
項目總單位/樓層 總共633個單位,九棟5層和四棟9層高樓,2間店鋪 戶型 1臥室到豪華5臥室
交房時間 待定
參考價格:
1臥室價格8xxk,價格80多萬起
2臥室價格10x萬起(X表示任何可能數字)
3臥室價格17X萬起(X表示任何可能數字)
附注:以上爲參考價格,具體價格以發展商開盤公布價格爲准
重要更新: 樣板房這周六開盤(7月25號)正式開放,由于疫情樣板房需要控制看房人數,需要提前預約時間哦,有興趣看房朋友添加文章微信(掃描二維碼)
視頻介紹: 地理位置介紹 福瑞軒靠近市區美世界地鐵站,約8分鍾步行到地鐵站,該項目靠近綠樹成蔭、生機勃勃的武吉知馬自然保護區、毗鄰美世界社區和興建中的鐵路走廊。
自然綠意、社區活動和曆史意義的鐵路走廊完美結合,構成它的獨特性格魅力,將進一步提高美世界這一帶的魅力。駕車10分鍾可前往新加坡植物園,靠近美食街張振南路(Cheong Chin Nam Road),可以約家人或好朋友一起去那裏享受特色美食。
優質學區房 1公裏範圍內有培華長老會小學和武吉知馬小學,2公裏範圍內有美以美女子中學(附小)。
福瑞軒靠近武吉知馬路,附近有知名學校包括排名第二的初級學院華僑中學(相當于國內高中)、國家初級學院,義安理工學院、新躍社科大學。
對于外派到新加坡工作的家長們或有興趣送小孩讀國際學校的家長們,這一帶的國家學校有瑞士國際學校、荷蘭國際學院、韓國國際學校和采士華國際學校等。
政府規劃和轉型美世界 政府規劃轉型美世界這一帶,勢必給這一帶注入新的活力,市區重建局URA在2020年6月宣布以雙信封的形式招標大地塊。
預計打造一個集商場、巴士總站、地鐵站、住宅爲一體的大型綜合項目,有多達20000平方米的大型商場。
商場預計會有大型超市、餐館、銀行分行、補習中心等,將進一步提升美世界一帶的交通和生活便利性,勢必帶動周邊的房産增值。
政府計劃建武吉知馬民衆俱樂部、包括巴刹、熟食中心、室內體育館、社區圖書館、樂齡人士活動中心,能滿足您的日常生活需要。政府將進一步完善周邊公園連接道和綠色走廊,讓喜歡戶外運動的朋友們享受大自然樂趣。
根據2019年政府發展總藍圖,當局會保留武吉知馬消防局,重新打造訪客中心,爲有意探索武吉知馬綠化景點、參與森林徒步、探險活動的訪客提供信息服務。
規劃2021年開始建設的武吉知馬-梧槽綠色走廊,將會連結裕廊花園、新加坡植物園、濱海灣花園,總長達11公裏,這將給自行車愛好者和散步愛好者提供新的選擇。
多樣化公寓配套設施 如果您是遊泳運動愛好者,那您就來對項目了,有多達五個遊泳池供您選擇,也可與孩子們一起在兒童遊泳池水中嬉戲玩樂
多達五個遊泳池:一個無邊遊泳池、兩個30米遊泳池、一個50米遊泳池
四個不同主題亭子:喝茶亭、休閑亭、聚餐亭、燒烤亭,滿足您休閑和小聚會需求。
七個不同主題草坪:陽光草坪,夏日草坪,野餐草坪,燒烤草坪,閱讀草坪, 瑜伽草坪,植物園草坪
一個網球場,四個多功能會所,一個兒童玩耍區,一個健身房,一個室外健身角,兩個蒸汽房,卡拉OK室、聚會休息室、放映廳等。讓您與家人和至愛一起在卡拉OK室齊聚高歌,或是來看一場電影,共享溫馨時刻,您也可以在聚會休息室和朋友一起放松閑聊,度過輕松愉快的夜晚。
第34棟的屋頂有空中庭院、空中休息區、鐵板燒烤區等
戶型圖和參考價格 1+書房,面積爲44平方米,高效率戶型
2房1衛,面積爲53平方米,高效率的啞鈴戶型(節省走廊)
2+書房,面積爲67平方米,高效的啞鈴戶型(節省走廊),帶窗口的封閉式廚房,通風性好
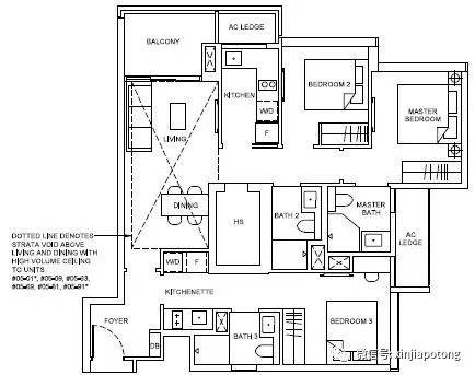
3房,面積爲91平方米,帶窗口的封閉式廚房,通風性好,全景大玻璃保證廚房采光好,防空壕HS可以當儲藏室或者保姆房用
3房雙鑰匙,面積爲96平方米,帶窗口的封閉式廚房,通風性好,單身套房可以給父母一起住或者投資出租用,防空壕HS可以當儲藏室或者保姆房
3房,面積爲98平方米,帶窗口的封閉式廚房,通風性好,防空壕HS可以當儲藏室或者保姆房
4房豪華型,面積爲119平方米,帶窗口的封閉式廚房,大客廳和餐廳分區,主臥帶獨立衣帽間,第2個房間可以直接通大陽台
4房豪華型,面積爲134平方米,大客廳和餐廳分區,主臥帶獨立衣帽間,第2個房間可以直接通大陽台,享受雙泳池景觀(30米和50米遊泳池)
5房豪華型,面積爲175平方米,私人電梯直接入戶,大客廳和餐廳分區,超大主臥帶獨立衣帽間,第2個房間可以直接通大陽台,享受雙景觀(花園和50米遊泳池)














