Menu
快讀
  • 旅遊
  • 生活
    • 美食
    • 寵物
    • 養生
    • 親子
  • 娛樂
    • 動漫
  • 時尚
  • 社會
  • 探索
  • 故事
  • 科技
  • 軍事
  • 国际
快讀

蘿蔔點評 | 120萬新幣可以拿下的三室一廳新公寓合輯,2021最新版~

2021 年 5 月 4 日 笑看红尘2017

640?wx_fmt=gif

萬事通說

120萬新幣可以拿下的三室一廳新公寓合輯,2021最新版~
640?wx_fmt=png

大家好!今天這篇文章裏,蘿蔔會集中整理一批120萬新幣可以拿下的三室一廳公寓新盤。

這個價位可以說是目前市場上新三臥的最優價位了,最近有購房需求的家庭可以重點關注一下。

2021新加坡樓市,120萬可以拿下的三室一廳新盤,看這篇就夠了~

640?wx_fmt=jpegTreasure at Tampines(聚寶園)

樓盤簡介

地契

99年

預計完工

2024年

樓盤總面積

6萬平米

總單位數

2203套住宅

周邊環境

第18郵區,淡濱尼區

樓盤關鍵詞

占地廣闊的霸極公寓項目

Treasure at Tampines樓盤,位于新加坡東部:淡濱尼區域內。

640?wx_fmt=png

Treasure at Tampines是本地有史以來最大型的公寓樓盤項目之一,占地達6萬平米,設計興建超過2200個公寓單位,是當之無愧的霸級項目。

640?wx_fmt=png

樓盤的具體地點位于淡濱尼11街,距離最近的四美地鐵站 (Simei) 約600米,步行即可到達。

東部交通樞紐:淡濱尼地鐵轉換站(Tampines),距離樓盤約1.3公裏,公寓提供免費往返班車。

本地最富盛名、也是最難進的國際學校:聯合世界書院(UWC)東部校園, 距離Treasure at Tampines不到3公裏,短短數分鍾車程即可到達。

640?wx_fmt=png

Treasure at Tampines 樓盤設計興建29棟12層高的住宅樓建築,總共2203個公寓單位,基本是南北朝向,預計于2023年底前建成。

占地6.5公頃的廣闊小區內,將會建造多達128種豐富多彩的親家庭公寓設施。

足不出戶,盡情享受精彩生活。

640?wx_fmt=png

640?wx_fmt=png

640?wx_fmt=png

640?wx_fmt=png

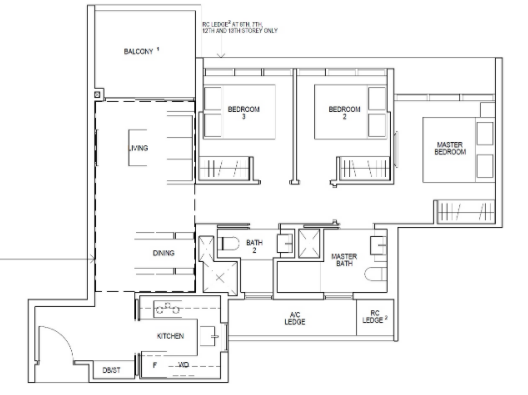
Treasure at Tampines的三臥兩衛戶型,南北朝向,面積85平米(915平方尺),發展商定價123萬5千新幣起售。

640?wx_fmt=png

超大型樓盤特有的福利來了。

上圖的三臥戶型,每個月的物管費預計不到200新幣。

640?wx_fmt=jpegThe Jovell

樓盤簡介

地契

99年

預計完工

2022年2月

樓盤總面積

2萬2千平米

總單位數

428套住宅

周邊環境

第17郵區,巴西立區

樓盤關鍵詞

大型度假村式公寓項目

全島最優價位

The Jovell 樓盤,位于新加坡東部:巴西立區的Flora通道私宅地段 。

640?wx_fmt=png

巴西立地區,是東部的休閑娛樂中心。這裏擁有衆多的親家庭公衆休閑設施,包括白沙公園,樂怡度假村,多個購物中心,大型水上樂園等等。

The Jovell 公寓, 距離淡濱尼東地鐵站1.3公裏,距離淡濱尼地鐵站和大型購物中心3公裏,數分鍾車程即可到達。

新加坡科技設計大學(SUTD)的校園,距離The Jovell公寓僅2.5公裏,5分鍾車程到達。

樟宜機場和樟宜商業園區近在咫尺。

640?wx_fmt=png

The Jovell屬于低密度的大型公寓項目,設計興建9棟8層高的小高層建築。

小區面積廣闊,設計容納了衆多的親家庭設施,水中小島,繩橋,瀑布,模擬海灘,等等,有很多獨特的設計。

2700平米的巨大戲水池,令人印象深刻。

640?wx_fmt=png

640?wx_fmt=png

640?wx_fmt=png

640?wx_fmt=png

The Jovell的三室一廳兩衛戶型,面積904平方尺(84平米),南北朝向,客廳陽台。

發展商定價109萬7千新幣起售。

640?wx_fmt=png

優質三臥+工人房+Yard戶型,面積1033平方尺(96平米),客廳主臥雙陽台。

發展商定價128萬2800新幣起售。

640?wx_fmt=png

640?wx_fmt=jpegRiverfront Residences

樓盤簡介

地契

99年

預計完工

2022年第四季度

樓盤總面積

3萬6千平米

總單位數

1472套住宅,6間商鋪

周邊環境

第19郵區,後港區。

靠近後港地鐵站和商場

樓盤關鍵詞

超大型河景公寓項目

學區房

Riverfront Residences 樓盤,位于新加坡東北部的實龍崗河畔。

200米美麗河景盡收眼底,享受傍水自然生活。

640?wx_fmt=png

Riverfront Residences距離後港地鐵站約780米,後港商場約680米。步行15分鍾可達,開車只需要3分鍾車程。小區提供免費班車往返地鐵站。

新加坡中部最大的購物中心:NEX Mall,距離公寓不到5公裏,數分鍾車程即可到達。

本地SAP學校之一的聖嬰小學,在住家一公裏範圍。

640?wx_fmt=png

Riverfront Residences屬于超大型公寓,占地廣闊,公寓設施超過100種。

75米長的大型泳池, 400米慢跑小徑,網球場,衆多的兒童探險遊樂設施,休閑娛樂設施應有盡有。

小區內設置6間商鋪店面,滿足居民家庭的日常供應需求。

640?wx_fmt=png

640?wx_fmt=png

640?wx_fmt=png

經典三臥兩衛戶型,面積915平方尺(85平米),客廳陽台。

發展商定價121萬8千新幣起售。

640?wx_fmt=png

640?wx_fmt=jpegAffinity at Serangoon

樓盤簡介

地契

99年

預計完工

2024年

樓盤總面積

2萬7千平米

總單位數

1052套住宅, 5間商鋪

周邊環境

第19郵區,實龍崗區。

毗鄰實龍崗北地鐵站。

樂賽小學一公裏。

樓盤關鍵詞

超大型公寓項目

地鐵+學區房

Affinity at Serangoon樓盤,位于新加坡東北部:實龍崗區的私宅地段。

640?wx_fmt=png

興建中的跨島地鐵線:實龍崗北站,距離公寓約480米,5分鍾步行即可到達。

新加坡頂尖名校:樂賽小學(Rosyth School),在公寓一公裏範圍內。

東北線的高文地鐵站和心鄰坊商場,距離公寓約1.4公裏。

周邊屬于成熟市鎮區,商鋪林立,美食衆多。

640?wx_fmt=png

Affinity at Serangoon屬于超大型公寓,總共將興建7棟14層的小高樓,以及5間商鋪。

公寓擁有50米泳池,網球場,水中健身,天際花園等88種精彩設施。

小區內的5間商鋪店面,足夠支持居民家庭的日常供應需求。

640?wx_fmt=png

640?wx_fmt=png

640?wx_fmt=png

640?wx_fmt=png

Affinity at Serangoon的經典三室一廳兩臥戶型,面積861平方尺(80平米),一樓單位,戶外小庭院。

發展商定價128萬8千新幣起售。

640?wx_fmt=png

面積更大一些的三臥兩衛戶型,面積904平方尺(84平米)。發展商定價132萬新幣起售。

今天的文章就寫到這裏,列總了目前市場上四個120萬新幣上下的價位可以拿下的新公寓樓盤,位置分布如下:

東部樓盤:

  • Treasure At Tampines: (占地廣闊的霸極公寓)
    • 三臥售價123萬5千新幣起
  • The Jovell : (大型度假村式公寓)
    • 三臥售價109萬7千新幣起

東北部樓盤:

  • Riverfront Residences: (大型河景公寓)
    • 三臥售價121萬8千新幣起

  • Affinity at Serangoon :(地鐵學區公寓)
    • 三臥售價128萬8千新幣起

有興趣的讀者可以進一步微信咨詢蘿蔔。我們下期見!

640?wx_fmt=png

新加坡萬事通房産專欄作者彭威 – 您的新加坡房産小管家

我來自美麗的江蘇。1996年來到新加坡,畢業于南洋理工大學。2009年,從事房産經理人。現任新加坡最大房産中介公司之一的Huttons的市場部董事(CEA 注冊號:R042525J)。 從業11年來,每每爲客戶找到稱心如意的房子總是由衷的開心。國內客戶常見問題,我都會爲您一一解答。初到新加坡,生活上的各種小問題,我也會盡力協助。希望我的客戶多,朋友更多。

個人微信號:

640?wx_fmt=jpeg

(長按掃描二維碼,添加爲微信好友)

地産· 精選

點擊以下【關鍵字】查看往期精彩內容 

  • 2020年度上半年樓市銷量榜火熱出爐~

  • 新加坡城市中心的桃花源,這一地標豪宅火啦~

  • 蘿蔔點評 | 占地6萬平米!霸級新盤Normanton Park推出市場!92萬新幣起售~

  • 蘿蔔點評 | 最高直降$40萬、坐擁新加坡名校區、永久地契,罕見大型公寓促銷火爆來襲~

640?wx_fmt=png

640?wx_fmt=gif
640?wx_fmt=png

1 新元 =4.8645 人民幣1 人民幣 =0.2055 新幣
(*截稿前更新)
加個“星標”,不錯過新加坡萬事通更新!☟640?wx_fmt=gif640?wx_fmt=jpeg

相關文章:

  • 收藏!2021最新版!新加坡個人所得稅減免申報攻略!手把手教你報稅
  • 新加坡簡介(2021最新版)
  • 蘿蔔點評|新加坡那些遭瘋搶的豪宅~
  • 蘿蔔點評|碧山區大型地鐵學區公寓樓盤,三臥138萬新幣起售!
  • 蘿蔔點評| 新加坡第8條地鐵線位置敲定,快來看新站建在誰家門口
  • 蘿蔔點評| 女皇鎮公寓新盤,5分鍾步行至地鐵商場,三臥138萬起
時尚

發佈留言 取消回覆

發佈留言必須填寫的電子郵件地址不會公開。 必填欄位標示為 *

©2026 快讀 | 服務協議 | DMCA | 聯繫我們