新加坡一直對富有的中國人、印度尼西亞人和馬來西亞人有迷之吸引力。
彭博社前兩天出了一篇報道,是這樣描述有錢人在新加坡的快樂生活
(劇照:《摘金奇緣/crazy rich asian》)
“他們會來進行旅行,購物、在賭場玩、享受頂級醫療。
私人醫院伊麗莎白醫院離烏節的名牌店只有幾步之遙,醫院大廳裏甚至有一個大華銀行的特權銀行中心。
但新冠疫情改變了這一切,促使許多富豪和他們的家人在新加坡停留了好幾個月。
畢竟隔壁馬來西亞和印尼的新冠死亡率比新加坡高10倍和30倍以上……”
《超級富豪把新加坡視爲避風港》
(圖源:彭博社)
這篇文章很好的地解釋了爲什麽富豪喜歡新加坡,在疫情中更是如此。
根據外媒報道,2019年底以來,新加坡的單一家族辦公室數量增加了一倍,達到約400家!
文章形容:
“富豪齊聚新加坡讓私人高爾夫俱樂部會員資格需求飙升,甚至在收緊防疫措施之前,米其林星級餐廳都被擠爆了…… 房地産價格創下了2018年以來的最大漲幅。”
外媒也發現了亮點:
最近新加坡疫情有所反複,但是竟然絲毫沒有影響到樓市。
新加坡樓市完全不受疫情影響,從地價和房價都能看出來。
房價方面,新加坡的非有地私宅(通常指公寓)轉售價已經連續六個月上升了,4月份還漲了0.2%。
地價繼續上漲,看到最近發展商標地的價格,15家發展商搶地,宏茂橋一帶地價尺價$1118,預計開盤價得賣1900-2000/英尺起!
看得出發展商對未來是充滿信心的~
今天要給大家介紹一個位于荷蘭村高檔住宅區的稀缺大型永久地契公寓。
還是南洋小學學區房,目前有促銷活動!
部分單位可享受11+2%的優惠 額外高達10.2萬新幣的優惠
如果你既追求投資回報,又對生活品質有著高要求,還考慮到子女的教育和未來的買家,就很合適你 綠墩雅苑
地處第10郵區,尊貴地址Leedon Height
稀缺的永久地契項目,而且是超大占地面積的
靠近優質洋房GCB住宅區,新加坡最高等級的別墅
馬路對面就是新加坡植物園,還有鄧普西山的美食休閑區
有2棟在新加坡排名首位的南洋小學一公裏內
名校華僑中學、萊福士女子小學、南洋女子中學、國家初級學院離項目不遠
采用頂級家用電器,如進口大理石地板、衛浴采用德國的Axor、廚房采用瑞士的VZUG
01 地理位置極其優越
地處中央核心區第10郵區,毗鄰新加坡植物園、鄧普西山美食休閑區、荷蘭村,駕車只需5-15分鍾就可以到達烏節路、中央商業區,坐擁名校南洋小學和萊福士女子小學等頂尖學校的教學資源。距離新加坡版硅谷-緯壹科技城(Biopolis)和啓彙園(Fusionpolis)咫尺之遙,潛在租客來自這些生物制藥研發科技公司。
綠墩雅苑由7座獨立的住宅樓組成,共有638套1臥室到四臥室。設計師利用占地面積大的優勢,巧妙的利用寬闊的戶外空間,讓您在小區裏就可以有大自然親密接觸,給您帶來平和安甯的享受,仿佛置身于度假屋般悠閑愉悅。
02 稀缺的永久地契和大面積地塊
新加坡的住宅類房屋地契分99年、999年、永久地契,主要是以99年地契爲主,政府售地只給最多99年地契,所以永久地契絕對屬于稀缺的産品,可以世世代代傳承給您的下一代子孫們。房産恒久遠,代代永流傳,許多人或許都有“一屋代代住”的想法,既盼屋子生財,更求屋子旺子旺孫,代代相傳下去。
綠墩雅苑占地面積高達316718平方英尺,接近5個足球場的大小,在新加坡屬于難得的永久地契大型地塊,大面積意味著園林設計師有更大的空間安排小區綠化公寓配套設施,買公寓不止是房子本身,完善的配套設施絕對給房子加分,該項目的配套設計極爲完善,多達33項配套設施,
03 第10郵區向來是高檔私宅買家青睐的地區
荷蘭村,武吉知馬-富人聚集區所在地,周圍以新加坡最高等級的別墅-優質洋房爲主(GCB),環境清幽,低密度住宅區,喜歡注重隱私的朋友們最愛的地點之一,靠近世界文化遺産-新加坡植物園和鄧普西山Dempsey Hill,距離烏節路購物街只需約5分鍾車程,到中央商業區CBD、濱海灣約15分鍾車程。
世界文化遺産-新加坡植物園的漂亮照片分享
可以稱作爲名副其實的明星地段,很多名人選擇定居這一帶,比如功夫巨星李連傑早就在武吉知馬買了優質洋房、新加坡國寶級歌手孫燕姿、全球知名的投資大師羅傑斯(已經移民定居新加坡)、愛馬仕一姐蔡欣穎、房地産大亨、知名企業家和藝人等都選擇買這一帶優質洋房定居于這一帶,到底這一帶爲什麽這麽有吸引力呢?周圍環境清幽、靠近排名靠前的小學、中學、初級學院是其中原因。
04 荷蘭村風情街轉型中,升值潛力大
廣受本地和外籍人士歡迎的荷蘭村,未來將出現集電影院和超級市場于一身的綜合發展項目。
上世紀三四十年代,荷蘭村是英軍及其眷屬居住與活動的地方。現在的荷蘭村逐漸變身爲本地人探索異國美食,享受歐陸風情的好去處。
這裏的排屋、餐廳、酒吧都透露著濃濃的小資風情。
在新的規劃之下,未來的荷蘭村將會是新商場和老店屋無縫銜接,讓荷蘭村更充滿活力。
05 周圍名校雲集
靠近小學排名數一數二的南洋小學、萊福士女子小學、聖瑪格列中學、南洋女子中學、華僑中學、國家初級學院等,國際學校如英華國際學校ACS International、華中國際學校都在綠墩雅苑附近,一條龍式解決您小孩教育這塊的需求。
06 智能家居走進您生活
發展商配置智能家居系統,每戶單位配置智能電子鎖,如智能空調控制系統,提高電量使用效率,可以通過視頻和來訪訪客溝通,可以通過應用程序預定公寓配套設施,智能包裹解鎖,大戶型單位配置智能鏡子,除了當鏡子用之外,可以變爲一個數字觸摸屏幕,可以觀看您想看視頻、浏覽想看的網頁等等。
07 仁恒置地和香港置地強強聯手
仁恒置地專注于高檔住宅項目開發26年,在中國16個高增長城市建立開發高端住宅、商業、辦公樓及綜合項目,主要在上海、深圳、天津、成都、武漢、蘇州、杭州、海口、濟南、三亞等城市,香港置地MCL Land作爲世界500強的百年企業,深耕房地産行業多年,在新加坡已經開發多個大型公寓項目
08 漂亮小區圖片大放送,供您欣賞!
風景如畫,令人陶醉,綠化經過精心打造,呈現一幅心曠神怡的景象。
入口大廳處精巧的一線禅設計與水流的平衡統一,給來賓營造甯靜祥和的氣氛。
雅致的社交場所,可會友,可交際。甯靜的氛圍加上秀美風景,歡迎親朋好友到來。
獨一無二的大餐廳將家庭娛樂提高到全新的高度,從前廳到住宅,住戶足之所至,無不精心設計,以追求完美。
闡釋空間,定制生活。
布局巧妙周到。
附注:以上部分文字介紹和圖片引自發展商中文介紹
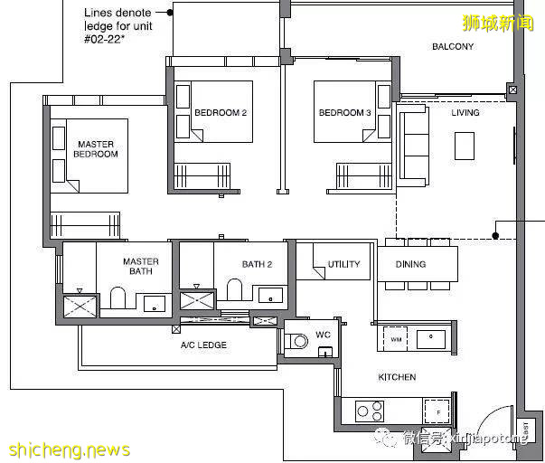
09 戶型圖和參考價格
一臥室,實用面積爲44平方米,價格131.1萬新幣起,現在促銷價122.8萬新幣起
一臥室+書房,實用面積爲50平方米,價格149萬新幣起,現在促銷價139.9萬新幣起
兩臥室一衛,實用面積爲57平方米,價格168.3萬新幣起,現在促銷價164.5萬新幣起
兩臥室兩衛,實用面積爲66平方米,帶封閉式廚房,價格179.7萬新幣起,現在促銷價169.9萬新幣起
兩臥室+書房,實用面積爲76平方米,可封閉式廚房,價格210.2萬新幣起,現在促銷價206.4萬新幣起
三臥室入門款,實用面積爲89平方米,帶封閉式廚房,價格245.9萬新幣起,現在促銷價229.3新幣起
三臥室優質型,實用面積爲97平方米,帶封閉式廚房,價格277.1萬新幣起,促銷價格270.3萬新幣起
三臥室豪華型,實用面積爲126平方米,幹濕雙廚房,私人電梯入戶,價格356.5萬新幣起,現在促銷價349.7新幣起
四臥室豪華型,實用面積爲139平方米,幹濕雙廚房,私人電梯入戶,價格384.1萬新幣起,現在促銷價373.3新幣起










































