Menu
快讀
  • 旅遊
  • 生活
    • 美食
    • 寵物
    • 養生
    • 親子
  • 娛樂
    • 動漫
  • 時尚
  • 社會
  • 探索
  • 故事
  • 科技
  • 軍事
  • 国际
快讀

【學區房系列】新加坡如何選學區房,性價比高的公寓 錦泰門第 Parc Clementis 南華學區

2021 年 7 月 25 日 多心一用

01

新加坡如何選擇學區房?

什麽是學區房?

學區房在新加坡指的是一公裏內擁有名牌小學的樓盤。擁有特別好進的名校在1-2公裏內樓盤也算學區房。

新加坡的名校主要集中在哪裏呢?

家長心目中的學區房,不僅是在名牌小學一公裏內,周邊還有很多備選的鄰裏小學。同時上中學也不要太遠。要滿足以上的需求,必須看新加坡學校的大數據分布圖。

圖中統計了32所排名靠前的小學以及31所排名靠前的中學,標出的紅圈內有22間小學,以及23所中學,是名符其實的名校地帶。

名校地帶位于新加坡的西南部的金文泰,武吉知馬,以及中部和市區。選擇名校地帶是家長們一勞永逸的選擇,既有名校又有備選,將來上中學也不會離家太遠。

從圖中可以看出,也有一部分名校分布在新加坡的東部,北部等地區,但數量非常少,從備選學校和以後上中學來說都比較困難。

640?wx_fmt=png

挑選學區房時除位置之外還要注意的要素:

1. 身份(公民,綠卡,還是外國人 )
2. 年齡(報名的年限和期房的交房必須可以配合)
3. 校友,義工等等之前的努力。

對以上因素有困惑不知如何准備的,可以直接加我們咨詢。

640?wx_fmt=jpeg

LIFE IS LIKE 

A JOURNEY  ▲

今天就讓我們開始名校學區房的選擇之旅,先從性價比較高的金文泰樓盤開始:

錦泰門第

Parc Clementis 

02

錦泰門第的項目視頻

 便利的周邊環境

Play

 大型社區 超美園景

Play

 多種戶型選擇

Play

03

項目詳情

Parc Clematis 錦泰門第

發展商:        SINGHAIYI 新海逸

項目地址:   2-20 Jalan Lempeng(步行10分鍾內金文泰地鐵站)

産權:            99年

預計交房:       2023年第三季

一公裏內小學:

南華小學(Nan Hua Primary)

培童小學 (Pei Tong Primary)

啓發小學 (QIFA Primary)

金文泰小學(CLEMENTI Primary)

錦泰門第 Parc Clematis 

640?wx_fmt=jpeg

01

項目信息

 名稱:  Parc  Clematis 錦泰門第 

 開發:  SINGHAIYI 新海逸集團

 地址:  2-20 Jalan Lempeng

 地契:  99年

 設計:  The P&T Group

 面積:  58,866平方米

 落成:  2023年第三季

 規模:1450間住宅,8間排屋,4間角頭排屋,6間獨立式洋房

錦泰門第是新海逸集團在金文泰開發的首個新加坡“共同生活空間”的概念公寓項目。

這個99年地契的公寓項目位于新加坡金文泰地段的惹蘭侖平(Jalan Lempeng)沿線。公寓一共提供住宅數量爲1468個,戶型從452平方英尺的一居室到2669平方英尺的五居室頂樓公寓不等。除了普通的公寓住宅,這次新海逸集團還在項目中發展了半獨立式和獨立式的洋房,面積從2659平方英尺至3832平方英尺不等。    

02

地理位置

640?wx_fmt=jpeg

Parc Clematis 位于第5郵區,由之前的Park West公寓集體收購而來。位于成熟社區金文泰,10分鍾內可步行去金文泰地鐵站。乘搭綠線9站到達目前的金融中心萊佛士,僅1站到達未來的金融中心裕廊東。

戰略性的位于裕廊創新區(Jurong Lake District)即第二金融中心以及維壹科技城(One north)的中心位置。

640?wx_fmt=jpeg

金文泰是集成的交通中心,不僅擁有地鐵站,也有巴士總站。從公寓開去高速路AYE, ECP, PIE和CTE也是很快。

640?wx_fmt=jpeg

金文泰也是西部重要的醫療樞紐,國大醫院,黃廷芳綜合醫院都在附近。

03

商城及周邊

640?wx_fmt=jpeg

金文泰是成熟社區,地鐵站附近非常多的商城,比較有名的有 Clemnti Mall,City Vibe,321Clementi,著名的金文泰448食閣和濕巴沙等

坐地鐵一站到裕廊東地鐵,擁有更多的商城:Westgate,JEM,JCube和IMM等。

04

周邊名校

640?wx_fmt=jpeg


一公裏以內的小學

 

集合了頂尖曆史名校: 南華小學(Nan Hua Primary School)與鄰裏名校: 啓發小學(QIFA Primary School)、錦明小學(Clementi Primary School)、培童小學(Pei Tong Primary School)。

無論新移民、公民子女、PR子女,落戶在這裏,都有優質的小學可供選擇。

640?wx_fmt=jpeg

周邊知名學府 

南華中學(Nan Hua High School)、國立中學(NUS High School)、義安理工(Ngee Ann Polytechnic)、新加坡理工(Singapore Polytecnic)等。

高級學府更有國立大學和南洋大學。

1公裏內小學

南華小學(Nan Hua Primary School)                0.36 km 

錦明小學(Clementi Primary School )               0.45 km 

啓發小學(Qifa Primary School)                        0.50 km 

培童小學(Pei Tong Primary School)                 0.94 km

2公裏內中學及國際學校

日本人學校中學部(Japanese Secondary School)  0.66 km 

東陵中學(Tanglin Secondary School )             0.74 km 

南華高中(Nan Hua High School )                    1.41 km 

立才中學(Commonwealth Secondary School) 1.53 km 

國立中學(Nus High School Of Mathematics And Science) 

1.60 km 

國大科技學院(School Of Science And Technology) 1.69 km 

新鎮中學(New Town Secondary School)          1.79 km 

肯特中學(Kent Ridge Secondary School)         1.83 km

萊仕國際學校(Nexus International School Singapore) 1.87 km

05

戶型及價格

640?wx_fmt=png

一臥加書房 全部賣完  !

640?wx_fmt=png

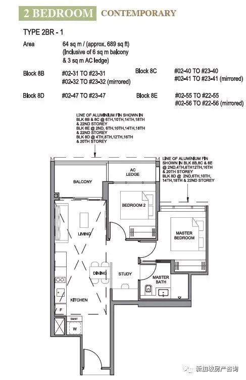
兩房一衛  實用面積(64平方米)價位122萬起

640?wx_fmt=jpeg
640?wx_fmt=png

三房雙鑰匙 實用面積(92平方米)價位157萬起  

640?wx_fmt=jpeg
640?wx_fmt=png

三房Premium (Signature 系列) 實用面積(116平方米)價位208萬起  

640?wx_fmt=jpeg
640?wx_fmt=png
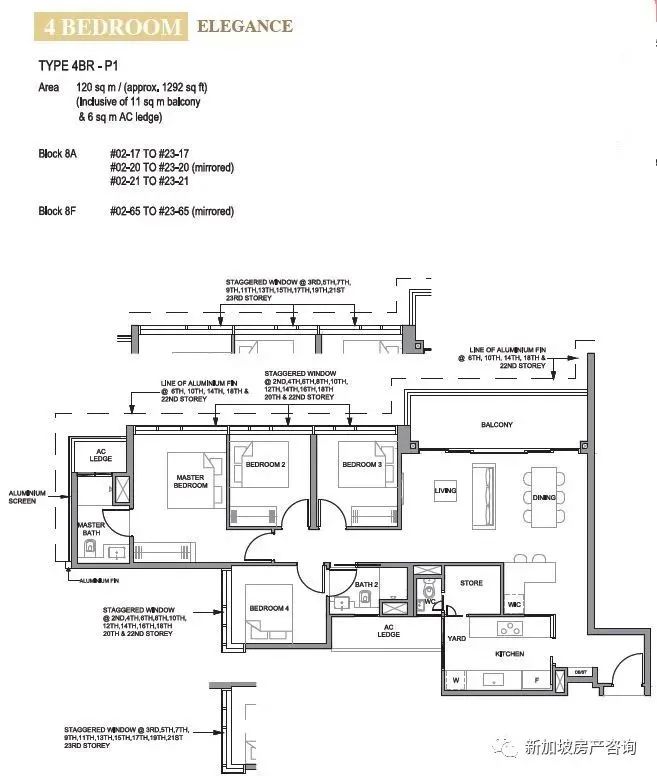
四房 實用面積(115-139平方米)價位207萬起
640?wx_fmt=jpeg
640?wx_fmt=png
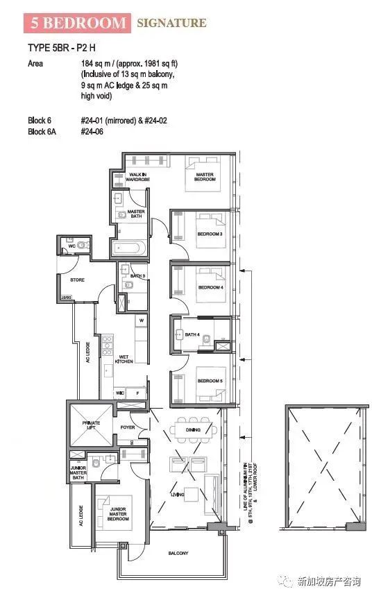
五房 實用面積(159-184平方米)價位266萬起
640?wx_fmt=jpeg

06

美圖欣賞

640?wx_fmt=jpeg640?wx_fmt=jpeg640?wx_fmt=jpeg640?wx_fmt=jpeg640?wx_fmt=jpeg640?wx_fmt=jpeg

04

高端系列 & 最新促銷

目前剩下的戶型最小的是兩房,接下來就是三房雙鑰匙3DK,四房和五房,需要特別關注的是這個公寓特有的Signature 系列, 全部是帶有私人電梯,地板用大理石,並且是一層兩梯四戶,大部分單位擁有無敵風景。可以說是整個項目的最高端系列,非常值得擁有,大家可以參考以下視頻。

 Signature 系列

Play

目前的三房以上戶型都有促銷3-6萬的促銷,非常劃算。

640?wx_fmt=jpeg640?wx_fmt=png

●熱門樓盤精選 ●

01

現房系列

【即刻入住+延遲付款】現房集錦系列一  

現房集錦-烏節路篇  #超豪宅

【烏節路現房】 名築 Nouvel 18 促銷!折扣高達28%!#超豪宅

【豪宅促銷】水晶閣 The Lumos,烏節路核心地段永久地契,高達30%折扣,尺價僅2300!#輕奢豪宅

【華麗世家 Wallich Residences】 金融區核心地帶,新加坡最高樓,海景現房  #輕奢豪宅

新加坡這個超黃金地段,據說有99.9%的人都想住在這裏!#輕奢豪宅

【烏節路現房】 聖多馬士8號 8St Thomas 促銷!折扣高達36萬!項目實景視頻!#輕奢豪宅

【新加坡中央區的奢華項目】The Crest,名家設計,地標建築,5%首付即可入住 #輕奢豪宅

【Corals at Keppel bay】吉寶灣麗珊景 位于聖陶沙的公寓,享受奢華濱海生活#輕奢豪宅

02

期房系列

熱門地段

烏節路

【鉑瑞雅居 Boulevard 88】 烏節路商圈一顆璀璨的明珠,永久産權,代代相傳  #超豪宅

【熱賣豪宅】The Avenir · 未來 市中心永久地契奢華大盤,立化小學學區#輕奢豪宅

【RIVIÈRE 瑞雅嘉苑】, 新加坡河畔擁有保留建築的地標性公寓,步行去大世界地鐵站,立化小學一公裏!#輕奢豪宅

【HAUS on Handy】位于市中心烏節路總統府附近,步行兩分鍾到多美歌地鐵,擁有保留建築 #輕奢豪宅

武吉知馬

盤點新加坡最優質的學區房,連富豪名人都爭相搬進來~ #輕奢豪宅

【禦景苑RoyalGreen】武吉知馬別墅區永久産權公寓,名校學區 

#輕奢豪宅

【Fourth Avenue Residences (富雅軒)】第十區武吉知馬核心位置,Six Ave地鐵就在門口 #輕奢豪宅

荷蘭村

【Wilshire Residences】, 荷蘭村永久地契公寓,南洋小學學區,萊佛士女小1-2公裏!  #輕奢豪宅

【壹瀾庭One Holland Village】荷蘭村正中心唯一綜合性住宅項目,遠東力作 #輕奢豪宅

2020年新加坡人極致向往的住所,聽說長這樣… #輕奢豪宅

【Van Holland 】荷蘭軒,步行去荷蘭村地鐵站的永久地契項目,優雅精致#輕奢豪宅

【新盤推薦】Hyll on Holland,永久地契山水大盤,步行去荷蘭村地鐵村地鐵站#輕奢豪宅

東海岸

【美雅豪苑 Meyer Mansion 】傳承稀世名宅,坐擁海岸之心 #輕奢豪宅

【Amber Park】,  東海岸大型永久地契海景新公寓, 3分鍾步行到未來丹絨加東地鐵站 #輕奢豪宅

Seaside  Residences, 三分鍾步行到siglap 地鐵站,海景單位 二期隆重開盤 #大型海景樓盤

南部濱海區域

【Avenue South Residences】 首個瀕臨南部瀕水區GSW的項目,位于未來CBD的門戶位置,無限潛力#大型樓盤

【新盤推薦】牛車水超值樓盤The Landmark,14 號開盤,開始預約!#超值樓盤

【新盤促銷】萬寶軒 One Pearl Bank ,市中心地標建築,都市裏的花園,凱德集團代表作! #未來三線交彙

【Kent Ridge Hill Residences】明天開盤!歡迎預約!擁抱大自然,背山面海的景觀公寓,緊鄰國大和西部商圈 #低密度舒適樓盤

綜合樓盤

【綜合項目】桦麗居The Woodleigh Residence, 盡享自然之美,  綜合發展項目之瑰寶

【盛港嘉園Sengkang Grand Residences】位于盛港中心的超級綜合項目

03

學區房系列

【學區房系列】 新加坡政府名校錄取“揭秘”

【學區房系列】 新加坡如何進入“天才班”學校

【學區房系列】 新加坡如何進入“天才班”學校 – 南洋小學

盤點新加坡最優質的學區房,連富豪名人都爭相搬進來~

【Parc Clematis 錦泰門第】 最新促銷!金文泰唯一新盤,南華/啓發學區房,共享社區理念 教育中心,醫療中心

【新盤更新】JadeScape順福軒,近麥裏芝蓄水池的山水景觀大盤,公教小學學區,萊佛士書院

【樂賽學區房】Affinity At Serangoon 大型公寓項目,近Serangoon/NEX

【KOPAR】核心第九郵區最超值的公寓,紐頓地鐵旁,名校英華,聖約瑟小學學區

【Sloane Residences 】Balmoral Road 巴慕樂路中段,擁有曆史記憶的永久産權住宅,名校學區

【Park Colonial】一分鍾步行去兀裏(Woodleigh) 地鐵,斯坦福美國國際學校就在門口!

【新盤更新】Forett at Bukit Timah 福瑞軒武吉知馬大型永久地契公寓,培華學區,享受美世界發展的無限潛力

【MayFair Gardens】武吉知馬別墅區,雙名校學區房,英倫風格建築

【學區房系列】 西部樓盤及學區速查(D05, D21,D23&D24)

【學區房系列】 中央區樓盤及學區速查(D09 ,D10和D11)

【學區房系列】 目前熱門 第21區-武吉知馬上段 學區項目總結

04

超值熱賣

【The M】城市中心,萬象之上,絕佳投資樓盤

【預售分析】 Penrose年度最熱樓盤, 預售情況分析!

【Stirling Residences 尚景苑】映在星空下,浮于塵世上 的甯靜奢華 女皇鎮地鐵的大型項目,樂享無敵都市景觀

【新盤更新】JadeScape順福軒,近麥裏芝蓄水池的山水景觀大盤,公教小學學區,萊佛士書院

【Treasure At  Tampines】步行到四美地鐵站, 靠近成熟社區淡濱尼,2019 最便宜的大型公寓

【新盤推薦】國大金文泰熱門樓盤悅文荟,華業集團力作

相關文章:

  • 你買房,我們幫您出租,新樓盤最低$69.9萬起
  • 學區房系列:綠墩雅苑,名校南洋小學,荷蘭村高檔住宅區,稀缺大型永久地契,促銷活動中
  • 東景苑(Parc Esta)第14郵區 期房
  • 錦泰門第 金文泰大型新盤,南華學區房,銷量佳,這剩下46套,單價平方英尺1753起(5房)
  • 【現房系列】濱海灣核心公寓促銷啦!絕佳的投資機會!
  • 【新盤推薦】新加坡河畔的新地標 引領時代的河濱生活新方式 — Canninghill Piers 康甯河灣
故事

發佈留言 取消回覆

發佈留言必須填寫的電子郵件地址不會公開。 必填欄位標示為 *

©2026 快讀 | 服務協議 | DMCA | 聯繫我們