地處金文泰,西部最成熟住宅市鎮區,距離地鐵站約600米,步行到地鐵站約7-8分鍾,占地面積多達約58867平方米,屬于超大型公寓小區,總共1468個單位,包括1450個公寓住宅、12個聯排別墅、6個獨棟別墅,戶型有1臥室到5臥室供您選擇,還有頂樓複式,1房最小面積42平方米到5房最大面積184平方米(不包括頂樓複式),預計交房時間2024年中。發展商把項目取中文名“錦泰門第”,錦泰同金文泰的諧音,門第就會聯想到書香門第的意思,符合金文泰是新加坡教育重鎮定位。
(早報訊)永泰控股(Wing Tai Holdings)周四(5月26日)早上宣布成功以近2億7390萬元標得位于裕廊的集體出售項目湖畔公寓(Lakeside Apartments),這比保留價高出14%。
傑哥點評:湖畔公寓集體出售成功,地價約每平方英尺1227元,預計開盤價2000-2100元/平方英尺,現在我推薦的錦泰門第$1753-1868/平方英尺,而且金文泰地段比湖畔更好
項目要點:
1.銷量說明一切,在新加坡封城期間居然賣出105套,穩居銷量前三名
2.所有戶型都是朝南、朝北,完美避開朝西戶型
3.家門口就有名校南華小學,9所GEP天才教育計劃小學之一
4.周圍私人住宅區,以公寓、洋房爲主
5.極爲完善的公寓配套設施
6.配備智能家居系統,科技進入生活
2022年中促銷活動中,優惠2-5萬,高達5萬新幣:
錦泰門第線上雲看房連結,複制連結用電腦打開:
模型和設施介紹:
三臥室樣板房 82平方米
三臥室樣板房 100平方米
四臥室樣板房 120平方米
五臥室樣板房 159平方米
周圍商場林立,生活極爲便利
地鐵站有金文泰廣場Clementi Mall,金滿地,321 Clementi,多一站地鐵就可以到達裕廊東,這裏簡直是西部的“烏節路”,大型商場有IMM Mall、Westgate、JEM、JCUBE、Bigbox等,讓您出門購物方便、逛超市買生活必需品、銀行辦事、外出就餐有很多選擇。
教育資源豐富,名副其實的學區房
衆所周知,金文泰是屬于新加坡教育重鎮,著名的南華小學Nan Hua Primary School(9所GEP天才教育計劃小學之一,還有中文特選SAP小學)就在公寓隔壁,所以錦泰門第項目爲妥妥的學區房,金文泰教育資源豐富,這是爲什麽很多家長喜歡買金文泰一帶房子的原因之一,還有啓發小學(Qifa Primary School)、培同小學(PeiTong Primary School)、錦文小學(Clemnti Primary School)等,有多所小學供選擇,對公民和PR家長們是福音,孩子上學有備選方案。中學這塊有國立大學附屬數理中學、南華中學、金文泰中學、英華自主中學Anglo-ChineseSchool(Independent)等。
在國際大學排名很高的新加坡國立大學NUS就在金文泰一帶,還有國際上排名很高的南洋理工大學NTU,新躍大學SIM,新加坡理工學院,義安理工學院,,國際學校有UWCSEA世界聯合學院新加坡Dover校區,據說該校是新加坡排名第一的國際學校,UWC是一所世界一流的國際學校,畢業生爲國際上衆多名牌大學所青睐,還有Anglo Chinese國際學校。小學、中學、理工學院、大學、國際學校全部都有,簡直是一條龍服務,全方位滿足您小孩教育方面的需求。
裕廊商業區和創新區,區域轉型中
裕廊商業區轉型中,作爲新加坡第二個CBD中央商業區,裕廊湖畔公園預計2019年分階段完成,新的國家科學館預計2020年中完工,還有新開發旅遊項目預計2026之前完工。2016年財政預算案中政府計劃在南洋理工大學NTU附近的登加一帶打造全新的裕廊創新區,這個園區將爲先進位造業、機器人、城市方案、潔淨科技和智慧物流等産業提供發展空間,裕廊創新區將成爲超過10萬人“居住、學習、工作、玩樂和創造”的聚集地,南大校園將化爲創新區的一部分。項目東邊的緯壹科技城(靠近One North MRT )的Biopolis和Fushionplois辦公樓,包括科技、生物制藥研發、電信和媒體等公司,各大研究機構和跨國公司在這裏,還有SciencePark科技園區、大學城、新加坡國大醫院等,在這裏上班主要是高收入專業人士爲主,有買房和租房方面的需求。
首個主打“共同生活空間”概念的私宅項目
公寓提供多達60種公寓配套設施,包括一個大型獨家海灘度假村風格約100米遊泳池、3個50米長標准泳池、兒童玩耍泳池、2個網球場、居然有5個會所、燒烤區、健身房、水下健身器材、閱讀主題草坪、野餐主題草坪、眺望星星主題草坪,各種不同主題的花園如雨林花園、社區花園、反射花園、多用途娛樂與遊戲室、主題遊樂場和洗衣間。除了標准的公寓配套設施外,錦泰門第是新加坡首個主打“共同生活空間”(Co-livingSpace)概念的私宅項目,住宅住戶將共享廚房、用餐住所和洗衣間等設施,多達約37160平方米的占地面積用來打造公寓配套設施、小區綠化等。我通常和客戶說買公寓不止買房子本身,還要看配套設施是否足夠完善,等您以後打算出租或者出售時,公寓配套設施扮演重要的角色。
配套智能家居系統
采用智能家居系統,裝有智能控制器,備有攝像功能和聲控系統。包括一個智能電子鎖,一個可控燈光、空調控制、一個智能語音助手、智能插座等。當您在外面時也可通過手機App知道家裏的情況,當您在外面時,可以通過手機遙控打開或者關閉關空調、調整空調溫度,可以通過手機應用程序預定公寓設施、報讀培訓課程、生活服務、訪客登記、智能解鎖、車牌識別系統等,讓每位業主享受現代科技感十足的智能家居生活,享受現代科技給生活帶來的便利。
樣板房圖片:
圖片大放送,給您欣賞!
戶型圖和參考指導價:
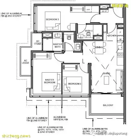
3臥室雙鑰匙,面積90平方米,單身公寓+2臥室,價格184.1萬新幣起(高樓)
3臥室豪華型,面積爲116平方米,私人電梯入戶,大主臥加長型大客廳設計,價格230.2萬新幣起
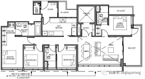
4臥室豪華型,面積爲136平方米,大主臥加長型大客廳設計,廚房分幹濕兩區,帶保姆房,私人電梯直接入戶,價格266萬新幣起
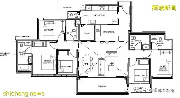
5臥室豪華型,面積爲159平方米,私人電梯直接入戶,廚房分幹濕兩區,大廚房加大客廳,價格300萬新幣萬起
頂層複式4臥室,面積爲185平方米,私人電梯直接入戶,廚房分幹濕兩區,大廚房加大客廳,價格328萬新幣萬起,單價只需$1647/英尺起

























