Menu
快讀
  • 旅遊
  • 生活
    • 美食
    • 寵物
    • 養生
    • 親子
  • 娛樂
    • 動漫
  • 時尚
  • 社會
  • 探索
  • 故事
  • 科技
  • 軍事
  • 国际
快讀

【新盤推薦】下半年位于中部的熱門樓盤,Bartley Vue, 步行去環線地鐵站,海星小學學區

2021 年 8 月 7 日 瞧眼潮流

640?wx_fmt=jpeg640?wx_fmt=png

                                       

                         Bartley Vue

環線

地鐵

比達達利

   ★★★★★

環線內有什麽盤可以步行去地鐵站?附近又有名校?價格又不錯的?可以看下即將開盤的 Barltey Vue。

Bartley Vue位于Bartely 地鐵站附近,而且他一公裏內的海星小學還是比較容易進的名校。

這裏又比較靠近新的BTO區- 比達達利,將來的價格會有保證,也有源源不斷地提升者來自比達達利新區。

預約看樣板間的朋友請掃描以下二維碼。

640?wx_fmt=jpeg640?wx_fmt=png

項目 要點

力             匕

Bartley Vue

“名校學區”

 阝      t 勹

                              廴              匚

厶

640?wx_fmt=jpeg

步行5分鍾到巴特利地鐵站,3站內有四條地鐵線。

1公裏內知名男校 海星小學和中學(Maris stella),其他知名學校有四德女校的小學和中學(Cedar Girls), 巴耶利峇美以美女子小學和中學(Paya lebar Methodist Girls)。

附近的知名商城有Woodleigh Mall(在建),Nex Mall, Heartland Shopping Mall, Paya Lebar Quarters(PLQ), and  Junction 8。

640?wx_fmt=png

項目 詳情

640?wx_fmt=jpeg

項目名稱:    Bartley Vue

發展商:       偉合控股Wee Hur Holding Ltd

園景設計師:P & T Consultants Pte Ltd

地契:           99

區域:           D19 – 實龍崗/後港/榜鵝

建築面積:    4,666 平方米

項目規模:    115間,2棟16層高的大樓

項目地址:      6 ,8 Jalan Bunga Rampai Singapore 538310 ,538311

預計交房時間:  2026年 

640?wx_fmt=png

Bartley Vue 是位于新加坡住宅區第19郵區—實龍崗/後港/榜鵝的公寓。周邊都是都私人別墅,公園和學校。

開發商是新加坡上市公司偉合控股,它在新加坡已有的項目有 Parc Centros, Parc Botania, 和 Urban Residences。其中Urban Residences 獲得Quality Mark “Star”獎這個獎項是肯定開發商在建築質量上出色表現。

整個項目由兩棟16層樓高的住宅大樓組成,共115間精心設計的單位。戶型分布由兩房,三房到四家書房組成。

640?wx_fmt=png

地理位置

640?wx_fmt=png640?wx_fmt=png

Bartley Vue 位于新加坡其他中央區RCR, 臨近環線巴特利地鐵站Batley MRT,步行去地鐵站僅5分鍾。公寓周邊是低層的別墅區,和公園Bunga Rampai Park。

喜歡乘搭地鐵出行的朋友,5站或者10分鍾內,就可到達新加坡的5條地鐵線:

1站到紫線—東北線實龍崗轉換站

2站到藍線—市區線Macpherson 轉換站

3站到綠線—東西線巴耶利巴轉換站

3站到紅線—南北線碧山轉換站

5站的到褐色線—湯申線Caldecott 轉換站。

再加上本身的環線,不論去那裏上班都很方便。

環線預計在2025年成爲真正的閉環,上面新添三個地鐵站岌巴(Keppel)、廣東民(Cantonment)和愛德華太子(Prince Edward)站。到時港灣站vivocity和濱海灣Marina Bay站真正相連相當于以後聖淘沙到濱海灣這兩個超級大景點就相連了。

640?wx_fmt=png

周邊配套

640?wx_fmt=png

乘搭地鐵10分鍾內就可到達周邊各大商城,比如實龍崗的Nex, 碧山的Junction 8,巴耶裏達的 PLQ, 波動巴西的Poiz centre, 加冷的kallang wave mall等。還有正在建設中的商城Woodleigh mall , 位于兀裏地鐵站,將會提供高達3萬平方米的購物零售面積。

640?wx_fmt=png

Bartley Vue 周邊有很多不錯的小學和中學,著名的男校海星小學在一公裏內, 屬于非常好進的男校。其他知名學校有四德女校的小學和中學(Cedar Girls), 巴耶利峇美以美女子小學和中學(Paya lebar Methodist Girls), 聖加俾爾中學(St Gabriel’s Secondary School) ,巴特利中學(Bartley Secondary school)。

640?wx_fmt=png

未來潛力

640?wx_fmt=png

Batley Vue 臨近正在建設的HDB新鎮比達達利,在2022年建成後,將會有高達10萬的家庭住在比達達利新鎮。Bartley Vue將會是他們提升住宅的一個不錯選擇。

巴耶利達的空軍基地將會在2030年搬走,這裏將會變成未來居住和持續發展的新城鎮。

還有附近的工業基地Lorong Halus 和 Defu Industrial Estate都在重新發展中,將會提供更多的就業機會,同時也爲我們的公寓提供了新的買家和租客群。

640?wx_fmt=png

精品戶型 

 

2臥2衛

實用面積68平方米

640?wx_fmt=png

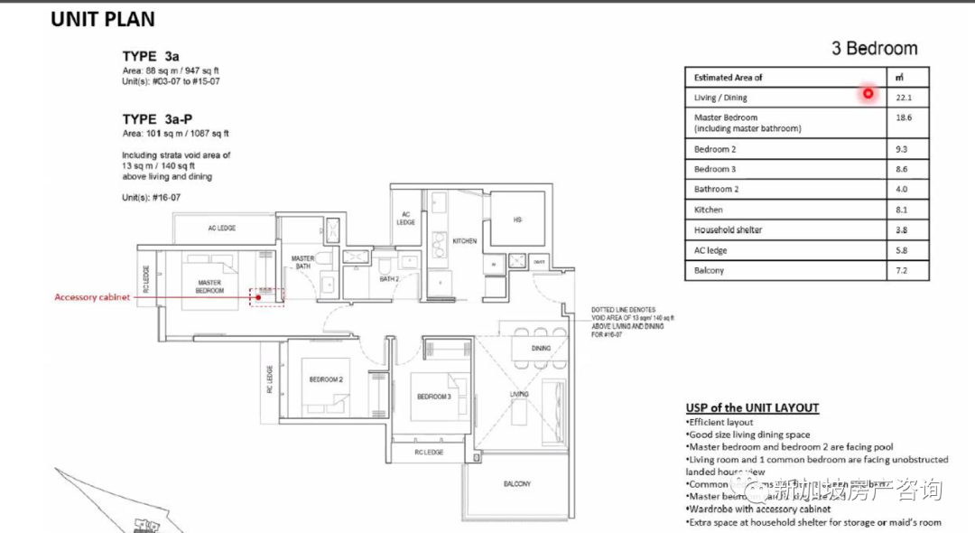
3臥2衛

實用面積947方尺/88平方米

640?wx_fmt=png

4臥加書房

實用面積1356方尺/126平方米

640?wx_fmt=png640?wx_fmt=png

美圖欣賞 

640?wx_fmt=jpeg640?wx_fmt=jpeg640?wx_fmt=jpeg640?wx_fmt=jpeg640?wx_fmt=jpeg640?wx_fmt=png640?wx_fmt=png

●熱門樓盤精選 ●

01

現房系列

【即刻入住+延遲付款】現房集錦系列一  

現房集錦-烏節路篇  #超豪宅

【烏節路現房】 名築 Nouvel 18 促銷!折扣高達28%!#超豪宅

【豪宅促銷】水晶閣 The Lumos,烏節路核心地段永久地契,高達30%折扣,尺價僅2300!#輕奢豪宅

【華麗世家 Wallich Residences】 金融區核心地帶,新加坡最高樓,海景現房  #輕奢豪宅

新加坡這個超黃金地段,據說有99.9%的人都想住在這裏!#輕奢豪宅

【烏節路現房】 聖多馬士8號 8St Thomas 促銷!折扣高達36萬!項目實景視頻!#輕奢豪宅

【新加坡中央區的奢華項目】The Crest,名家設計,地標建築,5%首付即可入住 #輕奢豪宅

【Corals at Keppel bay】吉寶灣麗珊景 位于聖陶沙的公寓,享受奢華濱海生活#輕奢豪宅

02

期房系列

熱門地段

烏節路

【鉑瑞雅居 Boulevard 88】 烏節路商圈一顆璀璨的明珠,永久産權,代代相傳  #超豪宅

【熱賣豪宅】The Avenir · 未來 市中心永久地契奢華大盤,立化小學學區#輕奢豪宅

【RIVIÈRE 瑞雅嘉苑】, 新加坡河畔擁有保留建築的地標性公寓,步行去大世界地鐵站,立化小學一公裏!#輕奢豪宅

【HAUS on Handy】位于市中心烏節路總統府附近,步行兩分鍾到多美歌地鐵,擁有保留建築 #輕奢豪宅

武吉知馬

盤點新加坡最優質的學區房,連富豪名人都爭相搬進來~ #輕奢豪宅

【禦景苑RoyalGreen】武吉知馬別墅區永久産權公寓,名校學區 

#輕奢豪宅

【Fourth Avenue Residences (富雅軒)】第十區武吉知馬核心位置,Six Ave地鐵就在門口 #輕奢豪宅

荷蘭村

【Wilshire Residences】, 荷蘭村永久地契公寓,南洋小學學區,萊佛士女小1-2公裏!  #輕奢豪宅

【壹瀾庭One Holland Village】荷蘭村正中心唯一綜合性住宅項目,遠東力作 #輕奢豪宅

2020年新加坡人極致向往的住所,聽說長這樣… #輕奢豪宅

【Van Holland 】荷蘭軒,步行去荷蘭村地鐵站的永久地契項目,優雅精致#輕奢豪宅

【新盤推薦】Hyll on Holland,永久地契山水大盤,步行去荷蘭村地鐵村地鐵站#輕奢豪宅

東海岸

【美雅豪苑 Meyer Mansion 】傳承稀世名宅,坐擁海岸之心 #輕奢豪宅

【Amber Park】,  東海岸大型永久地契海景新公寓, 3分鍾步行到未來丹絨加東地鐵站 #輕奢豪宅

Seaside  Residences, 三分鍾步行到siglap 地鐵站,海景單位 二期隆重開盤 #大型海景樓盤

南部濱海區域

【Avenue South Residences】 首個瀕臨南部瀕水區GSW的項目,位于未來CBD的門戶位置,無限潛力#大型樓盤

【新盤推薦】牛車水超值樓盤The Landmark,14 號開盤,開始預約!#超值樓盤

【新盤促銷】萬寶軒 One Pearl Bank ,市中心地標建築,都市裏的花園,凱德集團代表作! #未來三線交彙

【Kent Ridge Hill Residences】明天開盤!歡迎預約!擁抱大自然,背山面海的景觀公寓,緊鄰國大和西部商圈 #低密度舒適樓盤

綜合樓盤

【綜合項目】桦麗居The Woodleigh Residence, 盡享自然之美,  綜合發展項目之瑰寶

【盛港嘉園Sengkang Grand Residences】位于盛港中心的超級綜合項目

03

學區房系列

【學區房系列】 新加坡政府名校錄取“揭秘”

【學區房系列】 新加坡如何進入“天才班”學校

【學區房系列】 新加坡如何進入“天才班”學校 – 南洋小學

盤點新加坡最優質的學區房,連富豪名人都爭相搬進來~

【Parc Clematis 錦泰門第】 最新促銷!金文泰唯一新盤,南華/啓發學區房,共享社區理念 教育中心,醫療中心

【新盤更新】JadeScape順福軒,近麥裏芝蓄水池的山水景觀大盤,公教小學學區,萊佛士書院

【樂賽學區房】Affinity At Serangoon 大型公寓項目,近Serangoon/NEX

【KOPAR】核心第九郵區最超值的公寓,紐頓地鐵旁,名校英華,聖約瑟小學學區

【Sloane Residences 】Balmoral Road 巴慕樂路中段,擁有曆史記憶的永久産權住宅,名校學區

【Park Colonial】一分鍾步行去兀裏(Woodleigh) 地鐵,斯坦福美國國際學校就在門口!

【新盤更新】Forett at Bukit Timah 福瑞軒武吉知馬大型永久地契公寓,培華學區,享受美世界發展的無限潛力

【MayFair Gardens】武吉知馬別墅區,雙名校學區房,英倫風格建築

【學區房系列】 西部樓盤及學區速查(D05, D21,D23&D24)

【學區房系列】 中央區樓盤及學區速查(D09 ,D10和D11)

【學區房系列】 目前熱門 第21區-武吉知馬上段 學區項目總結

04

超值熱賣

【The M】城市中心,萬象之上,絕佳投資樓盤

【預售分析】 Penrose年度最熱樓盤, 預售情況分析!

【Stirling Residences 尚景苑】映在星空下,浮于塵世上 的甯靜奢華 女皇鎮地鐵的大型項目,樂享無敵都市景觀

【新盤更新】JadeScape順福軒,近麥裏芝蓄水池的山水景觀大盤,公教小學學區,萊佛士書院

【Treasure At  Tampines】步行到四美地鐵站, 靠近成熟社區淡濱尼,2019 最便宜的大型公寓

【新盤推薦】國大金文泰熱門樓盤悅文荟,華業集團力作

相關文章:

  • 步行到Bartley 地鐵站(環線),兩站到實龍崗地鐵轉換站。交通、購物、學校全配套成熟。BARTLEY…
  • Vue資源彙總
  • 【新盤推薦】2022年的第一個EC 集自然風景和便利生活于一體的North Gaia
  • 【新盤推薦】2022年度尺價最低樓盤,低密高品質生活方式 The Arden 雅詩軒
  • Vue 中 強制組件重新渲染的正確方法
  • 【新盤推薦】新加坡河畔的新地標 綜合項目新高度 — Canninghill Piers 康甯河灣
時尚

發佈留言 取消回覆

發佈留言必須填寫的電子郵件地址不會公開。 必填欄位標示為 *

©2026 快讀 | 服務協議 | DMCA | 聯繫我們