NO.1 項目介紹
Phoenix Residences是由USB (Phoenix) Pte Ltd開發的低層住宅項目,讓您在家就能享受奢華酒店般的居住體驗。項目位于新加坡第23郵區武吉班讓的中心地帶,99年地契,Phoenix Avenue和Phoenix Road的交彙處,旨在成爲遠離快節奏城市生活喧囂的居民的現代避風港。
使該項目脫穎而出的是其建築風格。設計風格從自然元素中汲取靈感,讓您感覺自己正在參觀一個獨特而豪華的度假風住宿,進入公寓感覺就像您踏入隱藏在繁華塵世間的私人度假所。
度假村生活無縫延伸到住宅每一寸角落。Phoenix Residences將大自然的甯靜與現代生活方式融爲一體。
NO.2 便捷交通及生活配套
Phoenix Residences – 位于第23郵區,武吉班讓的中心。該地區的房産市場一直有需求,這是因爲這裏有便利設施衆多,而且該地區距離武吉知馬上路和裕廊東只有很短的車程。
能夠爲居民提供在家門口提供各種便利設施,因此位于武吉班讓中心的Phoenix Residences將會是一個備受追捧的項目。
公寓小區離武吉班讓市鎮約700米,那裏共有3個購物商場,Junction 10,Bukit Panjang Plaza和剛剛竣工不久的Hillion Mall。這些商場有許多零售店,可以給住戶許多的零售選擇。商場也有許多餐飲店,食閣和超市,住戶可以享用到許多美食也可以買到所需的日常用品。
此外,公寓也靠近Bukit Panjang Hawker Centre and Market,除了商場外,這個熟食中心也能滿足您的日常購物和飲食,生活十分便利。
Phoenix Residences 距離Bukit Panjang MRT約700米。居民可以步行幾分鍾就到達或者也可以去鳳凰輕軌列車站那乘搭1個輕軌列車站就可以抵達。鳳凰輕軌列車站距離項目約500 米。武吉班讓地鐵站也是MRT Downtown Line的起點站。
該地鐵線十分方便,可以直通到位于金融區的Downtown MRT。從該地鐵站只需乘搭7個地鐵站就可以抵達植物園地鐵轉換站Botanic Gardens MRT,那裏也有營運者MRT Circle Line。武吉班讓地鐵站離Stevens MRT 8個地鐵站,該地鐵轉換站的MRT Thomson-East Coast Line即將在2022年通車。
靠近項目的主要道路有Choa Chu Kang Road和Upper Bukit Timah Road。附近的快速公路如BKE和KJE也爲住戶帶來一些便利,通過這快速路,自駕人士可以輕松前往全島各地。
附近的學校:
武吉班讓小學——Bukit Panjang Primary School-2.92km
南山小學——South View Primary School 1.91KM
維新小學——West View Primary School 1.81KM
正華小學——Zhenghua Primary School 3.28KM
德惠小學——Teck Whye Primary School 1.57KM
聖嬰女校和平之後CHIJ Our Lady Queen of Peace 2.86KM
群立小學——Greenridge Primary School 2.9KM
蔡厝港小學——Chua Chu Kang Primary School 2.4KM
NO.3 設計及戶型
Phoenix Residences擁有74個公寓單位,戶型從1到4臥室的單位,迎合業主和投資者的需求。共計3座5層高住宅樓,提供74間獨家公寓單位,地下停車場,遊泳池等公寓公共設施。
每個單元還設計有落地窗,即使在家中,居民也可以舒適地盡情欣賞廣闊的綠地。
3個獨立住宅樓和一個大型的屋頂花園,最大程度地爲公寓項目提供綠化環境。
盡情享受公寓內的設施——遊泳池、小型遊泳池、戶外涼亭、燒烤爐和屋頂花園、會所。
指導價
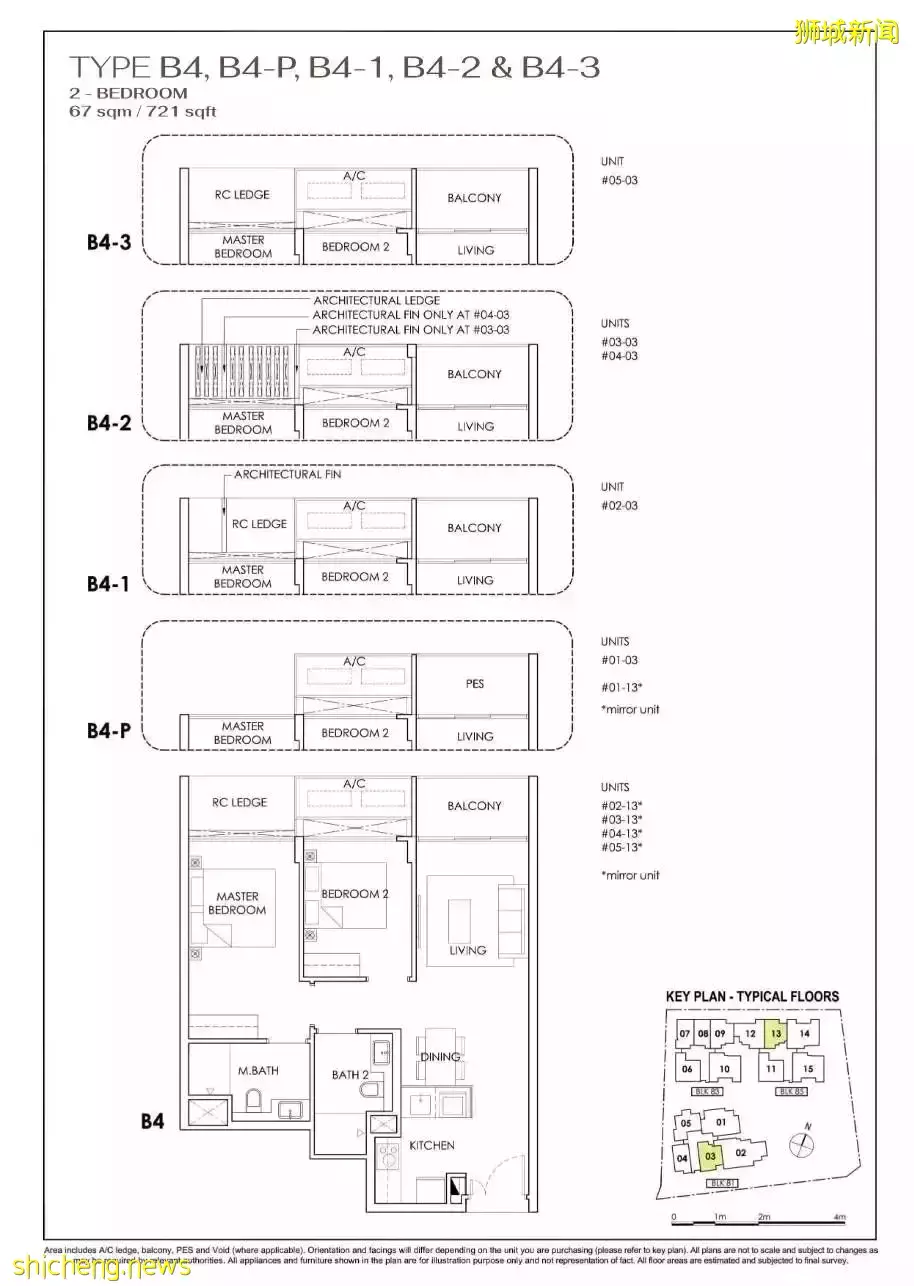
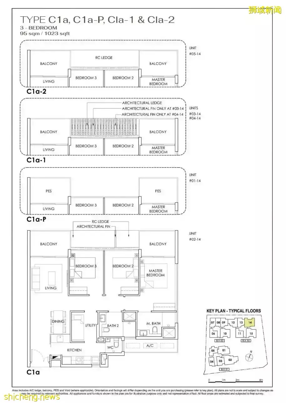
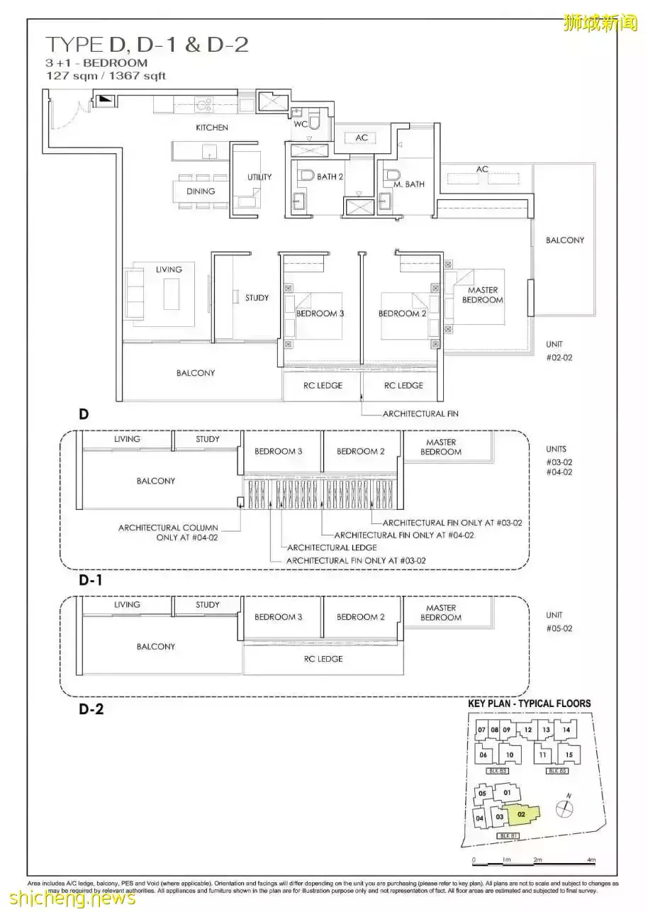
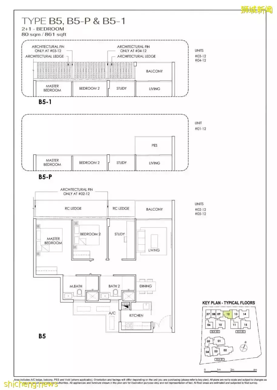
平面圖
VR雲端看房
長按QR代碼進入虛擬樣板間看房
兩 房
三 房
四 房
免責條款:價格僅僅爲2021年12月參考指引價。隨庫存變化和發展商調價,上述數字或有差異,價格以成交前更新數字爲准。
![Phoenix Residences[D23區武吉班讓 低密度公寓]](https://www.xinjiapo.news/image/c7fdeeb4b3862351560834eb1a94950b8e6b8be6.webp)
![Phoenix Residences[D23區武吉班讓 低密度公寓]](https://www.xinjiapo.news/image/73c7ea86df50aa2745c255982d8d70066a2e9126.webp)
![Phoenix Residences[D23區武吉班讓 低密度公寓]](https://www.xinjiapo.news/image/8c6dd6135298696f45bac4032f1e18c82a9d69bc.webp)
![Phoenix Residences[D23區武吉班讓 低密度公寓]](https://www.xinjiapo.news/image/3fa80b6c01da73aa3c11075709acfeb958074e5a.webp)
![Phoenix Residences[D23區武吉班讓 低密度公寓]](https://www.xinjiapo.news/image/f30ddf7b95e7e3098bf76c8d528c1ddd007a8644.webp)
![Phoenix Residences[D23區武吉班讓 低密度公寓]](https://www.xinjiapo.news/image/0624d3b869d9100e87acdbcedbf50db01325f61a.webp)
![Phoenix Residences[D23區武吉班讓 低密度公寓]](https://www.xinjiapo.news/image/fe3ba267e9b9a7720e0d669be5cc9a9f3b91d379.webp)
![Phoenix Residences[D23區武吉班讓 低密度公寓]](https://www.xinjiapo.news/image/e3dbdaf92c29988a1fda5a31528f5feea3f5a470.webp)
![Phoenix Residences[D23區武吉班讓 低密度公寓]](https://www.xinjiapo.news/image/a9674c6dbf0c0ec79969ea6775e64343b189d62d.webp)
![Phoenix Residences[D23區武吉班讓 低密度公寓]](https://www.xinjiapo.news/image/9e913e3b416bd6254f092f28cda54189a7ba042d.webp)
![Phoenix Residences[D23區武吉班讓 低密度公寓]](https://www.xinjiapo.news/image/4b560c965447c6afab38c9597e4679fcfb199631.webp)
![Phoenix Residences[D23區武吉班讓 低密度公寓]](https://www.xinjiapo.news/image/6305f3878799d83922a9e6db925d8b49077cd00e.webp)
![Phoenix Residences[D23區武吉班讓 低密度公寓]](https://www.xinjiapo.news/image/b19f2bf2ebb770622b9c0a4950b83af046a4236e.webp)
![Phoenix Residences[D23區武吉班讓 低密度公寓]](https://www.xinjiapo.news/image/036fa9fd6c86d87410953ae8ac049ac2e2134cf8.webp)
![Phoenix Residences[D23區武吉班讓 低密度公寓]](https://www.xinjiapo.news/image/5d106c1010efd7a1eb57030e554db218e698137b.webp)
![Phoenix Residences[D23區武吉班讓 低密度公寓]](https://www.xinjiapo.news/image/44487edb0770de79cf120faa1b722a61217779f5.webp)
![Phoenix Residences[D23區武吉班讓 低密度公寓]](https://www.xinjiapo.news/image/5c65aa017078fb6cfe6a81ed8f8d3f22f3a7d0fc.webp)
![Phoenix Residences[D23區武吉班讓 低密度公寓]](https://www.xinjiapo.news/image/56b0cb6d78ecfbd2b035d45f9ea03e0508d2b262.webp)
![Phoenix Residences[D23區武吉班讓 低密度公寓]](https://www.xinjiapo.news/image/ce82388915b1e95e3f17e67b86ecf6615455cfb8.webp)
![Phoenix Residences[D23區武吉班讓 低密度公寓]](https://www.xinjiapo.news/image/a9884bd0913a890529435ba93713785823559d9b.webp)
![Phoenix Residences[D23區武吉班讓 低密度公寓]](https://www.xinjiapo.news/image/32e42efbbf716344306030523aa72f70655e534f.webp)
![Phoenix Residences[D23區武吉班讓 低密度公寓]](https://www.xinjiapo.news/image/1bbd15a42d8f778ecb66d23609e9f44dc66962ef.webp)
![Phoenix Residences[D23區武吉班讓 低密度公寓]](https://www.xinjiapo.news/image/ab7bc75658ded54afcaf52a85c959b1805f43be1.webp)
![Phoenix Residences[D23區武吉班讓 低密度公寓]](https://www.xinjiapo.news/image/71fb243a6198467e44e306904468c426e3212860.webp)
![Phoenix Residences[D23區武吉班讓 低密度公寓]](https://www.xinjiapo.news/image/f90479268bc01358e4e0c54832f7ffcb14522f37.webp)
![Phoenix Residences[D23區武吉班讓 低密度公寓]](https://www.xinjiapo.news/image/9be6fdd78a0eea0503e5e16e0673f6228aa24968.webp)
![Phoenix Residences[D23區武吉班讓 低密度公寓]](https://www.xinjiapo.news/image/462408c905761ed77774f4af0b28402eccb36f29.webp)
![Phoenix Residences[D23區武吉班讓 低密度公寓]](https://www.xinjiapo.news/image/a5b7b6d5db4869f09dc1eb8390b5c6f2076fbcc3.webp)
![Phoenix Residences[D23區武吉班讓 低密度公寓]](https://www.xinjiapo.news/image/0164ba7467efde2be6af772679365790304f0719.webp)
![Phoenix Residences[D23區武吉班讓 低密度公寓]](https://www.xinjiapo.news/image/2ab64ad430b0e86fe269bfc61c5be9cacd35715b.webp)
![Phoenix Residences[D23區武吉班讓 低密度公寓]](https://www.xinjiapo.news/image/c8f2941c171fbc012eda697b28c78e478ba20a33.webp)
![Phoenix Residences[D23區武吉班讓 低密度公寓]](https://www.xinjiapo.news/image/8ba7a7859fad4197d4db8623bcf40b17bc4dc716.webp)
![Phoenix Residences[D23區武吉班讓 低密度公寓]](https://www.xinjiapo.news/image/8cfaddea780728164bde03efb9698b223001edfb.webp)
![Phoenix Residences[D23區武吉班讓 低密度公寓]](https://www.xinjiapo.news/image/694b586e410476f78b1a2876c5ab70cf6d32e08f.webp)
![Phoenix Residences[D23區武吉班讓 低密度公寓]](https://www.xinjiapo.news/image/602a944703bca7d26d79f6a30d1da3d6756612a6.webp)
![Phoenix Residences[D23區武吉班讓 低密度公寓]](https://www.xinjiapo.news/image/22ec8b4e33101d2bfc70f57e378e4d4b8d2fdfbb.webp)