近期廣受矚目的大型商住項目!
2-4室實用戶型,99年産權,D13郵區,面向未來的誠意之作!
簡介
The Woodleigh Residences位于Bidadari Park Drive, Singapore 347695。本樓盤由由頂級開發商新加坡報業控股(SPH)和Kajima Development聯合開發。即將開發的公寓爲未來的居民提供了許多便利,其中包括一些即將建造已經竣工的商業設施,以及學校,購物中心和交通設施等。
該項目兩位開發商SPH和Kajima Development在開發豪華創新住宅方面都有著不俗的表現。SPH是亞洲創新和高端的房地産開發的領導者,其公司組合包括零售和住宅開發。Kajima Corporation參與了很多重要的建築和開發項目,其中包括建造各種土木工程結構,以及其他商業,酒店和零售物業。
新加坡郵區分布圖 ,
樓盤概況
樓盤名稱:The Woodleigh Residences 桦麗居
開發商:SPH & Kajima
産權:99年
完成年份:2024年
單位數量:667
樓層數量:13(包含2層商業中心和11層公寓住宅)
起始總價:新幣 S$1,611,000
每平方英尺起始:新幣 S$2,168
The Woodleigh Residences 桦麗居
盡享自然之美,品味愉悅生活
桦麗居(THE WOODLEIGH RESIDENCES)
比達達利區(Bidadari Estate)綜合發展項目之瑰寶
體驗融彙日本精湛建築工藝和本地建築創新及品質的優質住宅。依據智能空間最大化的日式建築原則而建設,每個設計都旨在增強住宅內部和周邊的生活空間。
在居民獨享的室內私人日式溫泉裏享受阿卡夫湖(Alkaff Lake)和比達達利公園(Bidadari Park)風光旖旎的優美景色。或沿著日式風格的涼亭漫步,遠離腳下的城市喧囂。
住宅直通桦麗商城(The Woodleigh Mall),兀裏地鐵站(Woodleigh MRT Station)和新加坡首個地下冷氣巴士轉換站,這個新興家園不僅讓您無限接近各類繁華設施,還能讓您享受近在咫尺的便利設施。
| 蓬勃發展的比達達利區(Bidadari Estate)重點項目之瑰寶
比達達利曆史文化步行道
阿卡夫湖
比達達利綠色長廊
桦麗居(THE WOODLEIGH RESIDENCES)
比達達利區(Bidadari Estate)重點項目被譽爲“未來碧山(Bishan)”,將規劃爲一個擁有世界一流基礎設施的獨特且可持續發展的甯靜城市邊緣區。隨著最新宣布的占地面積10公頃公園的逐步開發,比達達利(Bidadari)將提供給自然愛好者的一個新型生物多樣性保護區。
這裏擁有各式各樣的設施包括新加坡第一個地下水庫,確保飲用水供應管理和該區域水壓控制,還有一個5米高的標志性樹屋的和兩塊5,000平方米草坪提供步行,跑步和自行車道的遊樂場所。
具備配置齊全的生活設施,觸手可及的名校以及四通八達的交通連接性——比達達利(Bidadari)成爲了目前新加坡最令人垂涎的居住地之一。
| 交通便利,隨處可達
桦麗居(THE WOODLEIGH RESIDENCES)
步行1分鍾可達比達達利公園
地鐵一站可達NEX購物中心,實龍崗地鐵轉換站,實龍崗巴士轉換站
5分鍾車程可達CTE和PIE
8分鍾車程可達實龍崗公園
地鐵7站可達烏節路和萊佛士坊
15分鍾車程可達濱海灣
| 近在咫尺的綜合生活設施
1. B2 直通兀裏地鐵站
2. B2 住宅區大堂
3. B1/B2 地下巴士轉換站連接通道
4. B3 居民私人停車場
5. B2 商場/居民停車場
6. B1 美食城,商店,超市購物中心
7. L1 商店,銀行,酒店,社區俱樂部,社區警察中心
8. L2 商業中心,兒童遊樂區,增益中心,醫療設施
| 在俯拾皆是的綜合設施中感受多彩生活
享受設施無縫連接的生活並不止步于此,這僅僅是一個開端
邁出家門,進入一個餐飲,購物和生活方式可供選擇的絕妙世界,在近在咫尺的各色生活設施中享受全方位的,豐富多彩的生活
比達達利(Bidadari)唯一的綜合發展區和交通樞紐
桦麗居(THE WOODLEIGH RESIDENCES)
只需乘坐電梯即可便利到達桦麗商城(The Woodleigh Mall),在298881平方英尺的商場開啓奢華選擇之旅
直通兀裏地鐵站(Woodleigh MRT Station)
直達新加坡首個地下冷氣巴士轉換站
該發展區集超市,美食城,設托兒所的社區俱樂部,社區警局中心和醫療設施爲一體
| 在溫馨家園感受平衡生活
在這裏享受將您置身豪華中心的溫暖家園。桦麗居(The Woodleigh Residences)融合了適合世代的所有環境必需元素。綜合發展區的設施從配置醫療設施的購物中心到托兒所,社區俱樂部一應俱全——服務周到的各類設施從現在到未來都滿足您的家庭所需。
| 爲成功奠定基礎
1站可達聖安德魯斯學校(小學,9分鍾車程可達中學和專科學校)
2分鍾車程可達史丹福美國國際學校
4分鍾車程可達嘉諾撒天主教小學
5分鍾車程可達四德小學
步行12分鍾可達海星中學
7分鍾車程可達巴耶利巴美以美女中
追求知識來爲成功人生奠定基礎。周邊知名的小學,中學和大學教育機構俯拾即是,這裏是對知識和孩子未來的長期投資。
| 新加坡首個社區園林
平衡生活是感受大自然恬靜的,舒緩身心的靜谧生活。比達達利公園(Bidadari Park)占地273,800平方英尺,毗鄰桦麗居(The Woodleigh Residences),公園擁有阿卡夫湖(Alkaff Lake)和曆史文化步行道,飽經風霜的小徑,兒童遊樂區,5米高的樹屋,以及一系列多樣觀光平台 ,觀景蓬和亭台樓閣。
晚間與您的親人一起漫步,沿著風景優美的小徑一路慢跑,或者與您的孩子在甯靜大自然中共度溫暖周末。居住在桦麗居(The Woodleigh Residences)使您的生活達到完美平衡。
與大自然融爲一體,和睦相處
新加坡首個社區園林
比達達利公園(Bidadari Park),阿卡夫湖(Alkaff Lake)和700米長的比達達利(Bidadari)曆史文化步行道依偎相存
全長1.6公裏的比達達利(Bidadari)綠色長廊爲家庭休閑活動提供了一個生意盎然的綠色活動空間
公園連接橋方便您輕松進出比達達利公園(Bidadari Park)
| 奪目設計,精湛工藝
步入日式知名的品質和設計空間,從日式風格的生活空間和設施中感觸絕佳日式體驗,在家就能感受一切舒適和安逸。
沉浸在惬意的日式風格生活
667個優質單位,采用日本品質設計
2-4室住宅,單位面積涵蓋570-1475平方英尺
智能空間最大化的日式建築原則——組合式牆壁
別具匠心的日式設施,如居民獨享的室內溫泉
卓越的日本工藝和無縫設計
體現在精准設計每個細節
令人垂涎且久負盛名的日式工藝和設計
公寓結構與自然完美融合,展現生活的真正平衡
桦麗居(THE WOODLEIGH RESIDENCES)
每座住宅都經過一絲不苟的細節設計和建造,擁有讓人望眼欲穿的日本原則設計和精美工藝等特色。從室內外界限模糊的無縫齊平地板到錯綜複雜的清晰裝飾線條都體現出日本原始設計,在這裏您和您的家人能夠獲得空間最大化的享受。
| 靈活智能的空間配置,只爲滿足您的生活方式
世代享受的溫馨家園
桦麗居(The Woodleigh Residences)的住宅采用智能空間最大化的日式建築原則,根據家庭需求爲居民提供能夠靈活配置的生活空間,
祖父母居住空間
擴大功能性生活空間,爲家庭聚會創造舒適的環境。
兒童房
把多余的空間變轉變爲有利于學習或玩耍的環境。
家庭辦公室
在家享有私人的開放式辦公室,即能專注于手頭的工作,也能與家人保持聯系。
無插座的非承重牆使房間易于擴展
智能儲物空間和懸臂式衣櫃爲建築增添更多功能
齊平地板通過無縫連接從客廳延伸至陽台
采用智能空間最大化的日式建築原則
在這裏,感受日式家園的每一幀時光
| 探索真正的靜谧安逸
在獨具一格的日式風格設施中,體驗日式生活。您可以在無邊家庭泳池暢遊,開啓新的一天,或花時間在Pavilion Zen獨處。也可以在居民獨享的室內溫泉中恢複活力,俯瞰靜谧祥和的阿卡夫湖(Alkaff Lake)和比達達利公園(Bidadari Park)。
每一個元素都爲您的幸福生活而設計
匠心打造
感觸日本風情
日本鹿島房地産發展公司(Kajima Development Pte Ltd)是日本鹿島建設公司(Kajima Corporation)的開發子公司。
日本鹿島建設公司(Kajima Corporation)成立于1840年,是日本領先的承包商,工程師和房地産開發商,擁有豐富的海外房地産開發業績。其業務通過海外子公司遍布亞洲,北美,歐洲和大洋洲的。鹿島(Kajima)在新加坡的投資組合包括五星級酒店Regent Singapore; 標志性的綜合發展建築Millennia Singapore; 豪華住宅區Sui Generis和Bishopsgate Residences。該公司其他引人注目的項目還有印度尼西亞雅加達的Senayan Square,這是亞洲最大的多用途開發項目之一,鹿島(Kajima)也因此在雅加達房地産産業留下了深刻足迹。鹿島(Kajima)的股票在東京證券交易所(Tokyo stock Exchange)第一板塊上市,是日經225指數(Nikkei 225 Index)的成分股。截至2018年3月31日財政年度,該公司的綜合營業額達到1.8萬億日元。
新加坡報業控股有限公司(SPH)是亞洲領先的媒體機構,在房地産開發方面擁有良好的業績。其首個住宅地産開發項目[email protected]于2007年通過全資子公司Times development Pte Ltd推出,新加坡報業控股有限公司(SPH)還擁有並經營著The Seletar Mall。在新加坡報業控股房地産投資信托(SPH REIT)加持下,新加坡報業控股有限公司(SPH)還擁有Paragon,一家位于烏節路的頂級商場和醫療套房/辦公室物業; The Clementi Mall,一家位于郊區的中端市場購物中心; 和武吉知馬路上的The Rail Mall。新加坡報業控股房地産投資信托(SPH REIT)持有Figtree Grove 85%的股權,這是一家位于澳大利亞新南威爾士州臥龍崗的永久地契的次區域購物中心。新加坡報業控股有限公司(SPH)在英國也擁有一系列學生專用宿舍(PBSA)。新加坡報業控股有限公司(SPH)將繼續擴大和加強其在新加坡及其他地區的物業投資組合。
桦麗居(THE WOODLEIGH RESIDENCES)
由日本鹿島房地産發展公司(Kajima Development Pte Ltd)和新加坡報業控股有限公司(SPH)聯合開發的集住宅,零售物業爲一體的綜合開發項目。
賣點
位于兀裏(Woodleigh)地鐵站上方的桦麗居(The Woodleigh Residences),是本地首個集鄰裏警局、民衆俱樂部、地鐵、巴士轉換站、零售店和住宅于一體,被譽爲比達達利區(Bidadari Estate)綜合發展項目之瑰寶。
該公寓結合民衆俱樂部、地鐵站和零售店合住宅于一體,並有銜接通道和行人橋,通往本地首個地下冷氣巴士轉換站、比達達利公園和阿卡夫湖、兀裏村小販中心和比達達利曆史文化步行道,可說是六合一、甚至七合一、八合一的多元性綜合發展項目。
桦麗商場也是比達達利區唯一商場,提供全面性餐飲娛樂購物設施,除了超級市場、零售店、餐飲店和增益中心,民衆俱樂部也設有托兒所。
桦麗居(The Woodleigh Residences)采用清晰的裝飾線條,彰顯出極致簡樸高雅的格調,而且在櫥櫃和儲藏空間的設置上,都非常講究,善用每一個小空間,凸顯處處以人爲本的設計理念。這對提高居住舒適度起到巨大作用。
桦麗居(The Woodleigh Residences)也采用富有日本文化特色的設施。比如每個單位的廁所采用TOTO品牌的坐便器,具備溫水洗淨、便圈加熱、暖風幹燥、智能除臭等多種功能,蘊含著日本的款待精神。
公寓設有日式溫泉(onsen),利用自然園林般設計,創造出一種靜谧祥和氛圍,讓住戶一邊泡溫泉,一邊欣賞窗外的阿卡夫湖潋滟景色。
公寓提供的部分設施包括:
地下3層停車場
遊泳池
陽光甲板
健身房
功能房
花園燒烤亭
兒童遊樂場
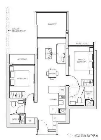
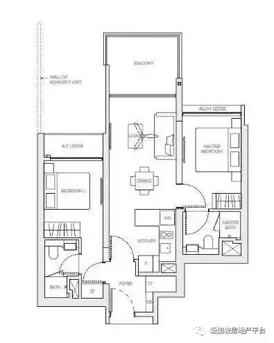
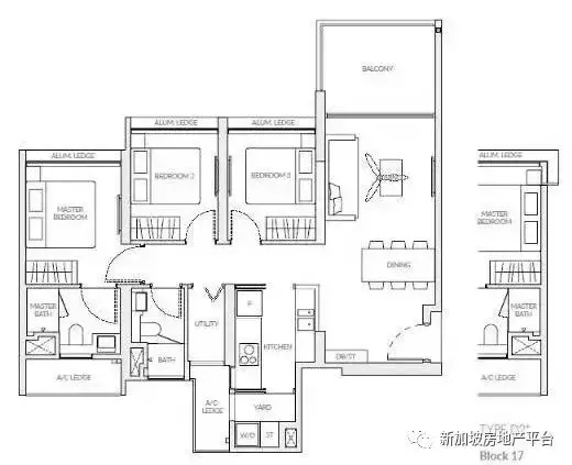
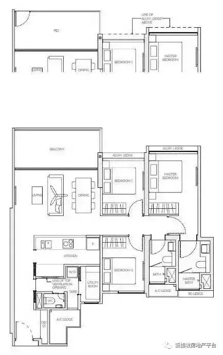
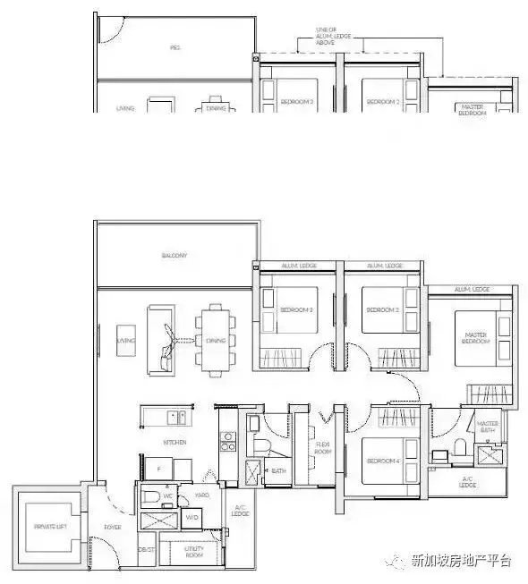
戶型分布
主力戶型
2室
新幣 S$1,711,000 起
C2戶型 2室 743平方英尺/69平方米
25%首付:S$427,750 / 75%貸款:S$1,283,250
30年貸款,2%利息,月供:S$4,743
2室
新幣 S$1,611,000 起
C2-P戶型 2室 743平方英尺/69平方米
25%首付:S$402,750 / 75%貸款:S$1,208,250
30年貸款,2%利息,月供:S$4,466
2室
新幣 S$1,706,000 起
C2-V戶型 2室 743平方英尺/69平方米
25%首付:S$426,500 / 75%貸款:S$1,279,500
30年貸款,2%利息,月供:S$4,729
3室
新幣 S$1,805,000 起
D1戶型 3室 850平方英尺/79平方米
25%首付:S$451,250 / 75%貸款:S$1,353,750
30年貸款,2%利息,月供:S$5,004
3室
新幣 S$1,800,000 起
D1-P戶型 3室 850平方英尺/79平方米
25%首付:S$450,000 / 75%貸款:S$1,350,000
30年貸款,2%利息,月供:S$4,990
3室
新幣 S$1,921,000 起
D2戶型 3室 958平方英尺/89平方米
25%首付:S$480,250 / 75%貸款:S$1,440,750
30年貸款,2%利息,月供:S$5,325
3室
新幣 S$1,916,000 起
D2-P戶型 3室 958平方英尺/89平方米
25%首付:S$479,000 / 75%貸款:S$1,437,000
30年貸款,2%利息,月供:S$5,311
3室
新幣 S$2,060,000 起
D3-P戶型 3室 958平方英尺/89平方米
25%首付:S$515,000 / 75%貸款:S$1,545,000
30年貸款,2%利息,月供:S$5,711
3室
新幣 S$1,948,000 起
D3-V戶型 3室 958平方英尺/89平方米
25%首付:S$487,000 / 75%貸款:S$1,461,000
30年貸款,2%利息,月供:S$5,400
3室
新幣 S$2,307,000 起
E2戶型 3室 1119平方英尺/104平方米
25%首付:S$576,750 / 75%貸款:S$1,730,250
30年貸款,2%利息,月供:S$6,395
3室
新幣 S$2,302,000 起
E2-P戶型 3室 1119平方英尺/104平方米
25%首付:S$575,500 / 75%貸款:S$1,726,500
30年貸款,2%利息,月供:S$6,381
3室Deluxe
新幣 S$2,339,000 起
E1戶型 3室Deluxe 1076平方英尺/100平方米
25%首付:S$584,750 / 75%貸款:S$1,754,250
30年貸款,2%利息,月供:S$6,484
3室Deluxe
新幣 S$2,334,000 起
E1-P戶型 3室Deluxe 1076平方英尺/100平方米
25%首付:S$583,500 / 75%貸款:S$1,750,500
30年貸款,2%利息,月供:S$6,470
4室
新幣 S$2,971,000 起
F2戶型 4室 1281平方英尺/119米
25%首付:S$742,750 / 75%貸款:S$2,228,250
30年貸款,2%利息,月供:S$8,236
4室
新幣 S$2,935,000 起
F2-P戶型 4室 1281平方英尺/119米
25%首付:S$733,750 / 75%貸款:S$2,201,250
30年貸款,2%利息,月供:S$8,136
4室
新幣 S$2,940,000 起
F2-V戶型 4室 1281平方英尺/119米
25%首付:S$735,000 / 75%貸款:S$2,205,000
30年貸款,2%利息,月供:S$8,150
















































