近期大熱新盤!
2-4室實用戶型,99年産權,D23郵區,坐擁自然和超多零售商的溫馨家園!
簡介
Dairy Farm Residences位于新加坡D23郵區的4-12 Dairy Farm Lane, 由知名開發商UE Dairy Farm Pte Ltd開發,預計2024年2月完工。Dairy Farm擁有99年産權,包括2室,3室,4室共460個單位。
新加坡郵區分布圖 ,
樓盤概況
樓盤名稱:Diary Farm Residences
開發商:UE Diary Farm Pte Ltd
産權:99年
完成年份:2024年
單位數量:460
樓層數量:15
起始總價:新幣 S$1,194,000
每平方英尺起始:新幣 S$1,656
賣點
絕佳地段 能夠自給自足的溫馨家園
交通連通性 Hillview Station 步行9分鍾 Cashew Station 步行18分鍾 Bukit Batok Station 7分鍾車程 Upper Bukit Timah Road 2分鍾車程
Bukit Timah Expressway 10分鍾車程 Pan-island Expressway 12分鍾車程 Ayer Rajah Expressway 13分鍾車程 購物/餐飲 HillV2 Shopping Centre The Rail Mall Cold Storage Hillion Mall NTUC Fairprice Bukit Panjang Plaza Fairprice Finest Sheng Siang Supermarket 大自然/休閑中心 Zhenghua Park 3.3km Dairy Farm Nature Park 34km Bukit Pandang Park 3.4km Bukit Batok Town Park 3.7km Bukit Batok Nature Park 3km Bukit Timah Nature Reserve 2.9km Bukit Gombak ActiveSG Stadium 3.8km
育兒中心 St Joseph Church Kindergarten Bukit Panjang Methodist Church Kindergarten White Lodge Kindergarten Masjid Al-Iman Kindergarten 公寓提供的部分設施包括:
遊泳池
健身角
陽光甲板
健身房
功能房
花園燒烤亭
兒童遊樂場
附近學校
German European School Singapore CHIJ Our Lady Queen of Place Bukit Panjang Primary School Zhenghua Primary School Chestnut Drive Secondary School Assumprion Pathway School
戶型分布
主力戶型
2室
新幣 S$1,242,400 起
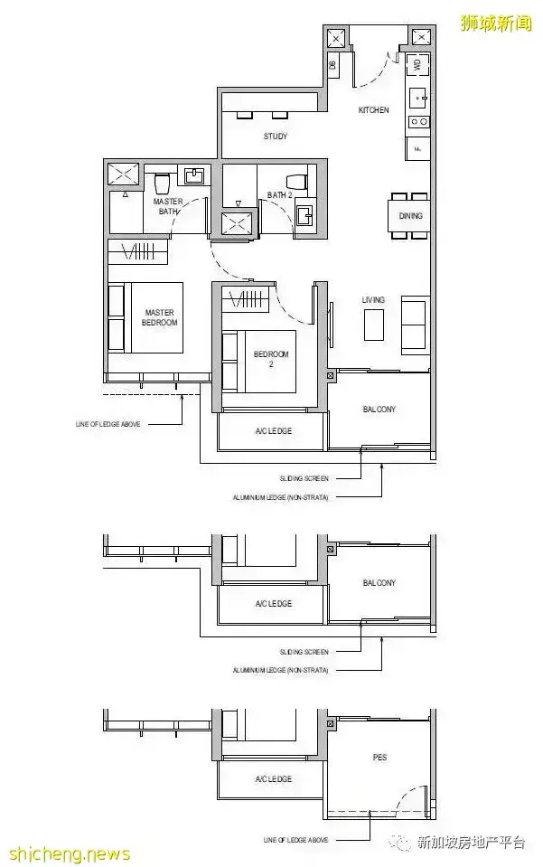
2B2戶型 2室 716平方英尺/66平方米
25%首付:S$310,600 / 75%貸款:S$931,800
30年貸款,2%利息,月供:S$3,444
2室
新幣 S$1,194,200 起
2B2-G戶型 2室 721平方英尺/67平方米
25%首付:S$298,550 / 75%貸款:S$895,650
30年貸款,2%利息,月供:S$3,311
2室
新幣 S$1,214,000 起
2B2a戶型 2室 721平方英尺/67平方米
25%首付:S$303,500 / 75%貸款:S$910,500
30年貸款,2%利息,月供:S$3,365
2室
新幣 S$1,227,900 起
2B2a-G戶型 2室 732平方英尺/68平方米
25%首付:S$306,975 / 75%貸款:S$920,925
30年貸款,2%利息,月供:S$3,404
2室
新幣 S$1,216,200 起
2B2c戶型 2室 710平方英尺/66平方米
25%首付:S$306,975 / 75%貸款:S$920,925
30年貸款,2%利息,月供:S$3,404
注:戶型圖暫無
2室+書房
新幣 S$1,273,200 起
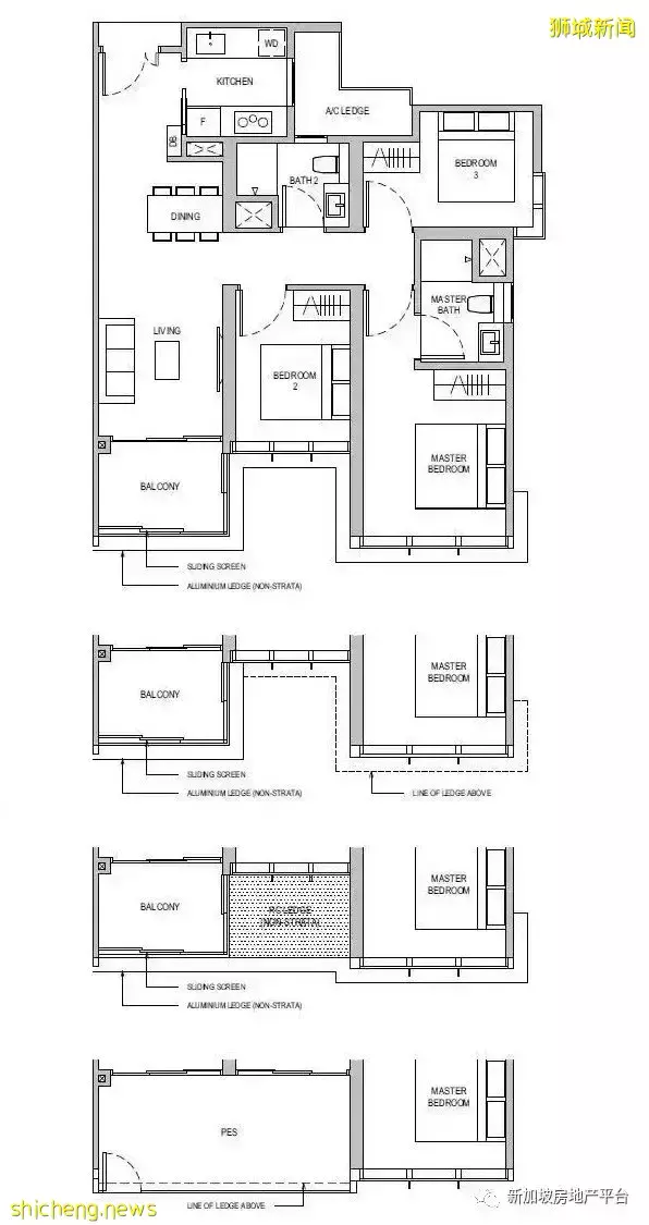
2C1戶型 2室+Study 764平方英尺/71平方米
25%首付:S$318,300 / 75%貸款:S$954,900
30年貸款,2%利息,月供:S$3,530
2室+書房
新幣 S$1,269,600 起
2C1-G戶型 2室+Study 775平方英尺/72平方米
25%首付:S$317,400 / 75%貸款:S$952,200
30年貸款,2%利息,月供:S$3,520
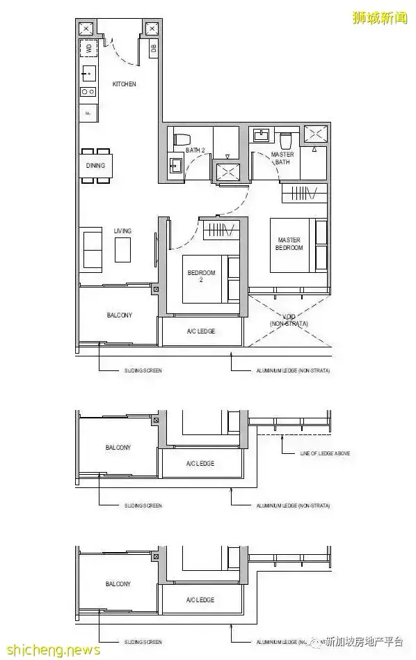
3室
新幣 S$1,595,600 起
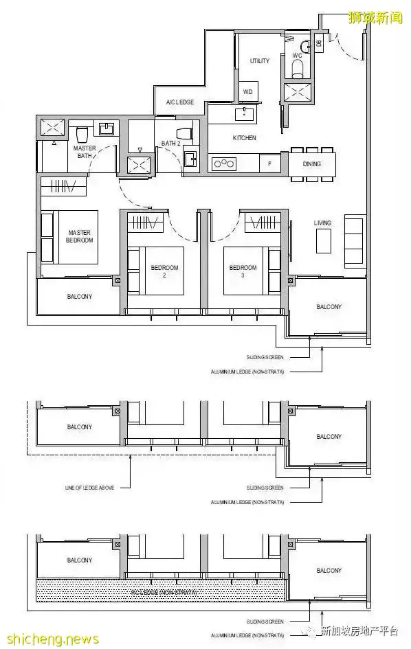
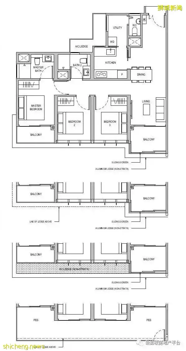
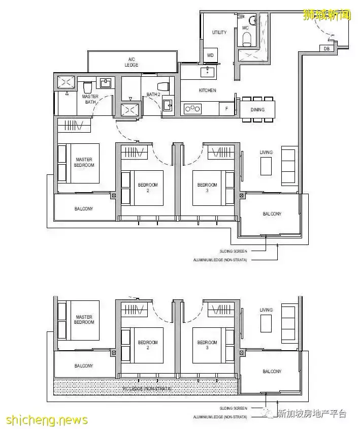
3A1-G戶型 3室 1012平方英尺/94平方米
25%首付:S$398,900 / 75%貸款:S$1,196,700
30年貸款,2%利息,月供:S$4,423
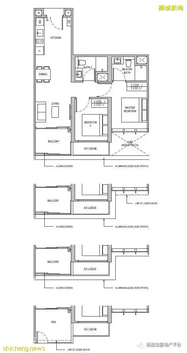
3室
新幣 S$1,515,600 起
3A2-G戶型 3室 958平方英尺/89平方米
25%首付:S$378,900 / 75%貸款:S$1,136,700
30年貸款,2%利息,月供:S$4,201
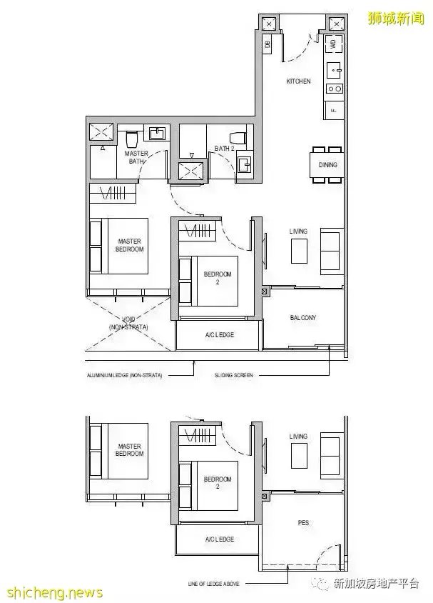
3室
新幣 S$1,570,200 起
3B1戶型 3室 1012平方英尺/94平方米
25%首付:S$392,550 / 75%貸款:S$1,177,650
30年貸款,2%利息,月供:S$4,353
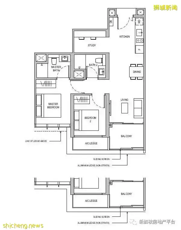
3室
新幣 S$1,691,600 起
3B1-G戶型 3室 1130平方英尺/105平方米
25%首付:S$422,900 / 75%貸款:S$1,268,700
30年貸款,2%利息,月供:S$4,689
3室
新幣 S$1,613,400 起
3B1a戶型 3室 1001平方英尺/93平方米
25%首付:S$403,350 / 75%貸款:S$1,210,050
30年貸款,2%利息,月供:S$4,473
3室
新幣 S$1,663,100 起
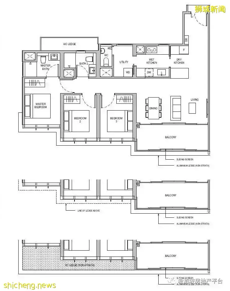
3B2戶型 3室 1023平方英尺/95平方米
25%首付:S$415,775 / 75%貸款:S$1,247,325
30年貸款,2%利息,月供:S$4,610
3室
新幣 S$1,787,300 起
3C1戶型 3室 1141平方英尺/106平方米
25%首付:S$446,825 / 75%貸款:S$1,340,475
30年貸款,2%利息,月供:S$4,955



























