項目簡介:
鑫悅府是一個99年的大型住宅項目,位于新加坡第5郵區,占地面積高達63593平方米,屬于數量稀缺的霸王級住宅項目,占地面積大帶來的好處是可以有大量和完善的公寓配套設施。總共1862個住宅單位,包括22個排屋、1個餐廳和7個零售單位,戶型從1臥室到5臥室供您選擇,由9棟24層樓高建築組成,現在已經打好地基,預計2023年第二季度就可以交房,交房快,很多新盤都需4年等待時間
獨特的賣點:
1. 南部瀕水新區待開發,坐等房産增值,最低只需1643/英尺起
2. 每個單位享受不同的無阻擋景觀,無敵海景、公園景觀或城市景觀
3. 霸王級的大型住宅小區,多達110項公寓配套設施
4. 享用大量公寓設施同時,居然物業費超便宜(5房$315/月)
5. 地點優越,靠近科學園區、緯壹科技園、亞曆山大商業走廊等
6. 優美環境,面朝大海,靠花柏山,肯特崗公園等自然景點
7. 整個小區按照80/20黃金分配比例,高效實用的戶型
8. 大型發展商聘請著名建築設計公司、園林規劃公司量身打造
9. 發展商提供兩年短程巴士服務到緯壹(One North)、波那維斯達地鐵站
銷量分析,合理的入場價格
鑫悅府地處其他中央區RCR,開車前往CBD、烏節路不到十分鍾,現在很多其他中央區RCR項目市場價$1900-2500/平方英尺,盛港大衆化公寓價格1700/平方英尺,發展商給出合理的定價,現在入場價格只需每平方英尺$1627起,誘人的入場價,開盤不到10個月已經賣出1280套,2021年銷量最佳樓盤之一 ,對于大型項目是相當可觀的銷售數據,自帶很多亮點是賣掉好的原因,可見群衆眼睛是雪亮的,這也是我爲什麽推薦鑫悅府的原因
巧妙設計概念:
鑫悅府的設計師巧妙的設計住宅樓都高出地面(設施層)18.8米,2樓相當于7樓的高度,這樣做帶來的好處不言而喻,可以保證每戶單位有良好采光同時,即使是低樓層的住戶也能享受良好的海景、公園景觀或城市景觀,360度無阻擋景觀,70%的單位可以欣賞到海景或者中央商業區的繁華景觀。設計師的靈感來自世界最大河流-亞馬遜河流,一個大型150米遊泳池和兩個50米的遊泳池,三個遊泳池互相連起來俯瞰像條河流,因爲項目面積實在太大,所以實際建築只占到了總面積的20%,剩下80%的面積用來綠化設計,在新加坡屬于超大型小區,經曆過疫情後,更多人選擇更大面積的小區,這樣小區配套設施特別多,還有很多設計細節看房時詳細介紹哦
優越的地理位置:
鑫悅府往東是便利的中央商業區CBD,往西邊是新加坡衆多高等學府如新加坡國立大學、南洋理工大學等,往北邊是植物園、荷蘭村,往南邊是富人島-聖淘沙島。比鄰政府規劃待開發的南部瀕水新區(Great Southern Waterfront),等開發轉型完成時,勢必帶動周邊的房價升值。步行幾分鍾即可到達科技園區I、II,靠近緯壹科技園OneNorth,大型辦公樓有Fusionpolis(數字傳媒、科學研發等)、Mediapolis(影片制作等)、Biopolis(生物制藥、日用品、化妝品公司研發等),這裏極有可能發展成爲新加坡科技中心,很多創業公司在這裏,”新加坡版的硅谷”,很多國際大型公司在這裏如寶潔公司、殼牌Shell、迪士尼、GSK醫療公司等,東南亞電商冬海集團SEA(Shopee母公司)在這一帶,大量的公司白領、藍領工作人士在這一帶工作,如研究人員、工程師、專家、教授、分析員等,這些都是屬于高收入人群,潛在的買房和租房這塊需求。
生活便利,商場林立
除了小區自帶的8個商業單位滿足您的日常生活外,可以駕車3~5分鍾到達女皇鎮一帶的Queensway Shopping Mall(主打體育運動類鞋子、衣服)、宜家家具城(IKEA Singapore)、AlexandraCentral Mall購物中心、Star Vista和新加坡最大的商場怡豐城VivoCity,裏面有大型超市、餐館、IMAX電影院、食閣、零售店等,全方位滿足您生活各方面需求。
交通便利前往全島各地
地處其他中央區RCR,家門口不遠處有AYE高速入口,方便的交通前往全島各地,只需約3分鍾車程可以到緯壹科技區,5分鍾車程可以到達世界頂尖學府-新加坡國立大學NUS,6分鍾車程可以到荷蘭村、鄧普西山享受美食,6分鍾車程可到宜家家具城(IKEA Singapore),解決您家裏添置家具的事情,或者去宜家餐廳享受美食。約6分鍾車程可到肯特崗公園Kent Ridge Park,可以去公園散步,貼近大自然享受健康生活。到港灣地鐵站的怡豐城Vivo City約9分鍾車程(新加坡最大商場),10分鍾車程可以到達中央商業區CBD,約11分鍾車程到烏節路購物街,11分鍾車程可以到達新加坡第二個CBD-裕廊商業區。
花柏山是新加坡著名的地標之一,很多新加坡本地人和遊客必經打卡之地,很多攝影愛好者喜歡來這裏拍漂亮的照片,如聖淘沙方向的海景圖片,徒步愛好者們必來地點之一。家人可攜帶小孩一起來花柏山座空中電纜車,欣賞漂亮的海景、聖淘沙島嶼景觀。
戶型和參考價格介紹:
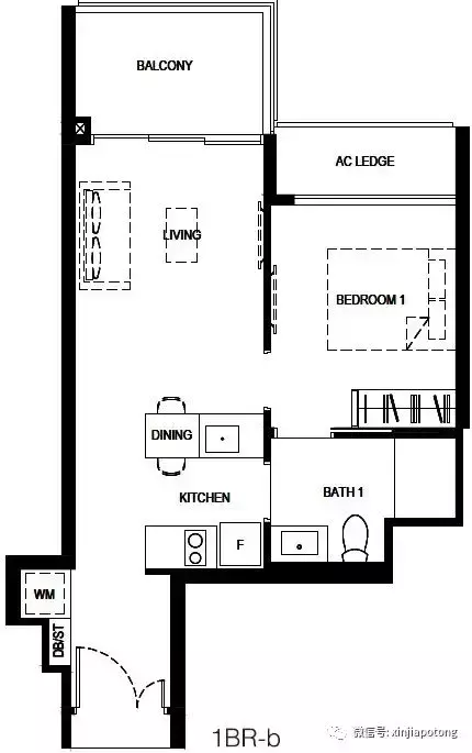
一臥室,49平方米,價格99.2萬新幣起,有44-61平方米
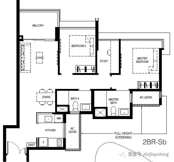
兩臥室+書房,下圖爲77平方米,價格154.2萬新幣起,面積77-91平方米
三臥室入門款,下圖爲90平方米,價格170.8萬新幣起
三臥室優質款,面積99平方米,配大陽台,遊泳池朝向,價格191萬新幣起
三臥室高級款,面積102平方米,配大陽台,遊泳池或公園海景朝向,價格197萬起
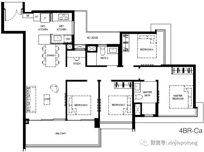
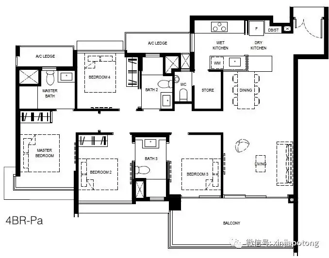
四臥室入門款,111平方米,大客廳配帶陽台,海景朝向,價格214.4萬新幣起
四臥室豪華款,122-124平方米,大客廳配帶陽台,海景朝向,價格232.8萬新幣起














