看房方式?
什麽樣的
你更喜歡
實地看房
3D虛擬看房?
亦或者看房型圖?
遠東機構 Parksuites
藝術效果圖
但無論你喜歡哪種方式,在最終合同上出現的、在裝修時使用的,也只有房型圖。可以說,房型圖是我們對房屋的最直觀參考。
Parksuites #03-40 單元
不過在解讀新加坡房型圖和買房時,我們常會發現諸多與中國不同的地方。爲此,遠東機構將爲您分享,初、中、高三個級別的看房買房“秘籍”,帶您初步掌握閱讀新加坡房型圖,了解新加坡買房的特殊講究。
初級
看懂圖示符號,謹慎拆牆
看懂新加坡房型圖的第一步,毋庸置疑是看懂圖中的符號,比如下圖中所示:
承重牆:不能拆除的,支撐上部樓層重量的牆體,打掉會破壞整個建築結構。通常爲較寬的黑色線條或方框。
活牆(非承重牆):可以拆除的,不支撐上部樓層重量的牆體,只起到隔開空間的作用。通常爲較窄的黑色線條或方框。
窗戶:多條線的中空方框。
門(向內開/向外開):虛線內的扇形面積,可能向屋內,也可能向屋外。
折疊門:多扇門組合而成的折疊開合門。
空調外機:用于安置空調外機的平台,通常會標示AC字樣。
陽台:由向外突出的細實線構成,如果有鋼筋混凝土結構會標示RC字樣。
樓梯:可連接上下樓層,由密集線條構成。
了解符號所示含義,我們可以初步掌握一套房子內的主要結構,以及圖中包含的設計細節。
除此之外,
我們還需要掌握三個必備“技巧”:
1、如果在購房前就想要調整屋內結構,請向開發商咨詢所拆牆體是否爲承重牆,避免購買後無法按計劃改造結構。因爲牆體不能輕易拆除,不同住宅的建設方法可能存在差異,承重牆的區分也可能存在差異。
2、看戶型圖時,要忽略圖片的色彩,以理解戶型結構爲主。
3、看戶型圖時,要忽略圖中家具設置,以比例尺爲准——避免以個人對家居尺寸的認識,影響對該房間面積的理解。
需要注意的是,新加坡房型圖所示總面積與所售面積基本一致,沒有中國大陸房産通常會包含“公攤面積”。因此,比例尺可以說是衡量新加坡房産面積的關鍵,可以與實際房屋效果作對比。
爲了更好地理解和掌握房型圖符號,您可以參考遠東機構Bijou項目的 #05-09單元房型圖,並與其3D虛擬看房效果進行對比,看看您理解對了嗎?
遠東機構
Bijou #05-09
Bijou項目的 #05-09單元,爲雙層雙鑰匙戶型(第二層分爲兩個臥室),第一層可以滿足生活、工作和接待客人的需求;同時,第二層的休息區與生活區分離,避免了相互的幹擾,可充分滿足一家三口的日常休息的需求。
遠東機構 Bijou #05-09單元
實景修飾圖
Bijou,一個將優雅生活提升至個性表達的住宅項目,擁有越來越少見的永久地契。項目由遠東機構傾力打造,區位優勢顯著:鄰近巴西班讓地鐵站,靠近衆多生活娛樂設施,數分鍾車程即達聖淘沙名勝世界、全島最大的休閑購物中心怡豐城及商務中心豐樹商業城,工作生活兩不誤。
中級
新加坡地理位置
對通風和采光的影響
只有初步對房型結構的了解,顯然不足以讓我們對住宅有全面的了解,而采光、通風是其中不可或缺的關鍵。但選擇朝向需要因地制宜:
新加坡靠近赤道,是名副其實的赤道國家。當太陽直射在南北回歸線做周期移動時,日出日落的方向會出現周期變化,新加坡房屋的采光也會有周期變化,因此傳統認爲房屋“坐北朝南”會更好的標准,可能並不完全適用于新加坡。
遠東機構 Parksuites
藝術效果圖
在新加坡買房,大家可以根據自己對陽光的喜好選擇朝向:
對光照偏好一般,想盡量避免“西曬”,可以選擇正南或正北的房子,但6月的正北和12月的正南方向,也會存在“西曬”,但受影響較少,因此這兩個朝向的房子總體會較涼爽;
但喜歡光照,想避免潮濕生黴的問題,朝東和朝西的房子也是可以選擇的,但建議最好有偏南或偏北的傾斜,避免3月和9月太陽直射帶來的“西曬”、“東曬”問題;
在最熱的6月,西北朝向的房子“西曬”最明顯,因此如果怕熱,東南朝向的房子可能更適合您。
遠東機構 Parksuites
藝術效果圖
由于新加坡的兩個不同季風季候:6~9月吹西南方向的季風,風較爲幹燥;12月~次年3月吹東北方向的季風,風較爲潮濕。因此,根據個人通風的習慣選擇朝向時:
如果希望能在6~9月前後享受到自然風,可以選擇正南或西南方向的房屋;
如果希望在12~次年3月享受到自然風,可以選擇正北或東北方向的房屋;
當然,如果希望全年都能享受到自然風,需要選擇南北通透的房屋。
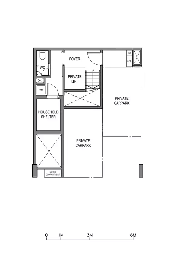
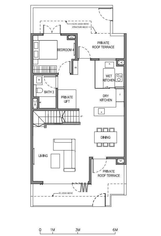
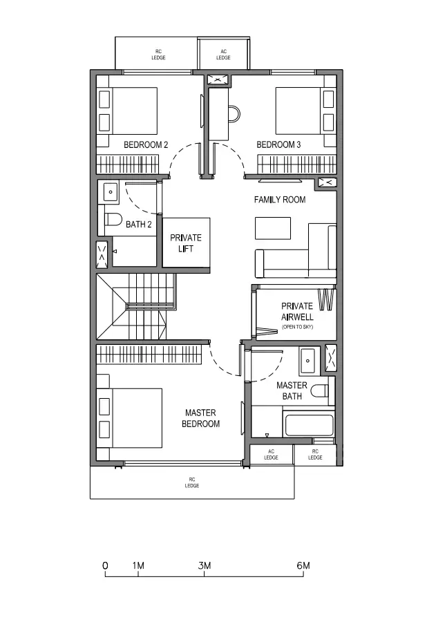
結合采光和通風,您可以爲您的偏好進行優先次序排列,選出最適合您的朝向。如果以遠東機構 Parksuites 項目的 #03-40/03-41/03-42 單元的房型圖爲例:
向下滑動查看
在采光和通風上:#03-40/03-41/03-42 單元房屋主體近似南北朝向(指南針的N爲正北),采光良好,“西曬”影響小;房屋整體南北通透,三樓還設有通風井,通風無虞。這個房型對于喜歡通風順暢以及“小西曬”的人來說,無疑是一個心儀之選。
高級
舒適的居家房型是什麽樣?
考慮到采光和通風,房屋結構基本滿意,您的挑房之旅就結束了嗎?我們或許還可以更多一些生活性地思考,比如考慮房屋的動線、動靜分區,並契合家庭成員的結構。
動線:人們在室內室外移動時,將移動的路徑和駐足點連接起來,所構成的路徑線,即動線。
動靜分區:動區(客廳、餐廳、廚房、明衛)與靜區(臥室、書房、暗衛)分明,既方便會客、娛樂或者家務的開展,也不會使得休息、學習受到過多打擾。動區通常更臨近入戶門,靜區則遠離大門並保持一定的隱私性。
我們仍以遠東機構 Parksuites 項目的 #03-40/03-41/03-42 單元的房型圖爲例:
項目分爲三層,我們可以看到,項目的動線完全在一層和二層之中——從爲一層入戶層進入後,動區完全位于二層。
同時,三層夠成爲完美的靜區,該房型以空間方式完全隔絕了動區和靜區,保證了家庭成員的生活隱私性,同時還擁有獨立的戶內電梯,讓行動不便的家庭成員有了出行安全保障。
這可以說是一個滿足三代同堂,幸福生活的理想居所。
Parksuites(綠茵翠苑)——藏在新加坡綠茵之中的“公寓別墅”,坐落于新加坡優尚第十區。
受到公園景觀的啓發,理想家園Parksuites從此誕生。由知名的DP建築師事務所操刀,Parksuites將景觀公園與獨特魅力的居所環境緊密融合,呈上綠意盎然的悉心設計。
當然,每個人對于理想房型的需求各有不同,有的人喜歡陽光照射每一角落,有的人喜歡多一些更私密的空間;有的人喜歡徐徐的微風,有的人喜歡空調的涼爽……因人而異的需求,也讓房型變化萬千,如果您想找到更適合您的房型,線下實地感受肯定是最直觀的。





















