熱 / 賣 / 好 / 房
臨近地鐵的永久産權公寓
近期熱賣!余量不多!
The Gazania 迎昕園
1室、2室、2室+書房、3室、4室、4室+書房及頂層閣樓等戶型,滿足多樣化居住訴求
永久産權,D19郵區,稀缺小高層,余量不多!
簡介
The Gazania 迎昕園
位于5-19 How Sun Drive, Singapore,是由新加坡知名房地産開發商SingHaiyi Group Ltd(新海逸集團有限公司)開發的公寓項目。該項目樓宇均爲7層,共計250個住宅單元,戶型包含1室、2室、2室+書房、3室、3室Premium、4室、4室+書房及頂層閣樓等多樣化設計,滿足不同人群的居住需求。該項目所在位置交通便利,近Bartley MRT地鐵站,附近生活設施齊全,購物休閑十分方便,教育資源豐富。
新加坡郵區分布圖 ,
樓盤概況
樓盤名稱:The Gazania 迎昕園
開發商:Singhaiyi Group Ltd
産權:永久産權
預計完成時間:2022年12月
單位數量:250
樓層數量:7
起始總價:新幣 S$959,000
每平方英尺起始:新幣 S$2,175
賣點
臨近地鐵 永久産權
7層低密樓宇 僅250戶
· 1-4室等多種戶型可供選擇,更有躍層及頂層閣樓,不論是單身貴族,還是多口家庭,都能在此覓得溫馨家園
· 優秀的內部空間設計,讓生活更加舒適舒心
· 配備品質廚衛家具,選用品牌包含:Electrolux,Grohe,Laufen和Samsung等
· 引入智能家居特色,主入口采用QR Code掃描
· 客廳和臥室采用USB通用充電插座,兼顧效率、方便和安全性
· 交通便利,步行3分鍾即達Bartley MRT地鐵站
· 附近諸多購物中心,如:Kovan Heartland Mall,Paya Lebar Square等,走路幾分鍾就到Nex Shopping Mall
· 比鄰優質學校,如:Maris Stella High School,Paya Lebar Methodist Girls’ School,St. Gabriel’s Secondary School和Stamford American International School
· 周圍各種休閑娛樂設施,家庭出行或朋友聚會十分方便
· 3室及以上戶型開通煤氣
戶型分布
主力戶型
1室
新幣 S$959,000 起
A1戶型 1室 441平方英尺/41平方米
25%首付:S$239,750 / 75%貸款:S$719,250
30年貸款,2%利息,月供:S$2,658
1室
新幣 S$1,004,000 起
A1P戶型 1室 441平方英尺/41平方米
25%首付:S$251,000 / 75%貸款:S$753,000
30年貸款,2%利息,月供:S$2,783
1室
新幣 S$962,000 起
A2戶型 1室 463平方英尺/43平方米
25%首付:S$240,500 / 75%貸款:S$721,500
30年貸款,2%利息,月供:S$2,667
1室
新幣 S$1,045,000 起
A2P戶型 1室 463平方英尺/43平方米
25%首付:S$261,250 / 75%貸款:S$783,750
30年貸款,2%利息,月供:S$2,897
1室
新幣 S$968,000 起
A3戶型 1室 441平方英尺/41平方米
25%首付:S$242,000 / 75%貸款:S$726,000
30年貸款,2%利息,月供:S$2,683
1室
新幣 S$984,000 起
A3P戶型 1室 441平方英尺/41平方米
25%首付:S$246,000 / 75%貸款:S$738,000
30年貸款,2%利息,月供:S$2,728
1室
新幣 S$1,049,000 起
A4戶型 1室 463平方英尺/43平方米
25%首付:S$262,250 / 75%貸款:S$786,750
30年貸款,2%利息,月供:S$2,908
1室
新幣 S$1,051,000 起
A4P戶型 1室 463平方英尺/43平方米
25%首付:S$262,750 / 75%貸款:S$788,250
30年貸款,2%利息,月供:S$2,914
2室
新幣 S$1,396,000 起
B1戶型 2室 635平方英尺/59平方米
25%首付:S$349,000 / 75%貸款:S$1,047,000
30年貸款,2%利息,月供:S$3,870
2室
新幣 S$1,393,000 起
B1P戶型 2室 635平方英尺/59平方米
25%首付:S$348,250 / 75%貸款:S$1,044,750
30年貸款,2%利息,月供:S$3,862
2室
新幣 S$1,376,000 起
B2戶型 2室 635平方英尺/59平方米
25%首付:S$344,000 / 75%貸款:S$1,032,000
30年貸款,2%利息,月供:S$3,814
2室
新幣 S$1,379,000 起
B2P戶型 2室 635平方英尺/59平方米
25%首付:S$344,750 / 75%貸款:S$1,034,250
30年貸款,2%利息,月供:S$3,823
2室
新幣 S$1,342,000 起
B3戶型 2室 624平方英尺/58平方米
25%首付:S$335,500 / 75%貸款:S$1,006,500
30年貸款,2%利息,月供:S$3,720
2室
新幣 S$1,345,000 起
B3P戶型 2室 624平方英尺/58平方米
25%首付:S$336,250 / 75%貸款:S$1,008,750
30年貸款,2%利息,月供:S$3,729
2室
新幣 S$1,523,000 起
B4戶型 2室 678平方英尺/63平方米
25%首付:S$380,750 / 75%貸款:S$1,142,250
30年貸款,2%利息,月供:S$4,222
2室
新幣 S$1,526,000 起
B4P戶型 2室 678平方英尺/63平方米
25%首付:S$381,500 / 75%貸款:S$1,144,500
30年貸款,2%利息,月供:S$4,230
2室
新幣 S$1,325,000 起
B5P戶型 2室 624平方英尺/58平方米
25%首付:S$331,250 / 75%貸款:S$993,750
30年貸款,2%利息,月供:S$3,673
2室
新幣 S$1,452,000 起
B8戶型 2室 657平方英尺/61平方米
25%首付:S$363,000 / 75%貸款:S$1,089,000
30年貸款,2%利息,月供:S$4,025
2室
新幣 S$1,471,000 起
B8P戶型 2室 657平方英尺/61平方米
25%首付:S$367,750 / 75%貸款:S$1,103,250
30年貸款,2%利息,月供:S$4,078
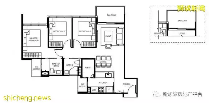
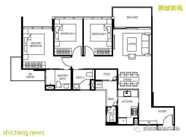
2室+書房
新幣 S$1,455,000 起
B6戶型 2室+Study 700平方英尺/65平方米
25%首付:S$363,750 / 75%貸款:S$1,091,250
30年貸款,2%利息,月供:S$4,033
2室+書房
新幣 S$1,485,000 起
B6P戶型 2室+Study 689平方英尺/64平方米
25%首付:S$361,250 / 75%貸款:S$1,113,750
30年貸款,2%利息,月供:S$4,117
2室+書房
新幣 S$1,512,000 起
B7戶型 2室+Study 678平方英尺/63平方米
25%首付:S$378,000 / 75%貸款:S$1,134,000
30年貸款,2%利息,月供:S$4,191
2室+書房
新幣 S$1,515,000 起
B7P戶型 2室+Study 678平方英尺/63平方米
25%首付:S$378,750 / 75%貸款:S$1,136,250
30年貸款,2%利息,月供:S$4,191
3室
新幣 S$1,803,000 起
C4A戶型 3室 904平方英尺/84平方米
25%首付:S$450,750 / 75%貸款:S$1,352,250
30年貸款,2%利息,月供:S$4,998
3室
新幣 S$1,848,000 起
C4AP戶型 3室 904平方英尺/84平方米
25%首付:S$462,000 / 75%貸款:S$1,386,000
30年貸款,2%利息,月供:S$5,123
3室
新幣 S$2,020,000 起
C4B戶型 3室 915平方英尺/85平方米
25%首付:S$505,000 / 75%貸款:S$1,515,000
30年貸款,2%利息,月供:S$5,600
3室
新幣 S$2,024,000 起
C4BP戶型 3室 915平方英尺/85平方米
25%首付:S$506,000 / 75%貸款:S$1,518,000
30年貸款,2%利息,月供:S$5,611
3室
新幣 S$1,866,000 起
C5戶型 3室 904平方英尺/84平方米
25%首付:S$466,500 / 75%貸款:S$1,399,500
30年貸款,2%利息,月供:S$5,173
3室
新幣 S$1,806,000 起
C6戶型 3室 883平方英尺/82平方米
25%首付:S$451,500 / 75%貸款:S$1,354,500
30年貸款,2%利息,月供:S$5,007
3室
新幣 S$1,810,000 起
C6P戶型 3室 883平方英尺/82平方米
25%首付:S$452,500 / 75%貸款:S$1,357,500
30年貸款,2%利息,月供:S$5,018
3室
新幣 S$1,772,000 起
C7戶型 3室 850平方英尺/79平方米
25%首付:S$443,000 / 75%貸款:S$1,329,000
30年貸款,2%利息,月供:S$4,912
3室
新幣 S$1,776,000 起
C7P戶型 3室 850平方英尺/79平方米
25%首付:S$444,000 / 75%貸款:S$1,332,000
30年貸款,2%利息,月供:S$4,923
3室Premium
新幣 S$2,036,000 起
C1戶型 3室Premium 990平方英尺/92平方米
25%首付:S$509,000 / 75%貸款:S$1,527,000
30年貸款,2%利息,月供:S$5,644
3室Premium
新幣 S$2,040,000 起
C1P戶型 3室Premium 990平方英尺/92平方米
25%首付:S$510,000 / 75%貸款:S$1,530,000
30年貸款,2%利息,月供:S$5,655
3室Premium
新幣 S$2,213,000 起
C2戶型 3室Premium 1055平方英尺/98平方米
25%首付:S$553,250 / 75%貸款:S$1,659,750
30年貸款,2%利息,月供:S$6,135
3室Premium
新幣 S$2,218,000 起
C2P戶型 3室Premium 1055平方英尺/98平方米
25%首付:S$554,500 / 75%貸款:S$1,663,500
30年貸款,2%利息,月供:S$6,149
3室Premium
新幣 S$1,942,000 起
C3戶型 3室Premium 958平方英尺/89平方米
25%首付:S$485,500 / 75%貸款:S$1,456,500
30年貸款,2%利息,月供:S$5,384
3室Premium
新幣 S$1,975,000 起
C3P戶型 3室Premium 958平方英尺/89平方米
25%首付:S$493,750 / 75%貸款:S$1,481,250
30年貸款,2%利息,月供:S$5,475
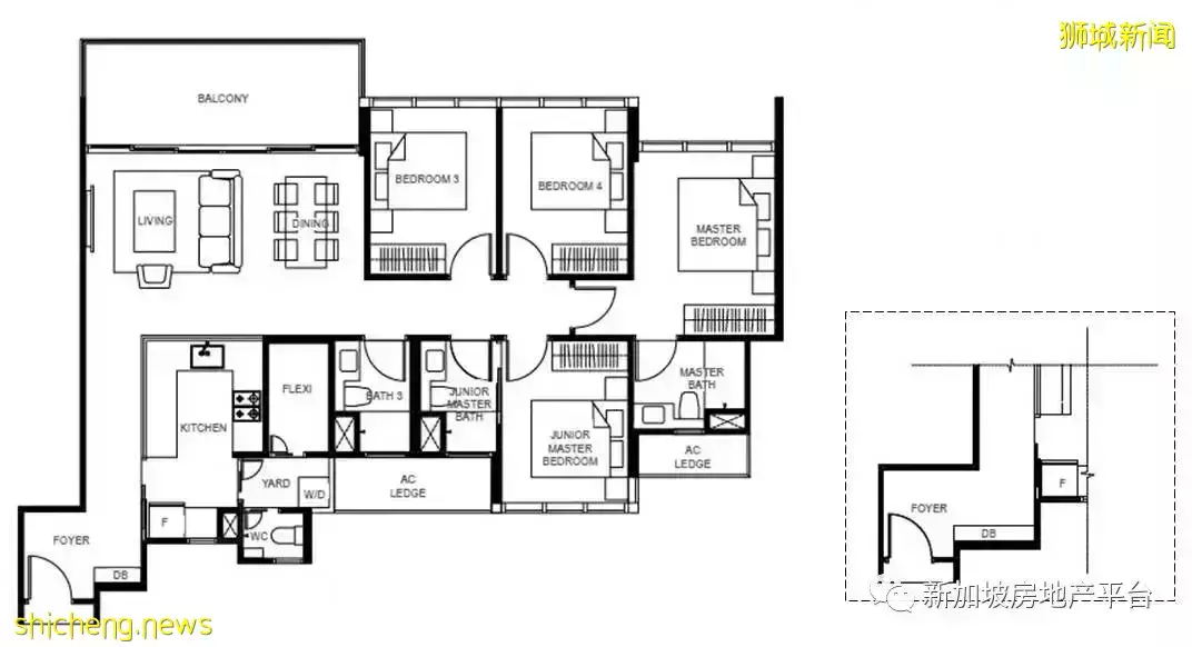
4室
新幣 S$2,715,000 起
D1C戶型 4室 1291平方英尺/120平方米
25%首付:S$678,750 / 75%貸款:S$2,036,250
30年貸款,2%利息,月供:S$7,526
4室
新幣 S$2,579,000 起
D2戶型 4室 1281平方英尺/119平方米
25%首付:S$644,750 / 75%貸款:S$1,934,250
30年貸款,2%利息,月供:S$7,149
4室
新幣 S$2,694,000 起
D3B戶型 4室 1259平方英尺/117平方米
25%首付:S$673,500 / 75%貸款:S$2,020,500
30年貸款,2%利息,月供:S$7,468
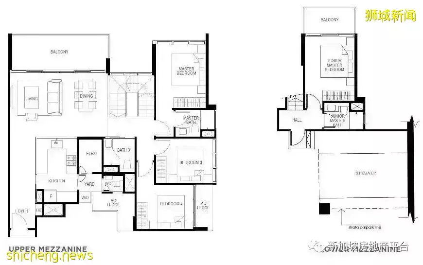
4室
新幣 S$3,514,000 起
D3BM戶型 4室 1744平方英尺/162平方米
25%首付:S$878,500 / 75%貸款:S$2,635,500
30年貸款,2%利息,月供:S$9,741
左:上層戶型圖 右:下層戶型圖
4室
新幣 S$2,669,000 起
D4戶型 4室 1302平方英尺/121平方米
25%首付:S$667,250 / 75%貸款:S$2,001,750
30年貸款,2%利息,月供:S$7,399
4室
新幣 S$3,205,000 起
D6AM戶型 4室 1765平方英尺/164平方米
25%首付:S$801,250 / 75%貸款:S$2,403,750
30年貸款,2%利息,月供:S$8,885
左:上層戶型圖 右:下層戶型圖
4室
新幣 S$3,314,000 起
D6BM戶型 4室 1851方英尺/172平方米
25%首付:S$828,500 / 75%貸款:S$2,485,500
30年貸款,2%利息,月供:S$9,187
左:上層戶型圖 右:下層戶型圖
4室+書房
新幣 S$3,460,000 起
D1AM戶型 4室+Study 1819平方英尺/169平方米
25%首付:S$865,000 / 75%貸款:S$2,595,000
30年貸款,2%利息,月供:S$9,592
上層戶型圖:
下層戶型圖:
4室+書房
新幣 S$3,524,000 起
D1BM戶型 4室+Study 1830平方英尺/170平方米
25%首付:S$881,000 / 75%貸款:S$2,595,000
30年貸款,2%利息,月供:S$9,769
上層戶型圖:
下層戶型圖:
4室+書房
新幣 S$3,383,000 起
D1CM戶型 4室+Study 1711平方英尺/159平方米
25%首付:S$845,750 / 75%貸款:S$2,537,250
30年貸款,2%利息,月供:S$9,378
上層戶型圖:
下層戶型圖:
4室+書房
新幣 S$3,477,000 起
D2M戶型 4室+Study 1841平方英尺/171平方米
25%首付:S$869,250 / 75%貸款:S$2,607,750
30年貸款,2%利息,月供:S$9,639
上層戶型圖:
下層戶型圖:
4室+書房
新幣 S$2,720,000 起
D3A戶型 4室+Study 1292平方英尺/120平方米
25%首付:S$680,000 / 75%貸款:S$2,040,000
30年貸款,2%利息,月供:S$7,540
4室+書房
新幣 S$3,490,000 起
D3AM戶型 4室+Study 1765平方英尺/164平方米
25%首付:S$872,500 / 75%貸款:S$2,617,500
30年貸款,2%利息,月供:S$9,675
上層戶型圖:
下層戶型圖:
4室+書房
新幣 S$3,545,000 起
D4M戶型 4室+Study 1841平方英尺/171平方米
25%首付:S$886,250 / 75%貸款:S$2,658,750
30年貸款,2%利息,月供:S$9,827
上層戶型圖:
下層戶型圖:
4室+書房
新幣 S$3,253,000 起
D5M戶型 4室+Study 1744平方英尺/162平方米
25%首付:S$813,250 / 75%貸款:S$2,439,750
30年貸款,2%利息,月供:S$9,018
上層戶型圖:
下層戶型圖:
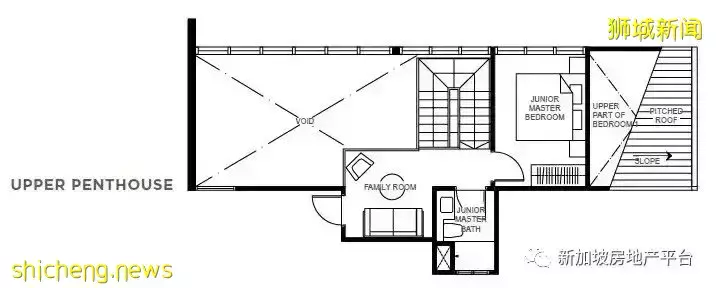
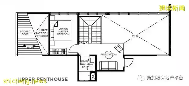
頂層閣樓
新幣 S$3,558,000 起
PH3戶型 Penthouse 1819平方英尺/169平方米
25%首付:S$889,500 / 75%貸款:S$2,668,500
30年貸款,2%利息,月供:S$9,863
上層戶型圖:
下層戶型圖:
頂層閣樓
新幣 S$3,638,000 起
PH4戶型 Penthouse 1862平方英尺/173平方米
25%首付:S$909,500 / 75%貸款:S$2,728,500
30年貸款,2%利息,月供:S$10,085
上層戶型圖:
下層戶型圖:
頂層閣樓
新幣 S$3,698,000 起
PH5戶型 Penthouse 1808平方英尺/168平方米
25%首付:S$924,500 / 75%貸款:S$2,773,500
30年貸款,2%利息,月供:S$10,251
上層戶型圖:
下層戶型圖:
頂層閣樓
新幣 S$3,718,000 起
PH6戶型 Penthouse 1851平方英尺/172平方米
25%首付:S$929,500 / 75%貸款:S$2,788,500
30年貸款,2%利息,月供:S$10,307
上層戶型圖:
下層戶型圖:
頂層閣樓
新幣 S$3,980,000 起
PH7戶型 Penthouse 1970平方英尺/183平方米
25%首付:S$995,000 / 75%貸款:S$2,985,000
30年貸款,2%利息,月供:S$11,033
上層戶型圖:
下層戶型圖:
公衆號:新加坡地産平台 樓盤 · 新加坡 · 資訊


































































