
Right Angle Studio新作,一個年輕的3口之家,面積145㎡,高高的天花板和客廳窗戶上方的巨大弧線是該公寓的獨特之處,並將其與其他單元區分開來。將開放式體量與簡單的日本風格內飾相結合,使用天然白蠟木和天然大理石作爲空間的主要材料。
Right Angle Studio
Right Angle Studio總部位于新加坡,由Alex Liu和Jay創建,是一家室內設計事務所,致力于打造永恒且引人入勝的空間。
其他新作
Mk-Residence
90㎡的單身公寓,作爲重新定義新加坡公共住房空間邊界的挑戰,深色橡木與白色大理石地板目得益彰營適出空間平衡感。
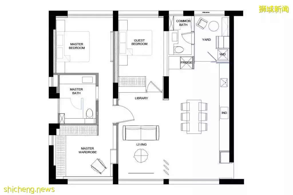
平面布局


































