位于義順的新執行共管公寓項目(EC)North Gaia將在本月推出銷售,這是今年首個登場的EC項目,預計將取得亮眼的銷售成績,獲得組屋提升者的青睐。
這個項目包括11座樓高14層的住宅大樓,共有616單位,4月7日起開放展廳供買家預覽及啓動電子申請。項目預期2027年竣工。
項目發展商星控股(Sing Holdings)在2020年10月以3億7350萬元在政府售地計劃標得上述地段,出價相當于每平方英尺576元。
義順上一輪推出EC項目是2015年的梨景園(Signature at Yishun,525個單位)和頂秀苑(The Criterion,505個單位)。
Signature at Yishun 2015年 梨景園
頂秀苑 The Criterion
這兩個EC皆達到最低居住年限(MOP)的要求,在轉售市場開始活躍,從去年6月至今分別有14個和九個單位易主,轉售尺價最高達1019元。
義順區內基礎設施完善,有不少購物中心、學校和醫院,包括納福城(Northpoint City)、卉合坊(Junction 9)和邱德拔醫院等。
由于這一帶的私宅項目不多,因此都很吃香。除了North Gaia隔壁的雅韻軒(Symphony Suites,660個單位)之外,也有結合購物商場與住宅于一體的綜合項目卉合軒(Nine Residences,186個單位)和北園公寓(North Park Residences,920個單位),這些項目都屬于99年地契,屋齡都少于七年。
其中,雅韻軒由益民林發展公司(EL Development)發展,項目在2015年正式推出,當時平均尺價1000元左右。該項目2019年竣工,在轉售市場也相當活躍,從去年1月至今共有58個單位易主,轉售尺價最高達1242元。
卉合軒則由集永成(Chip Eng Seng)子公司發展,項目與卉合坊結合,在2015年竣工,從去年1月至今共有14個單位易主,銷售尺價最高達1272元。
北園公寓 轉售價偏高
由星獅地産(Frasers Property)發展的北園公寓位于義順地鐵站旁邊,與納福城結合。該項目在2015年4月推出後的四天內售出了413個單位,到2018年1月售罄,在2020年竣工。從去年1月至今,項目共有52個單位易主,當中五個單位的銷售尺價超過1700元,顯著高于周圍記錄。若以三臥室單位爲例,今年3月份轉售價爲1653元,相比2017年5月同類型單位的銷售尺價,增長逾27%。
TVRFeExqWTFMamN4TGpJd09RPT0=
租賃市場方面,北園公寓最受租客歡迎,今年首兩個月簽訂36份租約,二臥室和三臥室單位的每月租金分別最高達3700元和4100元。
雅韻軒和卉合軒則簽訂16份和六份租約,二臥室單位的月租最高達2600元和3000元。
位于義順的新執行共管公寓項目(EC)North Gaia將在本月推出銷售,這是今年首個且唯一登場的EC項目:
從希臘女神圭亞那裏汲取靈感並擬人化, North Gaia 結合了該物業的兩個突出元素 – 它位于新加坡新興的北部地區,靠近和從屬周圍自然環境的優勢。
2022 年最受期待的EC開盤!
綜合公寓設施
優質飾面和配件
Khatib Bongsu 自然公園旁邊(壯觀的景色)
選定單元的客廳/餐廳/臥室的高天花板
選定的三居室單位提供靈活/可選的改造方案
選定單位的主臥室配備內置衣櫃
項目詳情
項目名稱: North Gaia
發展商: 上市公司Sing Holdings
地契: 99年
區域: D27 – 三巴旺/義順
建築面積: 21,514 平方米
項目規模: 616間,11棟14層高的大樓
項目地址: Yishun close
預計交房時間: 2027 六月
North Gaia由新加坡上市公司Sing Holdings 開發打造。項目位于中央區外OCR範圍,新加坡北部,第D27郵區義順/三巴旺區,擁有99産權。
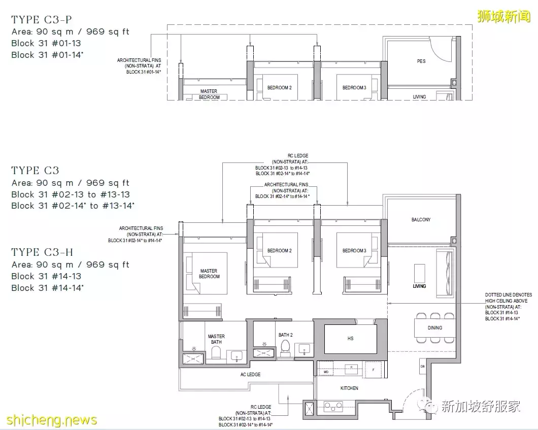
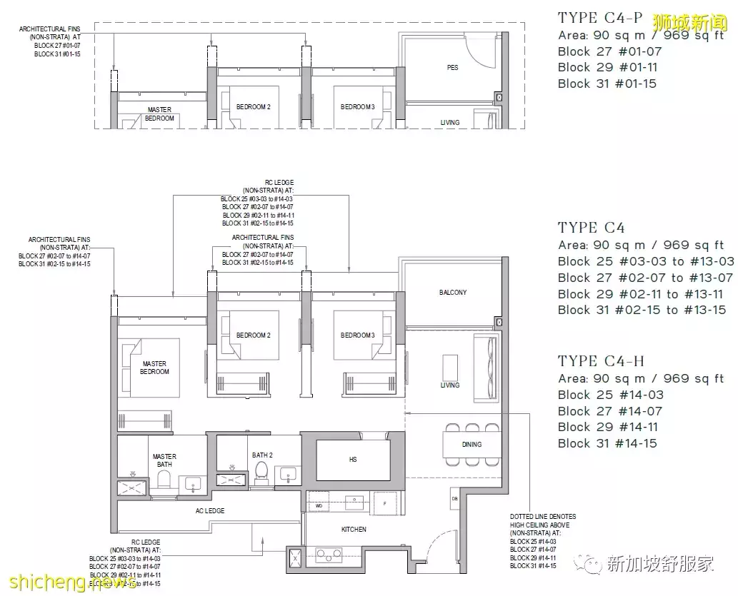
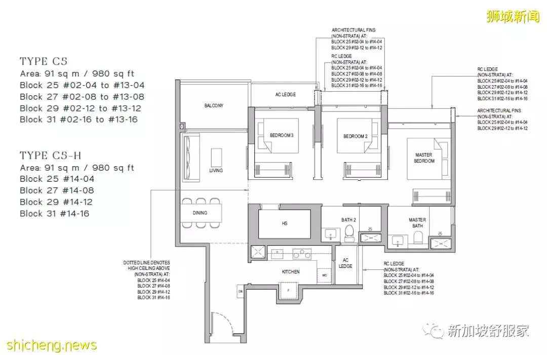
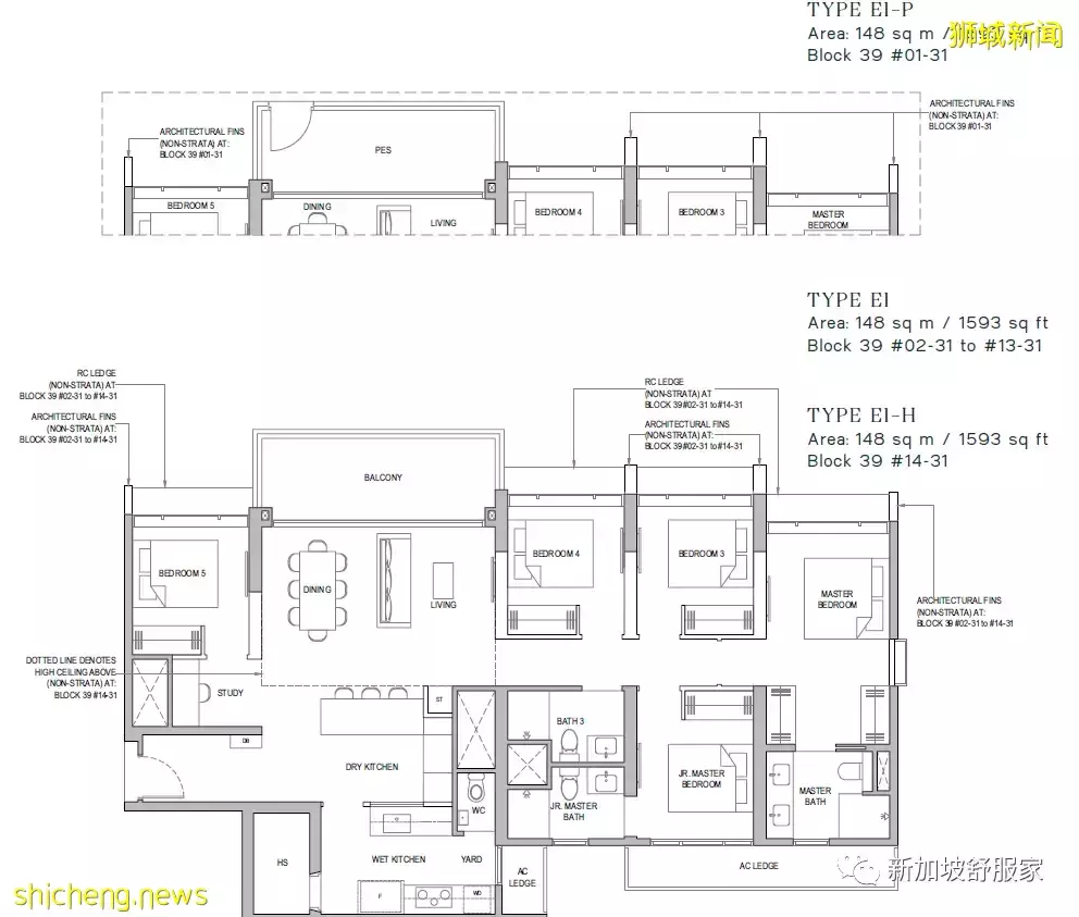
總占地面積約爲21,514平方米,由11棟高14層的建築組成,共提供616個住宅單位,戶型分布從3臥至5臥(面積從89平方米至147平方米),預計將于2027年六月取得臨時入夥證(TOP)。
展廳和實際項目地點
位置及周邊
North Gaia EC 位于新開的路Yishun close, 靠近卡迪公園,大部分單位可以享受無遮擋的森林景觀。
同時他距離商城Junction 9僅5分鍾步行路程,讓未來居民步行片刻即可到達餐廳,超市,美食廣場和商店。滿足日常生活所需。北部最大的商城納福城North point city也在12分鍾步行距離之內,提供一站式的購物需求。不僅如此,未來的堪培拉廣場Canberra Plaza僅在一站地鐵距離之遙,該廣場設有豐富的便利設施,如美食廣場,超市,零售商店,教育中心,醫療設施等。
乘搭公共運輸的朋友,步行12分鍾或者乘搭家門口的巴士就可以到義順巴士總站,或者位于南北線的義順地鐵站,從這裏去烏節路市中心僅22分鍾。
開車的朋友通過義順8道到非常容易到達CTE, TPE 等各大高速公路,從而快速到達烏節路,中央商務區,樟宜機場等重要地點。未來的南北大道開通將進一步縮短North Gaia 到達市區的距離。
附近的小學除了著名的崇福小學在一公裏內,還有海軍部小學,義順小學,西山小學,華民小學等。以及中正中學,北國中學。國際學校GEMS也近在咫尺。
總結來說,North Gaia 滿足以下的要素:
結合自然環境,水,樹,天然公園
名校1公裏,爲孩子做最好的准備
房型設計寬敞明亮大方
到市場、餐館、零售商店和學校的步行距離
通過道路、主要高速公路和地鐵站與新加坡的重要地區有著良好的連接性。靠近義順巴士總站和地鐵站。
靠近實裏達航空航天公園和 GEMS 國際學校有出租潛力。
靠近診所和醫院:Yishun 社區和 Khoo Teck Puat 醫院。
附近多所小學和中學。
樓盤南北朝向
項目外觀設計
項目室內設計
室內設計配置
1. 廚房配有Brandt 抽油煙機、爐竈和烤箱。
2. 品牌豪華衛浴潔具及配件,比如高儀和美標。
3. 所有4BR 和 5BR 的衣櫃配件櫃提供主臥室。
4. Solid Surface 廚房台面供應。
5. 4 臥室的所有幹廚房都提供廚房櫃台和 5 臥室單位。
6. 主浴室和公共浴室配有角閥,未來可能提供坐浴盆噴霧。
智能家居系統
房型室內改造靈活性高
戶型設計
3臥室
3臥室+小庭院(Yard)
3臥室+小庭院(Yard)+書房
4臥室
5臥室
部分信息來自《聯合早報》:https://www.zaobao.com.sg/finance/singapore/story20220402-1258497






















































































