3室-5室戶型,99年産權,D27郵區,休閑設施齊備,北部地區宜居之選!
簡介
North Gaia 位于D27郵區,Yishun Close, Singapore,是由Sing Holdings (Yishun) Pte Ltd開發的執行共管公寓(Executive Condominium)項目。該項目包含11幢樓宇,均爲14層,總計616個住宅單元,預計2027年6月完工。戶型包含3室、3室+庭院、3室+庭院+書房、4室及5室,單戶面積區間958-1593平方英尺,可滿足不同類型的居住需求。
園區各種生活休閑設施齊全,包含:業主會所、泳池、網球場及地下停車場等。園區內綠化設計清新雅致,是十分宜居的置業之選。
新加坡郵區分布圖 ,
樓盤概況
樓盤名稱:North Gaia
開發商:Sing Holdings (Yishun) Pte Ltd
産權:99年
預計完成時間:2027年6月
單位數量:616
樓層數量:14
起始總價:新幣 S$
每平方英尺起始:新幣 S$
賣點
北部宜居之選
· 3室-5室等多種戶型可供選擇,寬敞的內部空間設計
· 園區內設施齊全,包括:業主會所、遊泳池、網球場、地下兩層停車場等
交通便利
· 臨近Yishun MRT地鐵站
· 臨近Yishun Bus Interchange公交換乘站
· 臨近Central Expressway (CTE) 快速路入口
教育資源
· North View Secondary School
· Chongfu Primary School
· Huamin Primary School
· Yishun Junior School
· Northland Secondary School
· International School GEMS World Academy
自然環境
· SAFRA Yishun Country Club
· Orchid Country Club
· Lower Seletar Reservior Park
· Yishun Pond
購物中心
· Junction Nine
· Northpoint Shopping Centre
· Sembawang Shopping Centre
· Northpoint City
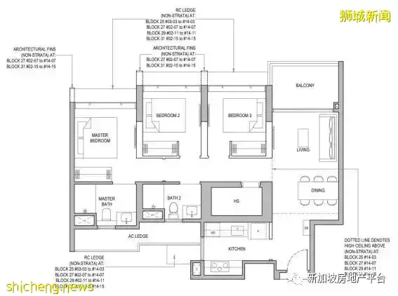
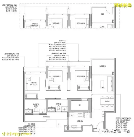
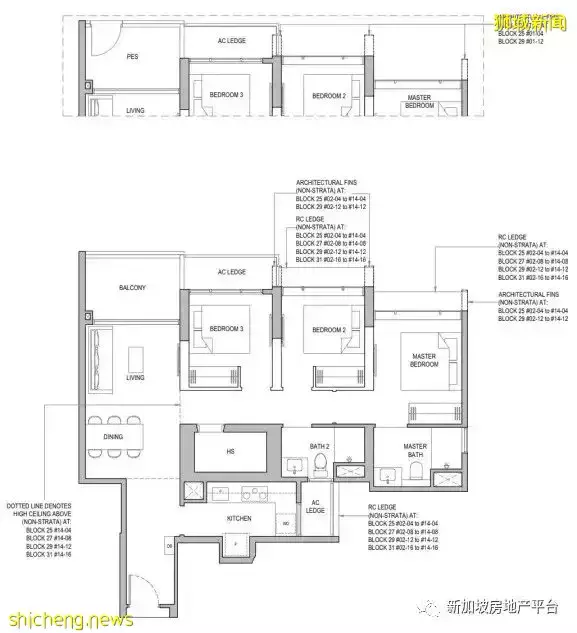
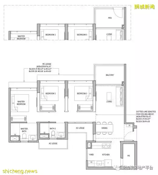
戶型分布
主力戶型
3室
新幣 S$ 起
C1戶型 3室 958平方英尺/89平方米
25%首付:S$ / 75%貸款:S$
30年貸款,2%利息,月供:S$
3室
新幣 S$ 起
C1-H戶型 3室 958平方英尺/89平方米
25%首付:S$ / 75%貸款:S$
30年貸款,2%利息,月供:S$
3室
新幣 S$ 起
C1-P戶型 3室 958平方英尺/89平方米
25%首付:S$ / 75%貸款:S$
30年貸款,2%利息,月供:S$
3室
新幣 S$ 起
C2戶型 3室 958平方英尺/89平方米
25%首付:S$ / 75%貸款:S$
30年貸款,2%利息,月供:S$
3室
新幣 S$ 起
C2-H戶型 3室 958平方英尺/89平方米
25%首付:S$ / 75%貸款:S$
30年貸款,2%利息,月供:S$
3室
新幣 S$ 起
C3戶型 3室 969平方英尺/90平方米
25%首付:S$ / 75%貸款:S$
30年貸款,2%利息,月供:S$
3室
新幣 S$ 起
C3-H戶型 3室 969平方英尺/90平方米
25%首付:S$ / 75%貸款:S$
30年貸款,2%利息,月供:S$
3室
新幣 S$ 起
C3-P戶型 3室 969平方英尺/90平方米
25%首付:S$ / 75%貸款:S$
30年貸款,2%利息,月供:S$
3室
新幣 S$ 起
C4戶型 3室 969平方英尺/90平方米
25%首付:S$ / 75%貸款:S$
30年貸款,2%利息,月供:S$
3室
新幣 S$ 起
C4-H戶型 3室 969平方英尺/90平方米
25%首付:S$ / 75%貸款:S$
30年貸款,2%利息,月供:S$
3室
新幣 S$ 起
C4-P戶型 3室 969平方英尺/90平方米
25%首付:S$ / 75%貸款:S$
30年貸款,2%利息,月供:S$
3室
新幣 S$ 起
C5戶型 3室 980平方英尺/91平方米
25%首付:S$ / 75%貸款:S$
30年貸款,2%利息,月供:S$
3室
新幣 S$ 起
C5-H戶型 3室 980平方英尺/91平方米
25%首付:S$ / 75%貸款:S$
30年貸款,2%利息,月供:S$
3室
新幣 S$ 起
C5-P戶型 3室 980平方英尺/91平方米
25%首付:S$ / 75%貸款:S$
30年貸款,2%利息,月供:S$
3室+庭院
新幣 S$ 起
CY1a戶型 3室+Yard 1001平方英尺/93平方米
25%首付:S$ / 75%貸款:S$
30年貸款,2%利息,月供:S$
3室+庭院
新幣 S$ 起
CY1a-H戶型 3室+Yard 1001平方英尺/93平方米
25%首付:S$ / 75%貸款:S$
30年貸款,2%利息,月供:S$
3室+庭院
新幣 S$ 起
CY1b戶型 3室+Yard 1001平方英尺/93平方米
25%首付:S$ / 75%貸款:S$
30年貸款,2%利息,月供:S$
3室+庭院
新幣 S$ 起
CY1b-H戶型 3室+Yard 1001平方英尺/93平方米
25%首付:S$ / 75%貸款:S$
30年貸款,2%利息,月供:S$
3室+庭院
新幣 S$ 起
CY1b-P戶型 3室+Yard 1001平方英尺/93平方米
25%首付:S$ / 75%貸款:S$
30年貸款,2%利息,月供:S$
3室+庭院
新幣 S$ 起
CY2戶型 3室+Yard 1001平方英尺/93平方米
25%首付:S$ / 75%貸款:S$
30年貸款,2%利息,月供:S$
3室+庭院
新幣 S$ 起
CY2-H戶型 3室+Yard 1001平方英尺/93平方米
25%首付:S$ / 75%貸款:S$
30年貸款,2%利息,月供:S$
3室+庭院
新幣 S$ 起
CY2-P戶型 3室+Yard 1001平方英尺/93平方米
25%首付:S$ / 75%貸款:S$
30年貸款,2%利息,月供:S$
3室+庭院
新幣 S$ 起
CY3戶型 3室+Yard 1001平方英尺/93平方米
25%首付:S$ / 75%貸款:S$
30年貸款,2%利息,月供:S$
3室+庭院
新幣 S$ 起
CY3-H戶型 3室+Yard 1001平方英尺/93平方米
25%首付:S$ / 75%貸款:S$
30年貸款,2%利息,月供:S$
3室+庭院
新幣 S$ 起
CY3-P戶型 3室+Yard 1001平方英尺/93平方米
25%首付:S$ / 75%貸款:S$
30年貸款,2%利息,月供:S$
3室+庭院
新幣 S$ 起
CY4戶型 3室+Yard 1001平方英尺/93平方米
25%首付:S$ / 75%貸款:S$
30年貸款,2%利息,月供:S$
3室+庭院
新幣 S$ 起
CY4-H戶型 3室+Yard 1001平方英尺/93平方米
25%首付:S$ / 75%貸款:S$
30年貸款,2%利息,月供:S$
3室+庭院
新幣 S$ 起
CY4-P戶型 3室+Yard 1001平方英尺/93平方米
25%首付:S$ / 75%貸款:S$
30年貸款,2%利息,月供:S$
3室+庭院
新幣 S$ 起
CY5戶型 3室+Yard 1023平方英尺/95平方米
25%首付:S$ / 75%貸款:S$
30年貸款,2%利息,月供:S$
3室+庭院
新幣 S$ 起
CY5-H戶型 3室+Yard 1023平方英尺/95平方米
25%首付:S$ / 75%貸款:S$
30年貸款,2%利息,月供:S$
3室+庭院
新幣 S$ 起
CY5-P戶型 3室+Yard 1023平方英尺/95平方米
25%首付:S$ / 75%貸款:S$
30年貸款,2%利息,月供:S$
3室+庭院
新幣 S$ 起
CY6戶型 3室+Yard 1023平方英尺/95平方米
25%首付:S$ / 75%貸款:S$
30年貸款,2%利息,月供:S$
3室+庭院
新幣 S$ 起
CY6-H戶型 3室+Yard 1023平方英尺/95平方米
25%首付:S$ / 75%貸款:S$
30年貸款,2%利息,月供:S$
3室+庭院
新幣 S$ 起
CY6-P戶型 3室+Yard 1023平方英尺/95平方米
25%首付:S$ / 75%貸款:S$
30年貸款,2%利息,月供:S$
3室+庭院
新幣 S$ 起
CY7戶型 3室+Yard 1023平方英尺/95平方米
25%首付:S$ / 75%貸款:S$
30年貸款,2%利息,月供:S$
3室+庭院
新幣 S$ 起
CY7-H戶型 3室+Yard 1023平方英尺/95平方米
25%首付:S$ / 75%貸款:S$
30年貸款,2%利息,月供:S$
3室+庭院+書房
新幣 S$ 起
CS1戶型 3室+Yard+Study 1055平方英尺/98平方米
25%首付:S$ / 75%貸款:S$
30年貸款,2%利息,月供:S$
3室+庭院+書房
新幣 S$ 起
CS1-H戶型 3室+Yard+Study 1055平方英尺/98平方米
25%首付:S$ / 75%貸款:S$
30年貸款,2%利息,月供:S$
3室+庭院+書房
新幣 S$ 起
CS1-P戶型 3室+Yard+Study 1055平方英尺/98平方米
25%首付:S$ / 75%貸款:S$
30年貸款,2%利息,月供:S$
3室+庭院+書房
新幣 S$ 起
CS2戶型 3室+Yard+Study 1066平方英尺/99平方米
25%首付:S$ / 75%貸款:S$
30年貸款,2%利息,月供:S$
3室+庭院+書房
新幣 S$ 起
CS2-H戶型 3室+Yard+Study 1066平方英尺/99平方米
25%首付:S$ / 75%貸款:S$
30年貸款,2%利息,月供:S$
3室+庭院+書房
新幣 S$ 起
CS2-P戶型 3室+Yard+Study 1066平方英尺/99平方米
25%首付:S$ / 75%貸款:S$
30年貸款,2%利息,月供:S$
3室+庭院+書房
新幣 S$ 起
CS3戶型 3室+Yard+Study 1066平方英尺/99平方米
25%首付:S$ / 75%貸款:S$
30年貸款,2%利息,月供:S$
3室+庭院+書房
新幣 S$ 起
CS3-H戶型 3室+Yard+Study 1066平方英尺/99平方米
25%首付:S$ / 75%貸款:S$
30年貸款,2%利息,月供:S$
3室+庭院+書房
新幣 S$ 起
CS3-P戶型 3室+Yard+Study 1066平方英尺/99平方米
25%首付:S$ / 75%貸款:S$
30年貸款,2%利息,月供:S$
3室+庭院+書房
新幣 S$ 起
CS4戶型 3室+Yard+Study 1066平方英尺/99平方米
25%首付:S$ / 75%貸款:S$
30年貸款,2%利息,月供:S$
3室+庭院+書房
新幣 S$ 起
CS4-H戶型 3室+Yard+Study 1066平方英尺/99平方米
25%首付:S$ / 75%貸款:S$
30年貸款,2%利息,月供:S$
3室+庭院+書房
新幣 S$ 起
CS4-P戶型 3室+Yard+Study 1066平方英尺/99平方米
25%首付:S$ / 75%貸款:S$
30年貸款,2%利息,月供:S$
3室+庭院+書房
新幣 S$ 起
CS5a戶型 3室+Yard+Study 1076平方英尺/100平方米
25%首付:S$ / 75%貸款:S$
30年貸款,2%利息,月供:S$
3室+庭院+書房
新幣 S$ 起
CS5a-H戶型 3室+Yard+Study 1076平方英尺/100平方米
25%首付:S$ / 75%貸款:S$
30年貸款,2%利息,月供:S$
3室+庭院+書房
新幣 S$ 起
CS5a-P戶型 3室+Yard+Study 1076平方英尺/100平方米
25%首付:S$ / 75%貸款:S$
30年貸款,2%利息,月供:S$
3室+庭院+書房
新幣 S$ 起
CS5b戶型 3室+Yard+Study 1076平方英尺/100平方米
25%首付:S$ / 75%貸款:S$
30年貸款,2%利息,月供:S$
3室+庭院+書房
新幣 S$ 起
CS5b-H戶型 3室+Yard+Study 1076平方英尺/100平方米
25%首付:S$ / 75%貸款:S$
30年貸款,2%利息,月供:S$
3室+庭院+書房
新幣 S$ 起
CS6戶型 3室+Yard+Study 1076平方英尺/100平方米
25%首付:S$ / 75%貸款:S$
30年貸款,2%利息,月供:S$
3室+庭院+書房
新幣 S$ 起
CS6-H戶型 3室+Yard+Study 1076平方英尺/100平方米
25%首付:S$ / 75%貸款:S$
30年貸款,2%利息,月供:S$
3室+庭院+書房
新幣 S$ 起
CS7戶型 3室+Yard+Study 1076平方英尺/100平方米
25%首付:S$ / 75%貸款:S$
30年貸款,2%利息,月供:S$
3室+庭院+書房
新幣 S$ 起
CS7-H戶型 3室+Yard+Study 1076平方英尺/100平方米
25%首付:S$ / 75%貸款:S$
30年貸款,2%利息,月供:S$
3室+庭院+書房
新幣 S$ 起
CS7-P戶型 3室+Yard+Study 1076平方英尺/100平方米
25%首付:S$ / 75%貸款:S$
30年貸款,2%利息,月供:S$
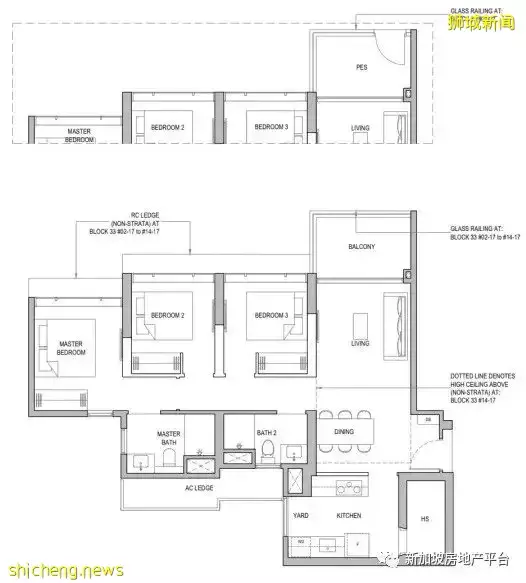
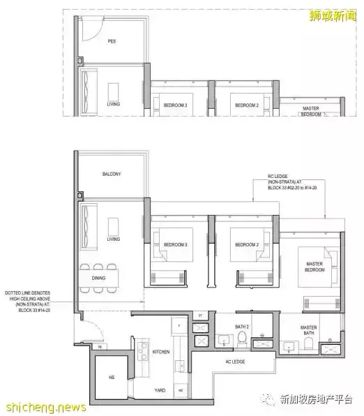
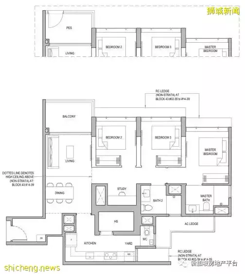
4室
新幣 S$ 起
D1戶型 4室 1313平方英尺/122平方米
25%首付:S$ / 75%貸款:S$
30年貸款,2%利息,月供:S$
4室
新幣 S$ 起
D1-H戶型 4室 1313平方英尺/122平方米
25%首付:S$ / 75%貸款:S$
30年貸款,2%利息,月供:S$
4室
新幣 S$ 起
D1-P戶型 4室 1313平方英尺/122平方米
25%首付:S$ / 75%貸款:S$
30年貸款,2%利息,月供:S$
4室
新幣 S$ 起
D2戶型 4室 1313平方英尺/122平方米
25%首付:S$ / 75%貸款:S$
30年貸款,2%利息,月供:S$
4室
新幣 S$ 起
D2-H戶型 4室 1313平方英尺/122平方米
25%首付:S$ / 75%貸款:S$
30年貸款,2%利息,月供:S$
4室
新幣 S$ 起
D2-P戶型 4室 1313平方英尺/122平方米
25%首付:S$ / 75%貸款:S$
30年貸款,2%利息,月供:S$
4室
新幣 S$ 起
D3戶型 4室 1335平方英尺/124平方米
25%首付:S$ / 75%貸款:S$
30年貸款,2%利息,月供:S$
4室
新幣 S$ 起
D3-H戶型 4室 1335平方英尺/124平方米
25%首付:S$ / 75%貸款:S$
30年貸款,2%利息,月供:S$
4室
新幣 S$ 起
D3-P戶型 4室 1335平方英尺/124平方米
25%首付:S$ / 75%貸款:S$
30年貸款,2%利息,月供:S$
4室
新幣 S$ 起
D4戶型 4室 1389平方英尺/129平方米
25%首付:S$ / 75%貸款:S$
30年貸款,2%利息,月供:S$
4室
新幣 S$ 起
D4-H戶型 4室 1389平方英尺/129平方米
25%首付:S$ / 75%貸款:S$
30年貸款,2%利息,月供:S$
4室
新幣 S$ 起
D4-P戶型 4室 1389平方英尺/129平方米
25%首付:S$ / 75%貸款:S$
30年貸款,2%利息,月供:S$
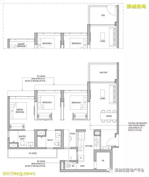
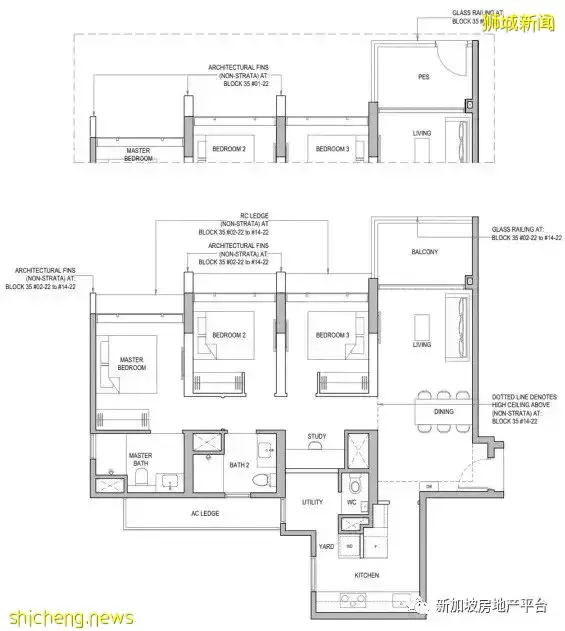
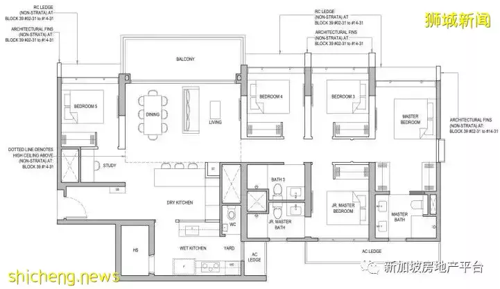
5室
新幣 S$ 起
E1戶型 5室 1593平方英尺/148平方米
25%首付:S$ / 75%貸款:S$
30年貸款,2%利息,月供:S$
5室
新幣 S$ 起
E1-H戶型 5室 1593平方英尺/148平方米
25%首付:S$ / 75%貸款:S$
30年貸款,2%利息,月供:S$
5室
新幣 S$ 起
E1-P戶型 5室 1593平方英尺/148平方米
25%首付:S$ / 75%貸款:S$
30年貸款,2%利息,月供:S$






































































